Bildegalleri

Aktiv Finnsnes presenterer Sykehjemsveien 49! Stort kombinasjonsbygg med tilhørende nausttomt sentralt på Stonglandseidet - godt utviklingspotensiale. Foto: Steffen Fossbakk.
Stort kombinasjonsbygg med tilhørende nausttomt sentralt på Stonglandseidet - godt utviklingspotensiale.
Nøkkelinfo
- Bruksareal
- 505 m²
- Bruttoareal
- 540 m²
- Etasje
- 2.
- Eieform
- Eier (Selveier)
- Areal
- 540 m²
- Byggeår
- 1975
- Energimerking
- G - Rød
- Tomteareal
- 2 668 m² (eiet)
Type lokale
Kort om eiendommen
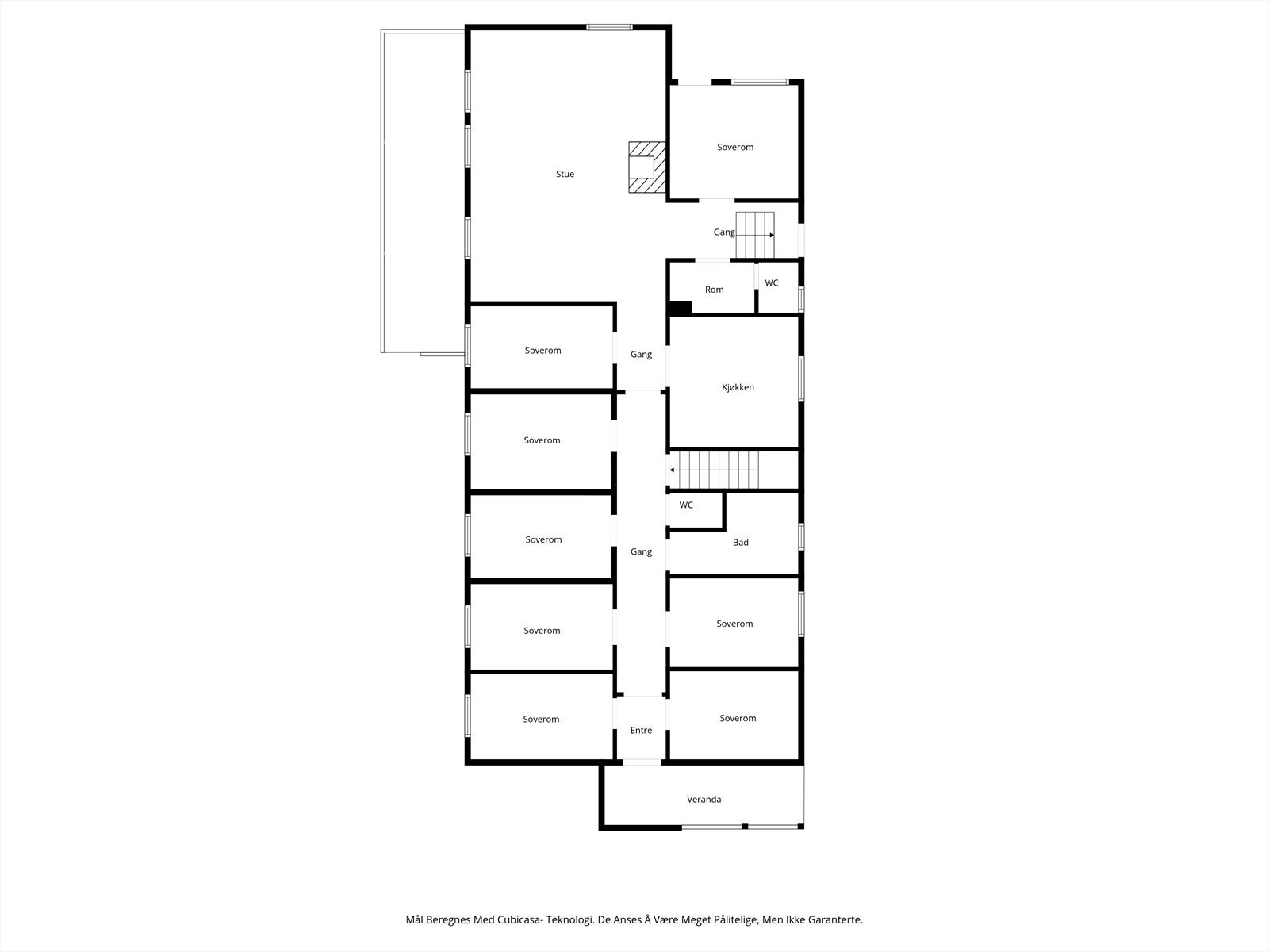
Stort kombinasjonsbygg med stort utviklingspotensiale og tilhørende nausttomt. Opprinnelig del av bolig fra trolig 1975 og tilbygd del fra rundt 1995, bygget har inntil nylig vært brukt som omsorgsbolig. Oppgraderinger må påregnes, men bygget i seg selv har mange muligheter for bruk. Bygget ligger sentralt til på Stonglandseidet med gangavstant til både barnehage, skole, dagligvarehandel og sykehjem. Bygget går over flere halve etasjer samt en kjelleretasje og inneholder til sammen blant annet sju soverom, fem hybler med eget bad, vaskerom, to kjøkken og flere disponible rom. Eiendommen er regulert for offentlig administrasjon/næring, og er tilkoblet offentlig vann og avløp.
Beliggenhet
Eiendommen har sentral beliggenhet på Stonglandseidet med gangavstand til barnehage, skole, dagligvarehandel og sykehjem. Området består av spredt bebyggelse, og har nærhet til utmark og fjære. Omtrent 50 kilometer til Finnsnes sentrum med alt av bymessige fasiliteter samt daglig hurtigbåtavgang til Tromsø og Harstad.
Adkomst
Adkomst fra kommunal vei.
Omkostninger
Dokumentavgift kr. 62 500,-. Tinglyse skjøte kr. 545,- Tinglyse pantedokument kr. 545,- Grunnboksutskrift kr. 290,-.
Overtakelse
Etter nærmere avtale.
Innhold
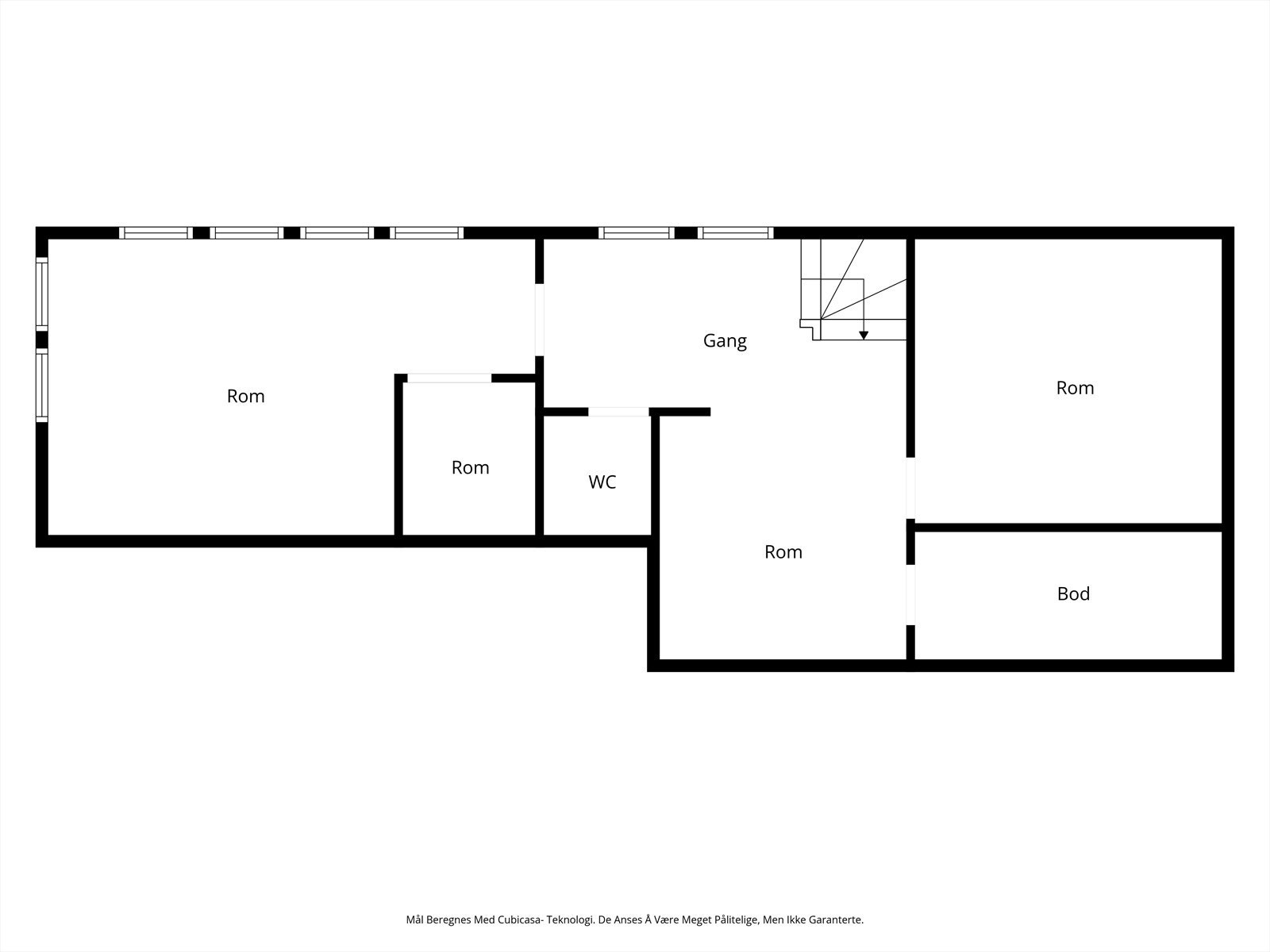
Stort kombinasjonsbygg som går over flere halve etasjer i tillegg til en kjelleretasje. En etasje med vindfang, gang, sju soverom, bad, kjøkken og stue. Videre en halv etasje med vindfang, gang, bod, fem hybler med bad, vaskerom, besøksrom, kjøkken, oppholdsrom og bad. Kjelleretasjen har bod, teknisk rom, spiserom, garderobe og arkiv.
Standard
Stort bygg med opprinnelig del fra rundt 1975 og en tilbygd del fra trolig 1995, bygget har inntil nylig vært benyttet som omsorgsbolig. Boligen har noe etterslep på vedlikehold og oppgraderinger må påregnes. Innholdsrikt bygg med mange muligheter for bruk og har et godt utviklingspotensiale. Bygget går over flere halve etasjer samt en kjelleretasje, som til sammen rommer blant annet sju soverom, fem hybler med eget bad, vaskerom, to kjøkken og flere disponible rom. På eiendommen står det også et mindre uthus/sjå.
Beskrivelse av tomt
Eiendommen består av to parseller, en bebygd med kombinasjonslokale beliggende i skrånende terreng og en parsell nede ved sjø avsatt til naust/båtplass.
Diverse
Selger har ikke vært på eiendommen selv og kjenner ikke til eiendommens stand, og det må påregnes vesentlige avvik og mangler ved eiendommen. Det forutsettes at budgiver/kjøper gjør alle undersøkelser med egne fagfolk vedkommende finner nødvendig eller tilstrekkelig for å gjennomføre et kjøp. Selger tar intet ansvar for eiendommens fysiske eller rettslige tilstand. Det må påregnes vesentlige avvik og mangler ved eiendommen.
Foretaket samarbeider med følgende foretak som tilbyr produkter eller tjenester i forbindelse med oppdraget:
- Banker i Eika-alliansen
- Leverandører knyttet til Visma Meglerfront (for eksempel strømleverandører)
Oppvarming
Bygget har vedfyring i en stue, elektrisk oppvarming via panelovner.
Byggemåte / Konstruksjon
Opprinnelig del har grunnmur av betong/betonghulstein. Yttervegger i bindingsverk med stående trepanel. Saltak med fabrikkproduserte sperrer og taktekking av asfaltbelegg. Utkraget balkong på fasade. Tilbygd del har grunnmur av betong eller lettklinkerblokk. Yttervegger i bindingsverk med stående trepanel. Vinduer fra byggeår med tolags forseglet glass. Saltak takket med asfaltbelegg. Det er krypekjeller under både opprinnelig del og tilbygd del. Vannrør i plast og kobber. Avløp i plast og jern. Elektrisk anlegg med både skrusikringer og automatsikringer. Naturlig ventilasjon med mekanisk avtrekk på enkelte våtrom og kjøkken.
Parkering
Parkering på egen grunn.
Midlertidig brukstillatelse og ferdigattest
Bygget er oppført i to trinn. Eldste del ligger nærmest sjøen og vurderes som eldre enn 1977 (nøyaktig byggeår ukjent). Tilbygd del er antatt fra ca. 1995, men det kan være betydelige avvik fra dette. Takstmann har vært i kontakt med Senja kommune for innhenting av tegninger og brukstillatelser på bygninger, men det er ikke mulig å fremskaffe tegninger for opprinnelig del, midlertidig brukstillatelse eller ferdigattest for hele bygget.
Ovennevnte medfører at man ikke vet hvorvidt eiendommen har lovlighetsmangler eller ikke. En konsekvens av lovlighetsmangler kan for eksempel være at kommunen gir pålegg om tilbakeføring av det ulovlige tiltaket. Kommunen kan også innkreve tvangsmulkt frem til manglene er brakt i orden. Kjøper overtar ansvar og risiko for nevnte forhold.
Budgivning
Budgivning utenfor forbrukerforhold
Budgivere oppfordres til å legge inn bud elektronisk. Dette gjøres på eiendommens hjemmeside på aktiv.no, ved å bruke Gi bud -knappen. Ved elektronisk budgivning, samtykker budgiver til elektronisk kommunikasjon. Det anbefales at hvert bud har en akseptfrist som muliggjør en forsvarlig avvikling av budrunden. Vi anbefaler minimum 30 minutter akseptfrist. Oppdragsgiver er oppfordret til å ikke ta imot bud direkte fra budgiver, men å henvise budgiver videre til megler.
Opplysningene i salgsoppgaven er godkjent av selger. Alle interessenter oppfordres imidlertid til grundig besiktigelse av eiendommen, gjerne sammen med fagmann før bud inngis.
Etter aksept av bud, vil eiendommens salgssum bli meddelt de som ev. måtte etterspørre denne. Eiendommens salgssum vil bli offentlig tilgjengelig ved overføring av hjemmel.
Ansvarlig megler
Mads Wallerheim
Regulering
Nærområdet
Aktiv Finnsnes
Annonseinformasjon
| FINN-kode | 440367577 |
|---|---|
| Sist endret | 05. feb. 2026 08:13 |
| Referanse | 1901250191 |
Annonsene kan være mangelfulle i forhold til lovpålagt opplysningsplikt. Før bindende avtale inngås oppfordres interessenter til å innhente komplett informasjon fra meglerforetaket, selger eller utleier.







































