Bildegalleri

Velkommen til Kleggveien 3!
Aronnes: Næringseiendom med butikklokale, verksted, kontor og lager
Nøkkelinfo
- Eieform
- Eier (Selveier)
- Areal
- 1 222 m²
- Byggeår
- 2014
- Energimerking
- C - Rød
- Tomteareal
- 2 878 m² (eiet)
Type lokale
Fasiliteter
Beskaffenhet
Tomta er tilnærmet plan og har en form som gir god utnyttelse av arealet. Tomtens utforming og topografi muliggjør effektiv arealdisponering, og tomta kan utnyttes maksimalt i forhold til sin størrelse.
Beliggenhet
Eiendommen ligger i et veletablert næringsområde i Alta, som er preget av god tilrettelegging for næringsvirksomhet og et bredt spekter av bedrifter.
Alta kommune er "15-minutt-byen". Uansett hvor du er i byen, så er du nærmest aldri lenger unna enn 15 minutter - enten det er til badeland, snøscooterløyper, alpinbakke, kjøpesenter eller flyplass. Jakt, fiske og fantastiske turforhold er heller omtrent aldri mer enn 15 minutter unna.
I Alta er det mange idrettsklubber uansett hvilket lokalmiljø du velger, og en god dugnadsånd er noe som gjerne kjennetegner en Altaværing fra øst til vest.
Adkomst
Se vedlagt nabolagsprofil for kart og oversikt over adkomst.
Det vil bli skiltet med &Partners-skilt ved fellesvisning.
Regulering
Forretning/industri
Ferdigattest
Det foreligger ferdigattest datert 06.05.2015.
Det foreligger ferdigattest datert 13.08.2019.
Bygningsinformasjon / byggemåte
Bygget er oppført med bærende stålkonstruksjoner. Yttervegger er kledd med stål sandwich-fasadeplater. Etasjeskillet er utført med prefabrikkerte betong hulldekker. Bygget ble opprinnelig oppført i 2014, og utvidet med et tilbygg i 2019. Konstruksjonene fremstår som moderne og i samsvar med vanlig byggeskikk for næringsbygg fra oppføringstidspunktet.
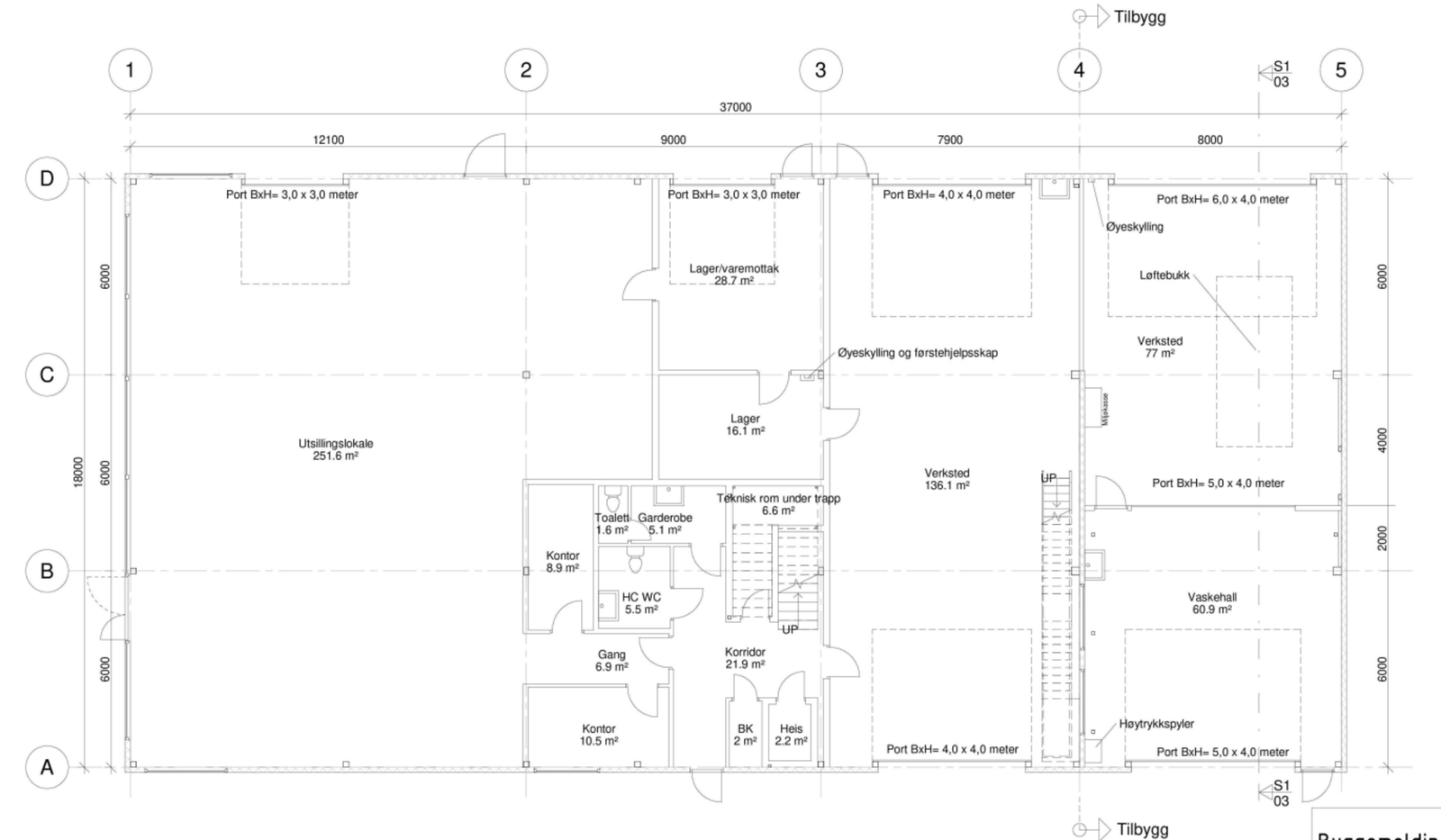
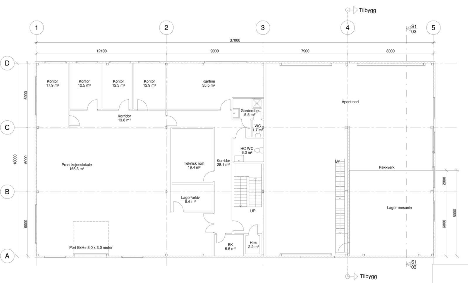
Areal / Arealspesifikasjon / Arealbetegnelse
Bruksareal per etasje: Etasje 1: 653
Etasje 2: 569
Diverse
Eiendommen omfattes av eiendomsmeglingslovens regler om næringsmegling, jf eml § 1-4 (3). I samsvar med emf § 1-2 fravikes følgende bestemmelser eiendomsmeglingslove: § 4-4, § 6-2, § 6-4, § 6-5, § 6-7 til § 6-10 og kapittel 7 og § 8-8. Eiendomsmegler har derfor gjennomført begrensede undersøkelser om eiendommen, og Interessenter må derfor selv sette seg grundig inn i muligheter for eiendommen og reguleringsplaner samt selv innhente ytterligere informasjon ved behov.
Leiekontrakt med Alta Caravan finnes og er gyldig tom 31.05.29, med rett til fornyelse ytterlige 5 år. Ta kontakt med megler for nærmere info.
Faste løpende utgifter
Kommunale avgifter
Kommunale avgifter pr. år kr 83 684,74
Årstall 2024
Sentrale lover
Eiendommen selges etter reglene i avhendingsloven. Selgers eventuelle mangelsansvar og kjøpers undersøkelsesplikt reguleres av bestemmelsene i avhendingsloven kapittel 3.
Dersom avtale om salg (aksept av bud) inngås i forbrukerforhold*:
For å få et best mulig beslutningsgrunnlag er det viktig å lese salgsdokumentene grundig før visning, og uansett før budgivning. Salgsoppgaven inneholder sentrale opplysninger fra eiendomsmegleren, tilstandsrapport fra bygningssakkyndig, egenerklæring fra selger og andre dokumenter med relevant innhold. Uavhengig av om det er lest eller ikke, regnes Kjøper for å kjenne til det som går tydelig fram av salgsdokumentene.
I tillegg til å sette seg grundig inn i dokumentene, oppfordres interessenter til å undersøke eiendommen nøye.
Eiendommen kan ha en mangel dersom den ikke samsvarer med kravene til kvalitet, utrustning og annet som følger av avtalen, jf. avhendingsloven § 3-1. Videre vil eiendommen ha mangel dersom det er holdt tilbake eller gitt uriktige opplysninger om eiendommen som har virket inn på avtalen, jf. avhendingsloven §§ 3-7 og 3-8.
Ved salg til forbrukerkjøper er det ikke anledning til å ta forbehold om at eiendommen selges som den er eller med lignende generelle forbehold. Forbehold om eiendommens tilstand som er spesifisert nok til å kunne innvirke på kjøpsvurderingen, anses likevel som en del av avtalen, og vil derfor ikke kunne påberopes som mangel jf. avhendingsloven § 3-9 (2) andre setning.
Hvis det ikke er avtalt noe særskilt, gjelder bestemmelsene i avhendingsloven §§ 3-2 til 3-6 om generelle krav til eiendommen, arealavvik og tilbehør. Disse bestemmelsene supplerer altså det som følger av avtalen.
Boligens alder, type og synlige tilstand har betydning for hvilken kvalitet og stand som kan forventes. For eksempel kan det ikke forventes at en eldre bolig har samme tilstand som en ny eller nyere bolig. Eldre boliger er vanligvis bygget etter andre krav og med andre materialer, og vil i tillegg ha varierende grad av slitasje og skader som følge av blant annet bruk, værpåkjenninger og annen aldersforringelse. Skader og forringelser som er naturlige følger av dette vil normalt ikke bli ansett som kjøpsrettslige mangler.
Kjøper kan ikke gjøre gjeldende som en mangel noe kjøperen kjente eller måtte kjenne til da avtalen ble inngått. Dersom kjøperen før avtaleinngåelsen har undersøkt eiendommen, eller uten rimelig grunn unnlatt å følge oppfordringen om undersøkelse, kan kjøperen ikke gjøre gjeldende som mangel noe han burde blitt kjent med ved undersøkelsen.
Det gjøres oppmerksom på at selv om det skulle være mangel ved eiendommen, må kjøperen selv dekke tap og kostnader opp til et beløp på 10 000 kroner (kjøpers egenandel / egenrisiko ), om ikke annet er sagt i loven.
Kjøpers egenrisiko har ikke betydning for spørsmålet om det foreligger en mangel. Beløpet kommer imidlertid til fradrag i en eventuell utmåling av prisavslag eller erstatning dersom det er en mangel ved eiendommen som selger er ansvarlig for.
* Med forbrukerforhold menes kjøp av eiendom når kjøperen er en fysisk person som ikke hovedsakelig handler som ledd i næringsvirksomhet.
Dersom avtale om salg (aksept av bud) inngås av kjøper som ikke anses som forbruker selges eiendommen som den er :
Eiendommen overdras slik den fremstår ved besiktigelse. Selger fraskriver seg ansvar ut over det som følger av avhendingsloven § 3-9, dog slik at forhold dekket av avhendingslovens § 3-9, andre punktum ikke kan utgjøre en mangel. § 3-9 fravikes videre slik at forsømte opplysninger fra selgers side bare skal ansees som mangel dersom disse er vesentlige for kjøper og er dokumentert kjent av selger. Videre kan ikke kjøper gjøre gjeldende som mangel forhold etter avhendingslovens § 3-8 (1), andre setning hvor opplysningene er gitt av andre enn selger. Avhendingslovens § 4-19, andre ledd fravikes slik at reklamasjon senest kan skje 1 år etter overtagelse av eiendommen.
Interessenter oppfordres til å undersøke eiendommen nøye, gjerne med fagmann før bud inngis. Se også teknisk beskrivelse av boligen, som framkommer i takst/ tilstandsrapport/boligsalgsrapport. Det forutsettes at skjøtet tinglyses på ny eier. Hvis kjøper ikke ønsker en hjemmelsoverføring av eiendommen til seg må det tas forbehold om dette i budet.
Informasjonen ovenfor om kjøpers undersøkelsesplikt, herunder oppfordringen om å undersøke eiendommen nøye, gjelder også for kjøpere som ikke anses som forbrukere. Ved spørsmål, kontakt megler for mer informasjon.
I alle tilfeller forutsettes det, med mindre annet er avtalt, at hjemmel overføres til kjøper ved overtakelse.
Informasjon vedr. lovendring finnes også her: https://nylander.no/informasjon-til-vare-kunder-vdr-lovendring-2022/
Eiendommen selges som den er ved kjøpers besiktigelse eller på tidspunkt for aksept av kjøpers bud, dersom kjøper ikke besiktiger eiendommen. Eiendommen selges som den er jfr avhendingslovens paragraf 3-9, dog slik at forhold dekket av avhendingslovens § 3-9, andre punktum ikke kan utgjøre en mangel.
Avhendingslovens § 3-9 fravikes videre slik at kjøper ikke kan gjøre gjeldende som mangel forhold etter avhendingslovens § 3-8 (1), andre setning hvor opplysningene er gitt av andre enn selger. § 3-9 fravikes videre slik at forsømte opplysninger fra selgers side bare skal ansees som mangel dersom disse er vesentlige for kjøper og er dokumentert kjent av selger.
Avhendingslovens § 4-19, andre ledd fravikes slik at reklamasjon senest kan skje 1 år etter overtagelse av eiendommen.
Kjøper er oppfordret til selv å befare/undersøke eiendommen og forhold knyttet til denne, eventuelt ved bruk av dertil egnede fagpersoner. Kjøper kan ikke gjøre gjeldende som mangel noe han måtte kjenne til ved signering av kjøpekontrakten.
KJØPERS UNDERSØKELSESPLIKT
Kjøperen kan ikke gjøre gjeldende som en mangel noe kjøperen kjente eller måtte kjenne til da avtalen ble inngått. Kjøperen skal regnes for å kjenne til forhold som går tydelig fram av en godkjent tilstandsrapport jfr. ny forskrift, (tryggere bolighandel) eller andre salgsdokument som kjøperen er gitt anledning til å sette seg inn i.
Har kjøperen før avtalen ble inngått undersøkt eiendommen eller uten rimelig grunn latt være å følge en anmodning fra selgeren om å undersøke eiendommen, kan kjøperen heller ikke gjøre gjeldende som en mangel noe kjøperen burde blitt kjent med ved undersøkelsen. Dette gjelder likevel ikke dersom selgeren har vært grovt uaktsom, uærlig eller for- øvrig handlet i strid med god tro.
Kjøpers undersøkelsesplikt er utvidet i nytt lovverk av 2022. Nytt lovverk har nå reguleringer hvor kjøper er underlagt en egenandel når eiendommen har en kjøpsrettslig mangel jfr. § 3-1, fjerde ledd. Egenandelen kommer først på tale når det er påvist at eiendommen har en kjøpsrettslig mangel, (avvik fra hvordan eiendommen er beskrevet i salgsdokumentene vurdert ut fra de konkrete forholdene i saken). Er det konstatert en kjøpsrettslig mangel som nevnt ovenfor, skal det trekkes kr 10 000,- fra utbedringskostnadene ved oppgjøret.
Forbehold
Det tas forbehold om trykkfeil i salgsoppgaven.
Salgsoppgaven er ufullstendig uten alle vedlegg.
Overtakelse
Etter avtale med selger
Nyttige lenker
Nærområdet
Advanti & Partners
Annonseinformasjon
| FINN-kode | 438248261 |
|---|---|
| Sist endret | 21. nov. 2025 16:29 |
| Referanse | 89250235 |
Annonsene kan være mangelfulle i forhold til lovpålagt opplysningsplikt. Før bindende avtale inngås oppfordres interessenter til å innhente komplett informasjon fra meglerforetaket, selger eller utleier.











































