Bildegalleri

Bilde fra tilsvarende prosjekt på Fiskumparken.
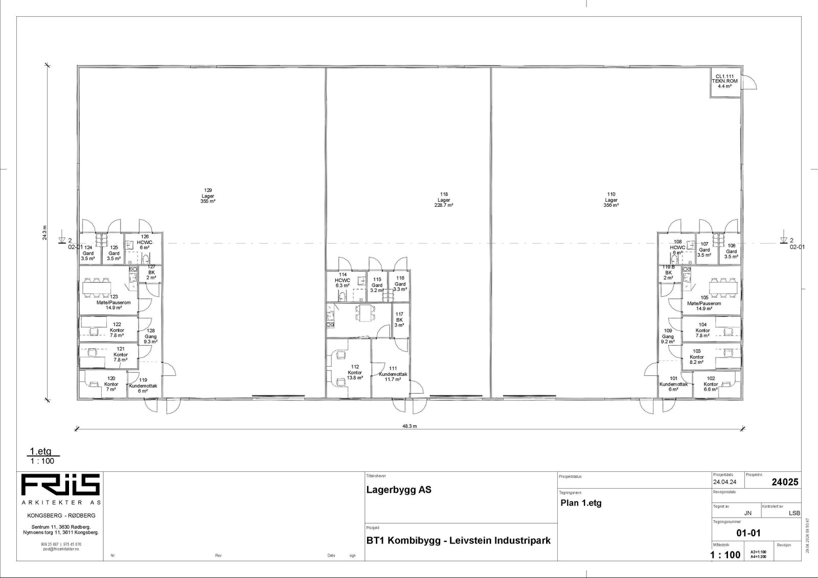
KOMBIBYGG til salgs i Notodden - Leivstein Næringsområde
Nøkkelinfo
- Areal
- 291 - 438 m²
Type lokale
Fasiliteter
Visning
Om eiendommen
Sikre deg en fleksibel kombinasjonsseksjon – Notodden
Ønsker du et moderne, funksjonelt og fleksibelt næringslokale? Nå har du muligheten! Vi tilbyr praktiske kombinasjonsseksjoner fra 291 m² (BTA) – perfekt for små og mellomstore bedrifter som ønsker å eie sitt eget lokale.
- Kombinasjon av lager, kontor og showroom
- Fleksible løsninger for ulike behov
- Enkel og ryddig overtakelse – ingen dokumentavgift
Våre bygg er utviklet med fokus på kvalitet, fleksibilitet og en rimelig inngangsbillett til eiendomsmarkedet. Fellesarealene driftes av Aksen AS, slik at du kan fokusere fullt og helt på din virksomhet.
- Grip sjansen – ta kontakt for visning og mer informasjon!
Salg av selskap:
Transaksjonen skjer som salg av aksjeselskap. Salgsobjektet utgjør alle aksjene i et nyopprettet selskap som Fisjoneres ut av utbyggerselskapet.
Selskapets eiendel ved overtakelse er den selveier eierseksjon som kjøper erverver ved budaksept og avtale om kjøp. Det tilkommer derfor ingen dokumentavgift.
Utbygger, selger og forvalter:
Utbygger — Lagerbygg AS, org.nr 921454945
Selger — Lagerbygg AS, org.nr 921454945
Eiendomsforvalter — Aksen AS, org.nr 919525517 https://aksen.no/
Priser
For mer informasjon og priser - Last ned prospekt på høyre side!
Standard
- Bygget oppføres i sandwich-elementer, stålkonstruksjon og brystning i betong.
- Selvbærende takplater med innvendig høyde 5,9 meter.
- Automatisk port med vinduer, H= 4,5m B= 3,8m pr seksjon
- Det leveres led lamper i tak— se byggebeskrivelse
- Egen strømmåler til hver seksjon
- i teknisk rom.
- Gulvoverflate på lager leveres med støvbundet betong
- Overflater kontordelen—se byggebeskrivelse
- Kontor leveres med vanlig kontor standard.
- Bygget er isolert og leveres med elektrisk oppvarming—se byggebeskrivelse
- Brannklasse:30 min (EI30)
Nyttige lenker
Nærområdet
Annonseinformasjon
| FINN-kode | 436464912 |
|---|---|
| Sist endret | 06. feb. 2026 11:05 |
| Referanse | KOMBIBYGG - Leivstein Næringsområde |
Annonsene kan være mangelfulle i forhold til lovpålagt opplysningsplikt. Før bindende avtale inngås oppfordres interessenter til å innhente komplett informasjon fra meglerforetaket, selger eller utleier.














