Bildegalleri

Ny forretningsseksjon på gateplan under oppføring
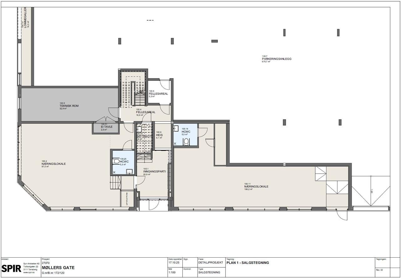
Sandefjord sentrum - Ny kontor/forretningsseksjon
Nøkkelinfo
- Bruttoareal
- 106 m²
- Eieform
- Eier (Selveier)
- Areal
- 106 m²
- Tomt
- Eiet
Type lokale
Fasiliteter
Visning
Ta kontakt for å avtale visning.Beliggenhet
Midt i hjertet av sentrum med nærhet til byens travleste butikkområde. Eiendommen ligger vis a vis Sandefjord Kirke. Bytunet ligger kun 200 m lengre ned i Jernbanealleen og omkranses av flere populære butikker og serveringsteder. Kort vei til Sandefjord rutebilstasjon og jernbanestasjonen. Gode profileringsmuligheter.
Inneholder
Lokaler leveres som råbygg uten innredning og vegger.
Gipsvegger: Sparklet og grunnet.
Lettklinkervegger: Pusset og støvbundet.
Betongvegger og tak: Støvbundet.
Teknisk grunnleveranse iht. forskriftskrav for uinredende lokaler
Ventilasjon ut av vegg, spredenett kun til WC-rom.
Oppvarming via fjernvarme, rør lagt frem til hver seksjon.
Brannmeldere
Nødlys
Sprinkleranlegg
Rampeløsning ned til lokalene
Aludør med:
Dørvrider
Systemnøkkel
Dørautomatikk med mekanisk nøkkelbryter
WC rom med:
HC-toalett med soft-close sete
Vask med ettgreps blandebatteri og speil på vegg
Flislagt gulv
Malte vegger
Systemhimling i tak (60x60 hvit T-profil)
Kjøkken er ikke inkludert, men tilrettelagt med oppstikk på vegg mot WC-rom
Parkering
Ingen parkering. Kort vei til offentlige og private parkeringsplasser.
Diverse
Eiendommen skal seksjoneres og er planlagt å bestå av 1 samleseksjon bolig og 3 næringsseksjoner. Næringsseksjonene vil være underlagt sameiet Møllers Gate. Borettslaget vil bli hjemmelshaver til boligseksjonene.Næringsseksjonene i sameiet er planlagt å omfatte 2 kontorer og 1 lommegalleri. Selger tar
forbehold i vedtektene om hva slags virksomhet som blir etablert i næringsseksjonene.
Det er selgers ansvar å innhente lovpålagt energiattest for eiendommen, med en energiklassifisering på en skala fra A til G. Næringsseksjonen vil trolig / erfaringsmessig ha energimerke A eller B.
Tomt
Felles eiet tomt.
Ansvarlig megler
Rune Allerød
Nærområdet
Annonseinformasjon
| FINN-kode | 434549092 |
|---|---|
| Sist endret | 01. des. 2025 09:25 |
| Referanse | QN4.25168 |
Annonsene kan være mangelfulle i forhold til lovpålagt opplysningsplikt. Før bindende avtale inngås oppfordres interessenter til å innhente komplett informasjon fra meglerforetaket, selger eller utleier.







