Bildegalleri

Sentral beliggenhet, Norheim næringspark og Oasen rett på andre siden. 3 stk 20 fots containere medfølger, to stk med dør og en med garasjeport.
Kombinert lager/butikk/verksted - Perfekt for små firma og for privatfolk
Nøkkelinfo
- Bruksareal
- 205 m²
- Eieform
- Eier (Selveier)
- Areal
- 205 m²
- Byggeår
- 1969
- Tomteareal
- 2 039 m² (eiet)
Type lokale
Fasiliteter
Visning
Kort om eiendommen
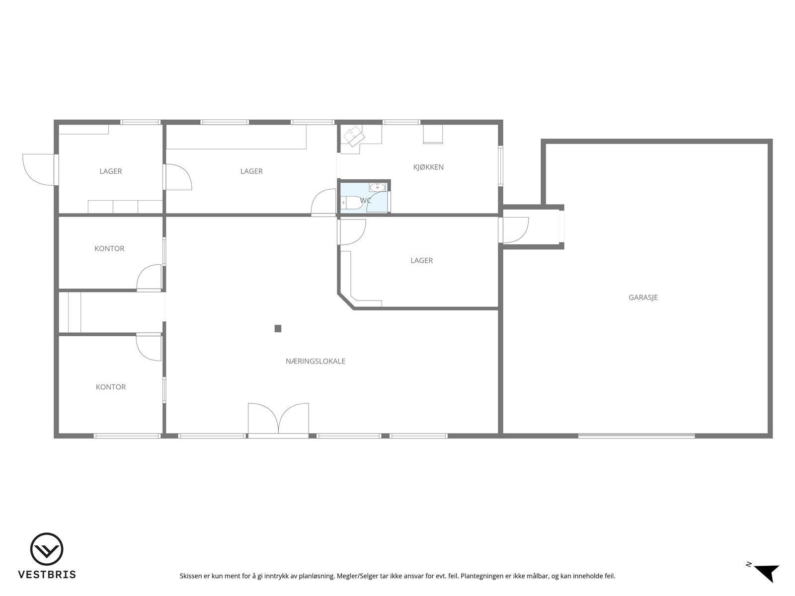
Eiendommen er planert med særdeles god lagring/arbeidsplass. Innvendig: Butikk-lokale, wc, pauserom m/kjøkken, arbeidsrom, bod, 2 kontor og mellomgang/lager til stålhall på ca 70 kvm. Særdeles sentral beliggenhet og enkel adkomst for firma/folk i farten. Dette er et perfekt bygg for alle som har behov for ekstra plass, enten firma eller på privaten mtp hobbier, lagring til bobil/båt/biler etc og samtidig kan drive med litt utleie av lagring innvendig og utvendig samt butikk/lagring innvendig. Medfølger 3 stk 20 fots containere hvorav 2 med dører og en med garasjeport.
Meld deg på visning 3/11 kl. 16:00 - 17:00. Velkommen.
Beliggenhet
Sentral beliggenhet i forhold til fastlandskarmøy, Haugesund og Karmøy
Hvitvaskingsloven
Eiendomsmeglere er underlagt lov om hvitvasking og er forpliktet til å rapportere til Økokrim om mistenkelige transaksjoner. Lov om hvitvasking innehar også strenge regler om kontroll av legitimasjon fra alle parter i handelen, herunder, selger, kjøper og fullmektiger for disse.
Budgivning
Alle bud skal inngis skriftlig til megler. Benytt "Gi bud"-knappen på våre annonser for å registrere ditt bud elektronisk. Dette er en enkel og sikker løsning som lar deg signere budet elektronisk.
Fremgangsmåte ved budgivning Benytt "Gi bud"-knappen i finnannonse for å legge inn bud på en eiendom. Registrer deg med legitimasjon og signatur, og du kan benytte din innlogging til å legge inn bud på hvilken som helst av Eiendomsmegler A sine eiendommer. Din identitet og signatur blir kontrollert som en del av innloggingen. Registrer ditt bud med korrekt beløp, frist, eventuelle forbehold, ønsket overtagelse og finansieringsplan. Du mottar en SMS-kvittering (skriftlig mottaksbekreftelse) når ditt bud er registrert. Registrer budforhøyelser ved å logge inn på nytt brukernavn og passord. Du kan også sende svar til SMS-kvitteringen for å registrere budforhøyelser. Vær oppmerksom på at bud gitt via SMS må behandles manuelt av megler. Bud via SMS kan ikke anses som mottatt av megler før du har fått en svarbekreftelse pr SMS.
Bud som ikke er skriftlig, eller som har kortere akseptfrist enn til kl 12.00 dagen etter siste annonserte visning, vil ikke bli formidlet til selger. Et bud er bindende for budgiver når budet er kommet til selgers kunnskap. Selger står fritt til å akseptere eller forkaste ethvert bud, og er således ikke forpliktet til å akseptere det høyeste budet på eiendommen.
Megler skal, i den grad det er nødvending og mulig, informere de involverte i budrunden skriftlig om status i budgivningen.
Megler er forpliktet til å legge til rette for en forsvarlig avvikling av budrunden, og for at budene skal kunne bli behandlet og videreformidlet skriftlig til alle involverte parter, må ethvert bud ha en tilstrekkelig lang akseptfrist. Selger må skriftlig akseptere budet før budaksept kan formidles til budgiver. Budforhøyelser skal derfor ha akseptfrist på minimum 30 minutter fra budet inngis.
Selger og kjøper har krav på å få utlevert kopi av budjournalen straks etter at handel er kommet i stand. Alle som har inngitt bud på eiendommen kan på forespørsel få en kopi av anonymisert budjournal etter at budrunden er avsluttet. For øvrig vises til det "Forbrukerinformasjon om budgivning", som er vedlagt salgsoppgaven.
Vedlegg til Salgsoppgaven
Vedlagt følger kart og tegninger. Om du mener noen av vedleggene mangler, ta kontakt med megler.
Lovanvendelse
Næringseiendommen selges etter reglene i avhendingsloven. Salgsoppgaven er basert på de opplysninger selger har gitt til bygningssakkyndig og megler, samt opplysninger innhentet fra kommunen, Statens kartverk og andre tilgjengelige kilder. Som kjøpekontrakt benyttes standard kjøpekontrakt utarbeidet Forum for Næringsmeglere.
Eiendommen selges som den er etter avhendingsloven § 3-9. Avhendingsloven § 3-9 fravikes imidlertid slik at kjøper overtar det fulle ansvar for skjulte feil og mangler. Selger har dog plikt til å opplyse om skjulte feil og mangler som selger kjenner til. Selger er ikke kjent med at det er forurensning i tomtegrunnen mv. Selger er heller ikke kjent med ufullstendigheter eller feil i salgsoppgaven og vedlagte dokumentasjon. Dersom salgsoppgaven skulle vise seg å mangle relevant informasjon eller inneholde uriktig informasjon som selger ikke var kjent med eller hadde grunnlag for å korrigere, kan kjøper ikke rette noe form for krav mot selger etter avhendingslovens §§ 3-7 og 3-8. Kjøper kan kun påberope mangler etter avhendingslovens § 3-7 og § 3-8 i de tilfeller selger har opptrådt svikaktig eller forsettlig, og bestemmelsenes øvrige vilkår er oppfylt.
Kjøper plikter å oppfylle sin undersøkelsesplikt etter avhendingsloven § 3-10. Dersom det er behov for avklaringer anbefaler vi at kjøper rådfører seg med eiendomsmegler eller en fagkyndig før det legges inn bud.
Avhendingslovens § 4-19 fravikes i sin helhet. Reklamasjon må finne sted snarest etter at kjøper oppdager eller bør oppdage et eventuelt avtalebrudd, og under enhver omstendighet senest ett - 1 - år etter avtalt overtakelse.
En forutsetning for salget er at skjøtet på eiendommen tinglyses på kjøper i forbindelse med overtakelsen.
Eiendomsmeglere er underlagt lov om hvitvasking og er forpliktet til å rapportere til Økokrim om mistenkelige transaksjoner. Lov om hvitvasking innehar også strenge regler om kontroll av legitimasjon fra alle parter i handelen, herunder, selger, kjøper og fullmektiger for disse.
Bestemmelsene i Eiendomsmeglingsloven § 4-4, § 6-2, § 6-4, § 6-5, § 6-7 til § 6-10 og kapittel 7 og § 8-8 fravikes jf. eiendomsmeglingsloven § 1-4 tredje ledd.
Innhold
Butikk-lokale, wc, pauserom m/kjøkken, arbeidsrom, bod, 2 kontor og mellomgang/lager ti stålhall på ca 70 kvm. Medfølger 3 stk 20 fots containere.
Beskrivelse av tomt
Tomten er planert og gruset, meget gode lagrings- og parkeringsmuligheter.
Standard
Innvendig grei standard, med laminat/belegg på gulv og malte overflater.
Oppvarming
Elektrisk.
Det er ikke foretatt energimerking av eiendommen.
Så lenge energiattest ikke foreligger bør interessenter legge til grunn at eiendommen har laveste energiklasse, Rød G.
Adkomst
Kjør over Karmsund bro. Bygningen ligger på venstre side, men avkjøring er til høyre og så til venstre i rundkjøring. Fortsett rett frem i neste rundkjøring og ta opp til venstre. Følg veien inn til eiendommen.
Parkering
Store parkerings- og lagringsområde rundt hele tomten
Regulering
Nyttige lenker
Nærområdet
Eiendomsmegler A AS
Annonseinformasjon
| FINN-kode | 432844626 |
|---|---|
| Sist endret | 19. okt. 2025 12:51 |
| Referanse | EMA1.25298 |
Annonsene kan være mangelfulle i forhold til lovpålagt opplysningsplikt. Før bindende avtale inngås oppfordres interessenter til å innhente komplett informasjon fra meglerforetaket, selger eller utleier.



















