Bildegalleri

Flotte og godt eksponerte lokaler i tilknytning til Mysen Stasjon.
Prisantydning4 990 000 kr
Nøkkelinfo
- Etasje
- 1.
- Areal
- 1 000 - 1 100 m²
- Byggeår
- 1989
- Energimerking
- E - Rød
Type lokale
Kontor
Butikk/Handel
Lager/Logistikk
Kombinasjonslokaler
Serveringslokale/Kantine
Undervisning/Arrangement
Visning
Ta kontakt for å avtale visning.Om eiendommen
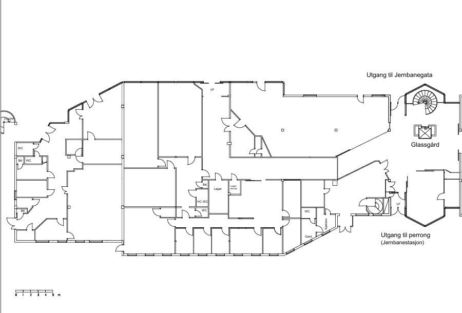
Attraktive næringslokaler med sentral beliggenhet i hjertet av Mysen, rett ved Mysen stasjon. Lokalene ligger på bakkeplan og byr på fleksible løsninger tilpasset en rekke virksomheter – enten du driver innen butikk, helse og velvære, undervisning, kontor (åpne løsninger eller cellekontorer) eller andre tjenester. Arealet har gode profileringsmuligheter og enkel adkomst. Det er rikelig med parkeringsplasser i umiddelbar nærhet for både ansatte og kunder. Nøkkelinformasjon: - Sentralt plassert ved Mysen jernbanestasjon - Fleksible planløsninger og mulighet for tilpasning - Egner seg for ulike typer virksomhet - Gode parkeringsmuligheter - Synlig beliggenhet med god eksponering Ta kontakt for mer informasjon eller for å avtale visning!
Kontrakts- og leieforhold
Ta kontakt for leietaker oversikt og ytterligere informasjon.
Beliggenhet
Eiendommen har en svært sentral plassering med kort avstand til offentlig kommunikasjon, butikker og øvrige fasiliteter i Mysen sentrum. Nærhet til jernbanestasjonen gjør det enkelt å komme seg til og fra eiendommen, både for ansatte og besøkende.
NB: Knappen for å vise hele beskrivelsen har kun en visuell effekt.
NB: Knappen for å vise hele beskrivelsen har kun en visuell effekt.
Nærområdet

T. Kolstad Eiendom AS
- www.tkeiendom.no -
Annonsene kan være mangelfulle i forhold til lovpålagt opplysningsplikt. Før bindende avtale inngås oppfordres interessenter til å innhente komplett informasjon fra meglerforetaket, selger eller utleier.



























