Bildegalleri

DJI_0698.JPG
Stor næringseiendom med attraktiv beliggenhet selges. Få leietakere og langsiktige kontrakter!
Nøkkelinfo
- Eieform
- Eier (Selveier)
- Tomteareal
- 11 453 m² (eiet)
Type lokale
Fasiliteter
Visning
Ta kontakt for å avtale visning.Beliggenhet
Sunnmøre Næringsmegling AS har gleden av å bistå eierne av Tryggestad Elegante AS, Tryggestad Elegante II AS og Borgundfjordvegen 116 AS med salg av eiendommen Borgundfjordvegen 116 i Ålesund. Eiendommen er beliggende i Spjelkavik, ved sjøen på nedsiden av Borgundfjordvegen, i underkant av en kilometer syd for kjøpesenteret AMFI Moa. Området er et industri- og næringsområde, ca. 10 km øst for Ålesund bysentrum. Eiendommen har en meget god trafikal plassering, i et godt etablert nærings og industriområde i Ålesund. God strategisk plassering med kort vei til både Moa, Ålesund sentrum og fergesambandene Sykkylven/Stranda, Ørsta/Volda og Hareid/Ulsteinvik.
Inneholder
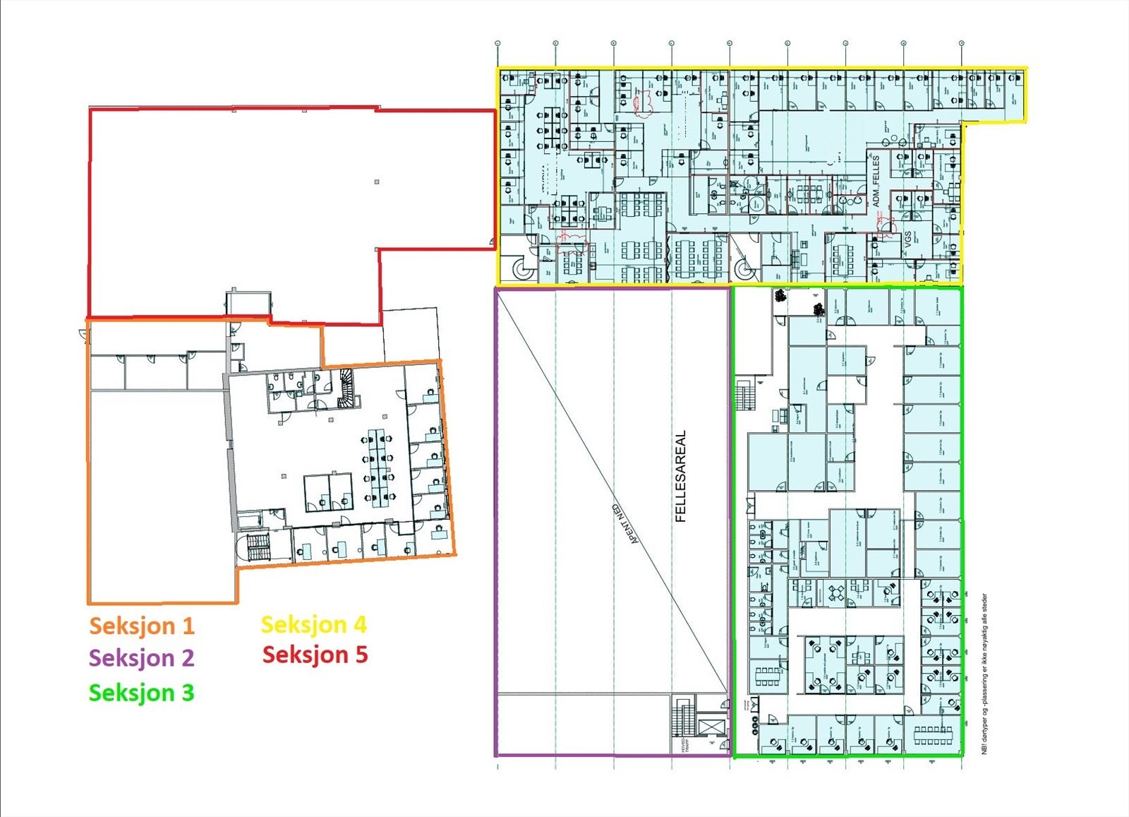
Eiendommen består av fem seksjoner oppført i flere byggetrinn i perioden 1950 til 1994. Totalt areal er på ca 10 115 kvm, hvorav i overkant av 4000 kvm er kontor, og rundt 6000 kvm er lager.
Det er store, solide leietakere i bygget på langsiktige kontrakter (snitt gjenværende leietid ca 7 år). Bto årlige leieinntekter ca NOK 11,2 mill. De fire største leietakerne står for ca 81,6 % av inntektene.
Eiendommen eies per dags dato av tre selskaper. Borgundfjordveien 116 AS eier seksjon 1, Tryggestad Elegante AS eier seksjon 2 og 3, og Tryggestad Elegante II AS eier seksjon 4 og 5. Det er 100% av aksjene i alle selskapene som selges samlet. Selgerne kan være villige til å diskutere salg av eiendommen som et rent eiendomssalg.
Parkering
Det er anlagt parkeringsplasser på felles grunn. Bruksrettigheter iht. seksjoneringsbegjæring og evt. sameievedtekter. 6 stk ladeplasser for el-bil.
Tomt
Tomten ligger i slakt skånende terreng og er opparbeidet med asfalterte kjøre- og biloppstillingsplasser, plastret steinfylling mot sjøen. Tomten som helhet er per dd tilnærmet fullt utnyttet, men det kan være aktuelt å utvide bygningsmassen mot nord i flere etasjer.
Regulering
Nærområdet

SUNNMØRE NÆRINGSMEGLING AS
Annonseinformasjon
| FINN-kode | 431032358 |
|---|---|
| Sist endret | 29. okt. 2025 08:45 |
| Referanse | SMN2.2417 |
Annonsene kan være mangelfulle i forhold til lovpålagt opplysningsplikt. Før bindende avtale inngås oppfordres interessenter til å innhente komplett informasjon fra meglerforetaket, selger eller utleier.



























