Bildegalleri

Billingstadsletta 46
Billingstadsletta - Næringseiendom med god beliggehet til salgs.
Nøkkelinfo
- Bruttoareal
- 1 478 m²
- Eieform
- Eier (Selveier)
- Areal
- 1 478 m²
- Byggeår
- 1987
- Tomteareal
- 2 950 m² (eiet)
Type lokale
Fasiliteter
Visning
Ta kontakt for å avtale visning.Kort om eiendommen
Billingstadsletta 46 er en kombinasjonseiendom over 4 etasjer oppført 1987. Bygget har et areal på BTA 1.478 kvm. og ligger på en romslig eiet tomt på ca. 3 mål med 31 parkeringsplasser. Eiendommen er delvis utleid og selges med gjeldende leieforhold. Salg av AS.
Bebyggelse
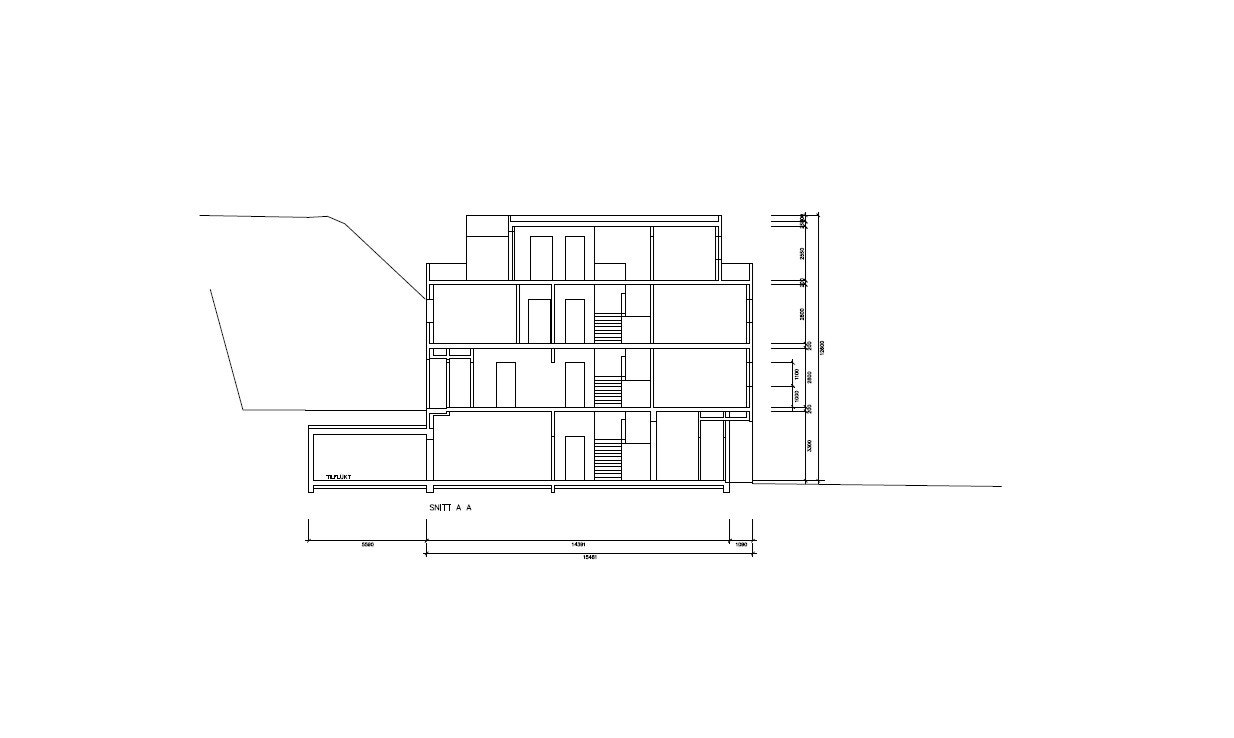
Billingstadsletta 46 er en kombinasjonseiendom med lager og kontorer oppført 1987 og over fire etasjer. Eiendommen ligger i skrånende terreng og har inngang (porter) fra bakkeplan både i underetasjen og 1 etasje.
Beliggenhet
Billingstadsletta 46 ligger i Asker kommune ca. 1 km. fra grensen til Bærum. Billingstadsletta har et stort utvalg av forretninger innen for storhandel og proffshop, samt kontorer.
Enkel adkomst fra E-18 med bil og god parkeringsdekning på eiendommen.
Gangavstand til Billingstad togstasjon. Bussholdeplass rett utenfor eiendommen. Ca. 20 minutter med bil til Oslo og Drammen.
Adkomst
Eiendommen har direkte adkomst fra Billingstadsletta 46. Kort avstand til av/påkjørsel til E-18 på Slependen eller Holmen.
Parkering
Eiendommen har 31 parkeringsplasser.
Tomt
Eiet tomt
Standard
Eiendommen holder normal god kontorstandard og har heis, samt ventilasjonsanlegg med kjøling.
Inneholder
Kombinasjonseiendom BTA 1.478 kvm.
U. etg. BTA 477 kvm.: Inneholder showroom og lager med kjøreporter. Etasjen er utleid.
1 etg. BTA 417 kvm.: Inneholder kontorlokaler, showroom og lager med port fra baksiden av bygget. BTA 127 kvm. er utleid, resterende er ledig.
2. etg. BTA 423 kvm. Inneholder kontorlokaler. Etasjen er ledig.
3. etg. BTA 162 kvm. Inneholder kontorlokaler. Etasjen er utleid.
Diverse
Eiendommen er i gjeldende kommuneplan lagt ut til arealformål vei og grøntareal.
Nærområdet

AREALPARTNER NÆRINGSMEGLING AS
Annonseinformasjon
| FINN-kode | 429809130 |
|---|---|
| Sist endret | 01. okt. 2025 15:13 |
| Referanse | APN1.2513 |
Annonsene kan være mangelfulle i forhold til lovpålagt opplysningsplikt. Før bindende avtale inngås oppfordres interessenter til å innhente komplett informasjon fra meglerforetaket, selger eller utleier.






















