Bildegalleri

Spennende næringseiendom, BTA 1.800 kvm. og tomt på 3,5 daa. God standard
Prisantydning8 000 000 kr
Nøkkelinfo
- Bruksareal
- 1 704 m²
- Areal
- 1 800 m²
- Byggeår
- 1999
- Tomteareal
- 3 478 m²
Type lokale
Kontor
Fasiliteter
Garasje/P-plass
Heis
Kantine
Visning
Ta kontakt for å avtale visning.Om eiendommen
Velkommen til Bergekrossen 4, Forsand.
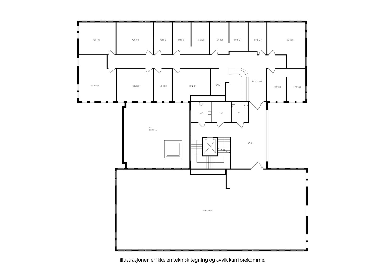
Flott næringseiendom over to etasjer samt underetasje, BTA 1.800 kvm. Tomt på ca. 3,5 daa. med god parkering og eksponering.
Bygget ble oppført i 1999 og holder en gjennomgående god og velholdt standard. Eiendommen har to seksjonsnummer, men er i praksis delt i fire seksjoner, med felles kantine. Seksjonene består i hovedsak av kontorceller, treningsstudio og lager, men er fleksibel for ombygging og tilpassing etter behov. I underetasjen er det god plass for lagring.
Det er p.t. 9 løpende leieavtaler på eiendommen. De fleste har mottatt varsel om oppsigelse, men ønsker å fortsette leieforholdet om det er av interesse for kjøper.
Etter nærmere avtale kan også nabotomt inngå i salget, ca. 2,9 daa. Kontakt megler for nærmere opplysninger.
Flott næringseiendom over to etasjer samt underetasje, BTA 1.800 kvm. Tomt på ca. 3,5 daa. med god parkering og eksponering.
Bygget ble oppført i 1999 og holder en gjennomgående god og velholdt standard. Eiendommen har to seksjonsnummer, men er i praksis delt i fire seksjoner, med felles kantine. Seksjonene består i hovedsak av kontorceller, treningsstudio og lager, men er fleksibel for ombygging og tilpassing etter behov. I underetasjen er det god plass for lagring.
Det er p.t. 9 løpende leieavtaler på eiendommen. De fleste har mottatt varsel om oppsigelse, men ønsker å fortsette leieforholdet om det er av interesse for kjøper.
Etter nærmere avtale kan også nabotomt inngå i salget, ca. 2,9 daa. Kontakt megler for nærmere opplysninger.
NB: Knappen for å vise hele beskrivelsen har kun en visuell effekt.
NB: Knappen for å vise hele beskrivelsen har kun en visuell effekt.
Nyttige lenker
Nærområdet
Aktiv Jæren
Annonseinformasjon
| FINN-kode | 425268874 |
|---|---|
| Sist endret | 03. sep. 2025 09:55 |
| Referanse | 1403250003 |
Annonsene kan være mangelfulle i forhold til lovpålagt opplysningsplikt. Før bindende avtale inngås oppfordres interessenter til å innhente komplett informasjon fra meglerforetaket, selger eller utleier.

































