Bildegalleri

Kanalvegen 1, Forus, ledige seksjoner for salg og til leie.
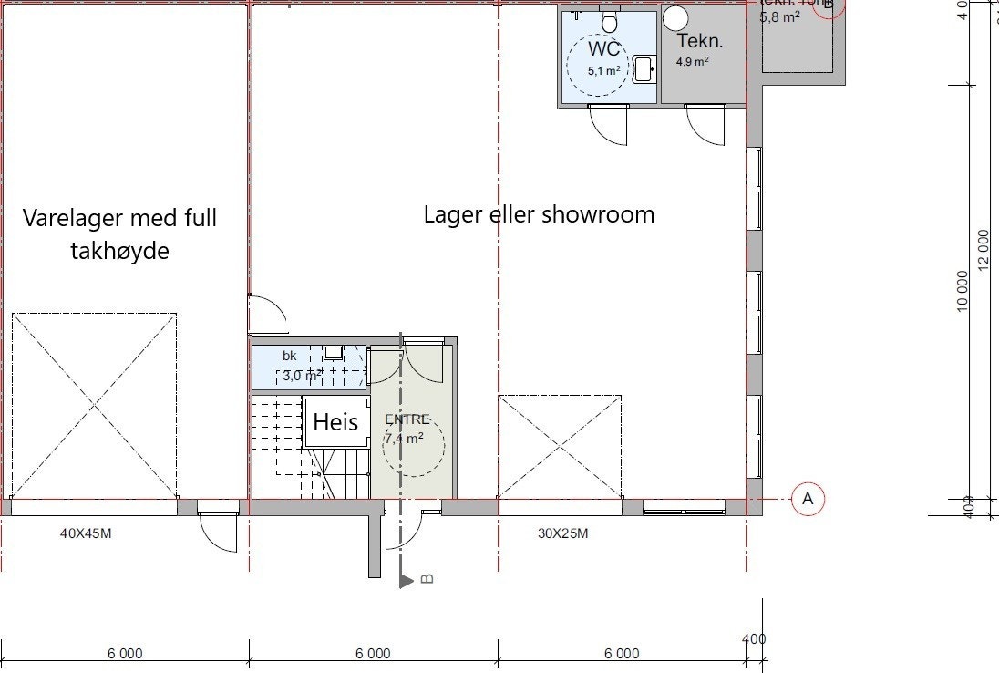
Lager - Næring seksjoner i Betongelement, Forus, Selges som AS
Nøkkelinfo
- Kontorplasser
- 20
- Areal
- 72 - 500 m²
Type lokale
Visning
Om eiendommen
Visste du at Ovea AS tilbyr seksjoner både som AS og eiendom?
Vi tilpasser størrelsen og innholdet etter dine behov – enten du representerer en bedrift eller er privatperson. Ønsker du en uforpliktende prat, er du hjertelig velkommen til å ta kontakt.
Vi bygger i solid betong, som gir minimalt med vedlikehold og lang levetid. Mange har allerede benyttet muligheten til å eie sin egen seksjon fremfor å leie – kanskje det også er aktuelt for deg?
Vi tilbyr blant annet:
Seksjoner for lager, hobby eller kontor
Seksjoner fra 72 m² og oppover
Eget uteområde og oljeutskiller til de som har behov
Salg og utleie i Kanalvegen 1, Forus, Sola
Enten du ønsker plass til bedriften din, lagringsplass for utstyr, bobil eller veteranbil – vi har løsningen.
Pris solgt som AS
72 m2 = 2 290 000 NOK*
144 m2 = 4 580 000 NOK*
*+ mva solgt som AS. Mva. pliktig virksomhet kan få fradrag for mva. Mva. antas å bli ca 12% av kjøpesum.
Pris solgt som eiendom
72 m2 = 2 790 000 NOK*
144 m2 = 5 580 000 NOK*
*+ omkostninger solgt som eiendom.
Kontakt oss i dag for mer informasjon:
Johannes – 415 49 009 | johannes@ovea.no
Magnus – 982 98 419 | magnus@ovea.no
Hvorfor kjøpe seksjon på Forus?
- Bygges i betong - solid og godt isolert
Vi bygger i solide betongelementer. Det gir god isolasjon, lengre levetid og høy kvalitet – perfekt for deg som skal drive seriøst over tid og er opptatt av kvalitet. Kommer du borti bygget med bilen, så er det bilen som får en trøkk og ikke bygget. - Du kan eie lokalet som AS - eller som eiendomsseksjon
Hver seksjon kan selges som et eget aksjeselskap. Ovea tilrettelegger for at du som kjøper skal sikres best mulig start på din/dine næringseiendommer. Ved kjøp som AS gir det deg mulighet til å eie ditt næringslokale på en gunstig måte. Ovea legger til rette for at du kan få all mva. igjen dersom det er aktuelt for deg. Du kan også kjøpe seksjonen som eiendom på tradisjonelt vis.
- Ingen forhåndsbetaling eller innskudd før overtakelse
Hos oss betaler du ingenting før overtakelse. Det betyr lav risiko underveis – du betaler først når lokalet står klart og du får nøkkelen. - Trygg leverandør - bygget står klar for overtakelse i 2026
Salget er allerede godt i gang og det startes med bygging fortløpende.
- Et godt miljø for vekst
På Forus blir du en del av et etablert næringsmiljø, sammen med gründere, håndverkere, små og store bedrifter som vil vokse - og privatpersoner som vil ha en lagringsplass, hobbyverksted eller lignende.
Beliggenhet
Adkomst
Kort avstand til E39 og ca. 10 min til flyplassen.
Ca. 8 min med bil fra Sola, 10 min fra Sandnes og 13 min fra Stavanger.
Standard
Bygget vil være godt isolert og oppføres i solid betongkonstruksjon med høy kvalitet og varig standard. Seksjonene leveres med følgende standard:
40 cm yttervegger i isolerte betongelementer
Takkonstruksjon i stål
Maskinbehandlet betonggulv
Isolerte gulv, vegger og tak
Innervegger i isolerte sandwichpaneler
Port i hver seksjon, 4 x 4,5 meter, med vindusfelt, motor og fjernkontroll
Ytterdør med sylinderlås og 2 nøkler
LED-belysning i tak og over inngangsdør utvendig
Sikringsskap i hver seksjon med strømmåler i hovedtavle
Brannalarm med sensor i hver seksjon
Trekkerrør for fiber
Klargjort for vann og avløp med innlagt stikk og vannkran
Uteområdet asfalteres
I tillegg tilbyr vi en rekke tilvalg og tilpasninger som kan skreddersys etter dine / din virksomhets behov – enten for økt komfort, spesifikke bruksområder eller tekniske krav. Eksempler:
- Varmepumpe tilpasset seksjonens størrelse
- Oljeutskiller med rustfritt sluk
- Deaktiveringsknapp for brannalarm
- Ekstra LED-lysarmatur med høy lysmengde
- Ytterligere vannuttak enn standardoppsett
- Komplett WC-rom med dusjkabinett, varmtvannsbereder og innredning
Vi hjelper deg gjerne med å tilpasse løsningen til dine ønsker.
Innhold
Her er eksempler hva du kan bruke en lagerseksjon til:
- Kombinasjonslokale
Lager og kontorlokale i ett for bedrifter som har behov for lager. Mulighet for å tilpasse kontorlokale med vinduer til å bli moderne og lyse enten i form av cellekontor eller åpent landskap - Showroom
Tilpass ditt eget showroom perfekt for handel eller kundemottak - Bedriftslager
Perfekt for håndverksbedrifter og småbedrifter som trenger plass til utstyr, varer eller materialer - Produksjonslokale
Her kan du ha produksjonslokale tilrettelagt for både små og store produksjonsbedrifter. - Hobbyverksted
Romslig og godt tilrettelagt for verktøy, prosjekter og hobbyaktiviteter. - Ekstra lagerplass for private eiendeler
Om du trenger mer plass hjemme, fordi leiligheten eller boligen er for liten, så er dette en ideell plass - Lagring av kjøretøy
Ideelt for oppbevaring av bil, båt, bobil eller campingvogn – trygt og tilgjengelig året rundt.
Nyttige lenker
Nærområdet
OVEA AS
Johannes Bøe
Magnus Skretting
Annonseinformasjon
| FINN-kode | 424748826 |
|---|---|
| Sist endret | 26. feb. 2026 16:48 |
| Referanse | X Ovea Kanalvegen X |
Annonsene kan være mangelfulle i forhold til lovpålagt opplysningsplikt. Før bindende avtale inngås oppfordres interessenter til å innhente komplett informasjon fra meglerforetaket, selger eller utleier.




















