Bildegalleri

Byggevarehus på 3 700 kvm BTA med svært gode utelagringsmuligheter
Nøkkelinfo
- Bruttoareal
- 3 700 m²
- Eieform
- Eier (Selveier)
- Areal
- 3 700 m²
- Tomteareal
- 13 000 m² (eiet)
Type lokale
Visning
Ta kontakt for å avtale visning.Kort om eiendommen
Byggevarehus på ca. 3 700 kvm BTA, med tilhørende tomt på ca. 13 mål på Lonelier i Søgne. Eiendommen fremstår som godt vedlikeholdt, har har blant annet blitt påbygd senest i 2020. Det er svært gode utelagringsmuligheter, i tillegg til parkeringsareal. Innholdsmessig består bygget av kontorareal på ca. 1 050 kvm BTA, showroom og lagerarealer.
Beliggenhet
Eiendommen har en sentral beliggenhet på Lonelier Industriområde, omtrent 15 minutters kjøring fra både Kristiansand og Mandal. Det er kort avstand til nye E39 med egen avkjøring, hvilket har gjort til at området har fått et vesentlig løft, og anses som attraktivt for etablering av nye typer næringer. I avkjøringen til E39 er det tilrettelagt for overgang til og fra kollektivtransport med egne tilhørende parkeringsplasser.
Innhold
Eiendommen består i dag av et bygg med gjennomgående god standard. Opprinnelig besto eiendommen av to separate bygg fra 1980-tallet, men disse har i ettertid blitt påbygget og modernisert i flere omganger. Den siste oppgraderingen ble gjennomført i 2020, da byggene ble slått sammen og det ble etablert en ny butikk/showroom. Resultatet er en moderne og attraktiv eiendom med svært gode lagringsmuligheter og fasiliteter som egner seg godt til showroom.
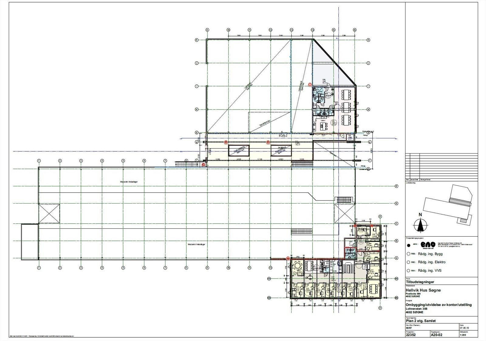
Bygingens areal kan beskrives som følger:
1. etasje
Kaldtlager: ca. 1 800 kvm BTA. Takhøyde ca. 8 meter med kjøreport i hver ende for gjennomkjøring.
Kontorareal: 250 kvm BTA.
Showroom/kontor nybygg: ca. 550 kvm BTA.
Varmtlager samt listlager: ca. 550 kvm BTA. Egen kjøreport.
2. etasje
Kontorareal: 250 kvm BTA.
Showroom/utstilling: 180 kvm BTA.
Kantine og garderobe inkl. lager: 120 kvm BTA.
Samlet areal utgjør ca. 3 700 kvm BTA. Areal er anslagsvis målt på tegninger og ikke kontrollert.
Standard
De deler av eiendommen som utgjør kontor, samt nybygget som ble oppført i 2020, holder en god standard. De øvrige delene av bygget holder en moderat, men funksjonell standard.
Info leieavtaler
Eiendommen leveres fri for leietakere.
Beskrivelse av tomt
Tomten er i all hovedsak planert og asfaltert. Det er rikelig med parkeringsareal rundt bygget, samt gode utelagringsmuligheter.
Eiendommen skal fradeles i forkant av evt. salg, slik at samlet tomteareal kun består av planert areal.
Parkering
Det er rikelig med parkeringsplasser på eiendommen.
Regulering
Nyttige lenker
Nærområdet
Næringsmegleren
Annonseinformasjon
| FINN-kode | 423063716 |
|---|---|
| Sist endret | 22. aug. 2025 03:00 |
| Referanse | 1-0058/25 |
Annonsene kan være mangelfulle i forhold til lovpålagt opplysningsplikt. Før bindende avtale inngås oppfordres interessenter til å innhente komplett informasjon fra meglerforetaket, selger eller utleier.






























































