Bildegalleri

Næringsseksjon med høy eksponering mot Karmsundgata
Næringsseksjon med høy eksponering mot Karmsundgata
Nøkkelinfo
- Bruksareal
- 490 m²
- Eieform
- Eier (Selveier)
- Areal
- 490 m²
- Byggeår
- 1983
- Tomteareal
- 252 m² (eiet)
- Overtakelse
- Etter nærmere avtale. Det oppfordres til å legge inn ønsket overtakelse i budet.
Type lokale
Kort om eiendommen
Nå har du mulighet til å sikre deg en strategisk og synlig næringseiendom med fantastisk beliggenhet langs en av Haugesunds mest trafikkerte hovedårer Karmsundgata.
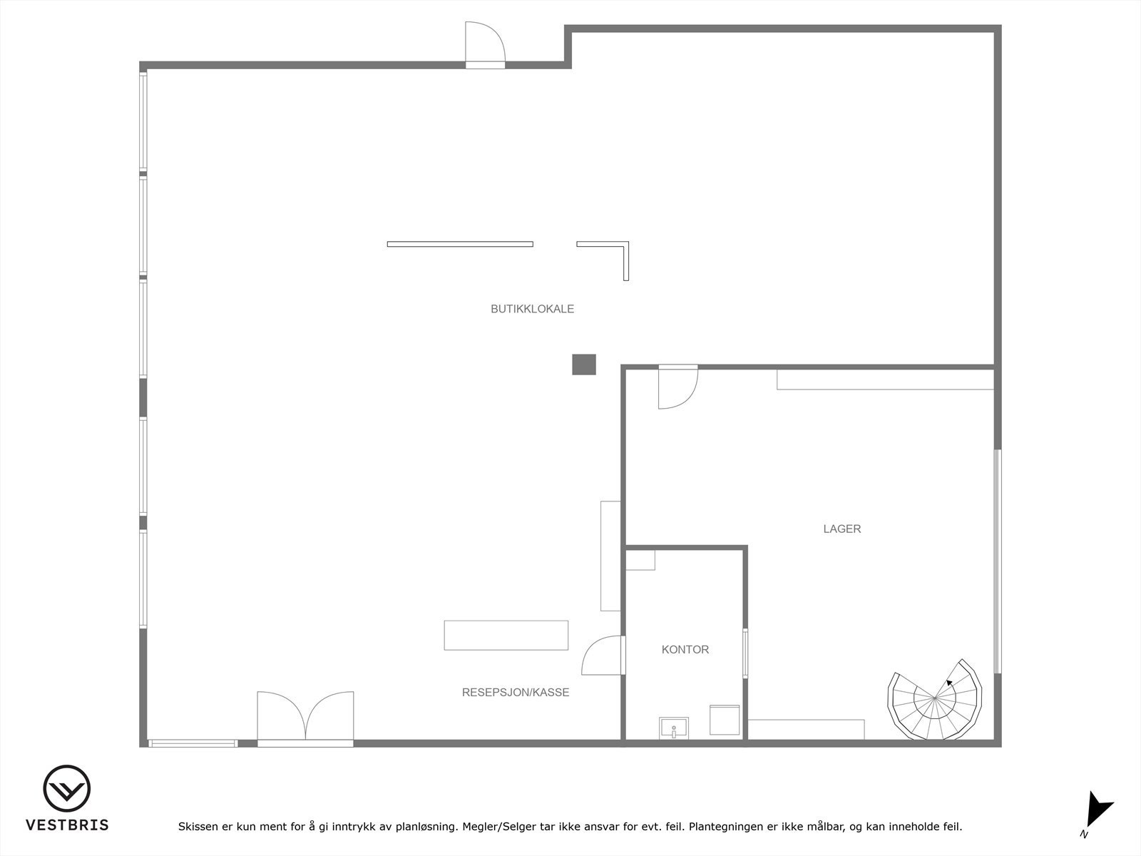
Seksjon 4 av totalt 4 i bygget selges. Lokalet er på ca. 265 kvm i 1. etasje, med tilhørende lagerloft på ca. 225 kvm. Dette er et praktisk og fleksibelt kombinasjonslokale som passer svært godt for virksomheter innen detaljhandel, showroom, håndverk, lager og service.
Beliggenhet
Eiendommen ligger midt i Haugesunds mest trafikkerte hovedåre, Karmsundgata med kort avstand til sentrum og lett tilgjengelig fra både sør og nord. Nærområdet består av ulike handels- og servicetilbud som trekker trafikk til området.
Innhold
1. etasje:
- Butikklokale med store vindusflater mot Karmsundgata meget god eksponering.
- Kontor med tilknytning til butikk og lager.
- Varemottak / lager med kjøreport og spiraltrapp opp til lagerloft.
2. etasje:
Lagerloft med god takhøyde og elektrisk kran for løft av varer og paller.
Kundeparkering like utenfor inngang.
Enkel adkomst og effektiv varelogistikk.
Tomt
Felles tomt med eksklusiv bruksrett på tildelte områder i.h.h.t sameievedtekter. Tomt til seksjon består av byggegrunn samt tilhørende uteareal på ca. 252 kvm. En del av utvendig areal som tilhører seksjonen er gang -og sykkelvei samt grøntområde. Se vedlagt kart og sameievedtekter.
Standard
Næringsseksjonen fremstår som romslig, funksjonell og fleksibel Godt tilpasset dagens virksomhet med butikk og lager. Lokalet er opprinnelig oppført i 1983 og holder en gjennomgående enkel, men grei standard. Det er god takhøyde i 1. etasje, samt praktisk planløsning med adskilte soner for ulike formål. Loftsetasjen kan fjernes i deler av lokalet eller i sin helhet ved behov for bedre frihøyde. Toalettfasiliteter er delt med snr. 1. Eiendommen har generelt et godt utgangspunkt for videre utvikling og tilpasning etter kjøpers behov. Bygget er solid fundamentert og har god bærestruktur. Vinduer og dører er originale fra byggeår og fungerer tilfredsstillende, men nærmer seg forventet levetid
Oppvarming
Elektrisk oppvarming. Varmepumpe i butikklokale.
Energimerking
Det foreligger ikke energisertifikat på denne eiendommen pr. i dag. Kjøper blir selv ansvarlig for eventuelt å innhente et energisertifikat på eiendommen. Så lenge energiattest ikke foreligger bør interessenter legge til grunn at eiendommen har laveste energiklasse.
Parkering
Tilhørende parkeringsareal. Dette fremkommer av kart i salgsoppgaven.
Overtakelse
Etter nærmere avtale. Det oppfordres til å legge inn ønsket overtakelse i budet.
Sentrale lover
Oppdraget reguleres i henhold til Lov om eiendomsmegling av 29.06.2007 nr. 73. Fravikeligheten som framgår av lovens § 1-3 og forskriftens § 1-2 er anvendt for dette oppdraget.
Eiendommen og dens tilbehør overtas "som den/det er", jfr. avhendingsloven § 3-9.
Kjøper fraskriver seg, så langt gjeldende rett tillater det, enhver rett til å gjøre krav gjeldende mot selger som følge av at salgsobjektet ikke er som det skal være, i medhold av avhendingsloven § 3-7, 3-8 og 3-9, andre regler om ansvar for uriktig og manglende opplysninger og ethvert annet lovfestet eller ulovfestet grunnlag, herunder regler om ansvar for uriktige og manglende opplysninger etter avtaleloven.
Avhendingsloven § 4-19 (2) fravikes også, slik at den endelige reklamasjonsfristen settes til 18 måneder etter overtakelse.
Informasjonen i denne salgsoppgaven med vedlegg er mottatt fra selger / takstmann og forutsettes gjennomgått i detalj før bindende bud inngis. Eiendommene forutsettes besiktiget, og det anbefales at kjøper selv kontrollerer eiendommenes tekniske tilstand ved bruk av egne fagfolk, samt at man gjennomgår leiekontrakter og annen relevant informasjon om eiendommene.
Alle opplysninger i denne salgsoppgaven med vedlegg er tilrettelagt og bearbeidet av megleren etter beste skjønn, men megleren kan ikke ta ansvaret for at informasjonen er riktig eller fullstendig. Enhver som investerer i næringseiendom, må på egen hånd forsikre seg om at opplysningene er riktige og fullstendige. Megleren fraskriver seg ethvert ansvar for tap som følge av opplysninger som er misvisende, feilaktig eller ufullstendig, samt tap som på annen måte måtte oppstå som følge av investeringen.
Selger er ikke kjent med ufullstendigheter eller feil i rapporter e.l. som er utarbeidet av tredjemann.
Selger gir ingen garantier i forhold til praktiske eller økonomiske konsekvenser for Kjøper opp mot forurensing i grunn, forhold av arkeologisk interesse eller grunnforholdene på eiendommen i sin alminnelighet.
Det gjøres oppmerksom på regler om avskrivning av faste tekniske installasjoner i avskrivbare bygninger. Partene har selv ansvaret for å sette seg inn i regelverket og konsekvensene av dette. Megler er uten ansvar for konsekvenser reglene påfører partene.
Kjøpekontrakt utarbeidet av Forum for Næringsmeglere skal benyttes i denne transaksjonen. Med mindre den enkelte interessent i sitt kjøpstilbud tar spesielle forbehold eller angir konkrete endringer av ordlyden i denne kontrakt, vil man ved aksept av kjøpstilbud fra selger ha inngått avtale med utgangspunkt i denne kjøpekontrakt.
Interessenter og kjøper må godta at selger og megler bruker elektronisk kommunikasjon i salgsprosessen.
Partene må selv foreta avregning av kommunale avgifter, felleskostnader samt eventuelle feste-/leieinntekter og lignende i forbindelse med oppgjøret. Megler foretar ingen pro & contra pr. overtagelsesdato.
Selger forbeholder seg retten til å foreta kredittvurdering av kjøpere.
Ferdigattest / Brukstillatelse
Det er utstedt midlertidig brukstillatelse den 25.09.1990 for tilbygg lager. At slik tillatelse eksisterer gir ingen garanti for at det ikke senere er utført arbeider som ikke er byggemeldt/godkjent.
Hvitvaskingsregelverk
I henhold til Lov av 6. mars 2009 nr. 11 om tiltak mot hvitvasking og terrorfinansiering (Hvitvaskingsloven) er megler pliktig å gjennomføre kundetiltak av både oppdragsgiver og kjøper.
Dette innebærer blant annet plikt for meglerforetaket til å bekrefte identiteten til kjøper på grunnlag av gyldig legitimasjon. Samt plikt til å foreta kontroll av eventuelle reelle rettighetshavere. Der kjøper opptrer i henhold til fullmakt må også fullmaktsgivers identitet bekreftes på grunnlag av gyldig leg. Kundetiltak av kjøper, skal senest skje på kontraktsmøtet.
Dersom budgiver opptrer i henhold til fullmakt, må fullmakten fremlegges samtidig som bud inngis. Dersom kjøper er en juridisk person (AS mv.) plikter kjøper å fylle ut og returnere egne kundekontrollskjemaer før kontraktsmøtet. Firmaattest eller fullmakt må fremlegges samtidig som det inngis bud.
Dersom kundetiltak ikke kan gjennomføres kan ikke meglerforetaket bistå med gjennomføring av handelen, herunder ikke foreta oppgjør. Meglerforetaket er videre forpliktet til å rapportere mistenkelige transaksjoner til Økokrim. Med mistenkelig transaksjon menes transaksjon som mistenkes å involvere utbytte fra straffbar handling eller som skjer som ledd i terrorfinansiering. Manglende mulighet for kundetiltak kan også være et forhold som gjør transaksjonen mistenkelig. Det kan ikke gjøres ansvar gjeldende motmeglerforetaket som følge av at meglerforetaket overholder sine plikter etter Hvitvaskingsloven.
Budgivning
Bud må inngis skriftlig og minst inneholde budgivers navn og kontaktinformasjon, budets størrelse, frist for selger til å akseptere budet (akseptfrist), finansieringsplan samt eventuelle forbehold.
Bud må inngis av korrekt person i henhold til firmaattest eller ved fullmakt.
Selger har rett til å ignorere eller avslå ethvert bud, uten begrunnelse. Megler kan formidle avslag eller aksept på vegne av selger.
Vedlegg til salgsoppgaven
- Offentlig informasjon fra kommunen
- Grunnbok
- Tinglyste heftelser og rettigheter
- Seksjoneringsbegjæring
- Siste årsregnskap sameiet
- Sameievedtekter
Diverse
Kjøper oppfordres til å foreta egne undersøkelser, gjerne med bistand av bygningskyndig/takstmann.
Selger har lest og godkjent innholdet i salgsoppgaven.
Regulering
Eiendommen ligger i et område regulert til næringsformål. (Industri/serviceformål)
Eldre reguleringsplan fra 1979 med planid: 1106_RL901.
Det er reguleringsplan/områdeplan under planlegging med id: RL1749 (områdeplan Storasund). Arealformål: boligbebyggelse. https://www.arealplaner.no/1106/arealplaner/495.
Kommuneplan Id 1106plan-kp3 og Id RL1699 kommunedelplan for Fv47 Karmsundgt-Tittelsnesvn, mellom E134 og Kringlehaugvegen.
Kommuneplan under arbeid Id 202203.
Nyttige lenker
Nærområdet
EiendomsMegler 1 Haugesund
Annonseinformasjon
| FINN-kode | 423027732 |
|---|---|
| Sist endret | 28. nov. 2025 08:38 |
| Referanse | 2501250225 |
Annonsene kan være mangelfulle i forhold til lovpålagt opplysningsplikt. Før bindende avtale inngås oppfordres interessenter til å innhente komplett informasjon fra meglerforetaket, selger eller utleier.















