Bildegalleri

Dreggen Kro - et ikonisk landemerke midt i hjertet av Svelvik! Her møtes historie og smak i en varm og trivelig atmosfære, perfekt for både hverdagslunsj og spesielle anledninger.
Dreggen kro: Populært næringslokale til salgs m/AS | Fantastisk beliggenhet | Meget godt besøkt i lokalmiljøet
Nøkkelinfo
- Etasje
- 1.
- Eieform
- Eier (Selveier)
- Areal
- 322 m²
- Byggeår
- 1900
- Tomt
- Festet
Type lokale
Fasiliteter
Visning
Informasjon om eiendommen
Eiendom
Storgaten 57, 3060 SVELVIK, Etasje:1
Matrikkel
gnr. 339, bnr. 79, snr. 1 i Drammen kommune.
Eierform
Eierseksjon
Prisantydning
6 500 000
Beskrivelse
Beskrivelse
Dreggen Kro & Vertshus i Svelvik er et populært og inkluderende møtested, idyllisk plassert ved vannkanten midt i sentrum. Lokalet fungerer ikke bare som restaurant, men også som pub og kulturelt samlingspunkt. Her arrangeres alt fra quizkvelder og konserter til selskaper og andre sosiale sammenkomster. Med skjenkebevilling og en varm, uformell atmosfære er Dreggen et naturlig midtpunkt i byens uteliv.
Mange av arrangementene tiltrekker seg jevnlig stort publikum, og Dreggen omtales ofte som hjertet i Svelviks sosiale liv.
Beliggenheten rett ved Svelvikstrømmen og bryggeområdet forsterker byens rykte som "Norges nordligste sørlandsby". Området preges av godt bevarte bygårder fra tidlig 1900-tall, ofte med utsikt mot fjorden. Kombinasjonen av historisk sjarm og sjønær beliggenhet gjør eiendommen svært attraktiv for næringsvirksomhet, med både gate- og vannfront.
Les mer om dagens drift av Dreggen her: Dreggenkro.no
Areal
BTA: 377 m2
BRA 322 m2 ifølge vedlagt næringstakst og inneholder følgende:
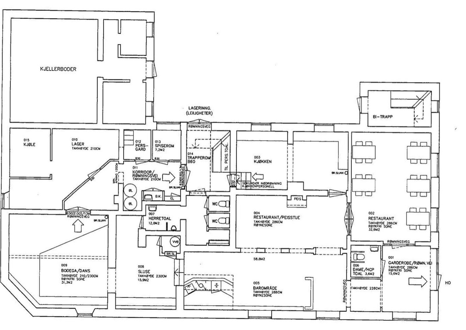
Næringsdelen består av restaurant - pub, toaletter, HC-toalett, garderobe/wc/kott, varemottak/trapperom, lagerrom, kjøl og kjøkken.
Tomt
Ifølge Drammen kommune: ca. 812 kvm felles festet tomt.
Parkering
Gode parkeringsmuligheter rett ved siden av lokalet og ellers gateparkering.
Beliggenhet
Beliggenhet
Storgaten 57, også kalt Dreggen i Svelvik ligger meget sentralt og synlig til. Beliggenheten rett ved Svelvikstrømmen og bryggeområdet forsterker byens rykte som "Norges nordligste sørlandsby". Mange av arrangementene tiltrekker seg jevnlig stort publikum, og Dreggen omtales ofte som hjertet i Svelviks sosiale liv.
Bebyggelse
Området preges av godt bevarte bygårder fra tidlig 1900-tall, ofte med utsikt mot fjorden. Kombinasjonen av historisk sjarm og sjønær beliggenhet gjør eiendommen svært attraktiv for næringsvirksomhet, med både gate- og vannfront.
Adkomst
Svinger ned rett ved Svelvik Kirke mot Svelvikstrømmen. Gode parkeringsmuligheter på bryggen, samt holdeplass for buss rett ved og ferjeavganger over til Hurum-landet.
Offentlig kommunikasjon
Holdeplass for buss 1 minutts gange fra lokalet med avganger retning Drammen og Berger.
Ca. 270 meter til Svelvik - Verket båtferje med hyppige avganger.
Med bil tar det
- ca. 26 minutter til Sande
- ca. 30 minutter til Drammen sentrum
- ca. 39 minutter til Asker
- ca. 43 minutter til Sandvika
- ca. 60 minutter til Oslo
Innhold
Inneholder
Næringsdelen består av restaurant - pub, toaletter, HC-toalett, garderobe/wc/kott, varemottak/trapperom, lagerrom, kjøl og kjøkken.
Byggemåte
Næringseiendom består av et kombinert bolig-/næringsbygg på 3-4 etasjer med selveierenheter / seksjoner. Bestiktiget næringsdel på et plan, seksjonsnummer 1, ligger i u.etasje og består av restaurant-pub med bod lager på siden. Uteservering i bakgården og ned i mot svelvikstrømmen.
Drenering: Skal være bygget opp på drenerende masser.
Grunn og fundamenter: Betongfundament på antatt stabile masser. Grunnmur består granittstein - betong.
Ytterveggskonstruksjon: Yttervegger består av murkonstruksjon, utvendig pusset - behandlet.
Fasader: Utvendig pusset murfasade.
Utvendige dører og vinduer: Inngangsdøra av tre med glassfelt. Vinduer av tre med tolags isolerglass. Standard tredører.
Takkonstruksjon: Takkonstruksjon av tre.
Taktekking: Tak er tekket med stålplater.
Renner, nedløp og beslag: Renner og nedløp av stål. Varmekabel i renner.
Innvendige overflater gulv: Betongdekke, tekket med fliser.
Innvendige overflater vegg: Innvendige veggflater har malte flater - panel.
Innvendige overflater himling: Himlinger har malte flater.
Kjøkkeninnredning: Storkjøkken, tilpasset restaurantdrift.
Sanitær primæranlegg: HC-toalett med servant og wc. Dame-/herretoalett med servant og wc.
Ventilasjon primæranlegg: Ventilasjon, tilpasset drift.
Elektrisk primæranlegg: Elektrisk opplegg er tilpasset bygg og bruk.
Terrasser og balkonger: Uteplass og terrasser for uteservering. Asfaltert og platåer med belegningsstein.
Standard
Standard
For den utfyllende tekniske standard for øvrig, henvises det til vedlagte tilstandsrapport.
Energi
Elektrisk anlegg
Det elektriske anlegget er ikke kontrollert. Kjøper påtar ansvar og risiko.
Energimerking
Det foreligger ikke energiattest. Kjøper må selv gjøre egne undersøkelser.
Selger opplyser om følgende:
Strømleverandør: Ishavskraft
Antall kwh per 01.08.25: 15.995kwh
Økonomi/drift
Kommunale avgifter
25 274
Det gjøres oppmerksom på at det kan forekomme variasjoner i avgiftene som følge av forbruk og eventuelle endringer i gebyrer/avgifter.
Eiendomskatt
Det er ikke eiendomsskatt pr. dags dato
Felleskostnader
Fellesutgifter: kr 2 995
Strøm i fellesarealer
Diverse
Annet
Gjeldende prisantydning er salg av næringslokalet i tillegg til AS med drift av virksomhet.
Både lokalet og / eller AS kan selges separat.
Det er anledning til å kjøpe flere seksjoner i sameiet. Både leilighets- og næringsseksjon.
Eiendommen selges møblert med innbo/løsøre slik den fremstår på visning med unntak av gjenstander/innbo/løsøre som selger ønsker å ta med videre. I de tilfeller det medfølger hvitevarer, overleveres disse uten noen form for garanti utover leverandørgaranti.
Megler har ikke klart å innhente festekontrakt fra kommunen pr. 13.08.25
Selger opplyser om at det innbetales 900 kr i festeavgift pr. år til Drammen kommune.
Uautorisert kopiering eller gjenbruk av all tekst og alle bilder i denne annonse/salgsoppgave er ikke tillatt.
Offentlige forhold
Forpliktelser, rettigheter og servitutter
Eiendommens servitutter følger av dens grunnboksblad. For servitutter eldre enn fradelingsdato og eventuelle arealoppføringer som kan ha betydning for denne matrikkelenhet henvises det til hovedbruket / avgivereiendommen. For festenummer gjelder henvisningen servitutter eldre enn festekontrakten. Ta kontakt med megler for mer informasjon.
Regulering
Kommunedelplan - Kommunedelplan Svelvik sentrum (8.9.2003)
Båndlegging etter lov om kulturminner, Kommuneplanens arealdel for Drammen kommune 2025-2037 (18.6.2025) 2.61m2
Bevaring kulturmiljø, Kommuneplanens arealdel for Drammen kommune 2025-2037 (18.6.2025) 812.39m2
Byggegrense, Kommuneplanens arealdel for Drammen kommune 2025-2037 (18.6.2025)
Flomfare, Kommuneplanens arealdel for Drammen kommune 2025-2037 (18.6.2025) 58.13m2
Ras- og skredfare, Kommuneplanens arealdel for Drammen kommune 2025-2037 (18.6.2025) 812.39m2
Sentrumsformål - Nåværende, Kommuneplanens arealdel for Drammen kommune 2025-2037 (18.6.2025) 812.39m
Midlertidig brukstillatelse og ferdigattest
Det foreligger ferdigattest for ominnredning og bruksendring av del av restaurant datert 21.08.2003.
Det foreligger ferdigattest for en mindre fasadeendring og en mindre ombygging innvendig datert 06.06.2007.
Det foreligger ferdigattest for etablering av uteservering og oppsetting av rekkverk med vindskjerm datert 13.12.2021.
Kjøper overtar eiendommen slik den fremstår på visning.
Kjøpsvilkår
Overtagelse
Overtagelse etter avtale med selger.
Prisantydning, omkostninger og evt. fellesgjeld
kr 6 500 000-, (Prisantydning)
Omkostninger:
kr 162 500,00,- (Dokumentavgift)
kr 240,00,- (Pantattest kjøper)
kr 500,00,- (Tingl.gebyr pantedokument)
kr 500,00,- (Tingl.gebyr skjøte)
--------------------------------------------
kr 6 663 740,- (Omkostninger totalt ved prisantydning)
--------------------------------------------
kr 6 663 740,- (Totalpris inkl. omkostninger)
Betalingsbetingelser
Fullstendig kjøpesum samt evt omkostninger skal være disponibelt på meglers klientkonto innen dato for overtagelse. Kjøpesummen skal innbetales fra norsk finansinstitusjon og/eller kjøpers konto i norsk finansinstitusjon. Eventuell egenkapital skal innbetales i én samlet betaling fra kjøpers egen konto i norsk finansinstitusjon.
Oppdragsnummer
46250179
Kjøpsinformasjon
Oppdragsnummer
46250179
Lovanvendelse
Generelle bestemmelser
Salgsoppgaven er basert på de opplysningene selger har gitt til megler, tilstandsrapport, opplysninger innhentet fra kommunen, Kartverket og andre tilgjengelige kilder. Det er viktig at kjøper setter seg grundig inn i alle salgsdokumentene, herunder salgsoppgave, tilstandsrapport og selgers egenerklæring. Kjøper anses kjent med forhold som er tydelig beskrevet i salgsdokumentene, og slike forhold kan ikke påberopes som mangler. Dette gjelder uavhengig av om kjøper har lest dokumentene. Alle interessenter oppfordres til å undersøke eiendommen nøye, gjerne sammen med fagkyndig før bud inngis. Kjøper
som velger å kjøpe usett kan ikke gjøre gjeldende som mangel noe han burde blitt kjent med ved undersøkelsen. Dersom det er behov for avklaringer, anbefaler vi at interessenter rådfører seg med
eiendomsmegler eller egne rådgivere før det legges inn bud. En eiendom/et lokale som har blitt brukt i en viss tid, har vanligvis blitt utsatt for slitasje og skader kan ha oppstått. Bruksslitasje og at det kan avdekkes forhold etter overtakelse som nødvendiggjør utbedringer, må kjøper forvente. Kjøper og selgers rettigheter og plikter reguleres av avtalen mellom partene, samt informasjonen som har vært tilgjengelig for kjøperen i forbindelse med handelen. Avtalen utfylles av avhendingsloven. Salget forutsettes gjennomført mellom profesjonelle parter. Der kjøper er en juridisk person, eller en fysisk person som hovedsakelig handler som ledd i næringsvirksomhet, er kjøpet ikke å anse som et forbrukerkjøp.
Avtalevilkår
Eiendommen har en mangel dersom den ikke er i samsvar med kravene som følger av avtalen. Eiendommen selges som den er , og selgers ansvar utover det konkret avtalte er da begrenset etter avhendingsloven § 3-9, første ledd andre setning. Avhendingsloven § 3-3 andre ledd fravikes, og eventuell uriktige angivelser av Eiendommenes arealer (utvendige og innvendige) kan ikke under noen omstendighet. Avhendingsloven § 4-19 (2) fravikes, slik at den endelige reklamasjonsfristen settes til 1 år etter overtakelse. Informasjon om kjøpers undersøkelsesplikt, herunder oppfordringen om å undersøke eiendommen nøye, gjelder også for kjøpere som ikke anses som forbrukere. Selger står fritt til å forkaste eller akseptere ethvert bud, og er for eksempel ikke forpliktet til å akseptere høyeste bud.
Hvitvasking
Eiendomsmegler er underlagt lov om hvitvasking og tilhørende forskrift. Hvitvaskingsloven pålegger megler å gjennomføre kundetiltak av både selger og kjøper. Dersom kjøper ikke bidrar til at megler får gjennomført kundetiltak, og dette medfører at transaksjonen ikke kan gjennomføres eller blir forsinket misligholder kjøper avtalen. Dette vil kunne gi selger rettigheter etter avhendingsloven, herunder rett til å heve kjøpet og gjennomføre dekningssalg for kjøpers regning dersom misligholdet er vesentlig. I tilfeller der det er selger som ikke bidrar til at megler får gjennomført løpende kundetiltak underveis i oppdraget må megler stanse gjennomføringen av transaksjonen. Selger vil i så fall ha misligholdt sine forpliktelser, og kjøper vil kunne ha krav mot selger etter avhendingslovens bestemmelser om mislighold og forsinkelse.
Dersom kundetiltak ikke lar seg gjennomføre vil EIE eiendomsmegling ikke kunne bistå med handelen eller foreta oppgjør.
Personvern
Som interessent, budgiver og kjøper vil dine personopplysninger bli registrert og lagret. Som eiendomsmeglingsforetak har vi plikt til å oppbevare kontrakter og dokumenter i minst 10 år, jf. eiendomsmeglingsforskriften § 3-7 (3). Dette innebærer at mulighetene for å få slettet personopplysninger er begrenset. Du kan lese om vår behandling av personopplysninger i vår personvernerklæring på https://eie.no/eiendom/personvernerklaering
Megler
Avdeling
EIE Drammen Bragernes
EIE Drammen
Org. nr 932 843 765
Nedre Storgate 13
3015 DRAMMEN
Tlf: +47 41 40 60 00
Ansvarlig megler
Hossein Sediqi Eiendomsmegler / Partner
Joachim Borg Eiendomsmegler / Partner
Saksbehandlere
Hossein Sediqi
Eiendomsmegler / Partner
Mob: +47 995 27 446 / E-post: hos@eie.no
Joachim Antonsen Borg
Eiendomsmegler / Partner
Mob: +47 90 03 03 10 / E-post: jb@eie.no
Produkter eller tjenester som tilbys partene i forbindelse med oppdraget
Meglerforetaket og EIE-kjeden har flere samarbeidspartnere som tilbyr produkter eller tjenester i forbindelse med gjennomføring av megleroppdraget.
Dette gjelder følgende:
- Gjensidige forsikring tilbyr boligselger- og boligkjøperforsikring samt forsikringsløsninger til selger og kjøper
- Overo leverer oppgjørsskjema og overtakelsesprotokoll for EIE. Kunder tilbys ulike leverandører for strøm, alarm og bredbånd avhengig av tilbydere i kundens nærområde
- EIE AS, som er franchisegiver for EIE-kjeden, og enkelte meglerkontor i EIE-kjeden har eierinteresser i Bomega AS (Hjem.no)
- Finit Deleie tilbyr deleie på enkelte objekter
- Secundo er en markedsplass for salg av bruktgjenstander
Les mer om våre samarbeid og investeringer her: eie.no/eiendom/eie-investerer
Nyttige lenker
Nærområdet
EIE eiendomsmegling Drammen
Annonseinformasjon
| FINN-kode | 421641538 |
|---|---|
| Sist endret | 16. aug. 2025 17:58 |
| Referanse | 46250179 |
Annonsene kan være mangelfulle i forhold til lovpålagt opplysningsplikt. Før bindende avtale inngås oppfordres interessenter til å innhente komplett informasjon fra meglerforetaket, selger eller utleier.

































