Bildegalleri

Markveien 17 B (midterste seksjonen).

Næringseiendom i attraktivt næringsområde - God beliggenhet & god synlighet - Kan sees i sammenheng med naboseksjon!

Prisantydning6 600 000 kr
Totalpris
6 601 090 kr
Omkostninger
1 090 kr
Kommunale avg.
13 800 kr per år

Nøkkelinfo

Etasje
2.
Eieform
Eier (Selveier)
Areal
368 m²
Byggeår
2001
Tomteareal
191 m²

Type lokale

Butikk/Handel

Visning

Ta kontakt for å avtale visning.Visningspåmelding

Kort om eiendommen

Attraktiv næringseiendom til salgs i etablert industriområde på Sortland! Seksjonen, en del av en større industribygning oppført i 2001, holder god standard og fremstår med normalt vedlikeholdt preg. Bygget har funksjonelle kontor- og lagerlokaler over to etasjer.

Eiendommen har adresse til Markveien, med kort gangavstand til Sortland sentrum, og ligger i et område i utvikling med flere bilforretninger og næringsvirksomheter. Utearealene er asfalterte og byr på gode parkeringsmuligheter.

Seksjonen er på 368 kvm BRA. For de som behøver litt mer plass er også naboseksjonen til salgs.

Lokalet er i dag utleid til GK Norge AS. En solid eiendom med sentral beliggenhet i Vesterålens regionsenter!

Innhold

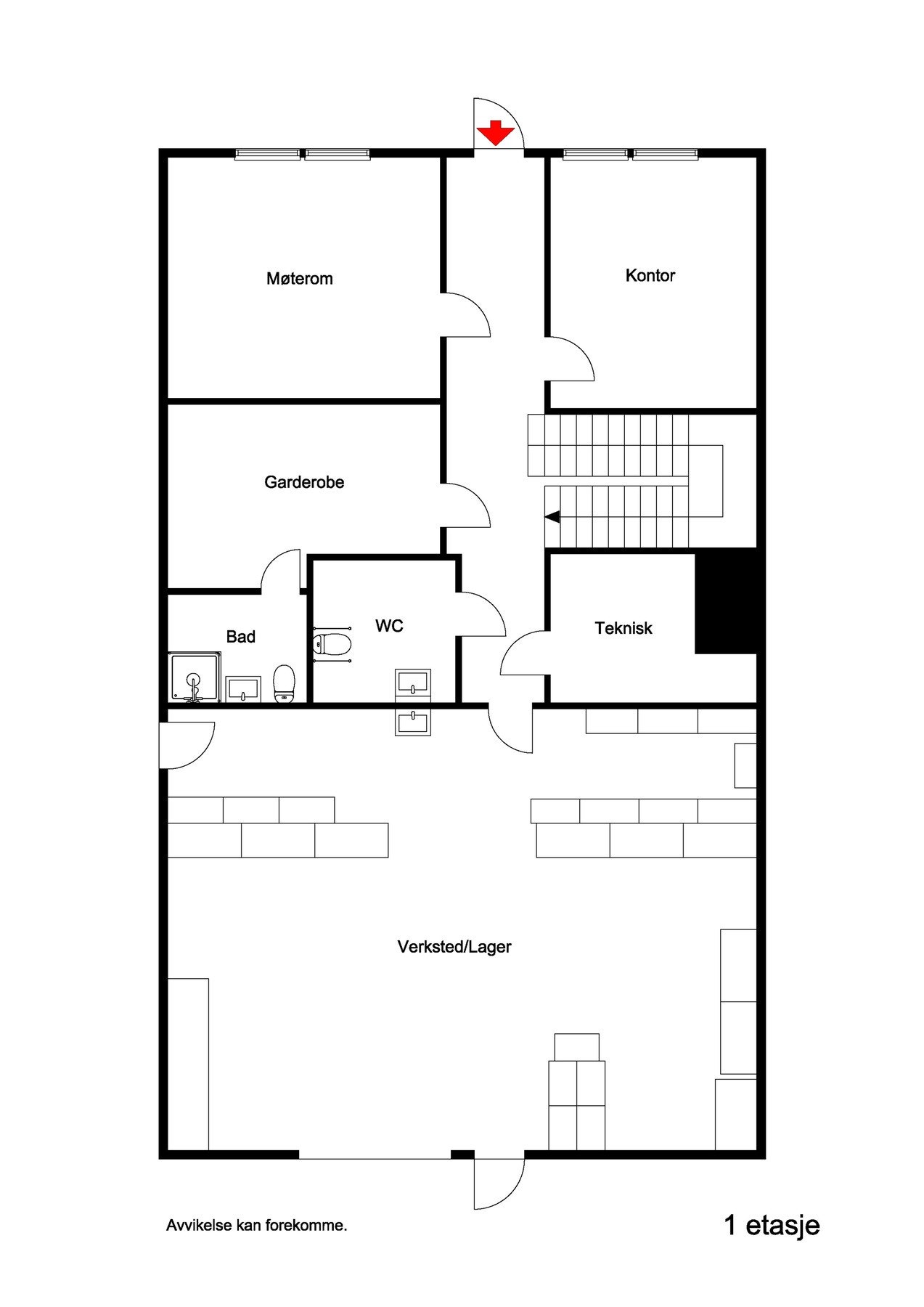
Første etasje inneholder gang med trapp opp til 2. etasje, div, kontorer, garderobe og toalett/ HWC og teknisk rom.

Andre etasje inneholder trapp/gang, kontorer,
møterom/spis/kjøkken, bøttekott, WC og arkiv/kopi/lager.

Standard

Bygningen ble oppført i 2001. Den har god standard
og utførelse i forhold til byggeår. Den gir et bra helhetsinntrykk som dokumentert i taksten. Ingen større påkostninger de siste årene.

Oppvarming

Elektrisk oppvarming. Varmepumper via ventilasjonsanlegg.

Beskaffenhet

Grunnen under bygningen.

Beliggenhet

Eiendommen ligger fint til i Vestmarka industriområde, like nord og vest for Sortland sentrum. Eiendommen har adresse til Markveien, som den også har adkomst fra. Parkering på asfalterte utearealer ved bygningen.

Adkomst

Eiendommen har god adkomst fra offentlig vei.

Parkeringsforhold

Parkering på asfalterte utearealer ved bygningen

Adgang til utleie

Det er adgang til å leie ut bygningen.

Ferdigattest

Det foreligger midlertidig brukstillatelse datert. 09.05.2001. Midlertidig brukstillatelse gjelder for bygning bygget i 2001.

Beskrivelse (type bolig)

Næringsbygg

Bygningsinformasjon / byggemåte

Bygning generelt

Seksjonen er en del av større industribygning, som vist på foto og tegning. Den ble som nevnt oppført i 2001.

Den har god standard og utførelse i forhold til bygge-året. Den gir et bra helhetsinntrykk som dokumentert i taksten. Ved befaring ble det registrert normal slitasje og elde.

Påkostninger:
Ingen større påkostninger de siste årene.
Vedlikeholdet er forholdsvis normalt.

Grunn og fundamenter/ Gulv på grunn/Frittbærende dekke:

I følge gitte opplysninger er det foretatt fundamentering på armert betong på pukk, stein og avrettet fyllmasse. Område består av myr.

Betongdekke på komprimert fyllmasse. Vesentlig flis og banebelegg på flere rom. Malt betong på lager.
Betong, hulldekkelementer i etg. skille mot 2. etg..

Ytterveggskonstruksjon
Bærekonstruksjon i stål ( søyler/drager). Nedre del av yttervegger utført som plasstøpt betong. ( Ringmur).
Stålkonstruksjoner, 150 mm, sandwichelement, utvendig platekledning.

Utvendige dører og vinduer/ Ytterdører og porter
Vinduer med 2- lags glass.
Alm. dører og porter.
Vinduer i tre og aluminium med isolerglass. Vinduer med 2- lags glass.

Leddporter til lager, ca. 2,7 x 2,7 m. Tidsmessinge dører og leddport i bygningen.

Takkonstruksjon
Isolert stålkonstruksjon, selvbærende, takfall på ca. 5 grader. Pålagt sanafil.

Innvendige overflater gulv
Betongdekke på komprimert fyllmasse. Vesentlig industribelegg og noe flis og laminat.

Innvendige overflater vegg
Stålkonstruksjoner, 150 mm, sandwichelement, innvendig stålplatekledning og malt plater.

Innvendige overflater himling
Systemhimlinger i alle innredet rom.

Innvendige trapper
Flislagt innvendig trapp mellom etasjen.

Fast inventar, generelt
Kantine/møterom: innredninger m/ stålbeslag m/ kummer, overskap og underskap.

Varme generelt
El. oppvarming. Varmepumper via ventilasjonsanlegg.

Elektrisk primæranlegg
Installasjon forutsettes dimensjonert for dagens virksomhet i bygningen.
Elektrisk anlegg gjennomført med god standard, kapasitet og eksklusive løsninger.
Belysningskrav til Lux for drift som pågår i bygningen er ikke vurdert.

Ventilasjon primæranlegg
Komplett ventilasjonsanlegg med varmegjennvinning via varmepumper.
Forøvrig er tilstanden på anlegget ikke spesielt vurdert. Dagens krav til ventilasjon er ikke vurdert.

Sanitær primæranlegg
Standard sanitærutstyr i bygningen. Trykkvann til og avløp fra alle tappepunkter i bygningen.
Wc 1. etg.: wc og servant.
Wc 2. etg.: servant i skap, dusjkabinett og toalett.

Innvendige overflater vegg
Innervegger med ferdigmalte plater.

Annet
Sentralstøvsuger montert i teknisk rom.

Faste løpende utgifter

Kommunale avgifter
Kommunale avgifter pr. år kr 13 800,-
Årstall 2025

Sentrale lover

Eiendommen selges som den er ved kjøpers besiktigelse eller på tidspunkt for aksept av kjøpers bud, dersom kjøper ikke besiktiger eiendommen. Eiendommen selges som den er jfr avhendingslovens paragraf 3-9, dog slik at forhold dekket av avhendingslovens § 3-9, andre punktum ikke kan utgjøre en mangel.

Avhendingslovens § 3-9 fravikes videre slik at kjøper ikke kan gjøre gjeldende som mangel forhold etter avhendingslovens § 3-8 (1), andre setning hvor opplysningene er gitt av andre enn selger. § 3-9 fravikes videre slik at forsømte opplysninger fra selgers side bare skal ansees som mangel dersom disse er vesentlige for kjøper og er dokumentert kjent av selger.

Avhendingslovens § 4-19, andre ledd fravikes slik at reklamasjon senest kan skje 1 år etter overtagelse av eiendommen.

Kjøper er oppfordret til selv å befare/undersøke eiendommen og forhold knyttet til denne, eventuelt ved bruk av dertil egnede fagpersoner. Kjøper kan ikke gjøre gjeldende som mangel noe han måtte kjenne til ved signering av kjøpekontrakten

Forbehold

Det tas forbehold om trykkfeil i salgsoppgaven.
Salgsoppgaven er ufullstendig uten alle vedlegg.

Overtakelse

Etter avtale med selger.

Tinglyste heftelser

Følgende heftelser vil følge eiendommen og kopi kan fås av megler. Kjøpers bank får prioritet etter disse heftelsene:

Festekontrakt - Vilkår - Tinglyst dato 22.12.00
Med flere bestemmelser
GJELDER DENNE REGISTERENHETEN MED FLERE

Nærområdet

Annonseinformasjon

FINN-kode417978403
Sist endret24. juli 2025 07:50
Referanse75250139

Rapporter annonse

Annonsene kan være mangelfulle i forhold til lovpålagt opplysningsplikt. Før bindende avtale inngås oppfordres interessenter til å innhente komplett informasjon fra meglerforetaket, selger eller utleier.