Bildegalleri

Velkommen til Tande!
TANDE | 1944,1 daa. | 135,8 daa. fulldyrka | 1477,7 daa. produktiv skog | Melkekvote på 110 tonn | Sæter
Nøkkelinfo
- Primærrom
- 430 m²
- Bruksareal
- 643 m²
- Eieform
- Eier (Selveier)
- Areal
- 643 m²
- Byggeår
- 1848
- Energimerking
- G - Gul
- Tomteareal
- 1 944 100 m² (eiet)
- Overtakelse
- Overtakelse etter nærmere avtale med selger. Det oppfordres til å nevne ønsket overtagelse i evt. bud.
Type lokale
Kort om eiendommen
Tande ligger på Tretten i Øyer kommune, ca. 30 km nord for Lillehammer på østsiden av Gudbrandsdalslågen. Gården er på 1944,1 daa. og er tilpasset melkeproduksjon. Gården ligger høyt og fritt i solhellinga med flott utsikt nedover dalen og kulturlandskapet. Eiendommen har en betydelig og velholdt bygningsmasse med bl.a. 2 bolighus, låve, garasje, redskapsskjul, stabbur mm. Sæter som benyttes som fritidsbolig. Her er det også beitemuligheter. Eiendommen har melkeproduksjon med egen kvote på ca. 110 tonn og leid kvote på ca. 30 tonn. Produksjonen foregår med NRF fe, i eldre båsfjøs med en produksjonskapasitet på ca. 150 tonn. Fjøset er modernisert med gjødselhåndtering, melkeanlegg og automatisk foringsanlegg for kraftfôr.
Inneholder
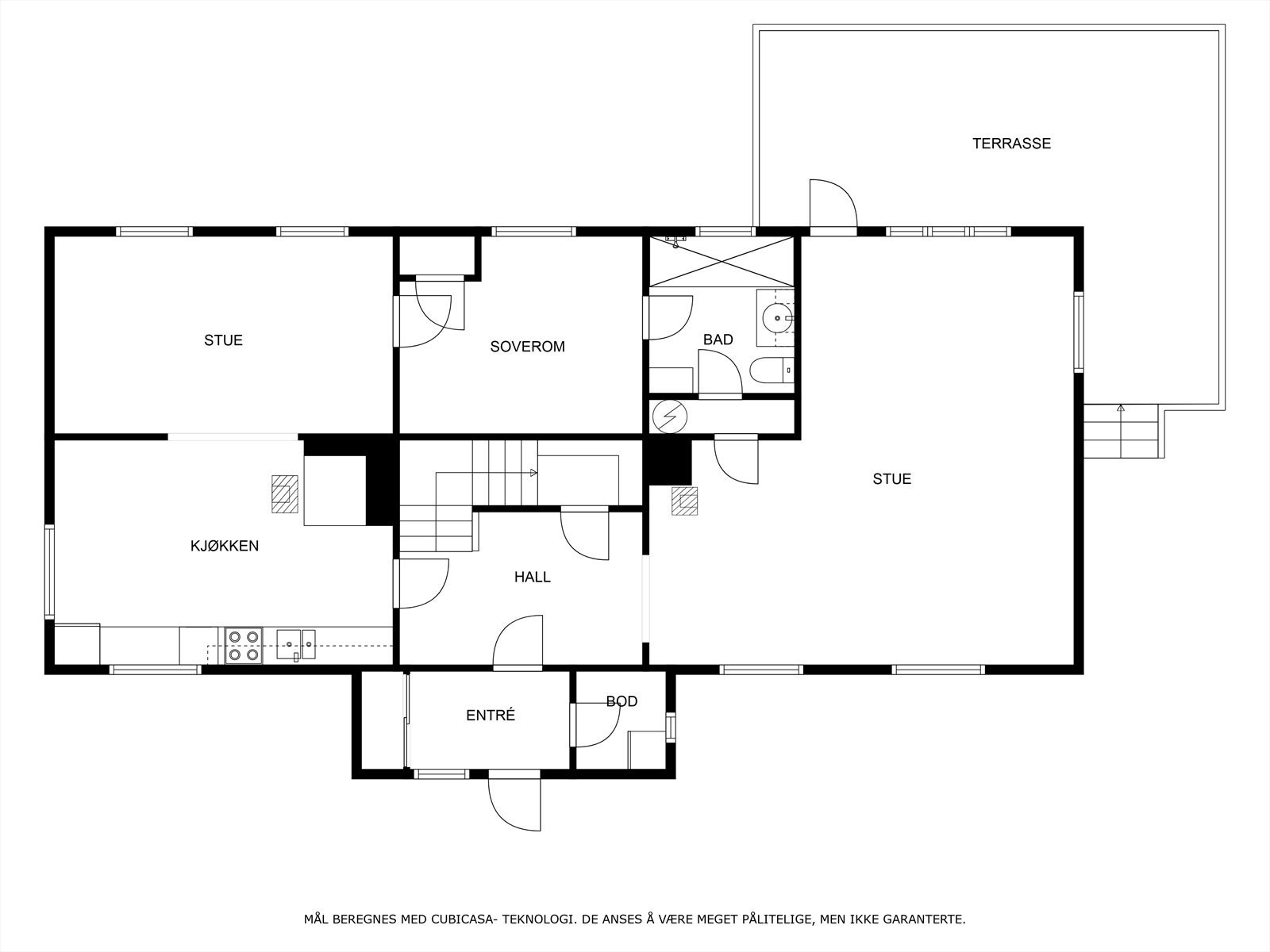
Våningshus (totalt bra. 336 kvm.)
Kjeller (40 kvm.): Uinnredet kjellerrom.
1. etasje (138 kvm): Vindfang, 2 ganger, kjøkken, 2 stuer, bad/ vaskerom, toalettrom og kjølerom.
2. etasje (102 kvm.): Toalettrom, 2 ganger, bad og 4 soverom.
Loft (56 kvm.): 2 lagerrom.
Sidebygning-/kårbolig (totalt 221 kvm.)
Kjeller: Bod.
1. etasje (114 kvm.): Vindfang, gang, stue, kjøkken, bad og 3 boder.
2. etasje (107 kvm.): Gang-/stue, stue, 2 soverom og bod.
Låve (850 kvm.)
Kjeller: Møkkjeller og 2 lagerrom.
Plan 1 (380 kvm.): Fjøs, melkerom, kontor, 2 lagerrom og fôrrom.
Plan 2 (340 kvm.): Høygulv.
Plan 3 (130 kvm.): Kjørebru.
Gjødselkum (1050 kubikk)
Garasje (77 kvm.)
Plan 1 (51 kvm.): 3 biloppstillingsplasser.
Loft (26 kvm.): Isolert rom.
Redskapsskjul (145 kvm.)
Plan 1 (145 kvm.): Redskapsrom og isolert verksted.
Stabbur ( 49 kvm.)
Plan 1 (24 kvm.): Lagerrom.
Plan 2 (25 kvm.): Lagerrom.
Vedskjul
Dukkestue
Uthus
Sæterhus (86 kvm.)
1. etasje (86 kvm.): Gang, kjøkken, 2 soverom, 2 stuer og bod.
Fjøs sæter (75 kvm.)
1. etasje (75 kvm.): Lagerrom og utedo.
Geitfjøs sæter (26 kvm.)
Plan 1 (26 kvm.): Lagerrom.
Vedskjul sæter (10 kvm.)
Plan 1 (10 kvm.): Vedskjul.
Beliggenhet
Tande går for å være av de eldste gårdene i bygda. Ligger høyt og sydvendt noe som ga tidlig vår og gode vekstforhold.
Den tidligste informasjonen er et skinnbrev fra 1327utferdet til Tondom på Trøttena Hærads Stømpenobænom. Tande var da heradstingstad i Tretten. Tande var også lensmannsgård i gamle tider.
Det sies at den gamle hovedferdselsåren gjennom Gudbrandsdalen gikk rett ned for gården, og i dag går pilgrimsleden fra Oslo til Trondheim rett ned for husan her, (kanskje en inntektsmulighet i framtida).
Garden har vært i samme slekt siden 1800, og Amund som var 2. ledd bygget opp begge gardsbygningene og fjøset i 1848. På 1800 tallet og litt inn på 1900 ble det også drevet med gjester her på gården. En ting som er litt spesielt er at siden min slekt har alle eierne hett Østen eller Amund. Fire Østen og tre Amund.
Ellers har vel ting blitt bygget opp etter hva økonomien har tillatt. Min far gjorde en stor innsats først på 1970 tallet og dyrket opp et felt oppover mot fjellet på 43 daa. som har gjort at vi fikk langt bedre grovforgrunnlag.
Mjølkeproduksjonen ble avsluttet på sætra i 1986. Kanskje tida er inne for å bygge nytt fjøs der og starte opp igjen. Mulighetene finnes.
Eiendommen ligger på østsiden av Gudbrandsdalslågen med gårdstunet på 509 m.o.h, eiendommens arealer ligger fra gårdstunet og oppover mot fjellet der øvre del av skogarealet
ligger innenfor vernegrense. Eiendommen ligger i kulturlandskap øst for Gudbrandsdalslågen med arealer opp mot Øyerfjellet. Avstand til kommunesenteret Øyer er ca. 13 km
Avstand til Lillehammer er ca. 33 km, og avstand til Oslo er ca. 213 km
Eiendommen har melkeproduksjon med egen kvote på ca. 110 tonn og leid kvote på ca. 30 tonn. Produksjonen foregår med NRF fe, i eldre båsfjøs med en produksjonskapasitet på 150 tonn.
Fjøset er modernisert med gjødselhåndtering, melkeanlegg og automatisk foringsanlegg for kraftfôr.
Gården innehar et dyrket areal på drøye 135,8 dekar, produktiv skog på 1477,7 dekar og et totalareal på 1944,1 dekar. Den dyrkede marken ligger i og rundt tunet, og en teig langs Østfjellvegen. Jorden benyttes til grasproduksjon. Skogarealene ligger i en sammenhengende hovedteig, med ett mindre areal som omkranser dyrket areal. Stående volum på ca. 10 390 m3. med en årlig tilvekst på omkring ca. 495 m3. Gården har jaktmuligheter.
Bygningsmassen består av hovedbygning, sidebygning-/kårbolig, låve, stabbur, garasje, redskapsskjul, vedskjul, dukkestue, uthus og gjødsellager. Sæter med flere bygninger. Det er ca. 10 min. opp til setra i fra gården.
Hovedbygningen på gården ble reist midt på 1800 tallet. Den er stor og innholdsrik og har god plass til både storfamilien og til å kunne samle venner i hyggelige lag. Kjøkken- og allrommet i første etasje er boligens kanskje viktigste rom med en stor grue, elegant innredning og påtenkte soner for bespisning og hvile. Etasjen har også to store stuer i form av en spisestue og en storstue.
I andre etasje, er det til sammen fire soverom, bad og toalettrom. Alle soverommene har god størrelse.
Sidebygningen-/kårboligen er oppført samtidig med våningshuset.
Her kommer du til en velholdt gård i full produksjon som ligger helt for seg selv. En fredelig plass med en flott beliggenhet øverst i lia.
Adkomst
Fra Øyer; Følg E6 nordover til Tretten, ca. 6 km. Ta av E6, skilting Gausdal-/Tretten. Følg Nord Trettenvegen nordover, rv, 2554. Følg denne ca. 1 km. til Torstadkrysset, og Tårstadvegen går opp til høyre. Følg denne oppover lia, og Tårstadvegen svinger skarpt til venstre. Tande ligger som den øverste gården.
Betalingsbetingelser
Hele kjøpesummen med omkostninger må være innbetalt og disponibel for megler på meglers klientkonto, senest på siste virkedag innen overtagelsen finner sted.
Overtagelse, tilleggsinfo.
Overtakelse etter nærmere avtale med selger. Det oppfordres til å nevne ønsket overtagelse i evt. bud.
Bebyggelse
Våningshus (Byggeår 1848).
Fundamentert med grunnmur i gråsteinmur og betong, kjeller under del av bygget. Yttervegger i laftet tømmer og bindingsverk, utvendig kledd med trepanel.
Saltakkonstruksjon i tre, utvendig tekket med takstein og metallplater. Dører og vinduer utført i tre.
Sidebygning-/kårbolig (Byggeår 1848)
Fundamentert med grunnmur i gråsteinmur og betong, kjeller under del av bygget. Yttervegger i laftet tømmer og bindingsverk, utvendig kledd med trepanel. Saltakkonstruksjon i tre, utvendig tekket med metallplater. Dører og vinduer utført i tre.
Låve (Byggeår 1848. Modernisert-/tilbygd 1950 og 1980. Noe ombygging i 1998)
Fundamentert med dels betongmur og dels gråsteinsmur. Møkkjeller under deler av bygget. Betongdekke i gulv fjøs, ellers etasjeskillende konstruksjoner i tre. Yttervegger i bindingsverk, utvendig kledd med trepanel, deler av fjøs medyttervegger i mur. Saltakkonstruksjon i tre, utvendig tekket med metallplater og villskifer. Kjørebru i trekonstruksjon, utvendig kjørebru i betongkonstruksjon. Dører, vinduer og porter utført i tre.
Båsfjøs med produksjonskapasitet på 150 tonn. Automatisert foringsanlegg for kraftfôr med forsilo på 7 tonn, og foringsvogn for individuell tildeling av fôr. Melkeanlegg med nyere melketank på 2100 liter, og takskinne for melkeorgan. Teknisk rom/ sluse med system for daglig drift. Eiendommen har ei melkekvote på ca. 110 tonn, men låven har kapasitet på ca. 150 tonn.
Gjødsellager (Byggeår 2017)
Garasje (Byggeår 2002)
Fundamentert med ringmur/ plate på mark. Yttervegger i bindingsverk, utvendig kledd med trepanel. Saltakkonstruksjon i tre, utvendig tekket med metallplater. Isolert rom i loftsetasje.
Dører, porter og vinduer i tre.
Redskapsskjul (Byggeår 1980)
Fundamentert med ringmur/ plate på mark. Yttervegger i bindingsverk, utvendig kledd med trepanel. Saltakkonstruksjon i tre, utvendig tekket med metallplater. Isolert verkstedrom
Vinduer i tre. Port i metall.
Stabbur (Byggeår 1850)
Tradisjonelt stabbur i 2 etasje. Fundamentert på steinpunkter. Yttervegger i laftet tømmer, utvendig kledd med trepanel. Gulvkonstruksjoner i tre. Saltakkonstruksjon i tre, utvendig tekket med villskifer. Klokketårn med klokke. Dører og vinduer utført i tre.
Vedskjul (Byggeår 1900)
Fundamentert med gråsteinsmur. Yttervegger i bindingsverk, utvendig kledd med trepanel. Gulvkonstruksjoner i tre. Saltakkonstruksjon i tre, utvendig tekket med villskifer. Dører og vinduer utført i tre.
Dukkestue
Dukkestue oppført i trekonstruksjon.
Uthus (Ukjent byggeår)
Fundamentert med punktfundamenter i stein. Yttervegger i laftet tømmer. Gulvkonstruksjoner i tre. Saltakkonstruksjon i tre, utvendig tekket med villskifer.
Dører/ porter utført i tre.
Sæterhus (Byggeår 1850)
Fundamentert med grunnmur i naturstein og betong, kjeller under del av bygget, ellers kryprom. Yttervegger utført i utmurt bindingsverk/ tømmer, utvendig rappet. Yttervegger i østfløy utført med mur i betongblokker, utvendig pusset. Saltakkonstruksjon i tre, utvendig tekket med metallplater. Dører og vinduer utført i tre.
Fjøs sæter (Byggeår 1912)
Fundamentert med natursteinmur/ punktfundamenter. Yttervegger i bindingsverk, utvendig kledd med trepanel. Gulvkonstruksjon i tre. Saltakkonstruksjon i tre, utvendig tekket med villskifer.
Dører og vinduer i tre.
Geitfjøs sæter (Byggeår 1940)
Fundamentert med natursteinmur/ punktfundamenter. Yttervegger i bindingsverk, utvendig kledd med trepanel. Gulvkonstruksjon i tre. Saltakkonstruksjon i tre, utvendig tekket med metallplater. Dør i tre.
Vedskjul sæter (Byggeår 1940)
Fundamentert med natursteinmur/ punktfundamenter. Yttervegger i bindingsverk, utvendig kledd med trepanel. Gulvkonstruksjon i tre. Saltakkonstruksjon i tre, utvendig tekket med metallplater. Dør i tre.
Byggemåte
Våningshus
Utvendig
Taktekking,TG2
TAKTEKKING. Taktekking er utført med betongtakstein på hovedbygg og lakkerte metallplater på tilbygg. Taktekkingen er besiktiget fra bakkeplan da det ikke er tilgang til taket som ivaretar HMS krav til sikring ved arbeider i høyden. Taktekkingen er vurdert ut fra alder og det som er mulig å vurdere fra bakkeplan. Undertak, lekter og sløyfer er vurdert ut fra alder. Gjennomføringer i taket er ikke undersøkt da besiktigelsen er gjort fra bakkeplan.
Det er avvik: Mer enn halvparten av forventet brukstid er oppbrukt på taktekking med underliggende bygningsdeler. Det er noe mosegroing på taktekkingen. Gjennomføringer i taket er ikke undersøkt da tilgang til taket ikke ivaretar HMS krav til arbeid i høyden.
Tiltak: Det er ikke behov for strakstiltak siden det ikke er påvist funksjonssvikt ved taktekkingen, men det anbefales jevnlig kontroll fremover for å vurdere tilstand på taktekking og underliggende bygningsdeler. Eventuell utskifting av taktekking/ underliggende bygningsdeler vurderes ut fra hva som avdekkes ved jevnlig kontroll. Det anbefales å gjøre tiltak for å fjerne mose fra taktekking da mose medvirker til å redusere brukstiden til taktekkingen. Gjennomføringer i taket er områder med forhøyet risiko for lekkasjer med følgeskader på boligens konstruksjoner. Det anbefales ytterligere undersøkelse for å vurdere tilstand på gjennomføringer. Eventuelle tiltak ut fra hva som avdekkes ved undersøkelse.
Nedløp og beslag,TG2
BESLAG, TAKRENNER OG NEDLØP. Beslag, takrenner, nedløp og vindskier er besiktiget fra bakkeplan da det ikke er tilgang til taket som ivaretar HMS krav til sikring ved arbeider i høyden. Beslag, takrenner, nedløp og vindskier er vurdert ut fra alder og det som er mulig å vurdere fra bakkeplan. Pipebeslag og takhatter er ikke undersøkt da besiktigelsen er gjort fra bakkeplan. Takrenner og nedløp er utført i metall. Det er montert takstige for adkomst til pipe.
Det er avvik: Det er skade/ slitasje på vindskier. Mer enn halvparten av forventet brukstid er oppbrukt på takrenner, nedløp og beslag. Tak har ikke tilfredsstillende sikring mot nedfall av snø og is. Beslagsløsninger i tilknytning til gjennomføringer i taket og konstruksjoner for bortledning av vann fra takflaten er ikke undersøkt da tilgang til taket ikke ivaretar HMS krav til arbeid i høyden.
Tiltak: Skade/ slitasje/ råte på vindskier anbefales utbedret. Manglende utbedring kan føre til ytterligere skade på vindskier/ tilstøtende konstruksjoner. Det er ikke behov for strakstiltak siden takrenner, nedløp og beslag fungerer, men det anbefales jevnlig kontroll for å vurdere tilstand. Eventuell utskifting av takrenner, nedløp og beslag vurderes ut fra hva som avdekkes ved jevnlig kontroll. Det anbefales å montere snøfangere på taket for sikring mot nedfall av snø og is. Gjennomføringer i taket og konstruksjoner for bortledning av vann fra takflaten er områder med forhøyet risiko for lekkasjer med følgeskader på boligens konstruksjoner. Det anbefales ytterligere undersøkelse for å vurdere tilstand på gjennomføringer og konstruksjoner for bortledning av vann fra takflaten. Eventuelle tiltak ut fra hva som avdekkes ved undersøkelse.
Veggkonstruksjon,TG2
VEGGKONSTRUKSJON. Yttervegger oppført i laftet tømmer og bindingsverk. Utvendig kledd med trepanel. Konstruksjonen er lukket, oppbygging, isolering og tilstand innvendig i konstruksjonen er derfor ikke vurdert. Kun synlige overflater utvendig og innvendig er vurdert.
Det er avvik: Det er skade/ slitasje på utvendig kledning/ belistning. Det er påvist stedvise råteskader på utvendig kledning. Det er liten avstand mellom terreng og veggkledning. Det er observert glipper/ åpninger i overganger/ lufting i veggkonstruksjon der mus kan komme inn. Lufting av utvendig kledning er ikke tilfredsstillende i henhold til dagens anbefalinger, men heller ikke dårligere enn normal løsning ved boligens byggeår.
Tiltak: Det må påregnes vedlikehold/ utbedring/ utskifting av kledning/ belistning med slitasje/ skade. Ved utskifting av kledning/ belistning anbefales det å samtidig undersøke tilstand på innebygde deler av veggkonstruksjonen, og gjøre nødvendige tiltak i forhold til det som avdekkes. Det må påregnes utskifting av utvendig kledning som er skadet av råte. Utvendig råte kan også være en indikasjon på at øvrig veggkonstruksjon kan ha råteskade. Ved utskifting av kledning anbefales det derfor å samtidig undersøke om øvrige deler av veggkonstruksjonen har råteskader, og gjøre nødvendige tiltak i forhold til det som avdekkes. For utvendig veggkledning er det anbefalt en minsteavstand på 30 cm mellom terreng og treverk. Liten avstand mellom veggkledning og terreng kan redusere levetiden til veggkledningen. Det anbefales tiltak for å øke avstand/beskytte veggkledning mot fuktbelastning som følge av liten avstand ned til terreng. Det er ikke behov for strakstiltak i forhold til åpninger der mus kan komme inn, men det anbefales å følge med på tilstand slik at det kan avdekkes på et tidlig tidspunkt dersom det registreres mus inne i veggkonstruksjonen/ boligen. Dersom det ønskes å gjennomføre tiltak for å stenge for inntrengning av mus må alle glipper/ åpninger med størrelse over 6 mm tettes, ved slik utbedring må det påses at ventilering av veggkonstruksjon ivaretas. Det anbefales å vurdere tiltak for å bedre lufting av utvendig kledning der dette er mulig. Eventuelle tiltak må vurderes opp mot alder/ tilstand på utvendig kledning, og kostnad ved utbedring. Dersom utvendig kledning skal skiftes anbefales det å sørge for tilfredsstillende lufting. Manglende lufting av utvendig kledning kan forkorte levetiden til kledningen og gi skader på innebygde konstruksjoner.
Takkonstruksjon/Loft,TG2
TAKKONSTRUKSJON/ LOFT Skråtak utført som trekonstruksjon med sperrer / takstoler. Utvendig inspeksjon utført fra bakkenivå. Innvendig inspeksjon fra inne på loft. Tilstandsgrad er satt ut fra det som var visuelt tilgjengelig på befaringsdagen.
Det er avvik: Eldre takkonstruksjon som har utlevd mer enn halvparten av sin brukstid. Det er påvist aktivitet fra mus.
Tiltak: Det er ikke behov for strakstiltak, men på bakgrunn av alder og utførelse anbefales det å følge med på tilstand til takkonstruksjonen. Det anbefales å gjøre tiltak for å bekjempe mus. Aktivitet fra mus kan være en følge av manglende tetting mot mus i veggkonstruksjonen. Manglende tiltak vil kunne føre til at omfanget av skadedyr øker, med forhøyet risiko for skade på boligen.
Vinduer,TG2
VINDUER. Vinduer i tre med 2 lag isolerglass og koblede vinduer med 1+1 lag glass Produksjonsår isolerglass 2007 Overflatebehandling: Malt utvendig, malt innvendig. Vinduer er undersøkt utvendig fra bakkeplan og innvendig fra rom i boligen. Funksjonstest av vinduer er gjort på enkelte tilfeldig valgte vinduer.
Det er avvik: Det er stedvis noe skade/ slitasje/ råte på vinduer. Det mangler metallbeslag på enkelte vannbrett.
Tiltak: Skade/ slitasje/ råte på vinduer anbefales utbedret. Manglende utbedring vil kunne redusere levetiden til vinduene. For enkelte vinduer anbefales det å vurdere utskifting. Det anbefales å montere metallbeslag på vannbrett. Skade på vannbrett/ tilstøtende bygningsdeler kan være en konsekvens av manglende beslag.
Balkonger, terrasser og rom under balkonger - 2,TG2
TERRASSE BAKSIDE. Ved vurdering av terrasser der høydeforskjellen mellom terreng og terrassegulv er mer enn 50 cm krever Forskrift til avhendingslova at krav til sikkerhet mot fall skal vurderes opp mot daggjeldende Teknisk forskrift (TEK17). Terrasse utført i trekonstruksjon. Enkelt fundamentert med søyler/ punktfundament. Tilgang fra hage. Terrasse er vest vendt. Rekkverk har høyde 90 cm. Terrassens areal er ca 26 m2, arealet er medtatt i arealmålingen under TBA.
Det er avvik: Det er skade/ slitasje på overflater. Rekkverket har ikke tilstrekkelig høyde til å oppfylle kravet i Teknisk forskrift. Konstruksjonen har noe skjevheter og nedbøyninger.
Tiltak: Det er ikke behov for strakstiltak i forhold til skade/ slitasje, men om kjøper har andre brukskrav eller krav til estetikk kreves det utbedring eller utskifting. Det anbefales å vurdere risiko og tiltak i forhold til sikring mot fall. Dersom rekkverket skal tilfredsstille dagens krav må høyden på rekkverket økes til 100 cm. Det er ikke behov for strakstiltak i forhold til skjevheter og nedbøyning, men om kjøper har andre brukskrav eller krav til estetikk kreves det utbedring eller utskifting.
Balkonger, terrasser og rom under balkonger,TG2
TERRASSE VED INNGANG Ved vurdering av terrasser der høydeforskjellen mellom terreng og terrassegulv er mer enn 50 cm krever Forskrift til avhendingslova at krav til sikkerhet mot fall skal vurderes opp mot daggjeldende Teknisk forskrift (TEK17). Terrasse utført i trekonstruksjon. Enkelt fundamentert med søyler/ punktfundament. Tilgang fra inngang Terrasse er øst vendt. Rekkverk har høyde 90 cm. Terrassens areal er ca 18 m2, arealet er medtatt i arealmålingen under TBA.
Det er avvik: Rekkverket har ikke tilstrekkelig høyde til å oppfylle kravet i Teknisk forskrift.
Tiltak: Det anbefales å vurdere risiko og tiltak i forhold til sikring mot fall. Dersom rekkverket skal tilfredsstille dagens krav må høyden på rekkverket økes til 100 cm.
Utvendige trapper,TG2
UTVENDIG TRAPPER. Enkele trapper utført i murkonstruksjon. Enkel fundamentering direkte på bakken.
Det er avvik: Det er skade/ slitasje på overflater.
Tiltak: Det er ikke behov for strakstiltak i forhold til skade/ slitasje, men om kjøper har andre brukskrav eller krav til estetikk kreves det utbedring eller utskifting.
Innvendig
Etasjeskille/gulv mot grunn,TG2
ETASJESKILLE/ GULV 1. ETASJE Utført med trebjelkelag, tilbygg med støpt plate på mark. Målt høydeavvik på 11 mm innenfor helt rom. ETASJESKILLE/ GULV 2. ETASJE Utført med trebjelkelag. Målt høydeavvik på 55 mm innenfor helt rom.
Det er avvik: Det er registrert stedvis knirk i gulv/ etasjeskille. Det er høydeforskjell på gulv mellom rom i samme etasje. Det er målt avvik i planhet på over 30 mm gjennom helt rom.
Tiltak: Det er ikke behov for strakstiltak i forhold til knirk, men om kjøper har andre brukskrav eller krav til estetikk kreves det utbedring eller utskifting. Dette vil ofte være kostbare tiltak, det anbefales derfor å vurdere kostnad ved utbedring opp mot nytte av utbedring. Det er ikke behov for strakstiltak i forhold til at det er høydeforskjell mellom rom i samme etasje, men om kjøper har andre brukskrav eller krav til estetikk kreves det utbedring eller utskifting. Dette vil ofte være kostbare tiltak, det anbefales derfor å vurdere kostnad ved utbedring opp mot nytte av utbedring. Det er ikke behov for strakstiltak i forhold til planhetsavvik, men om kjøper har andre brukskrav eller krav til estetikk kreves det utbedring eller utskifting. Dette vil ofte være kostbare tiltak, det anbefales derfor å vurdere kostnad ved utbedring opp mot nytte av utbedring. Tilstandsgrad 3 gis med bakgrunn i standardens krav til måleavvik.
Radon,TG2
RADON. Bygget ligger i et område med registrering moderat til lav når det gjelder radonforekomst. Det er ikke lagt fram dokumentasjon på utførelse av radonsperre. Det er ikke gjennomført radonmåling.
Radonmålinger er ikke foretatt, heller ikke andre tiltak mot radon, eiendommen ligger i et område som i NGU Radon aktsomhetskart er definert med "moderat til lav" aktsomhetsgrad
Tiltak: Det bør gjennomføres radonmålinger.
Rom Under Terreng,TG2
ROM UNDER TERRENG. Veggkonstruksjon er synlig grunnmur. Gulvkonstruksjon er jordgulv/ betongplate på grunn. Takkonstruksjon er bjelkelag i tre mot etasje over. Kjeller er råkjeller som ikke benyttes til oppholdsrom. Det er gjort fuktmåling på treverk i kjeller. Ved fuktmåling er det registrert måleverdi som indikerer fukt. Det gjøres spesielt oppmerksom på at fuktmåling som er gjort er å betrakte som stikkprøve og sier bare noe om tilstanden i nærheten til området der målingen er utført.
Det er avvik: Det er gjort visuelle observasjoner av fuktmerker på overflater. Rom under terreng har ikke tilfredsstillende ventilasjon. Det er gjort fuktmålinger med sondestift som indikerer fukt i treverk i kjelleren.
Tiltak: Det er gjort observasjoner som indikerer fukt i gulv/ grunnmur. For konstuksjoner fra denne tidsperioden er det vanlig med fukt i gulv/ grunnmur da konstruksjonene har en utførelse som transportere vann fra grunnen og inn i gulv-/veggkonstruksjonene. Dagens utforming og bruk av rom under terreng tilsier at det ikke er nødvendig med strakstiltak. Dersom bruken av rom endres og/ eller det gjøres endringer i konstruksjoner må det gjøres vurderinger av hvordan konstruksjonene skal bygges opp samt vurdere om det er behov for tiltak ved utvendig tetting og drenering av grunnmur og kjellergulv. Fukt i treverk er en indikasjon på at kjeller har høy relativ luftfuktighet. Det anbefales å sørge for tilfredsstillende ventilasjon av kjelleren. Manglende ventilasjon kan føre til sopp og råteskader på konstruksjoner.
Innvendige trapper,TG2
INNVENDIG TRAPP. Innvendig trapp mellom etasjer i boenheten. Utført i trekonstruksjon og med tette opptrinn.
Det er avvik: Det er stedvis noe skade/ slitasje på trappa. Trappa har manglende håndløper.
Tiltak: Det er ikke behov for strakstiltak i forhold til skade/ slitasje på trapp, men om kjøper har andre brukskrav eller krav til estetikk kreves det utbedring eller utskifting. Det anbefales å montere håndløper på begge sider av trappeløpet. Dersom trappa skal tilfredsstille dagens krav må den være utstyrt med håndløper på begge sider av trappeløpet.
Innvendige trapper - 2,TG3
LOFTSTRAPP Plassbygd enkel trapp med en utførelse som var vanlig ved boligens byggeår, men avviker fra dagens anbefalinger/ krav når det gjelder rekkverk, inntrinn, opptrinn og stigning.
Det er avvik: Trappa har en utførelse som avviker fra anbefalinger for ett eller flere forhold omkring rekkverk, inntrinn, opptrinn og stigning. Trappa har ikke tilfredsstillende rekkverk.
Tiltak: Rekkverk har utførelse/ tilstand som medfører risiko for personskade ved bruk av trappa. Det er påkrevet å gjøre tiltak i forhold til rekkverk slik at sikkerhet ved bruk av trappa ivaretas. Tilstandsgrad 3 gis med bakgrunn i manglende rekkverk på loft.
Kostnadsestimat : Under 10 000
Innvendige trapper - 3,TG2
KJELLERTRAPP Plassbygd enkel trapp med en utførelse som var vanlig ved boligens byggeår, men avviker fra dagens anbefalinger/ krav når det gjelder rekkverk, inntrinn, opptrinn og stigning. På denne bakgrunn gis trappa TG 2 selv om den ikke tilfredsstiller dagens krav til trapp.
Det er avvik: Trappa har en utførelse som avviker fra anbefalinger for ett eller flere forhold omkring rekkverk, inntrinn, opptrinn og stigning.
Tiltak: Det er ikke behov for strakstiltak, men dersom trapp skal tilfredsstille dagens krav, eller om kjøper har andre brukskrav eller krav til estetikk kreves det utbedring eller utskifting.
Innvendige dører,TG2
INNVENDIG DØRER. Innvendige dører av ulik type og alder. Ingen lyd/ brannkrav. Funksjonstest av dører er gjort på enkelte tilfeldig valgte dører. Dører har noe bruksslitasje, men ikke mer enn det som kan påregnes i forhold til alder. Normal bruksslitasje må forventes i en bolig og vurderes ikke som avvik. Det anbefales at en kjøper gjør sine egne vurderinger omkring bruksslitasje for å vurdere eventuell utbedringskostnader der kjøper har andre brukskrav eller krav til estetikk.
Det er avvik: Enkelte dører tar i karm ved åpning/ lukking.
Tiltak: Det anbefales å justere dører som tar i karm.
Våtrom
1. Etasje > Bad/vaskerom
Generell,TG3
BAD/ VASKEROM. Ved vurdering av våtrommet legges det til grunn krav fra daggjeldende Teknisk forskrift (TEK17). Sjekkpunkter vurderes visuelt slik de fremstår ved befaring, uten demontering/ flytting av deksler/ innredning ol. Eldre våtrom som ut fra alder/ tilstand har utlevd sin brukstid, men fortsatt fungerer med den bruk det har i dag. Det er ikke konstatert forhold som tilsier umiddelbar rehabilitering av våtrommet, men ut fra alder/ tilstand kan våtrommet ha skjult skade, og videre/endret bruk øker risikoen for at det kan oppstå skader som følge av bruk. Det er derfor påregnelig at fullstendig oppbygging av nytt våtrom er nært forestående. For el. installasjoner på våtrommet er det ikke vurdert om krav til installasjoner er ivaretatt, det anbefales å gjennomføre en utvidet EL. kontroll av fagmann på alle el. installasjoner på våtrommet. Våtrommet gis TG 3 på bakgrunn av alder, tilstand og risikoen for skade.
Vurdering av avvik: Våtrommet må oppgraderes for å tåle normal bruk etter dagens krav.
Tiltak: Brukstiden til våtrommet vil kunne forlenges ved å gjøre tiltak som hindrer vann direkte på overflater. Dette vil likevel bare sikre mot skader i forhold til bruksvann, ved lekkasje fra rør/ installasjoner vil det være fare for skade på tilstøtende konstruksjoner. Det anbefales derfor å gjøre en vurdering av hvordan våtrommet skal brukes videre, og hvilke risiko som er forbundet med videre bruk av våtrommet. Kostnadsestimatet gis for full oppgradering med vanlig standard for våtrom.
Kostnadsestimat : 100 000 - 300 000
1. Etasje > Bad/vaskerom
Tilliggende konstruksjoner våtrom,TG2
Hulltaking for fuktmåling i tillstøtende konstruksjon er ikke gjennomført da det ikke er fysisk mulig pga tilliggende konstruksjoner. Ved fuktsøk på vegg er det ikke registrert måleverdier som indikerer fukt. Ved fuktsøk på gulv er det ikke registrert måleverdier som indikerer fukt. Det gjøres spesielt oppmerksom på at undersøkelsen er å betrakte som en stikkprøve og sier bare noe om tilstanden i nærheten til området der kontrollen er utført. Undersøkelse av innebygd konstruksjon mot våtrom er der det er mulig, utført ved hulltaking/ fuktmåling inn i konstruksjonen med ett hull, noe som er minstekravet i Forskrift til Avhendingslova. For dette våtrommet er det ikke gjennomført hulltaking. På denne bakgrunn gjøres det spesielt oppmerksom på at innebygde konstruksjoner mot våtrom er særlig utsatt for fukt og vannskade da våtrom gjennom bruk har stor fuktbelastning fra både fritt vann og fukt i luft, samt risiko fra installasjoner for bruk, tilførsel og avløp av vann. Dette har som konsekvens at denne type konstruksjoner defineres som risikokonstruksjoner med høy skadefrekvens når det gjelder fuktskader. Fuktmålinger er uavhegig av om dette gjøres ved hulltaking inn i konstruksjonen, eller ved fuktsøk på overflaten kun være en stikkprøve som sier noe om tilstanden i området målingen gjøres. Det kan derfor ikke utelukkes at innebygde konstruksjoner har skade som ikke er avdekket ved den undersøkelsen som er utført. Det anbefales å følge med på tilstand til rommet og tilstøtende konstruksjoner for å avdekke indikasjoner på skade tidligst mulig og iverksette tiltak dersom dette vurderes som nødvendig.
Det er avvik: Det er gjort fuktsøkmåling som indikerer at det ikke er fukt i innebygde konstruksjoner, men rommets alder og tilstand vurderes til at det er forhøyet risiko for fukt i innebygde konstruksjoner.
Tiltak: Fuktsøkmålingen er å anse som en stikkprøve og sier noe om tilstanden i området denne er gjort. Rommets alder og tilstand tilsier at det er sannsynlighet for fukt i innebygde konstruksjoner i tilknytning til våtrommet. Det må på denne bakgrunn påregnes at det må gjøres tiltak med innebygd konstruksjon/ våtrom. Omfang av eventuelle tiltak avgjøres på grunnlag av resultatet fra ytterligere undersøkelser samt framtidig bruk av våtrommet.
2. Etasje > Bad
Overflater vegger og himling,TG2
Vegger er utført med fliser. Himling er utført med malte plater.
Det er avvik: Det er stedvis noe skade/ slitasje på overflater.
Tiltak: Det er ikke behov for strakstiltak i forhold til skade/ slitasje på overflater, men om kjøper har andre brukskrav eller krav til estetikk kreves det utbedring eller utskifting.
2. Etasje > Bad
Overflater Gulv,TG2
Gulv er utført med våtromsbelegg. Fallforhold på gulv er ikke tilfredsstillende.
Det er avvik: Gulvet har ikke tilfredsstillende fallforhold.
Tiltak: Med dagens bruk fungerer våtrommet med fallforhold som ikke er tilfredsstillende. Ikke tilfredsstillende fallforhold kan som eksempel gi seg utslag i vannansamlinger på gulv og vann som ikke renner/ renner sakte til sluk. Ved lekkasje fra installasjon i rommet vil det være stor sannsynlighet for at lekkasjevann kan trenge inn i tilstøtende konstruksjoner. Har kjøper andre brukskrav og/ eller preferanser kan det være nødvendig med tiltak i forhold til dette. Det anbefales kjøper å vurdere eventuelle konsekvenser sin bruk av våtrommet vil kunne medføre.
2. Etasje > Bad
Sluk, membran og tettesjikt,TG2
Våtrommet har sluk med tilfredsstillende tilgang for renhold og inspeksjon. Plastsluk med klemring og mulighet for rengjøring. Gulvbelegg er ført ned i sluk og sikret med klemring.
Det er avvik: Det er ikke fremvist dokumentasjon på utførelse og materialer for våtrommets tettesjikt. Våtrommets tettesjikt er innebygd og er derfor ikke mulig å vurdere uten dokumentasjon. Det er ikke fremvist dokumentasjon på utførelse av gjennomføringer i våtrommets tettesjikt. Gjennomføringene er innebygd/ tildekket og er derfor ikke mulig å vurdere uten dokumentasjon.
Tiltak: Det kan ikke verifiseres om våtrommet har fungerende tettesjikt. Ikke fungerende tettesjikt på våtrom kan føre til skjult skade på tilstøtende/ innebygde bygningsdeler som kan være vanskelig å avdekke på et tidlig tidspunkt. Dersom det skal kunne verifiseres utførelse av tettesjikt på våtrommet må dokumentasjon i form av bilder/ sjekklister/ kontrollerklæring for utførelse og samsvar for benyttede materialer framlegges. Dersom dette ikke kan fremskaffes anbefales det å følge med på tilstand til våtrommet og tilstøtende bygningsdeler/ rom.
2. Etasje > Bad
Sanitærutstyr og innredning,TG2
Våtrommet er utstyrt med følgende: Dusjkabinett. Servant med underskap.
Det er avvik: Det er misfarging i dusjkabinett.
Tiltak: Det er ikke behov for strakstiltak i forhold til misfarging, men om kjøper har andre brukskrav eller krav til estetikk kreves det utbedring eller utskifting.
2. Etasje > Bad
Ventilasjon,TG2
Våtrommet har naturlig ventilasjon med ventil i himling/ vegg.
Det er avvik: Våtrommet har kun naturlig ventilasjon.
Tiltak: Det anbefales å montere elektrisk avtrekksvifte med løsning for tilfredsstillende tilluft til våtrommet.
Kjøkken
1. Etasje > Kjøkken
Overflater og innredning,TG2
KJØKKEN. Funksjonelt kjøkken med fordeling mellom skap- og skuffeseksjoner. Kjøkkeninnredning er utført med: Skrog i skap og skuffeseksjoner i laminert tre. Benkeplate i laminert heltre Skap og skuffefronter med malt overflate Kjøkkeninnredning er utstyrt med følgende: Nedfelt vaskekum. Oppvaskmaskin. Platetopp. Integrert komfyr. Kjøleskap med frysedel. Kjøkkenventilator montert over platetopp Ved fuktsøk på overflater i skap og gulv er det ikke registrert måleverdi som indikerer fukt.
Det er avvik: Det er stedvis noe skade/ slitasje på innredning/ overflater.
Tiltak: Det er ikke behov for strakstiltak i forhold til skade/ slitasje på innredning/ overflater, men om kjøper har andre brukskrav eller krav til estetikk kreves det utbedring eller utskifting.
Spesialrom
1. Etasje > Toalettrom
Overflater og konstruksjon,TG2
TOALETTROM 1. ETASJE. Toalettrommet er utstyrt med følgende: Gulvmontert toalett. Servant. Naturlig ventilasjon Rommet har følgende overflater: Gulv med fliser. Vegger med malte MDF panelplater. Himling med himlingsplater
Det er avvik: Toalettrommet har kun naturlig ventilasjon.
Tiltak: Det anbefales å montere elektrisk avtrekksvifte og løsning for tilluft til toalettrommet.
1. Etasje > Kjølerom
Overflater og konstruksjon,TG2
KJØLEROM. Plassbygd kjølerom med innredning. Overflate gulv er gulvbelegg. Overflate vegg er trepanel. Overflate himling er trepanel Plassbygde kjølerom har erfaringsmessig høy skaderisiko som følge av oppbygging av plassering og konstruksjon. Kjøleromkonstruksjonene er lukket og derfor ikke vurdert. Kun synlige overflater er vurdert. Kjøleromsaggregat er ikke undersøkt/ vurdert.
Det er avvik: Kjølerom skal utføres som rom-i-rommet, dette vil si at kjølerommet skal være omsluttet av luftespalte med utlufting mot øvrige konstruksjoner. Det er ikke fremlagt dokumentasjon på utførelse av kjølerommet, og heller ikke påvist at rommet er utført som rom-i-rom. Kjøleaggregatets alder tilsier at mer enn halvparten av brukstiden er oppbrukt. Vurderingen baseres derfor på alder.
Tiltak: Det kan ikke verifiseres oppbygging av kjølerommet, rommet kan derfor ha avvik som ikke er avdekket i denne rapporten. Det anbefales å følge med på tilstand til kjølerommet samt omkringliggende konstruksjoner for å oppdage indikasjoner på skader så tidlig som mulig. Ut fra alder kan det ikke utelukkes at skader og funksjonssvikt kan oppstå uten forutgående varsel. Det anbefales vedlikehold i henhold til produsentens anbefalinger.
2. Etasje > Toalettrom
Overflater og konstruksjon,TG2
TOALETTROM 2. ETASJE. Toalettrommet er utstyrt med følgende: Gulvmontert toalett. Servant. Naturlig ventilasjon Rommet har følgende overflater: Gulv med gulvbelegg. Vegger med beiset trepanel. Himling med malt trepanel.
Det er avvik: Toalettrommet har kun naturlig ventilasjon.
Tiltak: Det anbefales å montere elektrisk avtrekksvifte og løsning for tilluft til toalettrommet.
Tekniske installasjoner
Vannledninger,TG2
INNVENDIGE VANNLEDNINGER. Anlegget er kun visuelt undersøkt, for undersøkelse av anleggets tekniske og funksjonelle forhold anbefales det undersøkelse av fagmann på denne type anlegg. Synlige vannledninger i metall. Stoppekran plassert i kjeller.
Det er avvik: Røroppleggets alder tilsier at innvendige vannledninger har oppbrukt mer enn halvparten av sin brukstid. Vurderingen baseres derfor på alder og at det ikke er påvist funksjonssvikt. Det er registrert noe manglende isolering av røropplegg.
Tiltak: Det er ikke behov for strakstiltak siden det ikke er påvist funksjonssvikt ved innvendige vannledninger, men ut fra alder kan det ikke utelukkes at skader og funksjonssvikt kan oppstå uten forutgående varsel. På denne bakgrunn anbefales det å følge med på tilstand til røropplegget. Det er ikke behov for strakstiltak i forhold til isolering av rør, men kondens på utsiden av rør og varmetap fra rør for varmt vann er en konsekvens av manglende isolasjon av vannrør. Det anbefales å gjøre en vurdering av eventuelle uønskede konsekvenser med tiltak som følge av dette.
Avløpsrør,TG2
INNVENDIGE AVLØPSRØR. Anlegget er kun visuelt undersøkt, for undersøkelse av anleggets tekniske og funksjonelle forhold anbefales det undersøkelse av fagmann på denne type anlegg. Synlige avløpsrør i PVC.
Det er avvik: Røroppleggets alder tilsier at innvendige avløpsledninger har oppbrukt mer enn halvparten av sin brukstid. Vurderingen baseres derfor på alder og at det ikke er påvist funksjonssvikt.
Tiltak: Det er ikke behov for strakstiltak siden det ikke er påvist funksjonssvikt ved innvendige avløpsledninger, men ut fra alder kan det ikke utelukkes at skader og funksjonssvikt kan oppstå uten forutgående varsel. På denne bakgrunn anbefales det å følge med på tilstand til røropplegget.
Andre VVS-installasjoner,TG2
VANNFORSYNING FRA BOREHULL. Boligen har egen vannforsyning fra borehull Pumpe er plassert i borehull, kontrollenhet plassert i kjeller. Trykktank som gir jevnt vanntrykk inn på boligens anlegg plassert i kjeller. Installasjoner for vannbehandling er plassert i kjeller. Opplyst av eier at det er nytt borehull fra 2024.
Det er avvik: Alder til deler av anlegget for vannforsyning tilsier at mer enn halvparten av brukstiden er oppbrukt. Vurderingen baseres derfor på alder og at det ikke er påvist funksjonssvikt.
Tiltak: Det er ikke behov for strakstiltak siden det ikke er påvist funksjonssvikt ved anlegget for vannforsyning, men ut fra alder kan det ikke utelukkes at skader og funksjonssvikt kan oppstå uten forutgående varsel.
Varmtvannstank,TG2
VARMTVANNSTANK. Varmtvannstank med produksjonsår 01/ 2005 Størrelse 194 liter Plassert i bod ved kjøkken.
Det er avvik: Varmtvannstankens alder tilsier at mer enn halvparten av brukstiden er oppbrukt. Vurderingen baseres derfor på alder og at det ikke er påvist funksjonssvikt.
Tiltak: Det er ikke behov for strakstiltak siden det ikke er påvist funksjonssvikt, men ut fra alder kan det ikke utelukkes at skader og funksjonssvikt kan oppstå uten forutgående varsel.
Tomteforhold
Grunnmur og fundamenter,TG2
GRUNNMUR. Grunnmur utført som gråsteinsmur.
Det er avvik: Det er påvist skade på grunnmuren.
Tiltak: Det må påregnes vedlikehold/ utbedring av grunnmur. Manglende utbedring/ vedlikehold vil kunne føre til ytterligere skade på grunnmuren.
Terrengforhold,TG2
TERRENGFORHOLD. Tomta er i hovedsak skrå. Terrengforhold mot bolig skal ha en utforming som bidrar til å lede vann vekk fra grunnmuren. Anbefalt fall på terrenget ut fra grunnmur er 6 cm lavere terreng 3 meter ut fra grunnmur.
Det er avvik: Terrenget har stedvis ikke tilstrekkelig fall bort fra grunnmuren.
Tiltak: Ut fra tilstand på befaringsdagen er det ikke nødvendig med strakstiltak i forhold til terrengets utførelse mot grunnmur. Det anbefales imidlertid å følge med på om vann samler seg/ renner inn mot grunnmur ved ulik nedbørsintensitet. Dersom vann samler seg mot grunnmur anbefales det å gjennomføre tiltak for å lede vann bort fra grunnmur. Vann som trekker inn mot grunnmuren medfører unødvendig fuktbelastning på grunnmur/ fuktsikring/ drenering, og øker sannsynligheten for at vann kan trenge inn i boligens innvendige areal under terreng.
Utvendige vann- og avløpsledninger,TG2
UTVENDIGE VANN- OG AVLØPSLEDNINGER. Utvendige vann- og avløpsledninger er nedgravde installasjoner som ikke er tilgjengelig for vurdering. Røroppleggets alder tilsier at vann- og avløpsledninger har oppbrukt mer enn halvparten av sin brukstid. Vurderingen baseres derfor på alder og at det ikke er påvist funksjonssvikt. Tilstandsgrad gis på grunnlag av alder og at det ikke er påvist funksjonssvikt. Det gjøres likevel oppmerksom på at dette kun er situasjonen på befaringstidspunktet og at skader og funksjonssvikt kan oppstå uten forutgående varsel.
Det er avvik: Utvendige vann- og avløpsledninger er nedgravde konstruksjoner som ikke er tilgjengelig for vurdering. Røroppleggets alder tilsier at vann- og avløpsledninger har oppbrukt mer enn halvparten av sin brukstid. Vurderingen baseres derfor på alder og at det ikke er påvist funksjonssvikt.
Tiltak: Det er ikke behov for strakstiltak siden utvendige vann- og avløpsledninger fungerer med dagens bruk, men det kan ikke sies noe sikkert om tilstand. Det kan derfor ikke utelukkes at skader og funksjonssvikt kan oppstå uten forutgående varsel.
Septiktank,TG2
AVLØPSANLEGG. Utvendige avløpsanlegg er nedgravde installasjoner som ikke er tilgjengelig for vurdering. Anleggets alder tilsier at avløpsanlegget har oppbrukt mer enn halvparten av sin brukstid. Vurderingen baseres derfor på alder og at det ikke er påvist funksjonssvikt. Tilstandsgrad gis på grunnlag av alder og at det ikke er påvist funksjonssvikt. Det gjøres likevel oppmerksom på at dette kun er situasjonen på befaringstidspunktet og at skader og funksjonssvikt kan oppstå uten forutgående varsel.
Det er avvik: Avløpsanlegg er nedgravde konstruksjoner som ikke er tilgjengelig for vurdering. Anleggets alder tilsier at avløpsanlegg har oppbrukt mer enn halvparten av sin brukstid.
Tiltak: Det er ikke behov for strakstiltak siden avløpsanlegget fungerer med dagens bruk, men det kan ikke sies noe sikkert om tilstand. Det kan derfor ikke utelukkes at skader og funksjonssvikt kan oppstå uten forutgående varsel. Det stilles krav til tilstand og funksjon på private avløpsanlegg. Det er påregnelig at det kan komme pålegg om utbedring/ oppgradering av private avløpsanlegg, eller tilkobling til kommunalt avløpsnett der dette er mulig.
Våningshus
Standard: Boligen fremstår med normal standard og planløsning, og vil være tilfredsstillende for de fleste når det gjelder fasiliteter og bostandard.
Vedlikehold: Bygget fremstår som vedlikeholdt, men løpende vedlikehold må påregnes.
Kårbolig
Utvendig
Taktekking,TG2
Taket er tekket med metallplater. Betongtakstein på tilbygg. Tak (takkonstruksjon, taktekking og skorstein) er kun observert fra bakkenivå og vurderingen er begrenset av dette. Det er ikke sikkerhetsmessig forsvarlig å bevege seg ut på taket eller observere fra stige. Selv om det ikke er avdekket skader under befaringen, betyr ikke dette at det ikke foreligger skader som en besiktigelse på taket kan avdekke. Vær oppmerksom på denne risikoen. En undersøkelse av taket kan utføres av en fagperson under tilstrekkelige sikkerhetsforhold.
Det er avvik: Halvparten av forventet funksjonstid eller mer på taktekking og undertak er oppnådd. Taktekking er delvis mosegrodd. Gjennomføringer i denne taktekkingen er svake punkt og risikoen for skader er høy.
Tiltak: Det er ikke behov for strakstiltak, men ut ifra alder kan skader oppstå på eldre taktekking/undertak. Mose anbefales fjernet fordi det forkorter levetiden til tekkingen. Det anbefales å føre jevnlig tilsyn med taktekkingen, spesielt ved større nedbørsmengder og/eller snøsmelting.
Nedløp og beslag,TG2
Utvendige beslag, takrenner og nedløp avmetall. Vindskier og toppbord i treverk.
Det er avvik: Takrenner og beslag har oppnådd mere enn halvparten av forventet funksjonstid. Takrenne/nedløp har lekkasje enkelte steder. Takrenne/nedløp er bøyd/deformert etter snøras eller ising i renne. Det mangler snøfanger på hele/deler av takflatene. Ikke montert takrenner på hele lengden.
Tiltak: Det er ikke behov for strakstiltak, men ut ifra alder kan skader og lekkasjer oppstå på eldre takrenner og beslag. Vindskier har behov for vedlikeholdsarbeider. Utettheter i utvendige beslag/renner må utbedres. Byggverket skal sikres slik at is og snø ikke kan falle ned på steder hvor personer og husdyr kan oppholde seg. Dersom snøfangere monteres er det imidlertid nødvendig å kontrollere styrken på takkonstruksjonen før snøfangere monteres.
Veggkonstruksjon,TG2
Yttervegg i tømmer som er innkledd i etterkant av byggeår. Stående utvendig trekledning. Konstruksjonen er lukket, oppbygging, isolering og tilstand innvendig i konstruksjonen er derfor ikke vurdert. Kun synlige overflater utvendig og innvendig er vurdert.
Det er avvik: Deler av veggkonstruksjonen er skjult og har en alder som øker sannsynligheten for skjulte feil. Bygningsdelene har oppnådd mye av sin forventede funksjonstid. Lufting av kledningen er ikke iht. dagens anbefalte løsning. Det er observert glipper/åpninger i overganger/lufting i veggkonstruksjon der skadedyr kan komme inn. Ingen eller liten avstand fra kledning og ned på vannbrett/beslag.
Tiltak: Deler av veggkonstruksjon er kledd inn og der kan være risiko for skjulte skader i veggen som ikke er mulig å avdekke uten fysiske inngrep. Vedlikeholdsarbeider må påregnes. Lite lufting bak kledning. Utbedring av lufting vil ikke være lønnsomt som enkeltstående tiltak, men ved skifte av utvendig kledning bør det lages tilstrekkelig lufting. Manglende lufting gir økt risiko for fuktskader i konstruksjonen. Det er ikke behov for strakstiltak. Åpninger i veggkonstruksjonen kan føre til at skadedyr etablerer seg, noe som kan skade bygningsmaterialer og medføre reparasjonskostnader. Det anbefales å følge med på tilstanden og tette glipper/åpninger over 6 mm for å hindre inntrengning. Ved utbedring må lufting av konstruksjonen ivaretas. Uten tilfredsstillende avstand til vannbrett/beslag vil vann trekkes opp av kledningen og veggen bak. Dette kan føre til fuktproblemer, som igjen kan forårsake fuktskader.
Takkonstruksjon/Loft,TG2
Mønet skråtak i trekonstruksjoner. Bærende takåser av rundtømmer. Eldre bordkledning som undertak.
Det er avvik: Tilgjengelige deler av konstruksjonen er delvis inspisert fra luke/loftstige og lyst med lommelykt. Fuktmerker er registrert ved gjennomføringer. Det er usikkert om fuktmerker skyldes eldre eller nyere vanngjennomtrengning. Fuktmerker kan ha oppstått ved spesielle værforhold. Spor etter skadedyr er registrert, ukjent omfang.
Tiltak: Det anbefales å føre jevnlig tilsyn med takkonstruksjon, spesielt ved større nedbørsmengder og/eller snøsmelting. Gjennomføringer i tak må kontrolleres for å kartlegge årsak til misfarging/fuktmerker. Det er ikke behov for strakstiltak i forhold til åpninger der skadedyr kan komme inn, men det anbefales å følge med på tilstand slik at det kan avdekkes på et tidlig tidspunkt dersom det registreres skadedyr inne i konstruksjonene. Dersom det ønskes å gjennomføre tiltak for å stenge for inntrengning av skadedyr må alle glipper / åpninger med størrelse over 6 mm tettes, ved en slik utbedring må det påses at ventilering av konstruksjone ivaretas.
Vinduer - 2,TG2
Trevinduer med 1+1 lags glass og konlet glass, hovedsaklig i 2. et, enkelte i 1. et. Trevinduer med 2-lags isolerglass fra 1995 i tilbygg-vindfang. Vinduer i varierende alder og utførelse.
Det er avvik: Vinduskitt er slitt og har løsnet enkelte steder. Vinduer fra byggeår bærer preg av slitasje. Vinduene er undersøkt fra bakkenivå og innvendige rom og det ble foretatt en enkel funksjonstest av tilfeldig valgte vinduer i boligen. Enkelte vinduer er vanskelig å åpne/lukke.
Tiltak: Overflatebehandlingen er treverkets beskyttelse mot vann, tilsmussing og misfarging fra svertesopp eller alger. Om treverket blir stående uten beskyttelse vil dette øke risikoen for at treverket trekker til seg fukt som igjen kan føre til fuktskader. Oppgraderinger/utskiftninger bør påregnes. Konsekvens av avviket/eldre vinduer/dårlige vinduer, gir en fremtidig kostnad på fornyelse/vedlikehold. Eldre vinduer medfører økt forbruk av energi til oppvarming. Varmetap fra vinduer kan forårsake at varm luft stiger inn på kaldtloft og er med på å skape kondens og ising på taktro i den kalde årstiden.
Dører,TG2
Ytterdør i treverk med 2-lags isolerglass fra 1995. Balkongdør i treverk med 2-lags isolerglass fra 1993.
Det er avvik: Balkongdør: Dører er værslitte utvendig. Dørene har høyt varmetap i forhold til dagens krav. Slitasje på vrider/lås.
Tiltak: Overflatebehandlingen er treverkets beskyttelse mot vann, tilsmussing og misfarging fra svertesopp eller alger. Om treverket blir stående uten beskyttelse vil dette øke risikoen for at treverket trekker til seg fukt som igjen kan føre til fuktskader. Det er ikke behov for strakstiltak siden dørene fungerer i dag, men ut ifra alder kan skader eller punkteringer oppstå på eldre dører. Dører med høyt varmetap medfører økt forbruk av energi til oppvarming.
Balkonger, terrasser og rom under balkonger,TG3
Terrasse på ca. 28 m² mot sør med adkomst fra stue. Fundamentert med tresøyler med betongfundament. Konstruksjoner, overflater, rekkverk og håndlist i treverk. Rekkverkhøyde på ca. 101 cm. Terrassemarkise - motorisert, montert over deler av terrasse.
Det er avvik: Det er registrert råteskader i rekkverk og eldre bjelker. Slitasje er registrert. Konstruksjoner/overflater har vedlikeholdsbehov. Rekkverk har ikke tilfredsstillende stivhet.
Tiltak: Tidspunkt for utskiftning av overflater nærmer seg ut ifra forventet brukstid. Råteskader i rekkverk kan ha flere alvorlige konsekvenser. Først og fremst svekker råten treverket, noe som gjør rekkverket/konstruksjonen ustabilt og svakt. Et svekket rekkverk/konstruksjon kan knekke eller gi etter, noe som kan føre til fall og skader. For å unngå disse problemene er det viktig å inspisere rekkverk/konstruksjon jevnlig og reparere eventuelle skader så snart de oppdages.
Kostnadsestimat : 50 000 - 100 000
Innvendig
Overflater,TG2
Innvendige overflater på himlinger er i hovedsak preget av: Panel. Innvendige overflater på vegger er hovedsakelig preget av: Panel. Tømmer. Innvendige overflater på gulv er hovedsakelig preget av: Heltregulv. Fliser. Parkett.
Det er avvik: Forventet funksjonstid er oppnådd for flere overflater, påregnelig med moderniseringer. Bruksmerker, riper, hull etter bildeinnfesting, tv og møbler er påregnelig på alle overflater. Det er registrert symptom på aktivitet fra skadedyr.
Tiltak: Avhengig av bruksmønster og krav til estetikk av kjøper kan det være påregnelig med utskiftning/utbedringer. Skadedyr i boligen er tegn på ikke tilfredsstillende sikring mot skadedyr. Tiltak for å redusere tilkomst for skadedyr må iverksettes for å få tilstandsgrad 0 eller 1. Skadedyr kan ha gjort skade på isolasjon i konstruksjon som kan føre til redusert isolasjonsevne.
Etasjeskille/gulv mot grunn,TG2
Etasjeskiller i trekonstruksjoner. Støpt gulv på grunn i kjeller. Det er målt ca. 25 mm høydeforskjell på gulv i 1. etasje på stue, og ca. 15 mm på kjøkken. Det er målt ca. 95 mm høydeforskjell på gulv i 2. etasje på ene soverom, og ca. 20 mm på gang. Skjevheter er målt i to tilfeldige rom i hver etasje, noe som er kravet i avhendingsloven. Mer skjevheter kan ikke utelukkes i rom som er lukket.
Det er avvik: Det er registrert tørråte i etasjeskille, synlig fra kjeller, se bilde. Deler av bygningsdelene er skjult og har en alder som øker sannsynligheten for skjulte feil. Bygningsdelene har oppnådd mye av sin forventede funksjonstid. Tilstandsgrad gitt pga. nevnte forhold. Det er registrert manglende stivhet i etasjeskille i 2. etasje. Det er påvist totalt høydeavvik over 30mm.
Tiltak: Det må påregnes utbedringer av råteskader. Omfang av utbedringer avgjøres på grunnlag av resultatet fra ytterligere undersøkelser. Fukt/råteskader kan forårsake soppvekst, bakterieangrep, dårlig lukt og uheldige kjemiske reaksjoner i bygningsmaterialer, samt manglende stivhet/bæring i konstruksjoner. Det er ikke registrert synlige avvik som tilsier at man må påregne umiddelbare tilltak, men da deler av konstruksjon er kledd inn anbefaler jeg ytterligere undersøkelser. Det oppfordres til ytterligere undersøkelser rundt etasjeskillerens stivhet og stabilitet. Det er påregnelig med avstivninger av etasjeskille. For å få tilstandsgrad 0 eller 1 må høydeforskjeller rettes opp. Det vil imidlertid sjelden være økonomisk rasjonelt som et enkeltstående tiltak i en bolig som dette. Dersom boligen en gang skal renoveres, kan man vurdere slike tiltak.
Radon,TG2
Det er ikke foretatt radonmålinger, og bygget hadde ikke krav til radonsperre. Årsgjennomsnittet av radonkonsentrasjon i rom bør ikke overstige 200 Bq/m³ i inneluft. Er det radonnivåer over 100 Bq/m³ , bør det gjøres tiltak for å redusere nivået. Radonnivået bør være så lavt som praktisk mulig og alltid under 200 Bq/m³. Ved å gjøre radontiltak vil nivået kunne reduseres vesentlig. Det er krav til dokumentasjon av radonmålinger om hele eller deler av boligen er utleid. Mer informasjon kan leses på https://dsa.no/radon Tilstandsgrad 2 er satt fordi radon skal vurderes opp mot dagens forskriftskrav og NS 3600 stiller krav til at alle boliger skal foreta radonmålinger.
Det er ikke foretatt radonmålinger, og bygget er heller ikke utført med radonsperre.
Tiltak: Det bør gjennomføres radonmålinger.
Pipe og ildsted,TG2
Pipe i lettklinkerblokker i stue, montert ny i 1994. Ildsted er montert - vedovn. Pipe i murt gråstein fra byggeår. Gruve på kjøkken og bakerovn. Piper over tak er ikke vurdert da tilgangsmulighet ikke ivaretar HMS krav.
Det er avvik: Mer enn halvparten av forventet brukstid er oppnådd på gråsteinspipe/ildsted. Pipe er besiktiget fra bakkenivå da det ikke var godkjent sikringsutstyr for arbeid på tak på befaringen. Det anbefales på generell basis alltid en kontroll av piper og ildsteder ved omsetning av boliger. Det gjøres oppmerksom på at det er det lokale brann- og feiervesen som fører tilsyn med piper og ildsteder i hver enkelt kommune. Ovner og oppvarmingskilder er ikke funksjonstestet av takstmann.
Tiltak: Ytterligere undersøkelser må foretas for å få kartlagt tilstanden på pipe. Innhent dokumentasjon, om mulig.
Rom Under Terreng,TG2
Kjeller under deler av kjøkken, målt til ca. 12 m². Takhøyde, 1,77 m, areal er ikke målverdig. Kjeller er en grovkjeller med synlig grunnmur og støpt gulv. Hulltaking er derfor ikke aktuelt.
Det er avvik: Ved enkle fuktsøk med fuktindikator registrerte jeg verdier utover hva som forventes som normalt.
Tiltak: Se tiltak under drenering. Det er ikke behov for strakstiltak siden rommene fungerer med dagens bruk. Det anbefales å utrede omfanget av fuktpåkjenning.
Krypkjeller,TG2
Murt ringmur med kryprom under stue. Ingen adkomst til innerste del av krypkjeller. Deler av krypkjeller har adkomst fra åpning med dør i grunnmur under terrasse. Det er gitt opplysninger fra eier om at det er nyere bjelkelag fra 1994 i stuedel 1. etasje.
Det er avvik: Det ligger organiske materialer direkte mot grunn som anbefales fjernet da dette gir sopp/råteskader. Krypekjeller/blindrom under stue har ingen inspeksjonluke. Krypkjeller regnes for å være en risikokonstruksjon som er utsatt for fukt- og råteskader i bunnsvill, trebjelkelaget og andre tilstøtende konstruksjoner, på grunn av fuktighet fra grunnen og kondensering ved temperaturforskjeller. Selv om det ikke er avdekket skader som krever strakstiltak på befaringstidspunktet, betyr ikke dette nødvendigvis at det ikke foreligger skader i eller i forbindelse med krypkjelleren. Vær oppmerksom på denne risikoen, overvåk tilstanden og undersøk dette nærmere, helst med hjelp av en fagkyndig.
Tiltak: Det bør etablere inspeksjonsluke sammen med at krypkjeller inspiseres av fagkyndig som kan gjøre en vurdering av konstruksjonens tilstand. Tiltak basert ytterligere undersøkelser kan forekomme.
Innvendige trapper,TG2
Trapper av treverk mellom etasjene.
Det er avvik: Det er ikke etablert håndløper på begge sider i trappeløpet. Rekkverkshøyder er under dagens forskriftskrav til rekkverk i trapper. Trapp har lav høyde til etasjeskille.
Tiltak: Håndløper må monteres på vegg. Det er ikke krav om utbedring av rekkverkshøyder opp til dagens krav. Det er ikke krav om utbedring av åpninger opp til dagens krav. Selv om nye krav ikke har tilbakevirkende kraft anbefales det at trapper sikres iht. dagens krav.
Innvendige dører,TG2
Profilerte tredører fra byggeår. Formpressede innerdører stedvis i 1.et. Glassfelt i enkelte dører.
Det er avvik: Slitasje på vrider og låsekasser. Enkelte dører bærer preg av bruksslitasje. Lave døråpninger.
Tiltak: Dørene fungerer i dag, men ut ifra alder og funksjon er utskifting nært forestående. Enkelte dører trenger justeringer.
Våtrom
1. Etasje > Bad
Generell,TG3
Belegg på gulvet. Belegg på vegger. Malte glatte flater i himling. Sluk av plast. Servant med underskap. Speil med tilhørende belysning. Dusj. Gulvmontert wc. Opplegg for vaskemaskin. Varme i gulv. Naturlig avtrekk. Ved vurdering av våtrommet legges det til grunn krav fra dagens gjeldende Teknisk forskrift (TEK17). Sjekkpunkter vurderes visuelt slik de fremstår ved befaring, uten demontering/ flytting av deksler/innredning ol. Dette er et våtrom som har oppnådd forventet brukstid, og som ikke bør benyttes videre som våtrom. Det må påregnes fullstendig oppbygging av nytt våtrom. Våtrommet gis TG 3.
vurdering av avvik: Våtrommet må oppgraderes for å tåle normal bruk etter dagens krav.
Vurdering er basert på anbefalt brukstid. Tilstandsgrad 3 gis med bakgrunn i at forventet brukstid for skjulte våtrommet er oppnådd. Vindu er plassert i våtsonen, dette anses som en risikokonstruksjon da det kan oppstå lekkasjer i veggkonstruksjonen rundt vinduet. Membran er ført ned i sluk uten klemring. Dette gir økt risiko for lekkasje hvis sluk ikke har tilstrekkelig avrenning. Membraner har en aldringsprosess og forventet brukstid. Dette kan også variere ut fra hvilken type membran som er benyttet, hvilke egenskaper denne har i kombinasjon med selve utførelsen, og ut fra bruksintensitet. Risiko for lekkasjer øker med alder.
Tiltak: Våtrommet må totalrenoveres. Alle forhold med tettesjikt, våtsone, sluk m.m. må dokumenteres.
Kostnadsestimat : 100 000 - 300 000
1. Etasje > Bad
Tilliggende konstruksjoner våtrom,TG3
Hulltaking er ikke foretatt da det allerede er påvist andre avvik i våtsonen.
Vurdering av avvik: Den valgte konstruksjonsutforming gir økt fare for skader
Det er ikke tilfredstillende klemming av tettesjikt/belegg mot sluk.
Tiltak: Det må foretas tiltak for å lukke avviket.
Skader/ følgeskader kan være en konsekvens av feil ved utførelse. Det anbefales derfor å følge med på tilstand til konstruksjonen. Kostnadsestimat er satt under våtrom>generell.
Kostnadsestimat : Ingen umiddelbar kostnad
Kjøkken
1. Etasje > Kjøkken
Overflater og innredning,TG2
Kjøkkeninnredning i heltre med profilerte fronter og laminert benkeplate med kjøkkenkum. Flislagt og belysning over benkeplate. Plass til frittstående komfyr, oppvaskmaskin og kjøleskap. Jeg har ikke funksjonstestet eller vurdert hvitevarer og det gis ingen garanti på innbygningsprodukter som følger med boligen. Skade eller funksjonssvikt kan oppstå på hvitevarer eldre enn fem år.
Det er avvik: Enkelte fronter/sokler har malingsflass. Kjøkkenkran er løs.
Tiltak: Avhengig av bruksmønster og krav til estetikk av kjøper kan det være påregnelig med maling/utbedringer av kjøkkeninnredningen. Kjøkkenkran må festes tilstrekkelig.
1.
Kommunale avgifter
Kommunale avgifter inkluderer tømming av slamavskiller (tett tank), renovasjon, brannsyn-/feiing og eiendomsskatt.
Tomten
Eiendommens totale areal er 1 944,1 daa, hvorav om lag 135,8 daa. er fulldyrket mark, 1 477,7 daa. er produktiv skog, 151,2 daa. er avsatt til annet areal, 142,4 daa. er innmarksbeite og 28,4 daa. er bebygd/tun.
Jord
Jordbruksarealet ligger i teiger som omkranser gårdstunet og med en teig som ligger etter Østfjellvegen. I tillegg til to teiger som omkranser sæterbebyggelsen i Østfjellvegen.
Arealet er hellende med noe varierende arrondering. Dyrket areal benyttes til grasproduksjon. Arealet gir gode årvisse grasavlinger. Drenering av eldre dato som er i god tilstand.
Kalktilstanden er varierende på de ulike skiftene. Eiendommen har ikke vanningsmulighet.
Skog
Skogarealene ligger i en sammenhengende hovedteig, med ett midre areal som omkranser dyrket areal. Arealet har arrondering-/terreng som er egnet for maskinell sluttavvirkning.
Skogteigene har tilkomst over eget areal. Det er utført nyplanting av arealer som er sluttavvirket, med unntak av sluttavvirkning i 2024 som er planlagt plantet i 2025. Ungskogpleie er tatt løpende og er ajour. Innestående på skogfondkonto er ca. kr. 56.000,-. Det foreligger skogbruksplan med registreringsår 2020.
Totalt skogareal: 1632 daa.
Produktiv skog: 1392 daa.
Areal med nøkkelbiotoper: 36 daa.
Total kubikkmasse 10390 kubikk.
Årlig tilvekst ca. 495 kubikk.
Beregnet årlig hogstkvantum første 10 års periode: 251 kubikk.
Eiendommen har eierandel på 32 % i Sameiet Ringen skogteig, denne andelen utgjør et totalt areal på 7,5 daa. Sameiets areal er sluttavvirket senere år og nyplantet.
Jakt
Eiendommens areal inngår i felles jaktområde som administreres av Nordtrettern Jaktforvaltning SA. Her er det muligheter for elgjakt, hjortejakt og jakt på rådyr. Det er muligheter for fiske i ulike fjellvann.
Jfr. NIBIO gårdskart 08.05.2025 ligger et mindre areal av eiendommen innenfor verneskogområde. I henhold til Skogbruksloven § 12, anses skog som vernskog når den tjener til vern for annen skog eller gir vern mot naturskader. Det samme gjelder områder opp mot fjellet eller ut mot havet der skogen er sårbar og kan bli ødelagt ved feil skogbehandling.
Eiendommen har festet sætertun med beite-/dyrket areal som ligger i Statskog sine arealer.
Eiendommen har almenningsrett.
Radonmåling
Eiendommen ligger i et område med registrering moderat til lav når det gjelder radonforekomst. Det er ikke lagt fram dokumentasjon på utførelse av radonsperre. Det er ikke gjennomført radonmåling.
Offentlig kommunikasjon
Kjøreavstander fra eiendommen:
* Øyer stasjon med buss og tog ca. 15 min
* Hafjell, ca. 25 min.
* Skeikampen, ca. 25 min.
* Hamar, ca. 1 time og 20 min.
* Lillehammer, ca. 30 time
* Oslo, ca. 2 time og 45 min.
* Oslo Lufthavn Gardermoen, ca. 2 time og 15 minutter.
Oppvarming
Våningshus
Åpen grue i kjøkken, lukket vedovn i kjøkken og stuer. Elektriske varmeovner og varmepumpe.
Varme i gulv på bad, gang og kjøkken.
Kårbolig
Strøm og vedfyring. Luft til luft varmepumpe. Varme i gulv på bad og vindfang. Vedovn i stue.
Gruve på kjøkken og bakerovn.
Sæterhus
Åpen grue i lille stue, lukket peis i stue, vedovn i tilbygg.
Skolekrets
Solvang (Øyer)
Aurvoll (Tretten)
Barnehage/skole/fritid
Barnehager
Dulven friluftsbarnehage (0-5 år) 24 min. (privat)
27 barn 8-9 km
Mosjordet barnehage (1-5 år) 10 min. (kommunal)
38 barn 5.9 km
Granerudmoen (privat)
Hågåsletta (privat)
Vidarheim (kommunal)
Skoler
Aurvoll skole (1-7 kl.) 9 min
111 elever, 7 klasser 5.7 km
Øyer ungdomsskole (8-10 kl.) 19 min
168 elever, 9 klasser 18.1 km
Gausdal videregående skole 35 min
373 elever 25 km
Lillehammer vgs - avd. Nord 31 min
454 elever 31.3 km
Lillehammer vgs - avd. Sør
NTG Lillehammer med mange forskjellige idretter
Create - privat videregående
En skole for de kreative som teater, sang og musikk
Universitetet Innlandet - Stor avdeling på Lillehammer
Sport
Hafjell med alle dens muligheter og tilbud til alle årstider
Kvitfjell - ca. 25 min.
Aktivitetshall, ballspill, fotball 5.5 km
Tretten idrettshall 8 min
Aktivitetshall 5.2 km
GO Trening Øyer 17 min
Actic Jorekstad Fritidsbad 27 min
Personopplysningsloven
I henhold til personopplysningsloven gjør vi oppmerksom på at interessenter kan bli registrert for videre oppfølgning.
Hvitvaskingsreglene
Eiendomsmeglere er underlagt Lov om tiltak mot hvitvasking og terrorfinansiering (hvitvaskingsloven) - L01.06.2018 nr. 23. Det følger av loven at megler bl.a. har plikt til å gjennomføre kundekontroll. I de tilfeller hvor kunden er juridisk person skal megler også kartlegge hvem som er reelle rettighetshavere. Med reelle rettighetshavere menes fysiske personer som eier eller kontrollerer mer enn 25% av eierandelene i selskapet. Partene må bidra til at kundekontrollen lar seg gjennomføre på en hensiktsmessig måte. Megler plikter å rapportere mistenkelige transaksjoner til Økokrim. Ved slik rapportering vil ikke partene blir varslet.
Vedlegg til Salgsoppgaven
Landbrukstakst
Tilstandsrapport
Selgers egenerklæring
Energimerking
Kommunale opplysninger
Ferdigattest/midlertidig brukstillatelse
Reguleringsbestemmelser
Servitutter
Lovverk
Eiendommen skal overleveres kjøper i tråd med det som er avtalt. Det er viktig at kjøper setter seg grundig inn i alle salgsdokumentene, herunder salgsoppgave, tilstandsrapport og selgers egenerklæring. Kjøper anses kjent med forhold som er tydelig beskrevet i salgsdokumentene. Forhold som er beskrevet i salgsdokumentene kan ikke påberopes som mangler. Dette gjelder uavhengig av om kjøper har lest dokumentene. Alle interessenter oppfordres til å undersøke eiendommen nøye, gjerne sammen med fagkyndig før bud inngis. Kjøper som velger å kjøpe usett kan ikke gjøre gjeldende som mangel noe han burde blitt kjent med ved undersøkelsen.
Dersom det er behov for avklaringer, anbefaler vi at kjøper rådfører seg med eiendomsmegler eller en bygningssakyndig før det legges inn bud. Hvis eiendommen ikke er i samsvar med det kjøperen må kunne forvente ut ifra alder, type og synlig tilstand, kan det være en mangel. Det samme gjelder hvis det er holdt tilbake eller gitt uriktige opplysninger om eiendommen. Dette gjelder likevel bare dersom man kan gå ut ifra at det virket inn på avtalen at opplysningen ikke ble gitt eller at feil opplysninger ikke ble rettet i tide på en tydelig måte. En bolig som har blitt brukt i en viss tid, har vanligvis blitt utsatt for slitasje og skader kan ha oppstått. Slik bruksslitasje må kjøper regne med, og det kan avdekkes enkelte forhold etter overtakelse som nødvendiggjør utbedringer. Normal slitasje og skader som nødvendiggjør utbedring, er innenfor hva kjøper må forvente og vil ikke utgjøre en mangel.
Boligen kan ha en mangel dersom det er avvik mellom opplyst og faktisk areal, forutsatt at avviket er på 2% eller mer og minimum 1 kvm. Ved beregning av et eventuelt prisavslag eller erstatning må kjøper selv dekke tap/kostnader opptil et beløp på kr 10 000 (egenandel).
Dersom kjøper ikke er forbruker selges eiendommen "som den er", og selgers ansvar er da begrenset jf. avhl. § 3-9, 1. ledd 2. pktm. Avhendingsloven § 3-3 (2) fravikes, og hvorvidt en innendørs arealsvikt karakteriseres som en mangel vurderes etter avhendingsloven § 3-8. Informasjon om kjøpers undersøkelsesplikt, herunder oppfordringen om å undersøke eiendommen nøye, gjelder også for kjøpere som ikke anses som forbrukere. Med forbrukerkjøp menes kjøp av eiendom når kjøperen er en fysisk person som ikke hovedsakelig handler som ledd i næringsvirksomhet."
Diverse
Ved overtakelse av eiendommen blir våningshuset ryddet og rengjort. Øvrige bygninger og utearealer overtas slik det fremstår på visning og vil ikke bli ryddet eller rengjort ut over dette. Selger forbeholder seg retten til å ta med seg det han selv ønsker av Løsøre, maskiner, redskaper og antikviteter. Dette gjelder også frittstående hvitevarer.
Regulering
Eiendommen ligger i område som er avsatt til LNRF. Gjeldene plan Kommuneplanens arealdel 2018-2028. Plan id 201309.
LNRF areal for nødvendige tiltak for landbruk og reindrift og gårdstilknyttet næringsvirksomhet basert på gårdens ressursgrunnlag.
- Kommuneplanens arealdel 2018-2028, 1 899 048,17 kvm.
Eiendommen vil pr. dd. ikke bli berørt av noen pågående planer.
Ferdigattest
Det foreligger ingen ferdigattester eller midlertidig brukstillatelse i kommunens arkiv. Til info utstedes det ikke lengre ferdigattest for tiltak det er søkt om før 1. januar 1998.
Det foreligger ikke godkjente og byggemeldte tegninger på øvrig bygningsmasse, og kjøper påtar seg risikoen for både fremtidig, fortsatt bruk og eventuelle pålegg, for alle ovennevnte ulovlige forhold, herunder risikoen for om bruken lar seg godkjenne, og alle kostnader forbundet med dette. Det kan være krav i lov, forskrift og planverk som ikke er eller kan oppfylles, i så fall vil kommunen kunne kreve at rommet/ rommene/ bygningsdelene settes tilbake til opprinnelig godkjent stand.
Vei, vann og avløp
Tilkomst til eiendommen fra Tårstadvegen via privat veg sammen med 2 naboeiendommer.
Eiendommen har privat vannforsyning fra borehull.
Opplyst av eier at borehull er fra ca. 2003, vedlikehold med trykking i 2024.
Eiendommen har privat avløpsanlegg med kum og spredegrøfter.
Servitutter
På eiendommen er tinglyst følgende heftelser og rettigheter som følger eiendommens matrikkel ved overskjøting til ny hjemmelshaver, og ved inngivelse av bud vil disse
være akseptert av budgiver/kjøper:
1872/900058-1/17 08.11.1872 ERKLÆRING/AVTALE
Kommisjonsforlik om bruken av endel jordstykker
1928/900440-1/17 03.12.1928 UTSKIFTING
1930/900370-1/17 15.05.1930 ERKLÆRING/AVTALE
Lover for Tretten Dampysteri
GJELDER DENNE REGISTERENHETEN MED FLERE
1931/900376-1/17 09.02.1931 ELEKTRISKE KRAFTLINJER
Moksa Kraftanlegg
GJELDER DENNE REGISTERENHETEN MED FLERE
1938/1970-1/17 01.12.1938 ERKLÆRING/AVTALE
Rettighetshaver: Televerket
Bestemmelser om
telefonledninger/stolper/kabler/grøfter m.v.
1983/990251-1/17 20.04.1983 ELEKTRISKE KRAFTLINJER
Midt-Gudbrandsdal Elverks kraftledning
GJELDER DENNE REGISTERENHETEN MED FLERE
1984/8891-1/17 19.11.1984 ERKLÆRING/AVTALE
Fremtidig vedlikehold av grendevegen TorsheimKjøndalen
GJELDER DENNE REGISTERENHETEN MED FLERE
1992/1212-1/17 05.02.1992 ELEKTRISKE KRAFTLINJER
Midt-Gudbrandsdal Energiverks Kraftledning går over
d.eid.
m.fl. ifl. utvidelse reg, 05.02.92. På en del
eiendommer er
det anlagt transformatorstasjoner.
GJELDER DENNE REGISTERENHETEN MED FLERE
1994/7810-1/17 30.09.1994 JORDSKIFTE
Jordskiftesak i forbindelse med rettsforholdene i
sameiet
"Ringen" på Tretten
GJELDER DENNE REGISTERENHETEN MED FLERE
2001/259-2/17 10.01.2001 BORETT
Rettighetshavere: Amund Tande f. 17.03.1939 og
Astrid Jorunn Tande f. 17.08.1941
GJELDER DENNE REGISTERENHETEN MED FLERE
2001/259-3/17 10.01.2001 ERKLÆRING/AVTALE
Bestemmelse om ved
Rettighetshavere: Amund Tande f. 17.03.1939 og
Astrid Jorunn Tande f. 17.08.1941
GJELDER DENNE REGISTERENHETEN MED FLERE
En kjøper/långiver må på eget initiativ sørge for å gjøre seg kjent med innholdet i grunnbøkene og samtlige tinglyste heftelser. Alle tilgjengelige servitutter i Statens Kartverk er innhentet av megler, disse kan oversendes på forespørsel.
Ansvarlig megler
Thor Asbjørn Lunde
Nyttige lenker
Nærområdet

TEGNEBY & GRØNNERØD LANDBRUKSMEGLING AS
Annonseinformasjon
| FINN-kode | 410826807 |
|---|---|
| Sist endret | 01. okt. 2025 18:18 |
| Referanse | GAR30.2529 |
Annonsene kan være mangelfulle i forhold til lovpålagt opplysningsplikt. Før bindende avtale inngås oppfordres interessenter til å innhente komplett informasjon fra meglerforetaket, selger eller utleier.
















































