Bildegalleri

Velkommen til Valevegen 90
Anvendelig næringslokale/gamle butikken i Valevåg
Nøkkelinfo
- Bruksareal
- 418 m²
- Eieform
- Eier (Selveier)
- Areal
- 418 m²
- Byggeår
- 1973
- Tomteareal
- 2 376 m² (eiet)
- Overtakelse
- Etter nærmere avtale med selger. Vær vennlig å angi ønsket overtagelsesdato i vedlagte budskjema.
Type lokale
Kort om eiendommen
Beliggende i Valevåg ved den gamle ferjekaien. Sentral beliggenhet for alle fastboende og fritidsboligene som ligger i området.
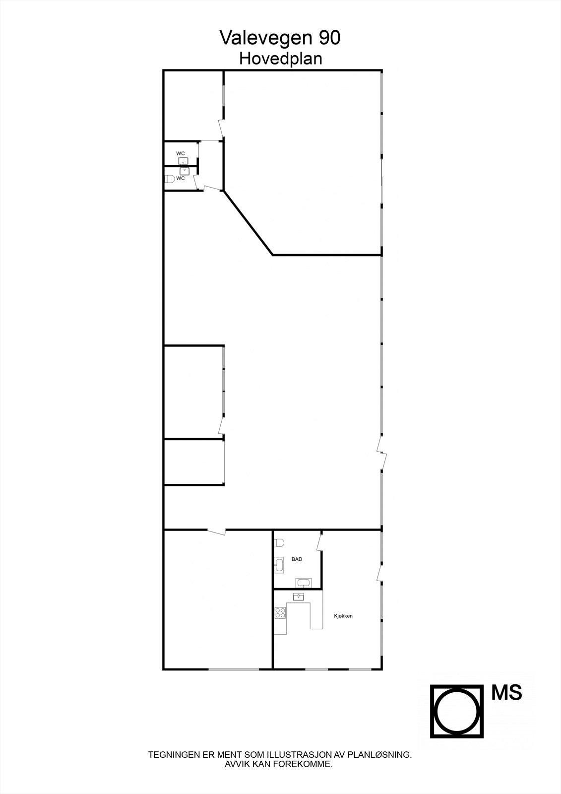
Bygget er i dag oppdelt i 3 "seksjoner" hvor det i ene enden er laget til en liten "kafe" som inneholder kjøkken og kafedel samt bad.
Midtre seksjonen har butikklokale, kjølerom, 2 toaletter, pauserom i tillegg til kontor. Det er satt opp lettvegg til lagerlokalet men kan fjernes med enkel grep om man ønsker å benytte hele lokalet til et formål. I tilknytning til butikklokalet, er det varemottak, eventuelt stor garasje.
Bygget er svært anvendelig og har stort potensial/gode utviklingsmuligheter for rett kjøper.
Beliggenhet
Beliggende i Valevåg ved den gamle ferjekaien. Sentral beliggenhet for alle fastboende og hyttene som ligger i området.
Innhold
Seksjon nordvest, kafe`lokale: stue/kjøkken og bad/vaskerom.
Midtseksjon, butikklokale: kjølerom, lagerrom/butikk, 2 toalettrom, grovkjökken, gang, og kontor.
Seksjon sørøst: lagerrom.
Tomt
Tomten er i all hovedsak planert og asfaltert.
Byggemåte
Bygget er oppfört i betongelementer.
For utfyllende beskrivelse, se vedlagt tilstandsrapport.
Standard
Bygget har noe oppgraderingsbehov.
Enkelt kjökken i hvit utförelse.
I tråd med Forbrukertilsynets gjeldende veileder for markedsføring av boliger skal all vesentlig informasjon om boligen fremheves i salgsoppgaven. Nedenfor gjengis derfor i stikkordsform de avvikene ved boligen som har fått tilstandsgrad 2 (TG2) eller 3 (TG3). Det presiseres likevel at hele salgsoppgaven inklusiv tilstandsrapporten, selgers egenerklæring og andre vedlegg må gjennomgås nøye. Dette fordi forhold som er beskrevet i salgsdokumentene ikke kan påberopes som mangler.
TG3 - STORE ELLER ALVORLIGE AVVIK
Utvendig > Vinduer.
Utvendig > Dører Gå til side
Innvendig > Etasjeskille/gulv mot grunn.
Tekniske installasjoner > Branntekniske forhold.
Kjøkken > Seksjon nord vest kafé lokaler > Kjøkken > Avtrekk.
Spesialrom > Midtseksjon, butikk lokaler > Toalettrom > Overflater og konstruksjon.
Spesialrom > Midtseksjon, butikk lokaler > Toalettrom 2 > Overflater og konstruksjon.
Kjøkken > Midtseksjon, butikk lokaler > Grovkjökken> Avtrekk.
TG2 - AVVIK SOM KAN KREVE TILTAK
Innvendig > Overflater Gå til side
Tekniske installasjoner > Vannledninger.
Tekniske installasjoner > Avløpsrør.
Tekniske installasjoner > Ventilasjon.
Tekniske installasjoner > Varmtvannstank.
Tekniske installasjoner > Elektrisk anlegg.
Tomteforhold > Fuktsikring og drenering.
Tomteforhold > Utvendige vann- og avløpsledninger.
Våtrom > Seksjon nord vest kafé lokaler >Bad/vaskerom > Overflater Gulv.
Våtrom > Seksjon nord vest kafé lokaler >Bad/vaskerom > Sluk, membran og tettesjikt.
Våtrom > Seksjon nord vest kafé lokaler > Bad/vaskerom > Sanitærutstyr og innredning.
Spesialrom > Midtseksjon, butikk lokaler > Kjølerom> Teknisk anlegg.
Kjøkken > Midtseksjon, butikk lokaler > Grovkjökken> Overflater og innredning.
TG2 - AVVIK SOM IKKE KREVER UMIDDELBARE TILTAK
Utvendig > Takkonstruksjon/Loft.
Oppvarming
Nyere varmepumpe i butikklokalet, ellers elektrisk oppvarming.
Energimerking
Eiendommen er ikke energimerket. Det følger av forskrift om energimerking § 5 at dersom eier ikke har lagt frem energiattest, og eier etter skriftlig anmodning fra kjøper ikke har lagt frem energiattest før avtale om salg er inngått, kan kjøper få laget en energiattest ved hjelp av ekspert for selgers regning, innen ett år etter at avtale om salg er inngått.
Adkomst
For veibeskrivelse henvises det til vedlagte kart i salgsoppgaven.
Parkering
Parkering på egen tomt.
Overtakelse
Etter nærmere avtale med selger. Vær vennlig å angi ønsket overtagelsesdato i vedlagte budskjema.
Sentrale lover
Eiendommen selges etter reglene i avhendingsloven.
Salgsoppgaven er basert på de opplysningene selger har gitt til bygningssakkyndig og megler, samt opplysninger innhentet fra kommunen, Statens kartverk og andre tilgjengelige kilder.
Eiendommen skal overleveres kjøper i tråd med det som er avtalt. Det er viktig at kjøper setter seg grundig inn i alle salgsdokumentene, herunder salgsoppgave, tilstandsrapport og selgers egenerklæring. Kjøper anses kjent med forhold som er tydelig beskrevet i salgsdokumentene. Forhold som er beskrevet i salgsdokumentene kan ikke påberopes som mangler. Dette gjelder uavhengig av om kjøper har lest dokumentene. Alle interessenter oppfordres til å undersøke eiendommen nøye, gjerne sammen med fagkyndig før bud inngis. Kjøper som velger å kjøpe usett kan ikke gjøre gjeldende som mangel noe han burde blitt kjent med ved undersøkelsen.
Dersom det er behov for avklaringer, anbefaler vi at kjøper rådfører seg med eiendomsmegler eller en bygningssakyndig før det legges inn bud.
Dersom kjøper ikke er forbruker selges eiendommen som den er , og selgers ansvar er da begrenset jf.§ 3-9 1. ledd 2. pktm. Informasjon om kjøpers undersøkelsesplikt, herunder oppfordringen om å undersøke eiendommen nøye, gjelder også for kjøpere som ikke anses som forbrukere.
På grunn av ulike avtalevilkår kan selger vurdere bud fra en som ikke er forbruker, ulikt fra en forbrukers bud. Dersom kjøper ikke er forbruker, er selger sitt mulige mangelsansvar begrenset fordi eiendommen selges "som den er". Selger kan ikke ta som den er forbehold ovenfor en forbrukerkjøper. Selv et lavere bud fra en som ikke er forbruker kan foretrekkes fordi begrensningen i mulig mangelsansvar kan ha egenverdi for selger. Selger står fritt til å forkaste eller akseptere ethvert bud, og er for eksempel ikke forpliktet til å akseptere høyeste bud.
Budgivere får informasjon dersom andre bud er inngitt av en som ikke er forbruker.
Forbrukerkjøp - definisjon
Med forbrukerkjøp menes kjøp av eiendom når kjøperen er en fysisk person som ikke hovedsakelig handler som ledd i næringsvirksomhet.
Forbruker avtalevilkår
Eiendommen har en mangel dersom den ikke er i samsvar med kravene som følger av avtalen, eller det foreligger brudd på bestemmelsene i avhendingsloven §§ 3-2 til 3-8. Hvis eiendommen ikke er i samsvar med det kjøperen må kunne forvente ut ifra alder, type og synlig tilstand, kan det være grunnlag for mangelskrav. Det samme gjelder hvis det er holdt tilbake eller gitt uriktige opplysninger om eiendommen. Dette gjelder likevel bare dersom man kan gå ut ifra at det virket inn på avtalen at opplysningen ikke ble gitt eller at uriktige opplysninger ikke blir rettet i tide på en tydelig måte.
En bolig som har blitt brukt i en viss tid, har vanligvis blitt utsatt for slitasje og skader kan ha oppstått. Slik bruksslitasje må kjøper regne med, og det kan avdekkes enkelte forhold etter overtakelse som nødvendiggjør utbedringer. Normal slitasje og skader som nødvendiggjør utbedring, er innenfor hva kjøper må forvente og vil ikke utgjøre en mangel.
Boligen kan ha en mangel etter avhendingsloven § 3-3 dersom det er avvik mellom opplyst og faktisk innvendig areal, forutsatt at avviket er på 2% eller mer og minimum 1 kvm.
Ved beregning av et eventuelt prisavslag eller erstatning må kjøper selv dekke tap/kostnader opptil et beløp på kr 10 000 (egenandel).
Ikke-forbruker (næringsdrivende) definisjon
Hvis kjøper er en juridisk person, eller en fysisk person som hovedsakelig handler som ledd i næringsvirksomhet, vil kjøpet ikke anses som et forbrukerkjøp.
Ikke-forbruker avtalevilkår
Eiendommen har en mangel dersom den ikke er i samsvar med kravene som følger av avtalen. Eiendommen selges som den er , og selgers ansvar utover det konkret avtalte er da begrenset etter avhendingsloven § 3-9, første ledd andre setning.
Avhendingsloven § 3-3 andre ledd fravikes, og hvorvidt boligens arealsvikt utgjør en mangel vurderes etter avhendingsloven § 3-8.
En forutsetning for salget er at skjøtet for eiendommen tinglyses på kjøper. Interessenter og kjøper må godta at selger og megler bruker elektronisk kommunikasjon i salgsprosessen.
I tråd med eiendomsmeglingsforskriften vil informasjon om oppdragsgiver, salgsobjektet, interessenter og kjøper bli lagret av meglerforetaket i min. 10 år. Se em1.no for mer informasjon om vår behandling av personopplysninger.
Ferdigattest / Brukstillatelse
Det foreligger ikke ferdigattest eller midlertidig brukstillatelse iflg. kommunen. Jf. plan- og bygningsloven § 21-10 (5) utstedes det ikke lengre ferdigattest for tiltak det er søkt om før 1/1-98. Dette innebærer at byggverkene lovlig kan brukes og omsettes uten at det foreligger ferdigattest. Det betyr imidlertid ikke at ulovlige bygde tiltak blir lovlige.
Ulovlig oppførte tiltak vil kommunen fremdeles kunne forfølge og kreve omsøkt etter dagens regelverk. Kjøper overtar ansvar, risiko og eventuelle konsekvenser knyttet til dette.
Hvitvaskingsregelverk
I henhold til Hvitvaskingsloven har meglerforetaket plikt til å gjennomføre kundetiltak (ID kontroll, kontroll av reelle rettighetshavere, mv). Kundetiltak skjer løpende og vil blant annet gjennomføres når handel inngås og ved gjennomføring av oppgjøret, samt dersom det foreligger mistanke om hvitvasking eller terrorfinansiering.
Dersom kundetiltak ikke kan gjennomføres, skal meglerforetaket ikke gjennomføre transaksjonen med kjøper. Ved meglerforetakets avvikling av kundeforholdet, vil avtalen mellom partene være bindende, men meglerforetaket kan ikke bidra i gjennomføringen av handelen. Det kan ikke gjøres ansvar gjeldende mot meglerforetaket som følge av at meglerforetaket overholder sine plikter etter Hvitvaskingsloven.
Meglerforetaket er forpliktet til å rapportere mistenkelige transaksjoner til Økokrim.
Budgivning
Eiendomsmeglere kan ikke formidle bud med kortere akseptfrist enn kl. 12:00 første virkedag etter siste annonserte visning hvor selger er forbruker, jfr. Informasjon om budgivning.
Alle bud og budforhøyelser med eventuelle forbehold, opplysning om finansiering og overtakelse skal sendes skriftlig til megler. Megler kan ikke formidle muntlige bud verken til selger, budgivere eller interessenter. Budgiver må legitimere seg med kopi av legitimasjon og underskrift. Kravet til legitimasjon og signatur er oppfylt for budgivere som benytter e signatur, eksempelvis BankID eller MinID. Megler skal sende skriftlig varsel om bud og budforhøyelser til budgiver, selger og interessenter. Aksept av bud skal sendes skriftlig til budgiver og selger. Budgiver kan benytte budskjema, elektronisk budgiving, skannet budskjema sendt på mail eller annen godkjent skriftlig kommunikasjonsform, f.eks. App er i forbindelse med budgivningen. Konferer med megler.
Megler har ikke ansvar for forsinkelser som skyldes teknisk feil. Under budrunden kan akseptfristene kortes inn ved mottakelse av nye bud. Akseptfristen er absolutt, det vil si at selger må akseptere og kjøper meddeles aksept innen utløpet av akseptfristen. Dersom du utsetter inngivelse av bud til tett opp mot akseptfristen er det en reell fare for at eiendommen kan bli solgt før ditt bud fremkommer til megler.
Husk alltid å ringe megler etter at du har sendt et bud eller budforhøyelse, for å forsikre deg om at budet er mottatt og kan formidles av megler.
Vedlegg til salgsoppgaven
Videre i denne salgsoppgaven ligger vedlegg. Disse inneholder viktig informasjon om eiendommen og må gjennomgås før bud gis.
Regulering
Eiendom med gnr. 9 bnr. 30 ligger i område BFK_1 med formål kombinert bebyggelse og annleggsformål Nåværende og er dessuten omfattet av hensysone H570_13B i kommuneplanen for Sveio kommune 2011 2023. Kommuneplanen sine bestemmelser for slike område gjelder. Eiendommen er ikke omfattet av en reguleringsplan.
Nyttige lenker
Nærområdet
EiendomsMegler 1 Haugesund
Annonseinformasjon
| FINN-kode | 409786960 |
|---|---|
| Sist endret | 24. sep. 2025 08:42 |
| Referanse | 2501250114 |
Annonsene kan være mangelfulle i forhold til lovpålagt opplysningsplikt. Før bindende avtale inngås oppfordres interessenter til å innhente komplett informasjon fra meglerforetaket, selger eller utleier.





























