Bildegalleri

Velkommen til Kolbjørnrud!
Kolbjørnrud | Vakker og herskapelig eiendom med nærhet til Oslo, egen sandstrand, molo, svømmebasseng og tennisbane
Nøkkelinfo
- Etasje
- 4.
- Eieform
- Eier (Selveier)
- Areal
- 474 m²
- Byggeår
- 1861
- Energimerking
- G - Rød
- Tomteareal
- 426 000 m² (eiet)
Type lokale
Kort om eiendommen
Kolbjørnrud ligger med vidstrakt utsikt ved Tyrifjorden, en time utenfor Oslo. Kolbjørnrud har historisk betydning, og dagens eier har renovert med henblikk på å bevare gårdens kulturhistoriske verdi. Gården har en betydelig bygningsmasse med 4 bolighus, en "låve" med gildehall og kontor, et stabbur, lysthus, tennisbane med klubbhus og et bassengbygg. Egen strandlinje med molo og båtplasser. Bor du i byen og ønsker en ny livsstil litt utenfor storbymaset hvor du kan samle storfamilien? Her er det plass til alle sammen. Velkommen til Kolbjørnrud
Inneholder
Hovedbygning; 402 kvm.(BRA-i)
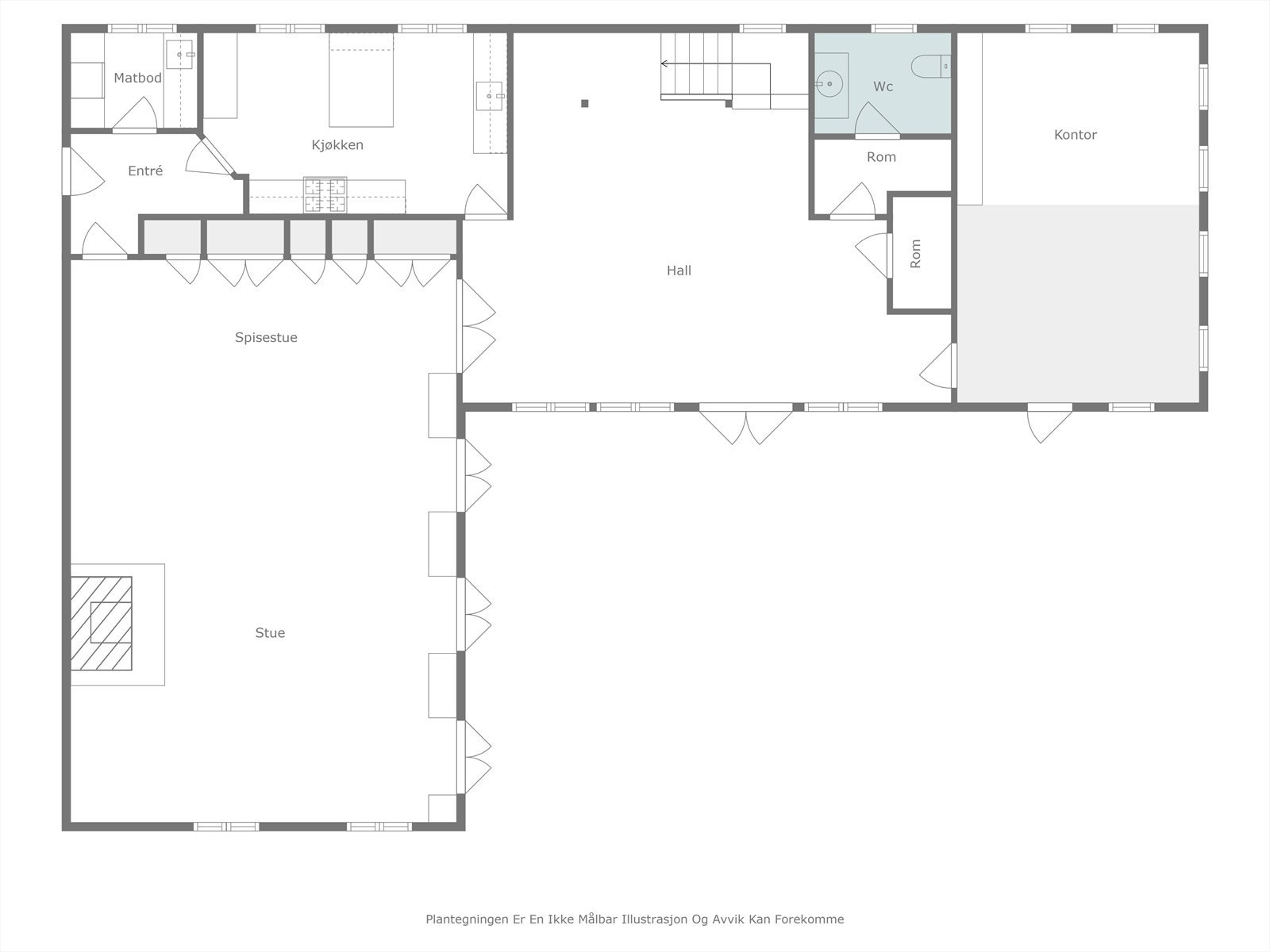
1. etasje: Hall m/trapp, stue, stue 2, stue 3, kontor, gang, toalettrom, kjøkken, tv stue, entré, bad og vaskerom.
2. etasje: Gang, bad 1, bad 2, stue og 2 soverom.
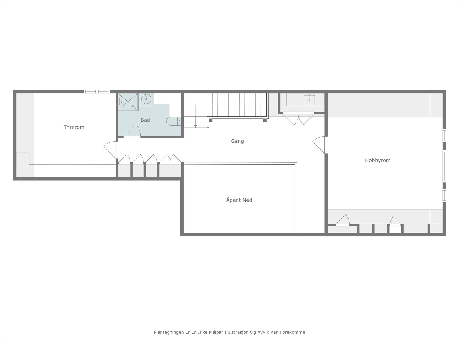
Loft: TV-stue, 2 soverom, bad og 2 kott.
Bryggerhuset (bra ca. 75 kvm.)
1.etasje inneholder: Gang, kjøkken, vaskerom, stue, bad (WC) og soverom.
Det gule huset (bra ca. 125 kvm.)
1.etasje inneholder: Gang, kjøkken, stue, soverom og bad.
2.etasje inneholder: Gang, 2 soverom og 2 bad med WC.
Hønsehuset (bra ca. 40 kvm.)
1.etasje inneholder : Entre, kjøkken/stue, soverom (2) og bad med WC.
Bassenghuset og basseng (bra ca. 55 kvm.)
Innredet med stue og fullt kjøkken, dusj, WC og lagerrom. Teknisk rom som styrer hagevanningen. Hele hagen på over 20 dekar har vanningsanlegg med dryppvann i bedene.
Låven med Gildehall (Grunnflate 1. etasje ca. 235 kvm.)
Kjellerplan: To separate garasjer, hvorav den ene kan defineres som maskingarasje, verkstad, teknisk rom og boder.
1. etasje: Hall, kontor, WC med omkledningsrom, gildehall, kjøkken, grovkjøkken og kjøkkeninngang.
2. etasje: Gang, syrom/atelier, treningsrom og bad med WC.
Tennishus (ca. 24 kvm.)
Inneholder oppholdsrom, garderobe og dusjfasiliteter.
Stabbur (ca. 45 kvm. i 2 plan)
Tjener i dag som lager i begge etasjer.
Beliggenhet
Kolbjørnrud, en gård med historisk betydning, fungerte som administrasjonsbolig til Ringerikes Nikkelverk. Ringerikes Nikkelverk var et gruveselskap som ble etablert i 1848 av Adolf Friedrich Roscher.
Fra Wikipedia: Adolf Roscher var født i Döhlen i Sachsen i Tyskland og tok sin utdannelse som bergingeniør i Freiberg i årene 1840-1843. Han var sønn av Friedrich Roscher (1791-1859), som var hytteinspektør (teknisk direktør) ved Blaafarveværket og senere direktør og eier av Snarum koboltverk. Han var også barnebarn av Johann Theodor Roscher (1755-1829), som i sin tid kongelig prøyssisk hytteinspektør.
Friedrich Roscher var arkitekten bak empirebygningen Nyfossum på Blaafargeverket, som var familien Roschers hjem, og for mange av driftsbygningene på Blaafargeverket. Han var også arkitekten for det nye hovedhuset på Kolbjørnrud, som ble bygget i 1861 etter at Adolf Roscher kjøpte Kolbjørnrud i 1860 for å bruke gården som administrasjonssete for Ringerikes Nikkelverk. Det er mange likhetstrekk mellom Kolbjørnrud og Nyfossum. Friedrich Roscher var nåværende eiers tippoldefar. Arkitektinteressen har gått i arv, og den nye låven på Kolbjørnrud er tegnet av nåværende eier, som i dagliglivet ellers er advokat.
Adolf Friedrich Roscher ble gift med Thora Lagertha Henriksen (f. 7. oktober 1824-d. 16. februar 1904). Hun ble gjerne kalt fru Roscher, men hun kalte seg selv helst fru Kolbjørnrud, etter gården Kolbjørnrud. Fru Roscher var også svært gavmild med Tyristrand kirke, dit hun blant annet donerte ei altertavle med et stort oljemaleri av Adolph Tidemand, trolig verd mange millioner i dag.
Karl Johan August Theodor Scheerer (1813-1875) var en tysk kjemiker, i Norge mest kjent som mineralog (læren om metallene) og metallurg (teknikkene for å utvinne metaller). Fra 1833 til 1848 oppdaget han viktige forekomster av nikkel og gjorde fem førstegangsbeskrivelser. Han var hyttemester på Blåfargeverket. I 1837 fant han ved Åsterudtjern på Tyristrand rundt 2,80 prosent nikkel i prøver av magnetkis fra det tidligere Ertelien gruve, der man fra 1789 hadde utvunnet kobolt, så kobber Dette førte til at hans gode venn Adolf Rosher etablerte Ringerikes Nikkelverk i 1848.
Han manglet imidlertid kapital og henvendte seg til sin venn og Blaafargeverkets lege, Heinrich Arnold Thaulow, som i sin tur kontaktet Johann Ludwig Tiedemann, eier av Tiedemanns Tobakksfabrikk. Sammen skaffet de til veie nødvendig kapital og ble deleiere (participanter) med Roscher, mot at han fortsatte som bestyrer av verket. Tiedemann trakk seg imidlertid ut noen år senere og ble erstattet av to nye deleiere.
Nikkelverket var i drift fra 1849 til 1920 og ble ofte omtalt som "Nikkelverket på Nakkerud". Gruvene ved Ertelia og Langdalen var blant de viktigste knyttet til nikkelverket. På midten av 1800-tallet var Ringerikes Nikkelverk Ringerikes største arbeidsplass, med 261 mann i arbeid på det meste i toppåret 1866. I årene omkring 1870 var nikkelverket verdens største produsent av nikkel og hadde en markedsandel på omkring 20 %.
Stiftelsen
Ringerikes Nikkelverk ble etablert den 21. oktober 2016 på gården Kolbjørnrud ved Nakkerud. Stiftelsen kjøpte tilbake den gamle Nikkelverkeiendommen i Holleia fra Statskog som overtok den etter at staten hadde tatt eiendommen på hjemfall på 1950 tallet. Formålet med stiftelsen er å bevare nikkelverket, fremheve kulturminnene og utvikle et bergverksmuseum som gjenskaper gruvemiljøet. Adolf Friedrich Roscher, grunnleggeren av nikkelverket, kjøpte gården Kolbjørnrud i 1860. Så Kolbjørnrud har en fascinerende historie som strekker seg fra nikkelproduksjon til kulturell bevaring og bergverksmuseum.
Eiendommen har en flott beliggenhet på vestsiden av Tyrifjorden med vidstrakt utsikt utover Tyrifjorden og Sollihøgda, og mot Ringkollen i nord og mot Vikersund i sør. Bak gårdsbebyggelsen går eiendommen oppover i Holleia, som er et kjent friluftsområde med mange stier og skogsbilveier. Om vinteren går det en skiløype over eiendommen i Holleia, med utspring nær Nakkerud. Holleia er ypperlig til rekreasjon og friluftsliv. Området har et karakteristisk småkupert skogsterreng med mange vann og tjern og en rask veksling mellom gran- og furuskog. I tillegg til jakt og fiske gir Holleia også svært gode muligheter for bading og plukking av mange slags skogsbær og sopp. (Wikipedia)
Eiendommen Kolbjørnrud er en meget godt vedlikeholdt landbrukseiendom med et flott parkmessig hageanlegg. Eiendommen innehar en sjelden flott bygningsmasse med små jordbruksarealer og ekstensiv utnyttelse. Det er en stor bygningsmasse hvor husene har en spesielt god og høy standard, med antikvarisk verdi hvor eierne har ivaretatt gammel stil. Hovedhuset er herskapelig, med meget god standard, som samtidig innehar moderne og praktiske fasiliteter. Hovedhuset har blitt benyttet som administrasjonsbolig til Ringerike Nikkelverk. Bygningenes gamle stil er ivaretatt, samtidig som bygningsmassen fremstår som både moderne og rasjonell. Eiendommen har en flott utsikt og egen strandlinje med molo og båtplass. Gården har en betydelig eiendomsmasse og eiendommens bygninger består av 4 bolighus, en "låve" med bl.a. sjelden flott Gildehall og et flott kontor, et stabbur, lysthus, tennisbane med klubbhus og et bassengbygg.
Hovedhuset
Dette er en meget flott bolig med et herskapelig preg. Den er stor og nyoppusset i gammel stil og meget skikkelig gjennomført for hele boligen som fremstår som en topp moderne bolig i gammel stil. Det er samarbeidet både med Riksantikvaren og arkitekt som arbeidet mye for Riksantikvaren i oppussingen ifølge eier.
Bygningen vurderes til å ha høy antikvarisk verdi da restaureringen er gjennomført til opprinnelig stand og utseende, pluss et tilbygg. Kjeller inneholder gang, vaskerom samt flere kjeller-/lagerrom. Hovedplan med gang, kjøkken, 3 stuer, WC og kontor. 2 etasje med gang, 2 bad, sal og 3 soverom. I loftsetasjen er det to store soverom med en sjarmerende stue i mellom og et eget bad/wc, renovert for bruk av eiernes to døtre. I tilbygget er det en dagligstue, vaskerom, dusj og WC. Tilbygget er utformet i samarbeid med Riksantikvaren for å ikke ødelegge helhetsinntrykket av hovedhuset og tunet. Eierne av Kolbjørnrud har fått en pris fra Fortidsminneforewningen for pietistisk ivaretakelse av det gamle gårdstunet.
Bygningen vurderes til å ha høy antikvarisk verdi da restaureringen er gjennomført til opprinnelig stand og utseende, pluss et tilbygg. Det er pent opparbeidede arealer med beplantning, brostein, skiferheller og gressplen rundt boligen.
Bryggerhuset
Bryggerhuset er også fra rundt 1730, som også stabburet. Bryggerhuset ble omgjort til å fungere som grovkjøkken for hovedhuset da dette ble bygget i 1861. Det er et laftet hus som senere er totalrenovert og påbygd med en del som inneholder vaskerom og bad. Inneholder gang, kjøkken, vaskerom, stue, bad (WC) og soverom. Både bad og kjøkken er moderne, men også i en stil som passer meget godt inn i boligen for øvrig. En liten, nyoppusset og sjarmerende bolig. Bryggerhuset vurderes å ha høy antikvarisk verdi da eier har restaurert bygningen og tilbakeført til opprinnelig stand og utseende.
Det gule huset
Det gule huset er fra rundt 1730, og vurderes å ha høy antikvarisk verdi da eier har restaurert bygningen og tilbakeført til opprinnelig stand og utseende og fremstår meget sjarmerende. Huset inneholder tre soverom, kjøkken, stue, gang og tre bad. Huset sto opprinnelig der hovedhuset står nå. Det ble flyttet til nåværende beliggenhet i 1861, samtidig som det ble bygget på en halv annen etasje.
Hønsehuset
Hus i en etasje i fra 2011 og inneholder entre, kjøkken/stue, 2 soverom og bad med WC. Huset er bygget i gammel stil og meget godt tilpasset tunets øvrige bygninger og stil. Huset har sitt navn fordi det er bygget der det tidligere sto et gammelt hønsehus som var i så dårlig forfatning da nåværende eiere overtok eiendommen i 1993 at det ikke lot seg restaurere.
Bassenghuset og basseng
Bassenget er på 12,5 x 6 meter. I tilknytning til bassenget er det et bassenghus som er innredet med stue og fullt kjøkken, dusj, wc og lagerrom. Inneholder også teknisk rom for hagevanning, rensing av basseng mm. Det er anlagt skiferheller rundt bassenget og inntil bassenghuset. Ofte kan svømmebasseng bryte med" stilen" på en slik landbrukseiendom, men både utforming, plassering og stil på bygning med mer gjør i dette tilfellet at det harmonerer veldig bra med resten av eiendommen.
Låven med Gildehall
Den gamle låven, som ble bygget på 1930 tallet og også inneholdt den eldste låven fra 1861 raste sammen under restaurering idlig på 2000 tallet. Arkitekten, som var professor på Landbrukshøyskolen og spesialist på gamle driftsbygninger, feilberegnet hvor stor taklast taket tålte under restaureringen, med den følgen at hele bygget raste sammen en snørik vinterdag. Nåværende eier tegnet da en ny bygning som har utseende av å være en låve, men som innvendig er noe helt annet. Den ble satt opp i perioden 2008-2011. Låven har i dag ingen landbruksmessig funksjon. Kjelleren dekker hele fotavtrykket fra den gamle låven og er på 20 x 12,5 meter, eller rundt 260 m2 med takhøyde 3,15 m. Den er delt i flere rom. Lengst til venstre er det en stor garasje på 5 x 12, 5 meter som i dag brukes til driftsmidler til gården. Det midterste rommet er på 9,8 X 9,5 meter med to store garasjedører på hver side. Innenfor er det 3 boder a 3 x 3 meter med jerndører. Til høyre er et verksted på 4,5 x 10 meter og et teknisk rom som inneholder et svært avansert anlegg for vannbåren varme til bygget på 3,6 x 3, 6 meter. Garasjedørene er utformet som store låvedører for å gi inntrykk av låve. 1 etasje, som er på ca. 175 m2, inneholder hall, kontor, WC med omkledningsrom, gildehall, kjøkken med en stor Cornue komfyr, grovkjøkken og kjøkkeninngang. 2 etasje, som grunnet at deler av første etasje går over to etasjer, er på ca. 125 m2, inneholder gang, syrom-/atelier, en "låvebro", treningsrom og bad med WC. Gildehallen har stor takhøyde (6,5 meter på midten) og en stor peis. Gildehallen er også utformet i samsvar med stilen som er naturlig på en landbrukseiendom. Totalt sett et meget flott bygg både mht. utforming, materialvalg og standard. Låven kan, om ønskelig, leies ut til selskaper eller andre arrangementer i tillegg til eget kontor. Dagens eier har ikke utnyttet denne muligheten.
Tennisbane med tennis hus
Tennisbanen har plexipave belegg. Tennishuset er en laftet bygning som er flyttet og satt opp på nytt på eiendommen. Her er det fasiliteter som innlagt vann- og strøm. Innvendig er det oppholdsrom med køyeseng, kjøkken og bad med dusj og wc. Tennisbanen er inngjerdet.
Stabbur
Stabburet er mest sannsynlig i fra 1700 tallet. Grunnflate på 45 m2 over 2 plan. Stabburet vurderes å ha høy antikvarisk verdi. Praktisk utvendig trapp som fører til gårdstunet.
Kolbjørnrud er en svært påkostet og meget velholdt eiendom. Eiendommen har en attraktiv beliggenhet med eiendom som trekker seg ned til Tyrifjorden med egen strandlinje med sandstrand. Det er en fin spasertur over egen eiendom ned til fjorden, hvor man kan ha båt for å komme seg til golfbanen på Storøya eller til Tyrifjorden hotell nær Vikersund for lunch eller middag, og med molo og båtplass. Man kan også komme til stranden og moloen med bil rundt Nakkerud. Med kun en time til Oslo vil dette være en mulighet for mange til å oppfylle drømmen med det gode liv på landet.
Nåværende eier har ikke drevet gården som næring, med den følge at verken bygninger eller anleggsmidler er nedskrevet i verdi. For tiden er jordveien forpaktet bort vederlagsfritt mot at den holdes på et godt landbruksmessig nivå. Avtalen er muntlig og oppsigbar.
Velkommen til Kolbjørnrud!
EIENDOMMENS HISTORIE
Kolbjørnrud, en gård med historisk betydning, fungerte som administrasjonsbolig til Ringerikes Nikkelverk. Ringerikes Nikkelverk var et gruveselskap som ble etablert i 1848 av Adolf Friedrich Roscher. Dette skjedde etter at det i 1837 ble oppdaget store mengder nikkel i malm nær Holleia, et område nord for Nakkerud og vest for Tyristrand i dagens Ringerike kommune. Nikkelverket var i drift fra 1849 til 1920 og ble ofte omtalt som "Nikkelverket på Nakkerud".
Gruvene ved Ertelia og Langdalen var blant de viktigste knyttet til nikkelverket. Stiftelsen Ringerikes Nikkelverk ble etablert den 21. oktober 2016 på gården Kolbjørnrud ved Nakkerud. Stiftelsen fikk overført til seg eiendommen til det gamle Ringerikes Nikkelverk, som ligger i overkant av 1 km i luftlinje fra bebyggelsen på gården. Da Nikkelverket var i drift gikk det en ridesti fra gården til verket som Adolf Roscher benyttet mellom verket og gården. Han var aktiv i driften til sin død i 1872. Etter det ble verket drevet videre av enkefru Thora Lagertha og dr. Thaulow fra Blaafargeverket. Han benyttet sin del av inntektene fra verket til å bygge Modum bad og Sandefjord bad. Formålet med stiftelsen er å bevare nikkelverket, fremheve kulturminnene og utvikle et bergverksmuseum som gjenskaper gruvemiljøet.
Så Kolbjørnrud har en fascinerende historie som strekker seg fra nikkelproduksjon til kulturell bevaring og bergverksmuseum.
Adkomst
Med ny vei gjennom Sollihøgda som åpner høsten 2025 vil det ta under en time i fra Oslo. Det er ca. 15 km til Hønefoss, ca. 135 km til Vikersund, ca. 65 km til Oslo sentrum og ca. 60 km til Drammen sentrum. Det tar deg ca. 50 minutter til Sandvika, og ca. 1 time og 15 minutter til Oslo lufthavn Gardermoen. Det er bussholdeplasser i begge ender av Hauggata, med ca. 300 meter til den ene og 700 meter til den andre.
Fra gammelt gikk hovedveien mellom Hønefoss og Vikersund gjennom tunet. Da hovedveien ble lagt om rundt 1950 tallet, så ble veien mindre trafikkert, men trafikken var likevel plagsom. Rundt år 2000 fikk dagens eier tillatelse til å legge om veien etter en lang kamp med kommunen og enkelte naboer. Veien ble da sprengt ned i terrenget bak bygningsmassen opp mot riksvei 35. På den måten ble hele tunet en helhet. Dette skjedde etter at veien hadde fått eget gatenavn med husnumre. Det er forklaringen på at eiendommen har tre husnumre i Hauggata, med hovedhuset som nr. 30, det gule huset som nr. 25 og bryggerhuset som nr. 27. Nærmeste handelssentrum er Tyristrand, som ligger ca. 3,9 km unna mot Oslo, med større utvalg av butikker og kjøpesentre på Hønefoss.
Betalingsbetingelser
Hele kjøpesummen med omkostninger må være innbetalt og disponibel for megler på meglers klientkonto, senest på siste virkedag innen overtagelsen finner sted.
Overtagelse, tilleggsinfo.
Overtakelse etter nærmere avtale med selger. Det oppfordres til å nevne ønsket overtagelse i evt. bud.
Bebyggelse
Hovedhuset (samlet bra-i) ca. 402 kvm.)
Hovedhusets byggeår er ca. 1861 ifølge eier og Norske Gårdsbruk Buskerud Bind II og da som administrasjonsbolig til Ringerike Nikkelverk. Dette er et hus i 3 etasjer pluss kjeller. Utvendig stående kledning, det er saltak med takrenner/nedløp. Dette er et tømmerhus som er kledd med bord og etterisolert under restaurering. De opprinnelige vinduene med gammelt glass er beholdt (noen skiftet grunnet at de er knust) med innervinduer. Bygningen er merket gult i SEFRAK. I 2008 ble det gjennomført et påbygg. Hoveddelen har en grunnflate på ca. 150 m2 og tilbygget ca. 55 m2. Samlet Bruksareal (BRA) ca. 400 m2 fordelt på 1, 2. og 3.etg. Grunnmur av stein. Boligen har to piper som takstmann ikke har sjekket innvendig. Kontroll utføres av stedlig Brann- og feiervesen. Hele 1.etasje har gulvvarme. I stuene foran bare varmematter i taket fra kjelleren og i den bakre del, varmekabler. Ellers er det oppvarming med ved og strøm. Hele huset ble totalrenovert fra 1993 og fram til 2008. Det er pusset opp i opprinnelig stil. Alle stuer og alle soverom har de originale vedovnene som er tatt ned og restaurert med ny stein innvendig før de ble remontert. Alle kan brennes i.
De tre stuene i forkant i 1. etasje, salen i 2. etasje og de to soverommene som ligger ut mot Tyrifjorden har nye tapet som ble håndlaget lik de opprinnelige, men vannskadete tapetene fra 1861. Tapetene måtte trykkes en gang for hver farge, og produksjonen av dem hos Christiania Tapetverksted tok lang tid. Før de ble montert ble veggene isolert på innsiden av tømmerveggene med gipsplater for å bedre isolasjonen av hele bygget.
Kjeller inneholder gang, vaskerom samt flere kjeller-/lagerrom. Det er fliser på gulvene, pussede murvegger og malt panel i taket med downlights. Det er trapp ned fra gangen i 1.etg samt utgang til hagen. Takhøyden er lavere enn vanlig og stedvis ikke målbar. Takhøyde i kjeller ble under befaringen målt til 2 m i gangen.
1. etasje inneholder gang, kjøkken, 3 stuer, wc og kontor. Gulvene består av tregulv, fliser i gangen og i wc. Takhøyden er 2,90. Vegger har tapet og panel og takene har malt panel. Moderne tilpasset kjøkken. Flott og praktisk påbygg med vaskerom, tv-stue, bad og gang. Her er det gamle antikke fliser fra Frankrike på gulv med varmekabler, panel på vegger og i himlinger. Påbygget henger sammen med hovedhuset via kjøkkenet. Det er høy standard på denne delen også.
2. etasje inneholder gang, 2 bad, salen og 3 soverom. Det er tregulv i alle rom unntatt de to badene, som er flislagt med varmekabler i gulvet. Takhøyde er 2,95. Veggene har tapet og det er glassfiberstrie som er sparklet med restaurert opprinnelig stukkatur i taket på salen og de to tilliggende soverommene. I det bakre soverommet, badene og i gangen er det malt tretak. Badene er innredet med wc, dusj, badekar og innredninger med vasker i gammeldags utførelse.
3 etasje inneholder gang, stue, bad og 2 soverom. I hovedsak er det tregulv over det hele med unntak av gang/bad som har fliser. Malte paneler i tak og på vegger. Badene har varme i gulv, WC, dusj, og baderoms innredninger med vask. Brannstiger fra begge soverom. Skråtak.
Det er tregulv og der det er fliser, med varmekabler. Vegger og tak har malt panel.
Dette er en meget flott bolig med et herskapelig preg. Den er stor og nyoppusset i gammel stil og meget skikkelig gjennomført for hele boligen som fremstår som en topp moderne bolig i gammel stil. Det er samarbeidet både med Riksantikvaren og arkitekter i oppussingen ifølge eier.
Bygningen vurderes til å ha høy antikvarisk verdi da restaureringen er gjennomført til opprinnelig stand og utseende, pluss et tilbygg. Det er pent opparbeidede arealer med beplantning, gammel antikk brostein i fra Belgia i veien fra parkeringsplassen (asfaltert) foran låven til snuplass i enden av tomten forbi hovedhuset, og fra denne veien og opp til låven og på en stor plass på 80 m2 foran låven (over kjelleretasjen). Skiferheller og gressplen rundt boligen.
Bryggerhuset (bra ca. 75 kvm.)
Bryggerhuset har byggeår ca. 1730 ifølge eier. Bygningen er merket rødt i SEFRAK registeret. Dette er et hus i en etasje samt hems, men uten kjeller. Bryggerhuset er et laftet hus som senere er totalrenovert og påbygd med en del som inneholder vaskerom og bad. Det er takstein på taket og takrenner/nedløp. Bygningen har et bruksareal på ca. 75 m2. Pusset grunnmur av stein. Bryggerhuset har en pipe som takstmann ikke har sjekket innvendig. Den er ikke tilknyttet et ildsted (fra gammelt av tilknyttet en baksteovn) og pipen inspiseres ikke av brann/feievesen. Oppvarming med ved og strøm. 1.etasje inneholder: Gang, kjøkken, vaskerom, stue, bad (WC) og soverom. I hovedsak tregulv over det hele med unntak av badet som har fliser. Det er malt panel i tak og på vegger. Både bad og kjøkken er moderne, men også i en stil som passer meget godt inn i boligen for øvrig. En liten, nyoppusset og sjarmerende bolig. Bryggerhuset vurderes å ha høy antikvarisk verdi da eier har restaurert bygningen og tilbakeført til opprinnelig stand og utseende.
Det gule huset (bra ca. 125 kvm.)
Byggeår er ifølge eier rundt 1730. Dette er et hus i 2 etasjer, uten kjeller. Bygningen er merket rødt i SEFRAK registeret. Huset er totalrenovert i gammel stil. Bygningen har saltak med takstein på taket og takrenner/nedløp. Dette er opprinnelig et tømmerhus som senere er kledd om og etterisolert.
Boligen har et bruksareal på ca. 125 m2. Det er pusset grunnmur av stein. 1.etg inneholder: Gang, kjøkken, stue, soverom og bad. 2.etg inneholder: Gang, soverom (2) og 2 bad med WC. Gulv: Tregulv, Vegger: Panel, Tak: Panel. Bygningen har to piper som takstmann ikke har sjekket innvendig. Kontroll utføres av stedlig Brann- og feiervesen. Oppvarming med ved og strøm. Det gule huset vurderes å ha høy antikvarisk verdi da eier har restaurert bygningen og tilbakeført til opprinnelig stand og utseende og fremstår meget sjarmerende.
Hønsehuset (bra ca. 40 kvm.)
Ifølge eier er byggeår 2011. Dette er et hus i en etasje. Det er takstein på taket og renner/nedløp. Oppført i reis-/bindingsverk - fullisolert. Bygningen har et bruksareal på ca. 40 m2. Bygningen har pusset grunnmur av stein. 1.etg inneholder: Entre, kjøkken/stue, soverom (2) og bad med WC.
Hovedsakelig tregulv, paneler på vegger og himlinger Det er saltak tekket med stein. Oppvarming med strøm. Huset er bygget i gammel stil og meget godt tilpasset tunets øvrige bygninger og stil.
Bassenghuset og basseng (bra ca. 55 kvm.)
Ved hovedhuset ligger det er et svømmebasseng på 12,5 m x 6 m med sikkerhetstrekk. I enden av bassenget er det oppført et eget bygg på ca. 55 m2. oppført i reis-/bindingsverk på støpt plate med steinheller, og stående utvendig kledning. Bygningen har store vindusflater og dører som kan åpnes ut mot bassenget, og med stor markise som dekker de store vinduene. Bassenghuset er innredet med stue og fullt kjøkken, dusj, WC og lagerrom. Det er også i tilknytning til dette et eget teknisk rom som styrer hagevanning, rensing av svømmebasseng med mer. Bassenghuset har saltak tekket med stein, takrenner og nedløp. Det er lagt steinheller rundt svømmebassenget og inntil bassenghuset. Ofte kan svømmebasseng bryte med" stilen" på en slik landbrukseiendom, men både utforming, plassering og stil på bygning med mer gjør i dette tilfellet at det harmonerer veldig bra med resten av eiendommen.
Låven med Gildehall (Grunnflate 1. etasje ca. 176 kvm.)
Den gamlen låve ble ifølge eier revet og ny ble satt opp i 2008-2011, da delvis på gammel grunnmur. Låven har utover grunnplan i dag ingen landbruksmessig funksjon. Gammel stein i grunnmur er brukt på nytt og benyttet i dagens grunnmur. Låven har en grunnflate i 1.etasje på ca. 176 m2. Det er innlagt fiber fra Viken fiber i låvebygget, som meshes rundt til de andre byggene. Dette skjedde nylig. Inntil det kom fiber har eier benyttet mobilt bredbånd. Det ligger en ekstra fiberkabel klar ved snuplassen i tilfelle man ønsker fiber direkte til hovedhuset.
I kjellerplan, som er på 260 m2, er det i dag en stor garasje på 12,5 X 5 meter, en større garasje som kan romme inntil 6 biler, stort verksted og 3 boder 3 x 3 meter med 3 kjøreporter. Innvendige flater - støpt plate, betongblokker i vegger og betongelementer i himling som da også utgjør etasjeskiller. Det er montert to el-billadere i garasjene.
1.etg inneholder: Hall, kontor, WC med omkledningsrom, gildehall, kjøkken, grovkjøkken og kjøkkeninngang. Utvendig er det benyttet teglstein fra gammel låve samt stående låvekledning. Dette passer godt inn i tunets stil for øvrig og låven ser fasademessig ut som en tradisjonell låve.
Saltak tekket med teglstein (gammel) med takrenner og nedløp.
2.etasje inneholder: Gang, syrom/atelier, treningsrom og bad med WC. Innvendige flater er i hovedsak: Gulv: Bredt tregulv og teglfliser. Vegger: Teglstein (gammel) og rustikk bordkledning. Himling: Rustikk bordkledning. Kjøkkeninnredning, skapdører mm er også med rustikk overflate. Alt er helt nytt, men dette medfører at man beholder en atmosfære og utseende som samsvarer med et bygg på en landbrukseiendom. Gildehallen har stor takhøyde og en stor peis. Gildehallen er også utformet i samsvar med stilen som er naturlig på en landbrukseiendom.
Totalt sett et meget flott bygg både mht. utforming, materialvalg og standard. Låven kan leies ut til selskaper eller andre arrangementer i tillegg til eget kontor.
Tennisbane med tennis hus
Bygningen ble ifølge eier flyttet til eiendommen og satt opp på nytt. Grunnflate på ca. 24 m2 i et plan. Dette er en bygning som er laftet, med saltak tekket med stein med takrenner og nedløp. Det er innlagt vann og strøm. Innvendig er det oppholdsrom med køyeseng, kjøkken og bad med dusj og wc. Tennishuset ligger inntil tennisbanen mot nord.
Stabbur
Stabburet med ukjent byggeår, men sannsynligvis på 1700 tallet ifølge Norske Gårdsbruk Buskerud Bind II. Bygningen er merket rødt i SEFRAK. Dette er et laftet stabbur med en grunnflate på ca. 45 m2 i to plan. Stabburet står på tre påler. Det er saltak med takstein på taket uten takrenner og nedløp. Dette bygget tjener i dag som lager. Det er to dører og en stor praktisk utvendig trapp som fører til gårdstunet. Stabburet vurderes å ha høy antikvarisk verdi.
Byggemåte
Se vedlagte tilstandsrapport fra Lasse Holm, med befaringsdato 24.04.2025, der byggemåte er nærmere beskrevet, og også gitte tilstandsgrader fremkommer. Tilstandsrapporten beskriver alle gårdens bygninger, men det viktig å bemerke at det er kun boligene som har fullverdig tilstandsrapport.
Tilstandsgrader Hovedbygning
TG3 - Store eller alvorlige avvik:
Utvendig > Nedløp og beslag
Nedløp, renner og beslag er i plast og i stål/kobber. Takrennene bør helst renses for løv og skitt to ganger i året, og minst én gang i året. Samtidig bør man kontrollere skjøter og overflatebelegg. Overflatebehandlingen betyr mye for holdbarhet og levetid og bør derfor vedlikeholdes jevnlig. Vurdering av avvik: Det mangler tilfredsstillende adkomst til pipe for feier. Det mangler snøfangere på hele eller deler av taket, noe som var krav på byggemeldingstidspunktet. Mer enn halvparten av forventet brukstid er passert på renner/nedløp/beslag.
Det er påvist andre avvik: Når en bygningsdel har brukt mer enn halvparten av sin forventede brukstid, øker sannsynligheten for at den kan vise tegn til aldring, slitasje eller redusert funksjonalitet, noe som kan indikere behovet for utbedring. Det mangler veggfester for nedløpsrørene enkelte steder, og noen nedløpsrør er løse. Det mangler tilkomst til pipe for feier på tilbygget.
Konsekvens/tiltak
Overvåk tilstanden jevnlig. For å få tilstandsgrad 0 eller 1 må beslag/renner/nedløp skiftes ut, men tidspunktet for når dette er nødvendig er vanskelig å si noe om. Det må monteres snøfangere for å oppfylle byggeårets krav. Stigtrinn for feier må monteres. Det må monteres snøfangere på tilbygg.
Det må foretas utbedring av nedløpsrør.
Kostnadsestimat: 10 000 - 50 000
Utvendig > Vinduer
Bygningen har malte trevinduer med 2-lags glass fra slutten av 1990-tallet, og trevinduer med koblet glass av eldre dato. På loftet er det takvinduer i stuen. Takvinduer bør holdes fritt for snø og is rundt karmer. Jevnlig kontroll/renhold/vedlikehold rundt takvinduer på utvendig side er viktig. Ved fuktsøk rundt innvendig karmer ble det ikke påvist unormale forhold. Generelt preges vinduene av normal slitasje tatt alder i betraktning. Vinduer som har passert 20 år viser naturlig tegn til slitasje på tettelister, hengsler, vridere og karm. Det er også verdt å merke seg at eldre vinduer generelt har dårligere isoleringsevne sammenlignet med nyere vinduer, noe som kan påvirke både energieffektiviteten og inneklimaet. I tillegg øker alderen risikoen for punktering av glasset. Under befaringen ble det ikke observert noen punkterte vinduer, men det er viktig å være oppmerksom på at dette kan være vanskelig å oppdage ved en visuell inspeksjon.
Vurdering av avvik: Det er påvist avvik rundt innsettingsdetaljer. Karmene i vinduer er slitte og det er sprekker i trevirket. Det er påvist andre avvik: Vindusvannbrettene mangler beslag og vinduer er montert tett ned til vannbrett, en metode som var vanlig tidligere, men som ikke anses som fagmessig korrekt i dag. Dette øker risikoen for fuktbelastning på vinduene. Utvendig omramning av vinduer/dører er montert ned til vannbrettene. Dette kan fører til fukt oppsug og kortere levetid for treverket i dette området. Vinduene i 2 etasje og loftet har ingen barnesikring. Konsekvens av dette er fallskader når vinduene står åpne. Tg 3 settes utelukkende på bakgrunn av sikkerhetsmessige hensyn knyttet til dette.
Konsekvens/tiltak: Andre tiltak: Det bør etableres en avstand på mellom 5-7 mm mellom utvendig omramming av vinduer. Det bør monteres beslag på vannbrett på faglig god måte. Det må monteres barnesikring på vinduene i andre etasje og på loftet. Barnesikring av vinduer innebærer at vinduet må ha et sikringsbeslag/sperrebeslag som stopper vinduet i luftestilling.
Kostnadsestimat: 10 000 - 50 000
Utvendig > Skiferbelagte plattinger
Støpt platting med utgang fra tilbygget stue og hagen. Plattingen har overflate av skiferflis. Vurdering av avvik: Det er ikke montert rekkverk. Konstruksjonene har omfattende skjevheter. Plattingen har setningsskade som følge av at plattingen ble skjøtet en gang i tiden. Konsekvensen av dette er i dag kun på det estetiske, og at det ikke er mulig å møblere på den delen som er skadet. Det mangler rekkverk og håndløper i trappene. Konsekvens av dette er fallskader. Avstander høyere enn 0,50 meter ned til terreng/gulv krever, av sikkerhetsmessige årsaker, forskriftsmessig rekkverk.
Det er oppdaget hulrom (bom i flis) bak noen av flisene, og enkelte fliser virker løse. Dette kan være et resultat av normal slitasje over tid, og det anbefales at vedlikehold bør prioriteres fremover. Konsekvens/tiltak. De påviste skader må utbedres.
Rekkverk må monteres for å lukke avviket. For å utbedre skaden på plattingen må den delen som har sunket fjernes, og ny del støpes på en separat sålefundament iht. dagens byggeskikk. Selv om noen skiferfliser på plattingen ser hele ut, kan det hende de også trenger reparasjon hvis de har blitt skadet når hendelsen inntraff.
Kostnadsestimat: 50 000 - 100 000
Utvendig > Terrasse med utgang fra 1. etasje
Det er en terrasse oppført i trekonstruksjon med utgang fra 1. etasje, med to trapper ned til hagen. Under terrassen er det tilgang til et lagringsrom hvor innvendig tak er kledd med stålplater. Vurdering av avvik: Rekkverket er for lavt i forhold til dagens krav til rekkverkshøyder.
Det er påvist fukt/råteskader i konstruksjonen. Det er værslitt/oppsprukket trevirke/tre paneler. Overflater av treverk er overflateslitt og har behov for vedlikehold. Konsekvens av dette er av det vesentlig kun av kosmetisk karakter, men dersom det ikke iverksettes tiltak vil levetiden til bygningsdelen reduseres.
Det er påvist råteskader, og enkelte av stolpehattene er løse. Konsekvens/tiltak. Råteskadede konstruksjoner må skiftes ut. Andre tiltak: Det er ikke krav om utbedring av rekkverkshøyde opp til dagens forskriftskrav. Løse stolpehatter må utbedres og det må uføres vedlikehold av overflater.
Kostnadsestimat: 10 000 - 50 000
Innvendig > Etasjeskille/gulv mot grunn
Etasjeskillene er konstruert med tre bjelkelag fra byggeåret og noe betong. Retning avvik er kontrollert i korridoren i kjeller, to stuer i første etasje, stuen og to soverom i andre etasje, og begge soverommene og tv stuen på loftet. Undersiden av bjelkelaget er dekket med overflatekledninger. Dette betyr at en fullstendig kontroll av oppleggs punktet mot grunnmur ikke har vært mulig i disse områdene. Vi tar forbehold om potensielle skader som kan være skjult i disse delene. Vurdering av avvik: Målt høydeforskjell på over 20 mm innenfor en lengde på 2 meter. Tilstandsgrad 3 gis med bakgrunn i standardens krav til godkjente måleavvik. I flere rom er det målt retningsavvik opptil ca. 30 mm. Årsakene til dette kan være mange, men basert på erfaringer kan bygninger fra denne perioden ofte vise betydelige skjevheter. Dette skyldes typisk lange spenn eller avstander mellom støttepunkter i bjelkelag, i tillegg til normale setninger over tid. Konsekvens/tiltak: For å få tilstandsgrad 0 eller 1 må høydeforskjeller rettes opp. Ytterligere undersøkelser må foretas for å få kartlagt omfanget for utbedring.
Kostnadsestimat: 100 000 - 300 000
Innvendig > Pipe og ildsted
Boligen har to mursteins piper fra byggeår, og en elementpipe fra tilbyggningsåret. Sot- og feierluker er plassert på loft og i kjeller. Fyringsanlegget har flere ildsteder av gamle støpejerns ovner, som opplyses å være rehabilitert for ca. 20-25 år siden, ifølge eier. I tilbygget er det en murt peis.
Vurdering av avvik: Ildfast plate mangler på gulvet under sotluke/feieluke på pipe. Det er påvist brennbart materiale nærmere enn 300 mm fra sotluke/feieluke. Ildfast plate mangler på gulvet under/foran ildstedet. Ildfast stein har sprekker. Mer enn halvparten av forventet brukstid er passert på pipe.
Når piper, som i denne boligen, når en betydelig alder, øker behovet for oppgradering eller restaurering. For å beskytte gulvet mot glør og varm aske ved feiing og sot uttak, bør gulv av brennbart materiale dekkes med en ubrennbar plate i en horisontal avstand fra luka på minst 300 mm. Sotluken står med en avstand til brennbart materialet nærmere enn 30 cm. Konsekvens av dette er brannspredning dersom det oppstår pipebrann. Det er påvist ildfaste stein i ildsteder som har behov for utskiftning.
Konsekvens/tiltak: Ildfast stein bør skiftes ut/repareres. Det bør foretas nærmere undersøkelser av pipeløp. Det anbefales at det lokale feiervesenet sjekke pipen og ildstedene. De kan også gi råd om eventuelle forbedringer/utbedringer.
Kostnadsestimat: 10 000 - 50 000
Innvendig > Rom Under Terreng
Boligen har uinnredet kjeller med betongoverflater på vegger og gulv. Frem til rundt 1970 ble de fleste kjellere konstruert uten betydelig fuktsikring eller isolasjon, ment primært for grovlagring. Dette betyr at vann kan trekke opp i fundamentene og grunnmuren på grunn av kapillært oppsug fra undergrunnen. Vurdering av avvik: Det er påvist synlig fuktighet på mur/gulv i kjeller. Kjeller har ingen ventilering/luftgjennomstrømning. Det er plastisolasjon som ikke er dekket av brannhemmende materiale i henhold til krav. Når en gammel rå kjeller ikke får nok luft, kan det bli for fuktig der. Dette kan skade kjelleren over tid. Det er fjell i dagen i kjelleren, og det er naturlig å forvente vanninnsig. Dette er en vanlig utfordring i kjellere hvor grunnfjellet er eksponert, da det lettere kan lede vann inn i bygningen. Forholdet kan også sees i sammenheng med fuktinnsig som følge av manglende eller begrensende drenering. Det er påvist bruk av brennbar isolasjon (isopor) mot grunnmur. Denne løsningen forutsetter at innvendige overflater består av et godkjent materialet med tilfredsstillende brannegenskaper. Konsekvens av dette er økt risiko for brannspredning.
Konsekvens/tiltak: Det må foretas tiltak for å redusere/begrense fuktgjennomtrenging inn i kjeller. Andre tiltak: Kjelleren trenger bedre ventilasjon, og det bør settes i verk profesjonelle fuktsikringstiltak. Disse arbeidene bør utføres i forbindelse med en senere omlegging av dreneringen rundt grunnmuren.
- Isoporplater bør fjernes og erstattes med annen type isolasjon. Eventuelt kan isopor/plastholdig isolasjon tildekkes av brannhemmende plater som gips e.l., samt at overganger mot annen konstruksjon fuges med egnet type brannfugemasse /-skum e.l.
Kostnadsestimat: 50 000 - 100 000
Våtrom > 1. Etasje > Vaskerom > Sluk, membran og tettesjikt.
Det er ukjent slukløsning på våtrommet, og ukjent tettesjikt/membran. I følge eier er det sluk under vaskemaskinen. Vurdering av avvik: Sluk er ikke tilgjengelig for inspeksjon. Mer enn halvparten av forventet brukstid er passert på membranløsningen.
Når en membran i et våtrom har vært i bruk over halvparten av sin forventede levetid, øker sjansen for at den kan vise tegn til aldring, slitasje eller redusert tetthet. Dette kan tyde på et behov for utbedring eller utskiftning. Våtrommet har tre panel på veggene i våtsonen, noe som vanligvis ikke passer siden tre ikke tåler vann godt. Men i dette tilfellet er det lite sannsynlig at det blir et problem, fordi veggene ikke blir direkte våte under normal bruk av rommet. Derfor er det usannsynlig at det vil oppstå skader som betyr noe. Rommet har fått en tilstandsgrad 3 fordi materialvalget ikke møter kravene til vannbestandighet som regelverket setter for våtsoner. I våtrommet mangler det en sokkel mellom gulvet og veggen, og kledningens overflate strekker seg direkte ned til gulvet. Dette fører til usikkerhet om korrekt utførelse av tettesjiktet ved denne overgangen, eller om det finnes et tettesjikt i det hele tatt. Valget av denne løsningen gir grunn til å mistenke at rommet ikke er konstruert i henhold til gjeldende våtromsstandarder. Konsekvens/tiltak: Tilgang til sluk må bedres både for inspeksjon og rengjøring.
For å hindre sprutskader bak og under vask kan dette løses ved å montere sprutsikker plate i glass eller tilsvarende plate som tåler vann. Det anbefales ytterligere undersøkelser når det gjelder fuktsikringen i gulvet. Rommet vil kunne fungere slik det er i dag, men for å begrense risikoen for skader, kan en alternativ løsning være å montere automatisk lekkasjestopper i rommet. Kostnadsestimatet er for å belyse kostnaden for å oppgradere rommet iht. våtromsstandard.
Kostnadsestimat: 100 000 - 300 000
Våtrom > Loft > Bad > Generell
Baderom fra 1998 med servantskap, vegghengt toalett og dusjkabinett. Gulvet er flislagt og veggene har panel. Rommet er ikke bygget med våtrom-standard og er grunnlaget for tilstandsgraden. Vurdering av avvik: Våtrommet må oppgraderes for å tåle normal bruk etter dagens krav.
En må forvente generell oppgradering av våtrommets tettesjikt/membran for at våtrommet skal tåle en normal bruk etter dagens krav (tett våtsone). En samlet TG 3 for rommet er satt med bakgrunn i alder og manglende tetthet i våtsonen på rommet. Det er ikke behov for å gjennomføre en detaljert tilstandsanalyse, etter standardens krav. Konsekvens/tiltak. Våtrommet må totalrenoveres. Alle forhold med tettesjikt, våtsone, sluk m.m. må dokumenteres.
Kostnadsestimat: Over 300 000
Våtrom > 2. Etasje > Bad 2 > Sanitærutstyr og innredning
Rommet har innredning med 2 nedfelte servanter, vegghengte skap, toalett, badekar, håndkletørker og dusjdører i glass. Vurdering av avvik: Det er påvist drypplekkasje fra servantavløp. Det er avvik: Dusjdører subber i gulv/terskel. Årsaken til dette kan være at døren har begynt å sige med årene. Konsekvensen er at døren - uten utbedring - vil bli vanskeligere å åpne/lukke. Konsekvens/tiltak: Det må gjøres tiltak for å lukke avviket. Drypplekkasjene må utbedres. Dusjdøren bør sees på av en rørlegger og se om det er anledning til å justere den.
Kostnadsestimat: 10 000 - 50 000
Våtrom > 2. Etasje > Bad > Sanitærutstyr og innredning
Rommet har innredning med 2 nedfelte servanter, vegghengte skap, toalett, badekar og dusjdører i glass. Vurdering av avvik: Det er påvist skader på innredning. Det er påvist drypplekkasje fra servantavløp. Skadene på innredningen skyldes drypplekkasjene. Konsekvens/tiltak. Det må gjøres tiltak for å lukke avviket. Drypplekkasjene må utbedres.
Kostnadsestimat: 10 000 - 50 000
Tekniske installasjoner > Elektrisk anlegg
Dette er en forenklet kontroll begrenset til de spørsmål og undersøkelser som forskrift til avhendingslova (tryggere bolighandel) § 2-18 inneholder. Dette kan ikke sammenlignes med en kontroll utført av offentlig myndighet (Det lokale el tilsyn) eller registrert elektrovirksomhet, og en bygningssakkyndig har verken kompetanse eller lov til å foreta en slik kontroll. Tilstandsgraden er vurdert ut fra den forenklede og begrensede kontrollen som forskriften inneholder. El-anlegget kan ha feil og mangler som en slik forenklet undersøkelse ikke vil avdekke. Vær derfor oppmerksom på denne risikoen, og søk videre veiledning eller få en fullstendig kontroll utført av registrert elektrovirksomhet.
Det er både skjult og åpent elektrisk anlegg i boligen. Det er tre sikringsskap i boligen som er plassert i andre etasje, kjeller og på vaskerommet i tilbygget. Skapene inneholder automatsikringer. I første etasje er det varmematter mellom kjeller og stuene i første etasje.
1. Foreligger det el tilsynsrapport de siste 5 år, og det er ikke foretatt arbeid på anlegget etter denne, utenom retting av eventuelle avvik i el tilsynsrapport
(dvs. en el-tilsynsrapport uten avvik)?
Nei
2. Når ble det elektriske anlegget installert eller sist gang totalt rehabilitert (årstall)? Med totalt rehabilitert menes fullstendig utskiftet anlegg fra inntakssikring og videre.
1998
Spørsmål til eier
3. Er alle elektriske arbeider/anlegg i boligen utført av en registrert elektroinstallasjonsvirksomhet?
Ja, kontroll i 2022. Ingen anmerkninger som ikke er ordnet
4. Er det elektriske anlegget utført eller er det foretatt tilleggsarbeider på det elektriske anlegget etter 1.1.1999?
Ukjent
5. Foreligger det kontrollrapport fra offentlig myndighet - Det Lokale El tilsyn (DLE) eller eventuelt andre tilsvarende kontrollinstanser med avvik som ikke er utbedret eller kontrollen er over 5 år?
Nei
6. Forekommer det ofte at sikringene løses ut?
Nei
7. Har det vært brann, branntilløp eller varmgang (for eksempel termiske skader på deksler, kontaktpunkter eller lignende) i boligens elektriske anlegg?
Nei
Generelt om anlegget
9. Er der synlig defekter på kabler eller er disse ikke tilstrekkelig festet?
Ja
10. Er det tegn på at kabelinnføringer og hull i inntak og sikringsskap ikke er tette, så langt dette er mulig å sjekke uten å fjerne kapslinger?
Nei
Inntak og sikringsskap
11. Finnes det kursfortegnelse, og er den i samsvar med antall sikringer?
Ja
12. Foreta en helhetsvurdering av det elektriske anlegget, dets alder, allmenne tilstand og fare for liv og helse. Bør det elektriske anlegget ha en utvidet el kontroll?
Ja. Da det er påvist avvik ved installasjonen, er det anbefalt med en nøye gjennomgang av anlegget. Dette må utføres av en el-takstmann eller en godkjent kontrollør. Kostnadsestimatet er satt som grunnlag for en utvidet kontroll av el anlegget. Ved en eventuell utbedring vil det påløpe ekstra kostnader.
Kostnadsestimat: 10 000 - 50 000
Tekniske installasjoner > Branntekniske forhold
Dette er en forenklet kontroll begrenset til de spørsmål som fremkommer under. Tilstandsgraden er basert på retningslinjer til disse spørsmålene i bransjestandarden NS3600. Dette kan ikke sammenlignes med en fullstendig kontroll av branntekniske forhold av offentlig myndighet, eller en vurdering av boligens branntekniske forhold eller prosjektering fra en rådgiver med spesialkompetanse. En bygningssakkyndig har verken kompetanse til å gi slik veiledning eller lov til å foreta en slik kontroll. Tilstandsgraden er vurdert ut fra den forenklede og begrensede kontrollen. Det kan være feil og mangler om branntekniske forhold som en slik forenklet undersøkelse ikke vil avdekke. Vær derfor oppmerksom på denne risikoen, og søk videre veiledning eller rådgivning.
1. Er det mangler for brannslukningsutstyr i boligen iht. forskriftskrav på søknadstidspunktet, men minst Byggeforskrift 1985?
Nei
2. Er det skader på brannslokkingsutstyr eller er apparatet eldre enn 10 år?
Ja. Brannslukningsutstyret er nå eldre enn 10 år og må derfor skiftes ut. Det er viktig for sikkerheten at alt utstyr for brannslukking er i topp stand og fungerer som det skal. Eldre utstyr kan ha redusert effektivitet, og det å holde dette oppdatert er viktig for å sikre både personer og eiendom ved en eventuell brann.
3. Er det mangler på røykvarsler i boligen iht. forskriftskrav på søknadstidspunktet, men minst Byggeforskrift 1985?
Nei
4. Er det skader på røykvarslere?
Ukjent
Kostnadsestimat: Under 10 000
Tomteforhold > Terrengforhold
Eiendommen er opparbeidet i skrånede terreng. Det er ikke funnet informasjon hos kommunen om at eiendommen ligger i et rasfarlig/skredutsatt eller flomutsatt område. Vurdering av avvik: Terrenget faller inn mot bygningen og det er maksimale forhold for vann inn mot muren.
På grunn av det skrånende terrenget, er det en tendens til at grunnvann og overflatevann kan trekke mot grunnmuren. Dette kan resultere i økt fuktighet på grunnmuren. Generelt er det en anbefaling at terrenget rundt grunnmuren skal ha en skrånende form som fører bort fra bygningen (1:50) i en bredde av tre meter langs hele bygningen. I tillegg bør den utvendige fuktsikringen av muren også være funksjonell og tilfredsstillende. Konsekvens/tiltak. Det bør foretas terrengjusteringer.
Det er hensiktsmessig å vurdere dette tiltaket i sammenheng med en potensiell fremtidig omlegging av dreneringssystemet for boligen.
Kostnadsestimat: 50 000 - 100 000
TG2 - Avvik som kan kreve tiltak:
Utvendig > Taktekking
Taket har taksteinsimiterte plater av stål med plastbelegg fra 1998. På tilbygget del er det teglsteins av eldre dato, med undertak fra da tilbygget ble bygget. Takene er besiktiget fra bakkenivå grunnet sikkerhetsmessige hensyn.
Vurdering av avvik: Mer enn halvparten av forventet brukstid er passert på taktekkingen. Mer enn halvparten av forventet brukstid er passert på undertak. Det er påvist andre avvik: Når en bygningsdel har brukt mer enn halvparten av sin forventede levetid, øker sannsynligheten for at den kan vise tegn til aldring, slitasje eller redusert funksjonalitet, noe som kan indikere behovet for utbedring. Overgangen mellom taket og veggen er ikke tett. Konsekvens av dette er at det kan føre til lekkasjer som igjen kan føre til ytterligere bygningsmessige skader.
Konsekvens/tiltak: Overvåk tilstanden jevnlig. For å få tilstandsgrad 0 eller 1 må tekkingen skiftes ut, men tidspunktet for når dette er nødvendig er vanskelig å si noe om. Overgangen mellom tak og vegg må fuktsikres på faglig god måte. Overgang tak og vegg mot tilbygg er ikke utført tilfredsstillende.
Utvendig > Veggkonstruksjon
Hovedhuset er oppført i treverk av laftede stokker (tømmerkonstruksjon) fra byggeår, og tilbygget del er oppført i en bindingsverkskonstruksjon (treverk), kledd med stående bordkledning. Bunnstokken i hovedhuset er plassert direkte mot grunnmuren uten fuktsikring, noe som var standard praksis i byggeperioden det refereres til. Denne metoden øker risikoen for fuktopptak og råteskader fra grunnmuren. På grunn av manglende tilgang til å inspisere bunnstokken direkte, tas det forbehold om at det kan finnes skjulte skader som ikke er identifisert.
Vurdering av avvik: Det er påvist spredte råteskader i bordkledningen. Det er ingen eller liten lufting i nedre kant av kledning mot grunnmur. Bordkledning går stedvis nesten helt ned i terreng. Det er værslitt/oppsprukket trevirke/tre paneler. Kledningen er montert ned mot vannbrett/beslag. Dette vil øke vedlikeholdsbehovet i disse områdene, og det vil være en større risiko for fuktopptrekk/skader i kledning. Det anbefales derfor at det etableres en avstand på 5-7 mm mellom kledningsbord og vannbrett/beslag. Fasadene preges av svertesopp (overflatesopp).
Manglene lufting av kledning kan gi kortere levetid på kledningsbordene da fasadene ikke tørker opp i samme grad etter nedbør. Boligen ligger i et generelt tørt innlandsklima - forholdet har derfor mindre betydning i dette tilfelle. Lokale værforhold kan likevel være av betydning.
Veggen har et vannbrett som deler kledningen i etasjehøyde, konstruert etter den tids byggeskikk. I dagens standarder betraktes ikke denne løsningen som fuktsikker, ettersom det mangler beslag som leder bort vannet bak kledningen. Uten et slikt beslag øker risikoen for at vann trenger inn i bygningskonstruksjonen, noe som over tid kan føre til skader på bygget. Kledningen ligger med liten avstand til plattinger/terrasser. Vann fra nedbør og smeltevann fra snø vil gi kortere levetid for kledningsbordene i dette området. Fasaden er værutsatt, og krever hyppigere vedlikehold.
Konsekvens/tiltak: Det bør foretas tiltak for å bedre lufting av kledningen. Lokal utbedring bør foretas for å øke avstanden mellom terreng og bordkledning. Råteskadet tre kledning må skiftes ut. Andre tiltak: Det bør etableres en avstand på 5-7 mm mellom kledningsbord og ned mot vannbrett/beslag.
Utvendige fasader trenger generell vask/vedlikehold. Det må foretas lokale utbedringer av fasadene for å hindre risiko for fukt inne i konstruksjonen.
Utvendig > Takkonstruksjon/Loft
Takkonstruksjonen består av trekonstruksjon (sperrekonstruksjon). Loftet er isolert med mineralull. Det er tilkomst til loft via kottdører i knevegger. Store deler av loftet har tett gulv. Dette setter dette naturlige begrensinger for kontrollen, herunder kontroll om plasten er tett o.l. Det settes derfor forbehold på eventuelle skader/avvik som ikke er avdekket på disse stedene. Møneloft er ikke kontrollert da det ikke er tilgang. Bygningen ble bygget i en tid da byggeskikkene var annerledes, og uten bruk av moderne dampsperre. Dette var standard den gang og fungerte godt under de rådende bruksforholdene. Det betraktes ikke som en mangel, men det er viktig for nye eiere å være klar over at endringer i bruksforholdene - som økt fuktighet eller temperatur - kan føre til kondens og skader, dersom nødvendige oppgraderinger ikke blir foretatt.
Vurdering av avvik: Det er registrert symptom på aktivitet fra skadedyr. Det er påvist aktivitet fra mus på loftet. Årsaken skyldes utettheter i bygningskroppen, noe som ikke er unormalt på boliger fra denne tiden. Konsekvens/tiltak: Det bør foretas ytterligere undersøkelser for å få kartlagt omfang og behov for tiltak. Ved en fremtidig oppgradering av boligen, bør bygningen musesikres etter dagens standard.
Utvendig > Takkonstruksjon/Loft - tilbygg
Takkonstruksjonen har W-takstoler i tre. Loftet har tilkomst via nedtrekkbar loftstrapp i vaskerommet. Loft er isolert med mineralull. Vurdering av avvik: Det er fra loft/kryploft påvist indikasjoner på at det er punktering av dampsperre, som medfører svekket effekt av dampsperrefunksjonen.
Det er liten lufting i nedre kant av konstruksjonen. Det er påvist andre avvik: Isolasjonen ligger flere steder tett mot undertaket. Når isolasjonen ligger tett mot undertaket uten den nødvendige luftespalten, vil dette kunne føre til bygningsmessige skader som følge av isdannelser om vinteren.
Det mangler vindavledning i nedre del av taket. Vindavlederne skal hindre kald luft i å strømme inn i varmeisolasjonen i lofts bjelkelaget. Manglende vindavleding reduserer isolasjonsevnen og kan også medføre kondens på undersiden av himlingen.
- Deler av loftet er uten isolasjon, og plasten som skal skille loftet fra andre etasje er utett flere steder, Downlights kassene som er brukt er heller ikke egnet mot kaldt loft, da de ikke er damptette. Dette fører til varmetap, mulighet for støvkondens/heksesot på innsiden, samt luftlekkasjer som kan transportere varm luft fra oppholdsrom til kaldere områder. Slike lekkasjer kan forårsake kondens og vannskader i konstruksjonen, hvor skadeomfanget kan variere med hvordan boligen brukes. Konsekvens/tiltak: Det bør gjøres lokale tiltak. Lufting/ventilering må forbedres.
Det må monteres vindavleder i raft. Isolasjonen og plasten trenger forbedringer. Det kan medføre betydelige kostnader, ettersom det ofte er nødvendig å fjerne de indre takoverflatene for å utføre en grundig reparasjon. Manglende isolasjon og utett plast
Utvendig > Balkonger, terrasser og rom under balkonger
Støpt platting foran begge hovedinngangene med overflate av skiferflis. Vurdering av avvik: Det er oppdaget hulrom (bom i flis) bak noen av flisene, og enkelte fliser virker løse. Dette kan være et resultat av normal slitasje over tid, og det anbefales at vedlikehold bør prioriteres fremover. Konsekvens/tiltak: Det trengs ingen tiltak akkurat nå, men det er viktig at kjøperen tar dette med i planene for vedlikehold i tiden som kommer.
Utvendig > Utvendige trapper
Utvendige trapper av betong med skiferflis. Vurdering av avvik. Det er påvist andre avvik: Det er oppdaget hulrom (bom i flis) bak noen av flisene, og enkelte fliser virker løse. Dette kan være et resultat av normal slitasje over tid, og det anbefales at vedlikehold bør prioriteres fremover. Mindre skader i trinn er observert, men er av det vesentlig kun av estetisk karakter. Konsekvens/tiltak: Andre tiltak: Det trengs ingen tiltak akkurat nå, men det er viktig at kjøperen tar dette med i planene for vedlikehold i tiden som kommer.
Innvendig > Radon
Det er ikke foretatt radonmålinger og bygget er heller ikke utført med radonsperre. Eiendommen ligger i et område som i NVE Radon aktsomhetskart er definert med "moderat til lav" og "usikker" aktsomhetsgrad. Vurdering av avvik: Det er ikke foretatt radonmålinger, og bygget er heller ikke utført med radonsperre. Konsekvens/tiltak: Det bør gjennomføres radonmålinger. Dersom målingene viser verdier over anbefalte grenseverdier, bør det gjennomføres tiltak for å redusere radonkonsentrasjonen i inneluften. Det kan da påløpe ytterligere kostnader.
Innvendig > Innvendige trapper
Boligen har malte tretrapper fra byggeår og av nyere dato. Trappene preges av normal aldringsmessig slitasje. Vurdering av avvik: Rekkverkshøyder er under dagens forskriftskrav til rekkverk i trapper. Det mangler håndløper på vegg i trappeløpet.
Åpninger i rekkverk er større enn dagens forskriftskrav til rekkverk i trapper. Trappen er nokså bratt og lite egnet for trapp mellom boligrom. Hensikten med kravet om håndløper er å forhindre fall og sikre god gangkomfort. Det er viktig å påpeke at åpninger i trapper som overstiger 10 cm kan utgjøre en betydelig risiko for klemskader og fall, spesielt for småbarn. Dette skyldes at større åpninger gir en mulighet for at små barn kan få kroppsdeler i klem eller i verste fall falle gjennom. På grunn av disse risikoene tilfredsstiller ikke trappen de nåværende sikkerhetsforskriftene som gjelder for trapper. Avstanden mellom trappen og starten av trappeløpet fra loftet er mindre enn dagens krav. Konsekvens av dette er fallskader ved uoppmerksomhet. Konsekvens/tiltak: Det er ikke krav om utbedring av rekkverkshøyder opp til dagens krav. Det er ikke krav om utbedring av åpninger opp til dagens krav.
Håndløper bør monteres, men det var ikke krav på byggetidspunktet.
Innvendig > Innvendige trapper - Kjellertrapp
Kjellertrapp av tre fra byggeår. Vurdering av avvik: Det mangler håndløper på vegg i trappeløpet. Det er liten frihøyde i trappeløp. Det er påvist andre avvik: Avstanden mellom trappen og starten av trappeløpet i første etasje er mindre enn dagens krav. Konsekvens av dette er fallskader ved uoppmerksomhet. Fri høyde i trappen (avstand trappetrinn og innvendig tak) er målt til ca. 1,84 cm (dagens krav er 2,00 meter). Konsekvens av dette er sammenstøtt ved ferdsel i trappen. Den frie høyde en for øvrig iht. til datidens byggeskikk, og har i grunn ingen krav til utbedring.
Hensikten med kravet om håndløper er å forhindre fall og sikre god gangkomfort. Konsekvens/tiltak. Håndløper bør monteres, men det var ikke krav på byggetidspunktet.
Innvendig > Innvendige dører
Innvendig har boligen malte fyllingsdører originalt fra byggeår og noen som er av nyere dato. Dørene preges av normal slitasje tatt alder i betraktning. Vurdering av avvik: Det er påvist avvik som tilsier at det bør foretas tiltak på enkelte dører.
De eldste dørene er noe harde å få igjen. Dette skyldes nok naturlig aldring over tid. Konsekvens/tiltak: Det bør foretas tiltak på enkelte dører.
Innvendig > Andre innvendige forhold - 2
Det er påvist andre avvik: Det er påvist tegn til mus i boligen. Årsaken skyldes utettheter i bygningskroppen, noe som ikke er unormalt på boliger fra denne tiden. Konsekvens/tiltak: Andre tiltak: Det bør foretas ytterligere undersøkelser for å få kartlagt omfang og behov for tiltak. Ved en fremtidig oppgradering av boligen, bør bygningen musesikres etter dagens standard.
Våtrom > 2. Etasje > Bad 2 > Overflater Gulv
Gulvet er flislagt. Rommet har elektriske varmekabler. Det er målt ca. 40 mm høydeforskjell på gulv fra dørterskel til topp slukrist. Det er påvist andre avvik: Sluket er avgrenset i dusjen. Dette betyr at dersom det oppstår lekkasjer utenfor dusjområdet, vil vannet renne ut i naborommet og forårsake bygningsmessige skader. Konsekvens/tiltak. Det bør monteres automatisk lekkasjestopper. En automatisk lekkasjestopper vil stenge av vannforsyningen for å forhindre ytterligere skade. Den fungerer altså som en sikkerhetsmekanisme for å beskytte mot vannskader. Sluket er avgrenset i dusjen.
Våtrom > 2. Etasje > Bad 2 > Sluk, membran og tettesjikt
Det er plastsluk og ukjent tettesjikt/membran. Vurdering av avvik. Mer enn halvparten av forventet brukstid er passert på membranløsningen. Det er usikkert om rørgjennomføringene er riktig utført. Gjennomføringen av tettesjiktet i sluket og rørgjennomføringene i gulvet for øvrig har en usikker utforming. Siden dette området er en våtsone, er det nødvendig med spesielle tiltak for å hindre fuktinntrengning. Gjennomføringen ved sluket og andre rør i gulvet har en usikker utforming. Siden dette området er en våtsone, er det nødvendig med spesielle tiltak for å hindre fuktinntrengning.
Konsekvens/tiltak. Installering av tett dusjkabinett anbefales. Overvåk tilstanden jevnlig. For å få tilstandsgrad 0 eller 1 må tettesjiktet skiftes ut, men tidspunktet for når dette er nødvendig er vanskelig å si noe om. Gulvet bør ikke utsettes for bruksvann og det anbefales derfor installasjon av dusjkabinett. Videre anbefales det å rense sluket jevnlig slik at ikke vann står over slukkanten. Blir vann stående over slukkanten kan fukten vandre i betonggulvet og forårsake fuktskader i tilstøtende-/underliggende rom. Usikker utførelse av tettesjikt i sluk.
Våtrom > 2. Etasje > Bad 2 > Ventilasjon
Rommet har avtrekk via mekanisk anlegg i boligen. Ved funksjonstest ved bruk av røykampull-/papirark fungerte avtrekket tilfredsstillende under befaringen. Vurdering av avvik: Våtrommet mangler tilluftsventilering, f.eks. spalte/ventil ved dør. Konsekvens/tiltak: Det bør etableres tilfredsstillende tilluft til våtrom f.eks. luftespalte ved dør e.l.
Våtrom > 2. Etasje > Bad > Overflater Gulv
Gulvet er flislagt. Rommet har elektriske varmekabler. Det er målt ca. 25 mm høydeforskjell på gulv fra dørterskel til topp slukrist. Vurdering av avvik: Det er påvist andre avvik: Sluket er avgrenset i dusjen. Dette betyr at dersom det oppstår lekkasjer utenfor dusjområdet, vil vannet renne ut i naborommet og forårsake bygningsmessige skader. Konsekvens/tiltak. Andre tiltak: Det bør monteres automatisk lekkasjestopper. En automatisk lekkasjestopper vil stenge av vannforsyningen for å forhindre ytterligere skade. Den fungerer altså som en sikkerhetsmekanisme for å beskytte mot vannskader.
Våtrom > 2. Etasje > Bad > Sluk, membran og tettesjikt
Det er plastsluk og ukjent tettesjikt/membran. Vurdering av avvik: Mer enn halvparten av forventet brukstid er passert på membranløsningen. Rustskader i sluk. Det er usikkert om rørgjennomføringene er riktig utført. Ingen synlig tettesjikt i sluk, og skruene som holder klemringen nede er rustet i stykker.
Konsekvens/tiltak. Overvåk tilstanden jevnlig. For å få tilstandsgrad 0 eller 1 må tettesjiktet skiftes ut, men tidspunktet for når dette er nødvendig er vanskelig å si noe om. Ved renovering, påse at alle forhold med tettesjiktet, våtsone, sluk, røranlegg mv. dokumenteres.
Andre tiltak:
Installering av tett dusjkabinett anbefales. Skruene som er rustet i stykker bør forsøkes erstattet med nye, egnede skruer. Dette må en rørlegger vurdere. Gulvet bør ikke utsettes for bruksvann og det anbefales derfor installasjon av dusjkabinett. Videre anbefales det å rense sluket jevnlig slik at ikke vann står over slukkanten. Blir vann stående over slukkanten kan fukten vandre i betonggulvet og forårsake fuktskader i tilstøtende-/underliggende rom.
Våtrom > 2. Etasje > Bad > Ventilasjon
Rommet har avtrekk via mekanisk anlegg i boligen. Ved funksjonstest ved bruk av røykampull/papirark fungerte avtrekket tilfredsstillende under befaringen. Vurdering av avvik: Våtrommet mangler tilluftsventilering, f.eks. spalte/ventil ved dør.
Konsekvens/tiltak: Det bør etableres tilfredsstillende tilluft til våtrom f.eks. luftespalte ved dør e.l.
Våtrom > 1. Etasje > Bad > Overflater vegger og himling
Veggene har fliser. Taket har panel. Vurdering av avvik: Det er påvist andre avvik: Ved inspeksjon etter å ha laget åpninger for å sjekke fuktighet, ble det oppdaget at baderomsplatene er festet direkte på stenderne uten mellomliggende bygningsplater eller trevirke. Vanligvis krever produsentene at plate materialer skal ha en tykkelse på minst 20 mm for denne typen montering. Det er ikke gitt noen dokumentasjon på hvilken type plate som er benyttet. Hvis det viser seg at det er benyttet plater som er tynnere enn 20 mm, kan dette resultere i en vegg som er for fleksibel, noe som kan føre til at fliser sprekker og at vanntettingen blir skadet. Konsekvens/tiltak: Det anbefales ytterligere undersøkelser.
Våtrom > 1. Etasje > Bad > Overflater Gulv
Gulvet er flislagt. Rommet har elektriske varmekabler. Det er målt ca. 15 mm høydeforskjell på gulv fra dørterskel til topp slukrist. Vurdering av avvik: Det er påvist avvik i fallforhold til sluk i forhold til krav i forskrift på byggetidspunktet. Det er påvist at høydeforskjell fra topp slukrist til gulv/synlig topp membran ved dørterskel er mindre enn 25 mm. Fallforholdene rundt sluket er mindre enn byggeårets krav. Dette medfører at vann ledes til steder man ikke ønsker (utover gulvet). Konsekvens/tiltak: Det må foretas utbedring av fallforhold. Andre tiltak: Dusjkabinett.
Det bør monteres automatisk lekkasjestopper. En automatisk lekkasjestopper vil stenge av vannforsyningen for å forhindre ytterligere skade. Den fungerer altså som en sikkerhetsmekanisme for å beskytte mot vannskader.
Våtrom > 1. Etasje > Bad > Sluk, membran og tettesjikt
Det er plastsluk og smøremembran med ukjent utførelse. Vurdering av avvik: Mer enn halvparten av forventet brukstid er passert på membranløsningen. Det er usikkert om rørgjennomføringene er riktig utført. Rørgjennomføring i gulv er ufagmessig utført. Det mangler bla. kritiske detaljer (mansjetter) for at løsningen skal holde tett. Gjennomføringen i sluket har en usikker utforming. Siden dette området er en våtsone, er det nødvendig med spesielle tiltak for å hindre fuktinntrengning. Konsekvens/tiltak: Installering av tett dusjkabinett anbefales.
Overvåk tilstanden jevnlig. For å få tilstandsgrad 0 eller 1 må tettesjiktet skiftes ut, men tidspunktet for når dette er nødvendig er vanskelig å si noe om. Ved renovering, påse at alle forhold med tettesjiktet, våtsone, sluk, røranlegg mv. dokumenteres.
Våtrom > 1. Etasje > Bad > Sanitærutstyr og innredning
Rommet har innredning med nedfelt servant, toalett og dusjdører i glass. Innredningen har normal slitasje tatt alder i betraktning. Vurdering av avvik: Det er avvik: Kranen på vasken er løs. Årsaken til dette skyldes trolig for svak innfesting. Konsekvensen vil være at kranen blir vanskeligere å betjene, og det kan oppstå lekkasjer. Konsekvens/tiltak: Kranen må festes bedre.
Våtrom > 1. Etasje > Bad > Ventilasjon
Rommet har avtrekk via elektrisk styrt vifte. Ved funksjonstest ved bruk av røykampull/papirark fungerte avtrekket tilfredsstillende under befaringen. Vurdering av avvik: Våtrommet mangler tilluftsventilering, f.eks. spalte/ventil ved dør.
Konsekvens/tiltak: Det bør etableres tilfredsstillende tilluft til våtrom f.eks. luftespalte ved dør e.l.
Kjøkken > 1. Etasje > Kjøkken > Overflater og innredning
Kjøkkenet har innredning med profilerte fronter. Benkeplaten er av heltre og stein ved kokesonen. Det er kjøl/fryseskap, kjølehjørne, oppvaskmaskin, komfyr, komfyrvakt og platetopp. Innredningen preges av normal slitasje vurdert opp mot alderen.
Vurdering av avvik: Det er påvist skader/fuktskjolder i kjøkkengulvet. Det er påvist andre avvik: Det er påvist fuktskade i parkettgulvet. Årsaken til dette er knyttet opp mot kjølehjørne. Problemet er fikset ifølge eier. Kjøkkenkranen er løs. Årsaken til dette skyldes trolig for svak innfesting. Konsekvensen vil være at kranen blir vanskeligere å betjene, og det kan oppstå lekkasjer.
Konsekvens/tiltak: Kjøkkenkranen må festes bedre.
Spesialrom > 1. Etasje > Toalettrom > Overflater og konstruksjon
Toalettrom med eldre innredning av servant og toalett. Rommet av utslagsvask i skap. Vurdering av avvik: Toalettrom mangler tilluftsventilering, f.eks. spalte/ventil ved dør. Konsekvens/tiltak
Det bør etableres tilfredsstillende tilluft til toalettrom, f.eks. luftespalte ved dør e.l.
Tekniske installasjoner > Vannledninger
Innvendige vannledninger er av kobber fra 1998 og begynnelsen av 2000-tallet. I tilbygget er det plastrør koblet til fordelerstamme i kjeller. Vurdering av avvik: Mer enn halvparten av forventet brukstid er passert på innvendige vannledninger.
Det er påvist tydelige trykkslag i anlegget. Når en installasjon har brukt mer enn halvparten av sin forventede levetid, øker sannsynligheten for at den kan vise tegn til aldring, slitasje eller redusert funksjonalitet, noe som kan indikere behovet for utbedring.
Konsekvens/tiltak: Nærmere undersøkelse er nødvendig.
Tekniske installasjoner > Avløpsrør
Avløpsrør i boligen består av plast fra 1998 og begynnelsen av 2000-tallet. Vurdering av avvik: Det er ikke påvist tilfredsstillende lufting av avløpsanlegget. Det er påvist ufagmessig utførelse av avløpsledninger. Mer enn halvparten av forventet brukstid er passert på innvendige avløpsledninger.
På nåværende tidspunkt er det kun en synlig lufteløsning som leder til loftet gjennom en Durgoventil. Imidlertid er denne ene løsningen ikke tilstrekkelig på egenhånd, og det er derfor behov for å implementere en ekstra lufteløsning som strekker seg utover taket. Avløpsrør i kjeller er ikke tilfredsstillende innfesting (lagt spenn uten forankring). Dette er ikke en fagmessig utførelse og bør festes tilstrekkelig. Konsekvensen er lekkasjer dersom røret beveger på seg/ramler av. Konsekvens/tiltak: I forbindelse med oppgradering av våtrom vil det være naturlig med utskiftning av rør.
Anlegget bør sjekkes av fagperson. Skal avviket lukkes, må løsning på lufting av kloakk etableres. Andre tiltak: Avløpsrør må festes tilfredsstillende.
Tekniske installasjoner > Ventilasjon
Boligen har mekanisk avtrekk med vifte på loftet fra 1998. Utover dette er det kun åpenbare vinduer boligen. Vurdering av avvik: Det er påvist mangelfull ventilasjon på ett eller flere rom i boligen. Ventilasjonsløsningen er for svak i forhold til bruksbelastningen av boligen. Selv om det hjelper å åpne vinduer for frisk luft, er dette bare en ekstra hjelp og ikke en varig løsning for god luftsirkulasjon. Konsekvensen av mangelfull ventilasjon er generelt dårligere inneklima, da spesielt henført til høy innvendig luftfuktighet (avhengig av bruksforhold), innvendig tung/klam luft mv.
Konsekvens/tiltak: Det bør etableres veggventiler/vindusventiler i alle oppholdsrom som ikke har det. Man bør etablere ventiler i yttervegg i flere oppholdsrom. Samtidig med dette må det lages tilluft gjennom/under dørblad på innvendige dører.
Tekniske installasjoner > Varmtvannstank
Varmtvannstanken er på ca. 200 liter fra 1999, plassert i kjeller. Vurdering av avvik: Det er påvist at varmtvannstank er over 20 år. Når en varmtvannsbereder nærmer seg eller overgår sin forventede levetid, øker risikoen for at den plutselig kan slutte å fungere. I tillegg kan aldringsprosessen gjøre at den begynner å lekke, noe som kan føre til vannskader. Det er derfor viktig å holde øye med eldre beredere og vurdere utskiftning for å forebygge slike problemer.
Konsekvens/tiltak: Det er ikke behov for utbedringstiltak siden tanken fungerer i dag, men ut ifra alder kan skader plutselig oppstå på eldre tanker.
Tomteforhold > Drenering
I følge eier er det drenert rundt boligen 2 ganger den senere tid. Vurdering av avvik: Mer enn halvparten av forventet levetid på drenering er overskredet. Når dreneringens alder overstiger halvparten av dens forventede brukstid, øker risikoen for svikt og tilhørende skader.
Tomteforhold > Utvendige vann- og avløpsledninger
Utvendig vann- og avløpsledninger består av plast. Anlegget er tilkoblet Tyristrand Vannverk SA, som er et privat vannverk. I tillegg til dette er det ifølge eier to brønner, hvor vanningsanlegget for eiendommen er tilkoblet disse. Det opplyses også om at det er mulig å formåls endre dette brønnvannet mellom
forbruksvann og drikkevann. Vurdering av avvik: Det foreligger ingen dokumentasjon på vannkvaliteten på brønnvannet. Mer enn halvparten av forventet brukstid er passert på utvendige avløpsledninger. Mer enn halvparten av forventet brukstid er passert på utvendige vannledninger.
Hvis man ikke tester brønnvannet regelmessig, kan man risikere å drikke vann som ikke er rent. Det kan gjøre oss syke uten at vi vet hvorfor, fordi vannet kan inneholde ting som ikke er bra for oss. Når en installasjon har brukt mer enn halvparten av sin forventede levetid, øker sannsynligheten for at den kan vise tegn til aldring, slitasje eller redusert funksjonalitet, noe som kan indikere behovet for utbedring. Konsekvens/tiltak: Det er ikke behov for utbedringstiltak siden anlegget fungerer i dag, men ut ifra alder kan skader plutselig oppstå på eldre anlegg. Vannkvalitet må dokumenteres.
Tilsynsrapport og avvik ildsteder
Hovedbygning
Avvik enhet:
Det mangler godkjent stige/trinn på taket. Tilbygg
Avvik fra: § 6 Kontroll og vedlikehold av fyringsanlegg
Avvik ildsted:
Gjelder: Plassering: Produktnavn: Etasjeovn 1/etg. Blårom Ulefos
Ildsted for nær brannmurslist. Avstand min. 30 cm Blårom Ulefos nr. 187
Avvik fra: § 6 Kontroll og vedlikehold av fyringsanlegg
Gjelder: Plassering: Produktnavn: Etasjeovn 1/etg. Stue Ulefos
Ildsted for nær brannmurslist. Avstand min. 30 cm Ulefos nr. 1899
Avvik fra: § 6 Kontroll og vedlikehold av fyringsanlegg
Gjelder: Plassering: Produktnavn: Etasjeovn 2/etg. Stue Ulefos
Ildsted for nær brannmurslist. Avstand min. 30 cm Ulefos nr. 201
Avvik fra: § 6 Kontroll og vedlikehold av fyringsanlegg
Gjelder: Plassering: Produktnavn: Etasjeovn 2/etg. Soverom Ulefos
Ildsted for nær brannmurslist. Avstand min. 30 cm Soverom øst Ulefos nr. 202
Avvik fra: § 6 Kontroll og vedlikehold av fyringsanlegg
Gjelder: Plassering: Produktnavn: Etasjeovn 2/etg. Soverom Ulefos
Ildsted for nær brannmurslist. Avstand min. 30 cm Ulefos nr. 202
Avvik fra: § 6 Kontroll og vedlikehold av fyringsanlegg
Andre avvik:
Skorstein Sotluke for nær brennbart materiale.(min.30cm). 1 etg kott
Avvik fra: § 6 Kontroll og vedlikehold av fyringsanlegg
Hauggata 25
Gjelder: Plassering: Produktnavn: Vedovn 2/etg. Gang Jøtul
Brennplater/stein i ildsted er defekte, eller mangler.
Avvik fra: § 6 Kontroll og vedlikehold av fyringsanlegg
Gjelder: Plassering: Produktnavn: Etasjeovn 1/etg. Stue
Brennplater/stein i ildsted er defekte, eller mangler. Rist i bunn er dårlig
Avvik fra: § 6 Kontroll og vedlikehold av fyringsanlegg
Tomten
Tun
Tunet med bygninger ligger åpent og fritt med noe avstand fra RV 35, og Kolbjørnrud ligger på nedsiden av Hauggata med fritt utsyn mot Tyrifjorden. Sjelden pent opparbeidet tun med god plass, og tunet har en omfattende og sjelden flott bygningsmasse. Det er bl.a. fire bolighus, en "låve" med Gildehall, et stabbur, lysthus, tennisbane med klubbhus og et bassengbygg på eiendommen. Det er et meget flott hage-/parkanlegg og gårdstun i tilknytning til bygningene. Det er også adskilt tun og drift slik at du er helt uforstyrret inne på tunet. Herskapelig hovedbygning som ligger i utkanten av tunet med fri utsikt mot Tyrifjorden. Arealene og tunet er flott beplantet, og det er bl.a. brostein, skiferheller og gressplen rundt boligene og på tunet. Hagen ned mot Tyrifjorden og lysthuset er anlagt og ser ut som en park.
Jord
Fulldyrka areal ligger ved husene og ned mot fjorden og har en god arrondering. Jordkvaliteten regnes som god (tung jord) med gode solforhold, og med god adkomst. Dreneringen (grøftetilstanden) oppgis å være varierende. Avlingsnivå på ca. 400 kg/daa for korn.
Skog
Ifølge Gårds kart ved NIBIO er det flere teiger hvor ca. 20 daa ligger mellom R35 og Tyrifjorden. Resten ligger fordelt på flere teiger på andre siden av R35. Skogen er ikke er befart. Ifølge NIBIO et totalareal på ca. 367 daa. Det er ifølge eiere ingen skogbruksplan.
Ifølge gårds kart ved NIBIO er ca. 316 daa definert som produktive og fordelt med ca. 67 daa skog av høy bonitet, ca. 140 daa skog av middels bonitet og ca. 109 daa skog på lav bonitet. Takstmann gjør oppmerksom på at skogfondskontoen er en konto som kan ha løpende bevegelser slik at saldo kan variere. Saldo var ifølge eier kr 60 000,- pr. 04.09.2023. Ifølge eier er det ikke foretatt avvirkning de senere år. Etter siste hogst av skogen på oppsiden av riksveien rundt 2015 ble det plantet nytt. Det er ifølge eier ikke foretatt noen skogkultur/planting etter det. Det er ifølge eier enkle drifteveier i skogen. Ifølge gårds kart ved NIBIO er dominerende treslag gran med noe furu og lauvvirke.
Beregning av produksjonsevne basert på bonitetstall (Bonitet brukes i skogbruket som et uttrykk for markas evne til å produsere trevirke)
Høg bonitet 67 daa
Middels bonitet 140 daa
Låg bonitet 109 daa
Til sammen 316 daa.
Netto tellende tilvekst er beregnet til 128 m3/år med fordeling på 50 kubikk i høg, 56 kubikk i middels og 22 kubikk i låg.
Jakt-/fiske
Jakta - storvilt, rådyr og småvilt - Eiendommen inngår i utmarks eller jaktlag som betaler noe for jaktrettighetene. Det legges til grunn en jaktinntekt på kr 5,- pr dekar og år. Jakta er verdsatt sammen med skogen.
Radonmåling
Det er ikke foretatt radonmålinger og bygget er heller ikke utført med radonsperre. Eiendommen ligger i et område som i NVE Radon aktsomhetskart er definert med "moderat til lav" og "usikker" aktsomhetsgrad. Vurdering av avvik: Det er ikke foretatt radonmålinger, og bygget er heller ikke utført med radonsperre. Konsekvens/tiltak: Det bør gjennomføres radonmålinger. Dersom målingene viser verdier over anbefalte grenseverdier, bør det gjennomføres tiltak for å redusere radonkonsentrasjonen i inneluften. Det kan da påløpe ytterligere kostnader.
Offentlig kommunikasjon
Offentlig transport
Bråten 3min. Haug 7 min.
Vikersund bussterminal 11 min.
Buss, tog 11.7 km
Vikersund stasjon 11 min.
Oslo Gardermoen 1 t 15 min.
Oppvarming
Hovedhuset
Hele 1. etasje har gulvvarme. Ellers er det oppvarming med ved og strøm.
Låven
Oppvarming med ved og strøm. Flott peis i Gildehallen.
Bryggerhuset
Oppvarming med strøm.
Det gule huset
Oppvarming med ved og strøm.
Hønsehuset
Oppvarming med strøm.
Bassenghuset
Strøm.
Tennis hus
Strøm.
Barnehage/skole/fritid
Skoler
Tyristrand skole (1-10 kl.) 4 min. med bil/skolebuss
274 elever, 17 klasser 4 km
Ringerike videregående skole 21 min
684 elever, 29 klasser 18.2 km
Hønefoss videregående skole 21 min
675 elever, 44 klasser 19.2 km
Barnehager
Tyristrand barnehage (1-5 år) 5 min
65 barn 3.9 km
Drolsum naturbarnehage (1-5 år) 6 min
9 barn 6.6 km
Barnas Hus (1-5 år) 13 min
44 barn 12.3 km
Sport
Nakkerud stadion 1,5
Ballspill, fotball 1.5 km
Klokkergården Sandvolleyballbane
Sandvolleyball 3.8 km
Innersvingen avd. Vikersund 13 min
Mudo Vikersund 13 min
Personopplysningsloven
I henhold til personopplysningsloven gjør vi oppmerksom på at interessenter kan bli registrert for videre oppfølgning.
Hvitvaskingsreglene
Eiendomsmeglere er underlagt Lov om tiltak mot hvitvasking og terrorfinansiering (hvitvaskingsloven) - L01.06.2018 nr. 23. Det følger av loven at megler bl.a. har plikt til å gjennomføre kundekontroll. I de tilfeller hvor kunden er juridisk person skal megler også kartlegge hvem som er reelle rettighetshavere. Med reelle rettighetshavere menes fysiske personer som eier eller kontrollerer mer enn 25% av eierandelene i selskapet. Partene må bidra til at kundekontrollen lar seg gjennomføre på en hensiktsmessig måte. Megler plikter å rapportere mistenkelige transaksjoner til Økokrim. Ved slik rapportering vil ikke partene blir varslet.
Vedlegg til Salgsoppgaven
Følgende dokumenter inngår i salgsoppgaven eller utleveres på forespørsel til megler:
Landbrukstakst
Tilstandsrapport
Selgers egenerklæring
Energimerking
Kommunale opplysninger
Ferdigattest/midlertidig brukstillatelse
Reguleringsbestemmelser
Servitutter
Lovverk
Eiendommen skal overleveres kjøper i tråd med det som er avtalt. Det er viktig at kjøper setter seg grundig inn i alle salgsdokumentene, herunder salgsoppgave, tilstandsrapport og selgers egenerklæring. Kjøper anses kjent med forhold som er tydelig beskrevet i salgsdokumentene. Forhold som er beskrevet i salgsdokumentene kan ikke påberopes som mangler. Dette gjelder uavhengig av om kjøper har lest dokumentene. Alle interessenter oppfordres til å undersøke eiendommen nøye, gjerne sammen med fagkyndig før bud inngis. Kjøper som velger å kjøpe usett kan ikke gjøre gjeldende som mangel noe han burde blitt kjent med ved undersøkelsen.
Dersom det er behov for avklaringer, anbefaler vi at kjøper rådfører seg med eiendomsmegler eller en bygningssakyndig før det legges inn bud. Hvis eiendommen ikke er i samsvar med det kjøperen må kunne forvente ut ifra alder, type og synlig tilstand, kan det være en mangel. Det samme gjelder hvis det er holdt tilbake eller gitt uriktige opplysninger om eiendommen. Dette gjelder likevel bare dersom man kan gå ut ifra at det virket inn på avtalen at opplysningen ikke ble gitt eller at feil opplysninger ikke ble rettet i tide på en tydelig måte. En bolig som har blitt brukt i en viss tid, har vanligvis blitt utsatt for slitasje og skader kan ha oppstått. Slik bruksslitasje må kjøper regne med, og det kan avdekkes enkelte forhold etter overtakelse som nødvendiggjør utbedringer. Normal slitasje og skader som nødvendiggjør utbedring, er innenfor hva kjøper må forvente og vil ikke utgjøre en mangel.
Boligen kan ha en mangel dersom det er avvik mellom opplyst og faktisk areal, forutsatt at avviket er på 2% eller mer og minimum 1 kvm. Ved beregning av et eventuelt prisavslag eller erstatning må kjøper selv dekke tap/kostnader opptil et beløp på kr 10 000 (egenandel).
Dersom kjøper ikke er forbruker selges eiendommen "som den er", og selgers ansvar er da begrenset jf. avhl. § 3-9, 1. ledd 2. pktm. Avhendingsloven § 3-3 (2) fravikes, og hvorvidt en innendørs arealsvikt karakteriseres som en mangel vurderes etter avhendingsloven § 3-8. Informasjon om kjøpers undersøkelsesplikt, herunder oppfordringen om å undersøke eiendommen nøye, gjelder også for kjøpere som ikke anses som forbrukere. Med forbrukerkjøp menes kjøp av eiendom når kjøperen er en fysisk person som ikke hovedsakelig handler som ledd i næringsvirksomhet."
Diverse
Ved overtakelse av eiendommen blir våningshuset ryddet og rengjort. Øvrige bygninger og utearealer overtas slik det fremstår på visning og vil ikke bli ryddet eller rengjort ut over dette. Selger forbeholder seg retten til å ta med seg det han selv ønsker av Løsøre, maskiner, redskaper og antikviteter. Dette gjelder også frittstående hvitevarer.
Leieavtaler på eiendommen så som jordleie forutsettes transportert til kjøper.
Regulering
Eiendommen er uregulert LNF og følger av kommuneplanens arealdel 2019-2030. LNRF areal for nødvendige tiltak for landbruk og reindrift og gårdstilknyttet næringsvirksomhet basert på gårdens ressursgrunnlag - Nåværende.
Ferdigattest
Det foreligger Midlertidig brukstillatelse for svømmebasseng og bassenghus, datert 23.05.2005.
Det foreligger midlertidig brukstillatelse for sanitæropplegg i bassenghus, datert 01.06.2005.
Det foreligger igangsettingstillatelse av renseanlegg, datert 21.05.2007.
Det foreligger godkjennelse for oppføring av redskaps hus i tilknytning til tennisbane, datert 03.01.2006.
Det foreligger vedtak vedr. låve - riving og bygging av ny låve, datert 02.01.2006.
Det foreligger godkjenning av plan for lager av husdyrgjødsel, datert 26.05.2005.
Det foreligger godkjennelse av tilbygg til hovedbygningen, datert 04.01.2006.
Hovedhuset
Det foreligger godkjente og bygge meldte tegninger, men det er avvik fra disse. Det er mottatt tegninger av førsteetasje som er laget ifb. tilbygget. På tegningen er peisen i tilbygget plassert på et annet sted i stuen enn i dag, og dusjen og wc er bygget som ett rom. Disse endringene har ingen stor betydning. Tegninger av øvrige etasjer er ikke mottatt, og foreligger trolig ikke da bygningen er veldig gammel.
Det foreligger ikke godkjente og byggemeldte tegninger på øvrig bygningsmasse, og kjøper påtar seg risikoen for både fremtidig, fortsatt bruk og eventuelle pålegg, for alle ovennevnte ulovlige forhold, herunder risikoen for om bruken lar seg godkjenne, og alle kostnader forbundet med dette. Det kan være krav i lov, forskrift og planverk som ikke er eller kan oppfylles, i så fall vil kommunen kunne kreve at rommet/ rommene/ bygningsdelene settes tilbake til opprinnelig godkjent stand.
Vei, vann og avløp
Privat vannverk på Tyristrand. Også to borehull som gir anledning til å legge om til brønnvann.
Pris pr. m3 vann kr. 39,43+ mva. for 2024. Pris pr. m3 avløp kr. 66,48 + mva. for 2024.
Eiendommer som ikke er tilknyttet offentlig avløp, vil få tilsyn de nærmeste årene. Det kan da kreves å bygge nytt eller oppgradere det eksisterende avløpsanlegget. Det er huskjøpers ansvar å innhente status på boligens avløpsanlegg.
Det er et privat renseanlegg på eiendommen med rensning gjennom skjellsand. Eier tar for tiden vannprøver for å måle effekt.
Servitutter
På eiendommen er tinglyst følgende heftelser og rettigheter som følger eiendommens matrikkel ved overskjøting til ny hjemmelshaver.
1866/990077-1/23 Skjønn, tinglyst 18.07.1866.
Regulering av areal i forbindelse med veggrunn/jernbanegrunn. Gjelder denne registerenheten med flere.
1907/900389-1/23 Skjønn, tinglyst 16.01.1907.
Bestemmelse om regulering av innsjø/vann/elv. Gjelder denne registerenheten med flere.
1914/907617-1/23 Skjønn, tinglyst 15.12.1914.
Bestemmelse om regulering av innsjø/vann/elv. Gjelder denne registerenheten med flere.
1921/907712-1/23 Skjønn, tinglyst 16.11.1921.
Elektriske kraftlinjer. Gjelder denne registerenheten med flere.
1998/1991-19/23 ** Diverse påtegning, tinglyst 18.05.1998.
Rettigheter i h t skjønn overdratt til Ringeriks-Kraft AS.
1942/535-4/23 Bestemmelse om veg, tinglyst 16.03.1942.
Rettighetshaver: Knr:3007 Gnr:259 Bnr:14. Bestemmelse om benyttelse. Gjelder denne registerenheten med flere.
1951/1077-1/23 Skjønn, tinglyst 24.05.1951. Bestemmelse om felles vannverk/ledning. Gjelder denne registerenheten med flere.
1953/990126-1/23 Elektriske kraftlinjer, tinglyst 06.08.1953. Gjelder denne registerenheten med flere.
1955/239-1/23 Jordskifte, tinglyst 01.02.1955. Grensegangssak. Gjelder denne registerenheten med flere.
1956/2002-5/23 Begrensing i råderett, 18.08.1956. Rettighetshaver: FYLKESMANNEN I OSLO OG VIKEN Org.nr: 946473111
Forbud mot bebyggelse, salg eller bortleie av parseller mm som kan utelukke eller vanskeliggjøre allmenhetens adgang til strandstrekningene. Gjelder denne registerenheten med flere.
1959/1867-1/23 Erklæring/avtale, 01.08.1959. Rettighetshaver: Televerket. Bestemmelser om telefonledninger/stolper/kabler/grøfter mv. Gjelder denne registerenheten med flere.
1963/2796-1/23 Skjønn, tinglyst 26.08.1963. Regulering av areal i forbindelse med veggrunn/jernbanegrunn. Gjelder denne registerenheten med flere.
1987/797-1/23 Jordskifte, tinglyst 06.02.1987. Grensegangssak. Gjelder denne registerenheten med flere.
2014/265123-1/200 Rettsbok, tinglyst 01.04.2014. Klausulering av Vælerens nedbørsfelt. Saks nr. 5/1990 B. Bestemmelser om bebyggelse, skog og jordbruk, bruk av båt, renovasjon m.m. Gjelder denne registerenheten med flere.
2022/82687-1/200 Jordskifte, tinglyst 21.01.2022 21:00. 21-052291RFA-JVVI/JDRA Haug Søndre. Gjelder denne registerenheten med flere.
Rettigheter på andre eiendommer, 942/535-6/23 Bestemmelse om båtplass, tinglyst 16.03.1942.
Rettighetshaver: Knr:3007 Gnr:259 Bnr:2
Megler har innhentet tilgjengelige servitutter i Statens kartverk. Samlede servitutter utleveres på forespørsel.
Ansvarlig megler
Nils Henrik Tegneby
Nyttige lenker
Nærområdet

TEGNEBY & GRØNNERØD LANDBRUKSMEGLING AS
Annonseinformasjon
| FINN-kode | 409313649 |
|---|---|
| Sist endret | 11. des. 2025 10:28 |
| Referanse | GAR30.2548 |
Annonsene kan være mangelfulle i forhold til lovpålagt opplysningsplikt. Før bindende avtale inngås oppfordres interessenter til å innhente komplett informasjon fra meglerforetaket, selger eller utleier.


































































