Bildegalleri

Vestre Spydevoll - Presentert av Tegneby og Grønnerød Landbruksmegling
Vestre Spydevoll | Svært påkostet gård med en usedvanlig flott hovedbygning og vakkert tunområde | Redusert pris!
Nøkkelinfo
- Etasje
- 2.
- Eieform
- Eier (Selveier)
- Areal
- 601 m²
- Byggeår
- 1984
- Energimerking
- F - Rød
- Tomteareal
- 327 300 m² (eiet)
- Overtakelse
- Overtakelse etter nærmere avtale med selger. Det oppfordres til å nevne ønsket overtagelse i evt. bud.
Type lokale
Kort om eiendommen
Velkommen til Vestre Spydevoll gård, en svært påkostet og velholdt eiendom med skjermet beliggenhet i skogkanten nord for Ise i Sarpsborg kommune. Eier har over flere år investert store summer i både bygninger og uteområde. Eiendommen innehar 83 dekar dyrket, 116 dekar produktiv skog og et totalt areal på ca. 327 dekar. Tunområdet er godt organisert og flott utformet med lyssatt allé, belegningsstein og parkmessig beplantning. De største Østfoldbyene ligger kun en kort kjøretur fra gården, med tilhørende pendlermuligheter og servicetilbud.
Bygningsmassen på gården holder høy standard og består av hovedhus med integrert garasje, kårbolig med tilhørende garasje, et sjarmerende stabbur med lyssatt klokketårn og en låve med stalldel, mye lagringsplass og korntørke med tippesjakt.
Inneholder
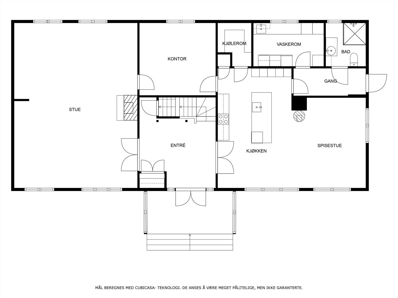
Hovedbygning (sum BRA: 439 kvm):
Kjeller (BRA: 156 kvm): Dobbel garasje, gang med trapp, teknisk rom/ fyrrom, to boder og kjellerstue.
1. etasje (BRA: 162 kvm): Entré med trapp, kjøkken med spisestue, kjøkkengang, bad, vaskerom, kontor og stue.
2. etasje (BRA: 121 kvm): Gang, fire soverom, to bad, wc, walk-in garderobe og bod.
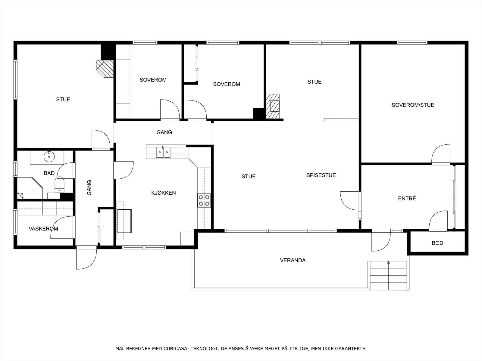
Kårbolig:
1. etasje (BRA: 162 kvm): Entré, bod, 3 soverom, 3 stuer, kjøkken, bad, vaskerom og kjøkkengang.
Dobbel garasje:
1. etasje (BTA: 83 kvm): Dobbel bilgarasje med god lagringsplass i enden foran, og ved siden av bilene.
Låve: (sum BTA: 699kvm. Samlet brutto grunnflate er oppgitt til 399 kvm. Arealer på mesanin, kjørebru og kjeller er beregnet, og kan avvike noe):
1. etasje (BTA: 399 kvm): Stallrom, lagerrom, korntørkeanlegg, varmluft satstørke og kaldluft siloer.
Kjeller (BTA: 75 kvm): Kjeller under stalldel. Potetkjeller / gjødselkjeller.
Mesanin (BTA: 75 kvm): Mesanin over stalldel - brukes til lagring av materialer etc.
Kjørebro (BTA: 150 kvm): Kjørebru i 5 meters bredde på langs av bygningen.
Stabbur (sum BTA: 69 kvm):
1. etasje (BTA: 31 kvm): 3 rom
2. etasje (BTA: 38 kvm): 1 rom
Pumpehus (BTA: 8 kvm):
1 etasje (BTA: 8 kvm): enkelt, isolert pumpehus
Beliggenhet
Velkommen til Vestre Spydevoll gård, en svært påkostet og velholdt eiendom med skjermet beliggenhet i skogkanten nord for Ise i Sarpsborg kommune. Eiendommen innehar 83 dekar dyrket, 116 dekar produktiv skog og et totalt areal på ca. 327 dekar. Tunområdet er godt organisert og flott utformet med lyssatt allé, belegningsstein og parkmessig beplantning. Fra gårdens vakre tun har man også nærhet til et rikt antall turstier og skogsvann. De største Østfoldbyene ligger kun en kort kjøretur fra gården, med tilhørende pendlermuligheter og servicetilbud.
Bygningsmassen på gården holder generelt høy standard og består av hovedhus med integrert garasje, kårbolig med tilhørende garasje, et sjarmerende stabbur med lyssatt klokketårn og en låve med stalldel, mye lagringsplass og korntørke med tippesjakt.
Hovedhuset ble betydelig oppgradert i 2020, og bygningen holder et gjennomgående stilfullt utrykk med store rom og svært høy standard på materialvalget. Det er et elegant kjøkken med integrerte hvitevarer, kjøkkenøy og plass for en stor spisegruppe. Det er en romslig stue med en stilfull peis og gode møbleringsmuligheter. Videre byr hovedhuset blant annet på hele fire soverom, tre baderom, vaskerom og walk-in garderobe. Boligens hovedmøbler ble spesialbestilt i forbindelse med oppgraderingen, og kan erverves av kjøper om ønskelig.
Kårboligen fremstår som velholdt og har en praktisk planløsning med alt på en flate. Bygningen er med på å gjøre gården til en flott generasjonseiendom, og det er selgers foreldre som har bebodd kårboligen frem til i dag. Som ren utleieenhet vil den også ha et stort potensiale da den blant annet inneholder 3 soverom, flere stuer, kjøkken, baderom og vaskerom. En variert beplantning av prydbusker og trær mellom hovedhuset og kårbolig, bidrar til at bygningene er naturlig skjermet fra hverandre.
Vestre Spydevoll har adkomst via Spydevollveien, som er felles adkomstvei for denne og to andre gårdsbruk. Matbutikker, idrettsanlegg, skoler i form av barne, ungdoms og videregående skole og øvrige servicetilbud ligger kun en kort kjøretur fra eiendommen. Det er ca. 10 minutter til Sarpsborg sentrum.
De største østfoldbyeiene som Sarpsborg og Fredrikstad er naturlige bysentrum, med sine utvalg av butikker, restauranter og ulike aktiviteter for alle aldre. I nærhet av eiendommen finnes både Isesjøen og Børtevann, samt mange flotte tur- og rekreasjonsområder. For den bilinteresserte ligger Rudskogen Motorsenter kun 10 min kjøring fra Vestre Spydevoll.
Betalingsbetingelser
Hele kjøpesummen med omkostninger må være innbetalt og disponibel for megler på meglers klientkonto, senest på siste virkedag innen overtagelsen finner sted.
Overtagelse, tilleggsinfo.
Overtakelse etter nærmere avtale med selger. Det oppfordres til å nevne ønsket overtagelse i evt. bud.
Bebyggelse
Hovedhuset:
Våningshus fra 1984, tilnærmet totalrenovert 1. og 2. etasje i 2020, med full oppgradering innvendig. Nytt tak og noen nye vinduer utvendig i 2020. Våningshuset har nytt kjøkken, nye bad, vaskerom, gulv, vegger og tak, kjølerom, vinskap, peiser osv. Hele huset har flotte og eksklusive overflater, og er i generelt god stand. Huset er satt opp på kjeller i betong/ lettklinker. Vegger i bindingsverk, med stående kledning. Saltak tekket med glasert tegltakstein. Huset har to peiser, elektriske varmekabler og fyringsanlegg for vannbåren varme som oppvarmingskilder. Det er sløyfer for vannbåren varme i kjøkkengulv og kjøkkengang, samt radiatorer på soverom i 2. etasje. Alle våtrom er flislagt, og har flotte innredninger. Stort kjøkken av høy kvalitet med kjølerom og vinskap, og stor spiseplass. Det er behov for noe vedlikehold.
Kårbolig:
Byggeår: 1974. Enebolig på ett plan oppført på ringmur og bjelkelag som gulv. Vegger i bindingsverk med stående utvendig kledning. Saltak, W-takstoler, tekket med betongtakstein. Boligen, som er fra 1974 er i god stand og godt ivaretatt. Hele boligen ble modernisert i 1998, med tapet og maling. Boligen ble så tilbygget i 2002 med kontor, hall og kott. Kjøkken er fra 1998 i heltre furu, med profilerte fronter. Kjøkken ble oppgradert, tapetsert og malt i 2021. Vaskerom ble oppgradert i 2005/06. Bad ble oppgradert i 2012. Yttertak ble lagt om i 2012.
Dobbel garasje:
Byggeår: 2010. Dobbel garasje oppført på støpt plate på mark, med oppkant av betong. Vegger i bindingsverk, isolert og utvendig kledt med stående trekledning. Innvendig kledd med liggende panel. Saltak, W-takstoler, tekket med betongtakstein. Renner, nedløp og beslag er fra byggeår. Garasjen har to isolerte leddporter med portåpnere. Den har tre vinduer og en gangdør. Stor og romslig garasje som er normalt godt vedlikeholdt.
Låve:
Byggeår: 1950. Driftsbygningen står på støpte pilarer/ støpt kjeller og støpt plate på mark. Konstruksjonen er grovt bindingsverk og vanlig bindingsverk i den sydligste delen som er bygget til med korntørke og tippesjakt. Kledning utvendig er stående panel, over- og underliggere. Det er saltak med oppløft over adkomst fra låvebru. Taket bæres av sperrer og er tekket med profilerte ståltakplater, nytt tak i 2021. I nordenden av bygget er det bygget opprinnelig stallrom, men er aldri benyttet til det. Det er et solid lagerrom i dag med yttervegger av pusset mur, utvendig kledt med trepaneler. Her er det to vinduer med isolerglass. Stalldelen er bygget over kjeller - potetkjeller - med utvendig adkomst på nordenden. Over stallen er det mesanin for lagring. Stalldelen har adkomst via uisolerte slagdører. Stalldel og overliggende mesanin har en grunnflate på ca. 75 kvm. Den midtre delen av låven er redskapsrom/ lager. Her er det adkomst fra gårdsplass via tre doble slagporter og en enkelt slagdør. Denne delen har solid tregulv. I den sydligste delen av låven, som ble tilbygget rundt 1975 er det et korntørkeanlegg med tippesjakt, en eldre varmluftstørke og lagersiloer. Det er også plass til noe maskiner/ redskap i denne delen. Adkomst til denne delen er via en stor skyveport på gavlvegg mot syd. Tørkeanlegget har ikke vært i bruk de senere år. Låvebru med adkomst til kjørebane på langs av bygget. Romslig og god lagerplass, men er ikke egnet for dagens tunge landbruksmaskiner. Bygningen er godt vedlikeholdt og holder god teknisk stand.
Stabbur:
Byggeår: 1940. Bygningen står på betongpilarer. Konstruksjonen er laftet plank. Det er tre rom i 1. etasje og ett stort rom i 2. etasje. Yttertak, saltak, er tekket med profilerte ståltakplater. På taket er det satt opp et klokketårn. Nytt tak med nødvendige beslag ble skiftet i 2021, og bygningen fikk nye vinduer. Klokketårn er lyssatt. Stabburet gir et godt inntrykk i tunet, og er en stor miljøskaper, selv om det har lav nytteverdi.
Pumpehus:
Ukjent byggeår. Lite pumpehus oppført på grunnmur av betong, i bindingsverk. Utvendig er bygningen kledd med stående trekledning, og med gangdør. Bygningen er isolert og huser gårdens brønnpumpe. Bygningen har saltak tekket med profilerte ståltakplater. Bygningen er normalt godt vedlikeholdt.
Byggemåte
Det er foretatt en tilstandsrapport fra Witek ved Ole Petter Søtorp på hovedhuset datert 10.07.2024, der byggemåte er nærmere beskrevet, og også gitte tilstandsgrader fremkommer. Tilstandsrapporten følger vedlagt.
Følgende forhold har fått tilstandsgrad 3:
- Utvendig > Utvendige trapper:
Det er ikke montert rekkverk.
- Tomteforhold > Forstøtningsmurer:
Det er påvist mindre sprekker og/eller skjevheter i muren. Det mangler rekkverk/annen sikring på forstøtningsmuren(e) ut ifra dagens krav.
- Tomteforhold > Terrengforhold:
Det er påvist dårlig fall eller flatt terreng inn mot grunnmur og dermed muligheter for større vannansamlinger. Terrenget faller stedvis inn mot bygningen og det skaper forhold for vann inn mot muren.
Følgende forhold har fått tilstandsgrad 2:
- Utvendig > Nedløp og beslag:
Det er ikke tilfredsstillende bortledning av vann fra taknedløp ved grunnmur.
- Utvendig > Veggkonstruksjon:
Det er værslitt/oppsprukket trevirke/trepaneler. Lokale råteskader. Avflassing i undertak. Etterslep av vedlikehold.
- Utvendig > Takkonstruksjon/Loft:
Det ga ikke indikasjon på fukt. Stedvis manglende/enkel isolering. Vepsebord. Deler av takkonstruksjonen er gjenbygget. Det er ingen mulighet til vurdering utover alder og observasjoner fra underliggende etg.
- Utvendig > Vinduer:
Karmene i vinduer er slitte og det er sprekker i trevirket. Etterslep av vedlikehold. Vinduer tar stedvis i karm. Det er ikke montert vannbrettbeslag på vinduer i kjeller/underetasje, noe som øker risikoen for fuktinntrengning i veggen.
- Utvendig > Balkongdør:
Karmene i dører er værslitte utvendig og det er sprekker i trevirket. Sidedør tar i karm.
- Utvendig > Balkonger, terrasser og rom under balkonger:
Rekkverket er for lavt i forhold til dagens krav til rekkverkshøyder. Etterslep av vedlikehold. Det er registret avskalling i underkant, noe som kan tyde på lekkasje i takpapp.
- Utvendig > Utvendige trapp over garasje:
Etterslep av vedlikehold.
- Innvendig > Overflater:
Fleste av overflatene har TG1. Bom i fliser.
- Innvendig > Etasjeskille andre etasje:
Målt høydeforskjell på mellom 10 - 20 mm innenfor en lengde på 2 meter. Tilstandsgrad 2 gis med bakgrunn i standardens krav til godkjente måleavvik.
Målt høydeforskjell på over 15 mm gjennom hele rommet. Tilstandsgrad 2 gis med bakgrunn i standardens krav til godkjente måleavvik.
- Innvendig > Etasjeskille/gulv mot grunn:
Mindre sprekker/riss i betonggulv.
- Innvendig > Rom Under Terreng:
Det er påvist indikasjoner på noe fuktgjennomtrenging i kjellergulv. Det er påvist indikasjoner på noe fuktgjennomtrenging inn i kjellermur.
- Innvendig > Innvendige trapper:
Det mangler håndløper på vegg i trappeløpet.
- Innvendig > Innvendige trapp til kjeller:
Det mangler håndløper på vegg i trappeløpet.
- Innvendig > Garasje:
Sprekker og saltutslag. Garasje med bruttoareal til og med 50 m2 i samme bruksenhet, for eksempel garasje i enebolig, må være skilt fra resten av byggverket med bygningsdeler som er så tette at eksos ikke trenger gjennom. En yttervegg med utvendig vindsperre og innvendig dampsperre gir tilstrekkelig tetthet mot en godt ventilert garasje. Det foreligge ikke dokumentasjon på eksos tetthet.
- Innvendig > Mus:
Det er registrert mus ekskrementer innvendig i huset i/på loft.
- Våtrom > Andre etasje > Bad 1 > Overflater vegger og himling:
Det er vindu/dør med ikke fuktbestandige materialer i våtsonen (ved vask, dusj, badekar, osv.), løsningen eller byggematerialet er uegnet.
- Våtrom > Andre etasje > Bad 1 > Overflater Gulv:
Det er påvist at høydeforskjell fra topp slukrist til gulv/synlig topp membran ved dørterskel er mindre enn 25 mm. Det er påvist avvik i fallforhold til sluk i forhold til krav i forskrift på byggetidspunktet.
- Våtrom > Andre etasje > Bad 1 > Sluk, membran og tettesjikt:
Membran ligger skjult under fliser og tilstand kan ikke avdekkes uten inngripen i konstruksjonene. Ingen dokumentasjon på selve utførelsen foreligger.
- Våtrom > Andre etasje > Bad 2 > Overflater vegger og himling:
Det er vindu/dør med ikke fuktbestandige materialer i våtsonen (ved vask, dusj, badekar, osv.), løsningen eller byggematerialet er uegnet.
- Våtrom > Andre etasje > Bad 2 > Overflater Gulv:
Det er påvist avvik i fallforhold til sluk i forhold til krav i forskrift på byggetidspunktet. Sluk under badekar er ikke tilgjengelig for inspeksjon.
- Våtrom > Andre etasje > Bad 2 > Sluk, membran og tettesjikt:
Mer enn halvparten av forventet brukstid er passert på slukløsningen. Membran ligger skjult under fliser og tilstand kan ikke avdekkes uten inngripen i konstruksjonene. Ingen dokumentasjon på selve utførelsen foreligger. Utførelsen med hensyn til bruk av slukmansjett og membran er uoversiktlig, og det kan følgelig derfor ikke sies at løsningen er fullgod og vannsikker mot lekkasjer. Ukjent løsning for avløp under badekar. Ikke tilgjengelig under badekar. Badet har ukjent alder og det er derfor ukjent gjenværende forventet levetid.
- Våtrom > Andre etasje > Bad 2 > Sanitærutstyr og innredning:
Det er påvist riss/sprekker i utstyr på våtrommet.
- Våtrom > Første etasje > Vaskerom > Overflater Gulv:
Det er påvist at noen fliser har bom (hulrom under).
- Våtrom > Første etasje > Vaskerom > Sluk, membran og tettesjikt:
Sluk har begrenset mulighet for inspeksjon og rengjøring. Sluk er bak sokkelest. Ble ikke kontrollert på befaringsdato. Membran ligger skjult under fliser og tilstand kan ikke avdekkes uten inngripen i konstruksjonene. Ingen dokumentasjon på selve utførelsen foreligger.
- Våtrom > Første etasje > Bad > Overflater vegger og himling:
Det er vindu/dør med ikke fuktbestandige materialer i våtsonen (ved vask, dusj, badekar, osv.), løsningen eller byggematerialet er uegnet. Sprekker i maling i tak. Sprek i flis og fug.
- Våtrom > Første etasje > Bad > Overflater Gulv:
Det er påvist avvik i fallforhold til sluk i forhold til krav i forskrift på byggetidspunktet.
- Våtrom > Første etasje > Bad > Sluk, membran og tettesjikt:
Membran ligger skjult under fliser og tilstand kan ikke avdekkes uten inngripen i konstruksjonene. Ingen dokumentasjon på selve utførelsen foreligger. Det er ikke registrert membran bak vegghengt toalett. Badet har ukjent alder og det er derfor ukjent gjenværende forventet levetid.
- Våtrom > Første etasje > Bad > Sanitærutstyr og innredning:
Det er ikke påvist tilfredsstillende løsning for å synliggjøre lekkasje fra innebygget sisterne.
- Spesialrom > Andre etasje > Toalettrom > Overflater og konstruksjon:
Det er ikke påvist tilfredsstillende løsning for å synliggjøre lekkasje fra innebygget sisterne.
- Spesialrom > Første etasje > Kjølerom > Overflater og konstruksjon:
Det foreligger ingen dokumentasjon på utførelse.
- Tekniske installasjoner > Vannledninger:
Det er påvist at eventuelt lekkasjevann fra rør i rør system ikke ledes til sluk eller annen kompenserende løsning.
- Tekniske installasjoner > Vannledninger av kobber:
Mer enn halvparten av forventet brukstid er passert på innvendige vannledninger.
- Tekniske installasjoner > Avløpsrør:
Manglende feste. Ukjent fall løsning på avløp. Ukjent alder på avløp i grunn.
- Tekniske installasjoner > Ventilasjon:
Det er påvist begrenset ventilering/luftgjennomstrømning.
- Tekniske installasjoner > Varmesentral:
Det er ikke fremlagt tilfredsstillende dokumentasjon av brannsikring av anlegget. Mer enn halvparten av forventet brukstid på varmesentral er oppbrukt.
- Tekniske installasjoner > Varmtvannstank:
Det er påvist at varmtvannstank er over 20 år.
- Tekniske installasjoner > Vannbåren varme:
Mer enn halvparten av forventet brukstid er passert på anlegg for vannbåren varme. Det er irr på rør.
- Tekniske installasjoner > Elektrisk anlegg:
Anlegget er kun visuelt besiktiget. EL. anlegget er ikke videre vurdert da dette ikke er takstingeniørens kompetanseområde. Det anbefales alltid eltakst ved tvil om funksjonalitet og kapasitet.
- Tomteforhold > Drenering:
Det er ukjent type/alder/løsning på drenering og tettesjikt på grunnmur. Manglende topplist på deler av grunnmursplast. Stedvis ikke synlig grunnmursplast, det antas derfor at grunnmursplast ligger under terreng.
- Tomteforhold > Grunnmur og fundamenter:
Grunnmuren har sprekkdannelser.
Konstruksjoner som ikke er undersøkt av takstmann:
- Innvendig > Radon:
Det ble utførte målinger i 2003. Det ble ikke funnet avvik på dette huset. Det foreligger ingen dokumentasjon på dette.
- Våtrom > Andre etasje > Bad 2 > Tilliggende konstruksjoner våtrom:
Hulltaking er ikke foretatt da det ikke er fysisk mulig pga. tilliggende konstruksjoner.
- Våtrom > Første etasje > Vaskerom > Tilliggende konstruksjoner våtrom:
Hulltaking er ikke foretatt da det ikke er fysisk mulig pga tilliggende konstruksjoner.
- Tomteforhold > Utvendige vann- og avløpsledninger:
Utvendige avløpsrør er av plast og utvendige vannledninger er av plast (PEL) Det er privat brønn og det er septiktank. Vann og avløpsledningene er ikke kontrollert i forbindelse med rapporten. Hvis riktig tilstand på avløpsledningene skal kontrolleres, kan dette utføres ved hjelp av TV-kontroll.
Det er foretatt en tilstandsrapport fra Witek ved Andreas Stene Pettersen på kårboligen datert 10.07.2024, der byggemåte er nærmere beskrevet, og også gitte tilstandsgrader fremkommer. Tilstandsrapporten følger vedlagt.
Denne eiendom har fått følgende tilstandsgrad 3:
- Innvendig > Pipe og ildsted
Det er påvist brennbart materiale nærmere enn 300 mm fra sotluke/feieluke. Ildfast plate mangler på gulvet under sotluke/feieluke på pipe.
- Innvendig > Krypkjeller
Alt av organiske materialer må fjernes. Ytterligere undersøkelser må foretas for å få kartlagt tilstanden og omfanget på eventuelle skader.
Denne eiendom har fått følgende tilstandsgrad 2:
- Utvendig > Nedløp og beslag
Det er påvist avvik i beslagløsninger. Det mangler snøfangere på hele eller deler av taket, men det var ikke krav om dette på byggemeldingstidspunktet.
- Utvendig > Veggkonstruksjon
Det er ingen eller liten lufting i nedre kant av kledning mot grunnmur. Det er værslitt/oppsprukket trevirke/trepaneler. Kledningen er lektet ut på tilbygget av bygningen. Det er kun lufting mellom underliggere på den eldste delen. Stedvis tørkesprekker. Kledning har behov for overflatebehandling. Forkantbord mot sør er råteskadet.
- Utvendig > Vinduer
Det er påvist tegn på innvendig kondensering av enkelte vindusglass. Karmene i vinduer er slitte og det er sprekker i trevirket. Det er maling som flasser av på vaskeromsvindu. Dette kan tyde på kondenssering i perioder.
- Utvendig > Dører
Dørene har elde og bruksslitasje. Det må påregnes overflatebehandling. I bolig med gamle dører kan opp mot 40 prosent av varmen forsvinne ut gjennom dørene. Varmetapet kan ofte halveres ved å bytte ut de gamle dørene med moderne dører.
- Utvendig > Balkongdør
Rekkverket er for lavt i forhold til dagens krav til rekkverkshøyder
- Utvendig > Balkonger, terrasser og rom under balkonger
Rekkverket er for lavt i forhold til dagens krav til rekkverkshøyder.
- Utvendig > Utvendige trapper
Rekkverkshøyder er under dagens forskriftskrav til rekkverk i trapper.
- Innvendig > Etasjeskille/gulv mot grunn
Målt høydeforskjell på mellom 10 - 20 mm innenfor en lengde på 2 meter. Tilstandsgrad 2 gis med bakgrunn i standardens krav til godkjente måleavvik. Målt høydeforskjell på over 15 mm gjennom hele rommet. Tilstandsgrad 2 gis med bakgrunn i standardens krav til godkjente måleavvik. Det er registrert planavvik og knirk i deler av gulvene.
- Innvendig > Innvendige dører
Det er påvist avvik som tilsier at det bør foretas tiltak på enkelte dører. Noen dører subber i karm/terskel og har behov for justeringer.
- Innvendig > Mus
Det er registrert mus ekskrementer og død mus innvendig i huset i/på kaldtloft.
- Våtrom > Etasje > Bad > Overflater Gulv
Det er påvist at høydeforskjell fra topp slukrist til gulv/synlig topp membran ved dørterskel er mindre enn 25 mm. Det er uvisst hvordan membran / tettesjikt er i overgang gulv og dørterskel.
- Våtrom > Etasje > Bad > Sluk, membran og tettesjikt
Det er påvist mangelfull/feil utførelse rundt rørgjennomføringer e.l. som gir fare for fukt i konstruksjonen i våtsone. Mer enn halvparten av forventet brukstid er passert på membranløsningen. Sluk har begrenset mulighet for inspeksjon og rengjøring. Det er ukjent om forhøyning under dør er vanntett slik at den sikrer mot lekkasjer til tilstøtende rom. Ingen dokumentasjon på membrans arbeider. Dusjkabinett er ikke flyttet, da det er for stort og trangt.
- Våtrom > Etasje > Bad > Ventilasjon
Våtrommet mangler tilluftsventilering, f.eks. spalte/ventil ved dør. Tilluftsventil under dør burde vært større.
- Våtrom > Etasje > Vaskerom > Overflater Gulv
Det er påvist at høydeforskjell fra topp slukrist til gulv/synlig topp membran ved dørterskel er mindre enn 25 mm. Det er påvist avvik i fallforhold til sluk i forhold til krav i forskrift på byggetidspunktet.
- Våtrom > Etasje > Vaskerom > Sluk, membran og tettesjikt
Mer enn halvparten av forventet brukstid er passert på membranløsningen.
- Våtrom > Etasje > Vaskerom > Ventilasjon
Våtrommet mangler tilluftsventilering, f.eks. spalte/ventil ved dør.
- Tekniske installasjoner > Vannledninger
Mer enn halvparten av forventet brukstid er passert på innvendige vannledninger. Det ble under befaring av krypkjeller observert flere steder hvor vannrørene ikke er isolerte, og er dermed utsatt for frost.
- Tekniske installasjoner > Varmtvannstank
Det er ikke påvist tilfredsstillende el-tilkobling av varmtvannstank iht. gjeldende forskrift. Det var vanlig å koble varmtvannsbereder i stikkontakt når denne varmtvannsberederen ble tilkoblet. I dag er det krav om at nye varmtvannsberedere med effekt på 1500 W eller mer skal være fast tilkoblet.
- Tekniske installasjoner > Elektrisk anlegg
Det er ikke foretatt kontroll av det elektriske anlegget i løpet av de siste 5 årene. Det anbefales på generelt grunnlag en gjennomgang av en registrert elektroinstallasjonsvirksomhet. Anlegget er kun visuelt besiktiget. EL. anlegget er ikke videre vurdert da dette ikke er takstingeniørens kompetanseområde. Det anbefales alltid eltakst ved tvil om funksjonalitet og kapasitet. Det må forventes at det kan komme påkostninger på et eldre anlegg.
- Tomteforhold > Drenering
Det er ukjent type/alder/løsning på drenering og tettesjikt på grunnmur.
- Tomteforhold > Terrengforhold
Fallet ut fra bygningen skal være minimum 1:50 i en avstand på minst 3 m fra veggen. Vannet skal enten føres i tett ledning bort fra huset eller ledes vekk
fra veggen på terrengoverflaten. Yttervegger mot terreng bygges normalt ikke for å tåle vanntrykk. Men veggoverflaten skal være vannavvisende.
- Tomteforhold > Utvendige vann- og avløpsledninger
Det foreligger ingen dokumentasjon på vannkvaliteten på brønnvannet.
Konstruksjoner som ikke er undersøkt av takstmann:
- Innvendig > Radon
- Tomteforhold > Septiktank
Kommunale avgifter
Kommunale gebyrer fakturert på eiendommen i 2023:
Eiendomsskatt kr. 12 188,44
Feiing kr. 2 340
Renovasjon kr. 6 600
Slam kr. 10 920
Tomten
Eiendommen består av dyrka jord, skog, tun med våningshus, kårbolig, garasje, låve med korntørke og stalldel, stabbur og pumpehus. Den dyrka jorden er fordelt på fire skifter som ligger samlet rundt/i tilknytning til tunet. Det er lett adkomst.
Eiendommen har korn- og grasproduksjon og skogsdrift. Det oppnås normalt avlinger på middels/over middels nivå. Jordarten varierer fra moldjord til siltholdig mellomleire og sand. Jorda er leid ut, og eier har aldri drevet jorda selv i sin tid som eier. Det er noe helling på deler av det dyrkede arealet. Arronderingen er forholdsvis god. Noen av skiftene er lange og smale, og det er noe kantvirkning på deler av arealet. Eiendommen er lite tørkeutsatt. Det er mulighet for vanning av jorda via vanningsanlegg med nedgravde hydranter tilknyttet fellesanlegg. Dette anlegget er fra 1970-tallet og må rustes opp/oppgraderes før bruk. Vannkilden er Isesjø.
Den dyrkede marka har ifølge Kilden.no: Svært god jordkvalitet. Karakteristikk for det dyrkede arealet er: Lettdrevet areal, gir normalt sett gode og årvisse avlinger av kulturvekster tilpasset det lokale klimaet. Forutsettes at arealer med grøftebehov har fungerende grøftesystem og at områder som er noe tørkeutsatt blir kunstig vannet. Jordbruksareal i denne klassen har mindre enn 20 prosent helling. Jorda leies ut til nabo. Leieinntekt er pr. dato kr. 35 000,- + mva. pr. år. Skogen har vært driftet i egen regi.
Det er ingen skogbruksplan laget for gården. I følge NIBIO gårdskart er det følgende bonitetsfordeling i skogen:
Skog høy bonitet: 22,5 dekar
Skog middels bonitet: 7,9 dekar
Skog Lav bonitet: 86,3 dekar
Uproduktiv skog: 113,8 dekar
Beregnet tilvekst i forhold til bonitetsfordelingen er 25 kbm/år. Tilveksten avhenger av hogstklassefordelingen, og vil variere i forhold til hvor gammel skog som står på arealene. Mye skog i hogstklasse I og II vil gi en lavere tilvekst noen år, før skogen går over i hogstklasse III og IV, hvor skogen har høyest tilvekst, for så å stagnere gradvis ved overgang til hogstklasse V. Sist hogst var for ca. 15 år siden. Området for hogsten ble plantet i etterkant. Innestående på skogavgiftskonto pr. 31.12.2023 var kr. 0,-.
Eiendommen deltar i samarbeid om elgjakt gjennom grunneierlag, og har mulighet for å stille med en representant. Det er i tillegg jaktrett på rådyr og hare. Her samarbeider noen gårder i nærområdet om denne jakten, og kvoter på rådyr.
Det er ingen kjente miljøforurensninger på eiendommen.
Offentlig kommunikasjon
Avstander med bil:
Sarpsborg sentrum, 10 minutter
Rakkestad sentrum, 14 minutter
Fredrikstad sentrum, 25 minutter
Halden sentrum, 30 minutter
Riksgrensen (Svinesund): 25 minutter
Oslo (Ryen): 60 minutter
Gardermoen: 1 time og 40 minutter
Oppvarming
Oppvarmingen i hovedhuset består av panelovner, vannbåren varme, vedfyring og varmekabler.
Oppvarmingen i kårboligen består av åpen vedfyrt peis, en vedfyrt peis med peisinnsats og elektriske panelovner.
Personopplysningsloven
I henhold til personopplysningsloven gjør vi oppmerksom på at interessenter kan bli registrert for videre oppfølgning.
Hvitvaskingsreglene
Eiendomsmeglere er underlagt Lov om tiltak mot hvitvasking og terrorfinansiering (hvitvaskingsloven) - L01.06.2018 nr. 23. Det følger av loven at megler bl.a. har plikt til å gjennomføre kundekontroll. I de tilfeller hvor kunden er juridisk person skal megler også kartlegge hvem som er reelle rettighetshavere. Med reelle rettighetshavere menes fysiske personer som eier eller kontrollerer mer enn 25% av eierandelene i selskapet. Partene må bidra til at kundekontrollen lar seg gjennomføre på en hensiktsmessig måte. Megler plikter å rapportere mistenkelige transaksjoner til Økokrim. Ved slik rapportering vil ikke partene blir varslet.
Lovverk
Eiendommen skal overleveres kjøper i tråd med det som er avtalt. Det er viktig at kjøper setter seg grundig inn i alle salgsdokumentene, herunder salgsoppgave, tilstandsrapport og selgers egenerklæring. Kjøper anses kjent med forhold som er tydelig beskrevet i salgsdokumentene. Forhold som er beskrevet i salgsdokumentene kan ikke påberopes som mangler. Dette gjelder uavhengig av om kjøper har lest dokumentene. Alle interessenter oppfordres til å undersøke eiendommen nøye, gjerne sammen med fagkyndig før bud inngis. Kjøper som velger å kjøpe usett kan ikke gjøre gjeldende som mangel noe han burde blitt kjent med ved undersøkelsen.
Dersom det er behov for avklaringer, anbefaler vi at kjøper rådfører seg med eiendomsmegler eller en bygningssakyndig før det legges inn bud. Hvis eiendommen ikke er i samsvar med det kjøperen må kunne forvente ut ifra alder, type og synlig tilstand, kan det være en mangel. Det samme gjelder hvis det er holdt tilbake eller gitt uriktige opplysninger om eiendommen. Dette gjelder likevel bare dersom man kan gå ut ifra at det virket inn på avtalen at opplysningen ikke ble gitt eller at feil opplysninger ikke ble rettet i tide på en tydelig måte. En bolig som har blitt brukt i en viss tid, har vanligvis blitt utsatt for slitasje og skader kan ha oppstått. Slik bruksslitasje må kjøper regne med, og det kan avdekkes enkelte forhold etter overtakelse som nødvendiggjør utbedringer. Normal slitasje og skader som nødvendiggjør utbedring, er innenfor hva kjøper må forvente og vil ikke utgjøre en mangel.
Boligen kan ha en mangel dersom det er avvik mellom opplyst og faktisk areal, forutsatt at avviket er på 2% eller mer og minimum 1 kvm. Ved beregning av et eventuelt prisavslag eller erstatning må kjøper selv dekke tap/kostnader opptil et beløp på kr 10 000 (egenandel).
Dersom kjøper ikke er forbruker selges eiendommen "som den er", og selgers ansvar er da begrenset jf. avhl. § 3-9, 1. ledd 2. pktm. Avhendingsloven § 3-3 (2) fravikes, og hvorvidt en innendørs arealsvikt karakteriseres som en mangel vurderes etter avhendingsloven § 3-8. Informasjon om kjøpers undersøkelsesplikt, herunder oppfordringen om å undersøke eiendommen nøye, gjelder også for kjøpere som ikke anses som forbrukere. Med forbrukerkjøp menes kjøp av eiendom når kjøperen er en fysisk person som ikke hovedsakelig handler som ledd i næringsvirksomhet."
Diverse
- Ved overtakelse av eiendommen blir våningshuset ryddet og rengjort. Øvrige bygninger og utearealer overtas slik det fremstår på visning og vil ikke bli ryddet eller rengjort ut over dette. Selger forbeholder seg retten til å ta med seg det han selv ønsker av Løsøre, maskiner, redskaper og antikviteter. Dette gjelder også frittstående hvitevarer.
- Det foreligger utleie av kårboligen i sin helhet. Leiekontrakten blir i utgangspunktet transportert til kjøper slik den er. Det er forøvrig ingen garanti for at kontrakten transporteres til kjøper, dersom leietakerene velger å si opp sin leieavtale med utløp forut for overtagelse. Kontrakten kan oversendes på forespørsel til megler.
Regulering
Eiendommen er uregulert.
Eiendommen er omfattet av Kommuneplanens arealdel 2015 - 2026 (plan-ID: 201201, ikrafttredelsesdato: 18.06.2015). Eiendommen har i kommuneplanen arealbruk LNFR areal for spredt bolig- fritids- eller næringsbebyggelse (nåværende). Deler av eiendommen omfattes av hensynssone H_560 - bevaring naturmiljø.
Ferdigattest
Det er utstedt midlertidig brukstillatelse for nybygg - boligbygg, datert 24.05.1984. Følgende arbeider gjensto på utstedelsestidspunktet: 1. branndør i fyr rom og garasje må monteres. 2. Støping av bunn i piper. Til info utstedes det ikke lengre ferdigattest for tiltak det er søkt om før 1. januar 1998.
Det er utstedt ferdigattest for enebolig, datert 10.03.1975. Ferdigattesten har følgende anmerkning: Matbod er fjernet. Dagligrom er gjort større. Renseanlegg må gjøres ferdig senest 01.07.1975.
Vei, vann og avløp
Spydevollveien er en felles adkomstvei for denne eiendommen og de to eiendommen på innsiden. Her deles det på vedlikehold og brøyting, men det foreligger ingen skriftlige avtaler.
Vannforsyning fra egen borebrønn. Avløp til septiktank/slamkum med kommunal tømming.
Servitutter
Heftelser registrert på gbnr 3041/7:
1829/900007-1/3 Erklæring/avtale
Tingl. 05.11.1829
Grensegangssak.
1908/900163-1/3 Erklæring/avtale
Tingl. 07.01.1908
Grensegangssak.
1908/900164-1/3 Erklæring/avtale
Tingl. 07.01.1908
Grensegangssak
1977/303636-1/3 Erklæring/avtale
Tingl. 05.05.1977
Vedtak av det offentliges vilkår for statstilskudd i forbindelse med vanningsanlegg
Gjelder denne registerenheten med flere.
1989/3113-1/3 Erklæring/avtale
Tingl. 13.03.1989
Grensegangssak
Gjelder denne registerenheten med flere
2005/11444-1/3 Erklæring/avtale
Tingl. 18.11.2005
Elektriske kraftlinjer/ledninger/kabelgrøfter
Bestemmelse om adkomstrett
Bestemmelse om bebyggelse
Med flere bestemmelser
Rettighetshaver: FORTUM DISTRIBUSJON AS
Gjelder denne registerenheten med flere
Heftelser registrert på gbnr 3041/8:
1877/900048-1/3 Rettsbok
Tingl. 16.10.1877
Ekspropriasjonsforr./konduktørforr. vedrørende NSB
1903/900113-1/3 Bestemmelse om veg
Tingl. 21.07.1903
Rettighetshaver : Militæretaten
1908/900165-1/3 Erklæring/avtale
Tingl. 07.01.1908
Grensegangssak
1908/900166-1/3 Erklæring/avtale
Tingl. 07.01.1908
Grensegangssak
1972/303567-1/3 Erklæring/avtale
Tingl. 09.06.1972
Vedtak av det offentliges vilkår for statstilskudd i forbindelse med senking/lukking av grøft/bekk
Gjelder denne registerenheten med flere.
1977/303636-1/3 Erklæring/avtale
Tingl. 05.05.1977
Vedtak av det offentliges vilkår for statstilskudd i forbindelse med vanningsanlegg
Gjelder denne registerenheten med flere
1989/3113-1/3 Erklæring/avtale
Tingl. 13.03.1989
Grensegangssak
Gjelder denne registerenheten med flere
2005/11444-1/3 Erklæring/avtale
Tingl. 18.11.2005
Elektriske kraftlinjer/ledninger/kabelgrøfter
Bestemmelse om adkomstrett
Bestemmelse om bebyggelse
Med flere bestemmelser
Rettighetshaver: FORTUM DISTRIBUSJON AS
Gjelder denne registerenheten med flere
Ingen heftelser registrert på gbnr 3040/5 og gbnr 3041/31.
En kjøper/ långiver må på eget initiativ sørge for å gjøre seg kjent med innholdet i grunnbøkene og samtlige tinglyste heftelser. Alle tilgjengelige servitutter i Statens Kartverk er innhentet av megler, disse kan oversendes på forespørsel.
Ansvarlig megler
Nils Henrik Tegneby
Nyttige lenker
Nærområdet

TEGNEBY & GRØNNERØD LANDBRUKSMEGLING AS
Annonseinformasjon
| FINN-kode | 402223420 |
|---|---|
| Sist endret | 21. nov. 2025 13:45 |
| Referanse | GAR30.2531 |
Annonsene kan være mangelfulle i forhold til lovpålagt opplysningsplikt. Før bindende avtale inngås oppfordres interessenter til å innhente komplett informasjon fra meglerforetaket, selger eller utleier.





































