Bildegalleri

Flott beliggenhet - tett på Farsund sentrum
Ny Pris! Romslig næringseiendom sentrumsnært i Farsund - Perfekt for butikk, kontor og lager.
Nøkkelinfo
- Bruttoareal
- 894 m²
- Etasje
- 2.
- Eieform
- Eier (Selveier)
- Areal
- 894 m²
- Overtakelse
- Etter avtale. Kontakt megler for info
Type lokale
Fasiliteter
Beliggenhet
Sundeveien 37 - 2 minutter i bil fra Farsund sentrum
Innhold
Høydepunkter
- Sentral beliggenhet: Eiendommen ligger sentrumsnært, med enkel tilgang til både kunder og leverandører.
- Lys og moderne butikklokaler: Store vinduer gir rikelig med naturlig lys, samtidig som god belysning skaper et behagelig arbeidsmiljø.
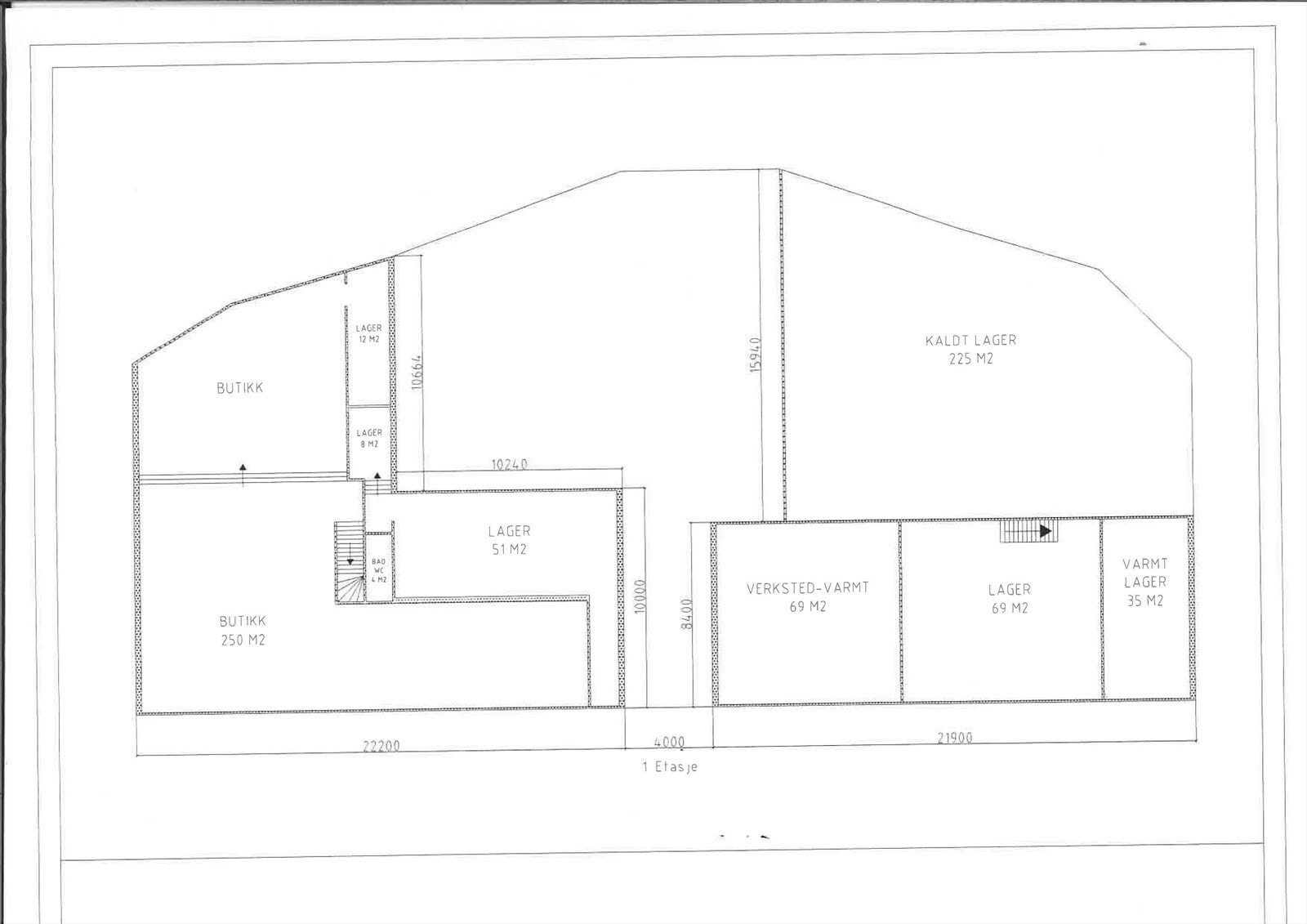
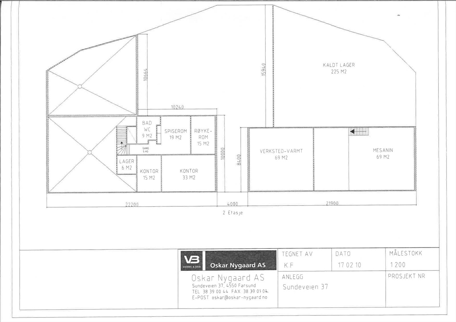
- Romslige arealer:
- etasje: Ca. 723 kvm, perfekt for butikk, lager eller andre kommersielle formål.
- etasje: Ca. 171 kvm, ideelt for kontor, møterom, lager eller annet tilleggsareal.
- Praktisk bakgård: Stor bakgård som er perfekt for varelogistikk og parkering. Dette gir god tilgang for levering og håndtering av varer.
- Kundeparkering: Fint med parkeringsmuligheter foran eiendommen, som gir enkel tilgang for kundene dine.
Bebyggelse
Kombinasjonseiendom
Adkomst
Enkel adkomst via Sundeveien
Overtakelse
Etter avtale. Kontakt megler for info
Sentrale lover
Oppdraget reguleres i henhold til Lov om eiendomsmegling av 29.06.2007 nr. 73. Fravikeligheten som fremgår av lovens § 1-3 og forskriftens §1-2 er anvendt for dette oppdraget.
Det forutsettes at kjøper gjør handelen som ledd i næringsvirksomhet. Dersom budgiver handler som forbruker må dette skriftlig meddeles megler senest ved budgivning.
Ved salg til næringsdrivende overtas eiendommen og dens tilbehør "som den/det er", jfr. avhendingsloven §3-9(2). Avhendingsloven §3-9 fravikes slik at det kun skal kunne gjøres gjeldende at det foreligger mangler i følgende tilfelle:
Dersom selger har forsømt sin opplysningsplikt, jfr. reguleringen i avhendingsloven §3-7 eller dersom selger har gitt uriktig informasjon om eiendommen, jfr. reguleringen i avhendingsloven §3-8
Risikoen for eventuelle skjulte feil, tilligger etter dette kjøper.
Videre fravikes avhendingsloven § 3-3 (2), og hvorvidt en innendørs arealsvikt karakteriseres som en mangel vurderes etter avhendingsloven § 3-8.
Avhendingsloven §4-19 (2) fravikes også, slik at den endelige reklamasjonsfristen settes til 1 år etter overtakelse.
Selger kjenner ikke til at det er at det er forurensning i tomtegrunnen mv. Kjøper skal, dersom forurensning i ettertid skulle bli oppdaget, bære det fulle ansvar for all forurensning som eksisterer på eiendommen, med unntak av forurensing forårsaket av selger. Det gjøres oppmerksom på regler om avskrivning av faste tekniske installasjoner i avskrivbare bygninger. Partene har selv ansvar for å sette seg inn i regelverket og konsekvensene av dette. Megler er uten ansvar for konsekvenser reglene påfører partene.
Pro & Contra
Partene må selv foreta avregning av kommunale avgifter, felleskostnader, samt eventuelle leieinntekter, festeinntekter/avgifter og liknende i forbindelse med oppgjøret. Megler foretar ikke noe pro & contra pr. overtakelsesdato
Hvitvaskingsregelverk
I henhold til lov om hvitvasking og terrorfinansiering har megler plikt til å gjennomføre kontrolltiltak ovenfor kunder. Dette innebærer å bekrefte kunders identitet, innhente opplysninger om reelle rettighetshavere og kundeforholdets formål og tilsiktede art. Videre skal megler kontrollere midlenes opprinnelse, samt gjennomføre kundekontroll av personer med disposisjonsrett til konto som benyttes ved transaksjoner til klientkonto.
Kundekontroll skal gjennomføres løpende gjennom hele oppdragsperioden, dersom megler på noe tidspunkt ikke får gjennomført tilstrekkelig kundekontroll har megler rett til å avvikle kundeforholdet.
Megler er underlagt rapporteringsplikt til Økokrim ved mistanke om brudd på hvitvaskingsloven. Melding sendes Økokrim uten at partene varsles og megler kan i enkelte tilfeller ha plikt til å stanse gjennomføring av handelen. Partene i handelen kan komme i ansvar for tap den andre part påføres som følge av brudd på hvitvaskingsregelverket.
Budgivning
Informasjon i dette prospekt, samt annen informasjon fremlagt i forbindelse med salget, forutsettes gjennomgått og kontrollert av kjøper før bindende bud gis. Videre forutsettes det at eiendommen er besiktiget av kjøper og at kjøper rekvirerer teknisk bistand dersom han finner det formålstjenlig.
Dette forhindrer ikke at megler i en avsluttende fase vil kunne velge å gjennomføre en lukket budrunde. Det tas forbehold om å kreve sikkerhetsstillelse for det bud som blir antatt. Potensielle kjøpere inviteres herved å gi bud i tråd med dette prospekt og de forutsetninger som legges til grunn. Selger forbeholder seg retten til å akseptere eller forkaste ethvert bud.
Alle opplysninger i salgsprospektet er gitt med forbehold om rett til endringer som er hensiktsmessige og nødvendige uten å forringe den generelle standarden. Det tas også forbehold om feil i prospekt. Kontakt megler for mer informasjon.
Det anbefales at bygget gjennomgås med byggeteknisk fagperson før evt. budgivning.
Diverse
Sundeveien Eiendom AS har festerett på eiendommen. I følge grunnboken så løper festekontrakten til 2069. Men en årlig (2025) festeavgift på NOK 77.401. Kontakt megler for å få tilsendt festekontrakt - evt se salgsprospekt.
Kommunale avgifter per 2025 NOK 16.630.
Om enheten
Vi har gleden av å presentere en flott og romslig næringseiendom til salgs, strategisk plassert i sentrum av Farsund. Eiendommen skal avhendes som salg av AS (Sundeveien Eiendom AS). Kontakt megler for info.
Denne eiendommen byr på mange muligheter, og er et ideelt valg for deg som trenger plass til butikk, kontor, lager eller verksted.
Ansvarlig megler
John Christian Webb
Nyttige lenker
Nærområdet
Eiendomsmegler Norge, avd. Næring
Annonseinformasjon
| FINN-kode | 399746439 |
|---|---|
| Sist endret | 06. nov. 2025 10:56 |
| Referanse | 68250087 |
Annonsene kan være mangelfulle i forhold til lovpålagt opplysningsplikt. Før bindende avtale inngås oppfordres interessenter til å innhente komplett informasjon fra meglerforetaket, selger eller utleier.





















