Bildegalleri

Større kombinasjonseiendom på Kvarstein med god eksponering mot Venneslavegen
Nøkkelinfo
- Bruttoareal
- 1 614 m²
- Etasje
- 3.
- Eieform
- Selveier
- Areal
- 1 614 m²
- Byggeår
- 1988
- Tomt
- Eiet
- Overtakelse
- Etter nærmere avtale med selger
Type lokale
Visning
Ta kontakt for å avtale visning.Kort om eiendommen
Kombinasjonseiendom med 3 etasjer bestående av butikk, verksted, kontorer og kantine selges. Eiendommen er eid av A3 Ressurs Holding AS, som er et søsterselskap til Varodd AS. Dagens bruk er delt inn i flere grupper, men i all hovedsak knyttet til arbeidsforbredende trening i form av verksted og drift av butikk, samt kontorer til administrasjon. Eiendommen selges fri for leietakere og klar for ny bruker. Opprinnelig er eiendommen delt inn i 2 seksjoner, men begge disse selges samlet under ett.
Beliggenhet
Eiendommen ligger på Kvarstein i Vennesla kommune. Eiendommen ligger langs Venneslavegen, en hovedadkomstvei som gir enkel tilgang til og fra eiendommen, samt gode eksponeringsmuligheter. Det er ca 5 km til Vennesla sentrum og 12 km til Kristiansand sentrum.
Innhold
Samlet BTA for eiendommen er oppgitt av selger til å være ca.1 525 kvm. Arealet fordeler seg som følger:
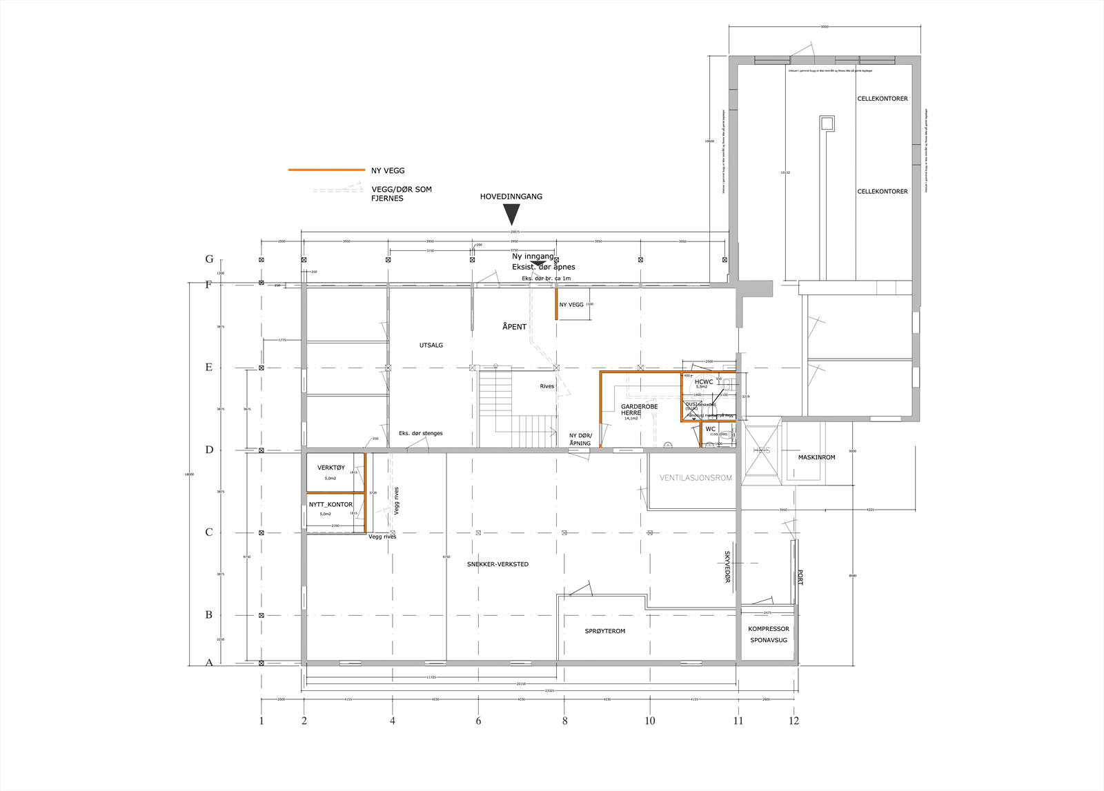
1. etg.: (Ca. 676 kvm) Butikklokale, lagerrom, verkstedhall m/kjøreport og hems, kontor og wc med dusj. Kaldtlager med kjøreport på baksiden av bygget.
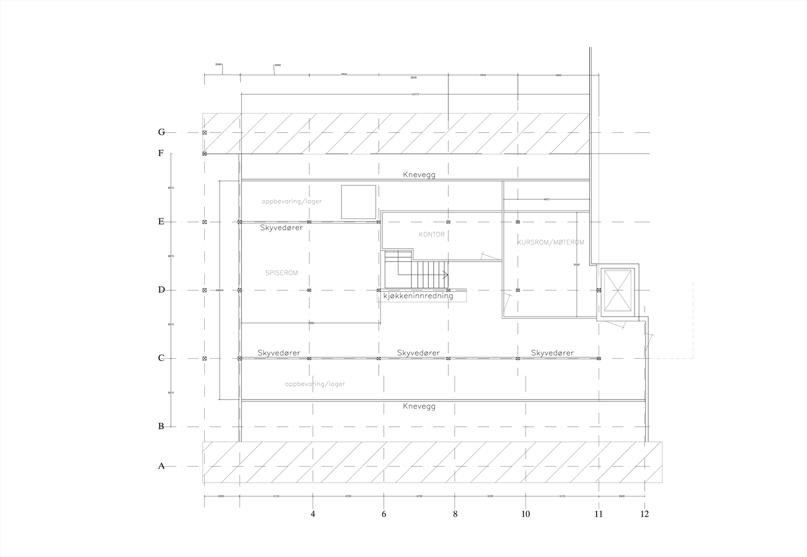
2. etg.: (Ca. 576 kvm) Det er 2 ulike høydenivåer i denne etasjen. I første nivå er det 14 kontorer, møterom, garderobe med dusj og WC samt HCWC. I nivå 2 er det 2 kontorer, et større areal som kan benyttes til kontor/lager/verksted samt et kjøkken.
3. etg.: (ca. 273 kvm) Kantine med kjøkken, møte-/undervisningsrom, kontor og lager samt teknisk rom. Det er lagringsplass i knevegger.
I offentlige registre er areal oppgitt til å være 1 390 kvm BRA.
Standard
Eiendommen er jevnt vedlikeholdt og holder en normal standard til sitt bruk. Det er en kombinasjon av parkett, laminat og linoleumsgulv for kontorer og fellesområder, mens det er betonggulv i verkstedhall.
Det er to ventilasjonssystemer med balansert ventilasjon med kjøling, samt varmepumper. I verkstedhall er det installert kompressor for luftverktøy, avsug til spon samt at det er flere industrikontakter. Videre er det meste av bygget sprinklet. Det er installert heis i bygget mellom alle plan. Denne er p.t kun godkjent som vareheis, men kan gjøres om til personheis med noen investeringer. For ca. 6 år siden ble deler av taket skiftet ut og det ble foretatt drenering langs hele bygget.
Det gjøres oppmerksom på at deler av fastmontert inventar i produksjonsverkstedet, herunder diverse avsug, vil demonteres ved fraflytning og medfølger ikke ny eier. Kontakt megler for nærmere opplysninger vedr. dette.
Videre er det opplyst at deler av kledning på fasaden er slitt og bør utbedres. Videre drives heisen på dispensasjon, og det må gjøres tiltak for å få denne godkjent.
Info leieavtaler
Eiendommen selges fri for leieavtaler.
Beskrivelse av tomt
Tomten er frikjøpt og utgjør ca. 1 614 kvm. Tomten er i all hovedsak asfaltert.
Energimerking
Megler har informert selger om selgers plikter til å energimerke salgsobjektet.
Parkering
Parkering på egen tomt med plass til ca. 12 plasser.
I tillegg leies det veiareal med tilhørende parkeringsplasser på nordsiden av bygget, til sammen ca. 668 kvm BTA. Dagens eier benytter dette som parkeringsplasser og utvendig utelagring. Årlig leie utgjør ca. kr. 88 000, og kan videreføres til ny eier om ønskelig.
Regulering
Nyttige lenker
Nærområdet
Næringsmegleren
Jens Helge Hodne
Annonseinformasjon
| FINN-kode | 397486441 |
|---|---|
| Sist endret | 14. nov. 2025 12:11 |
| Referanse | 1-0034/23 |
Annonsene kan være mangelfulle i forhold til lovpålagt opplysningsplikt. Før bindende avtale inngås oppfordres interessenter til å innhente komplett informasjon fra meglerforetaket, selger eller utleier.


































