Bildegalleri

Velkommen til Storgaten 60D
Unik eiendom med utviklingspotensial - bolig, kontor eller kombinasjon
Nøkkelinfo
- Bruttoareal
- 300 m²
- Eieform
- Eier (Selveier)
- Areal
- 300 m²
- Tomt
- Eiet
Type lokale
Visning
Ta kontakt for å avtale visning.Kort om eiendommen
En eiendom med særegne kvaliteter og store utviklingsmuligheter - kun et steinkast fra Grimstad sentrum. Her har du en sjelden sjansen til å sikre deg en stor og fleksibel seksjon med mange mulige bruksområder, enten du ønsker å etablere en bolig, en kombinasjon av bolig og kontor, eller et spennende utleieprosjekt.
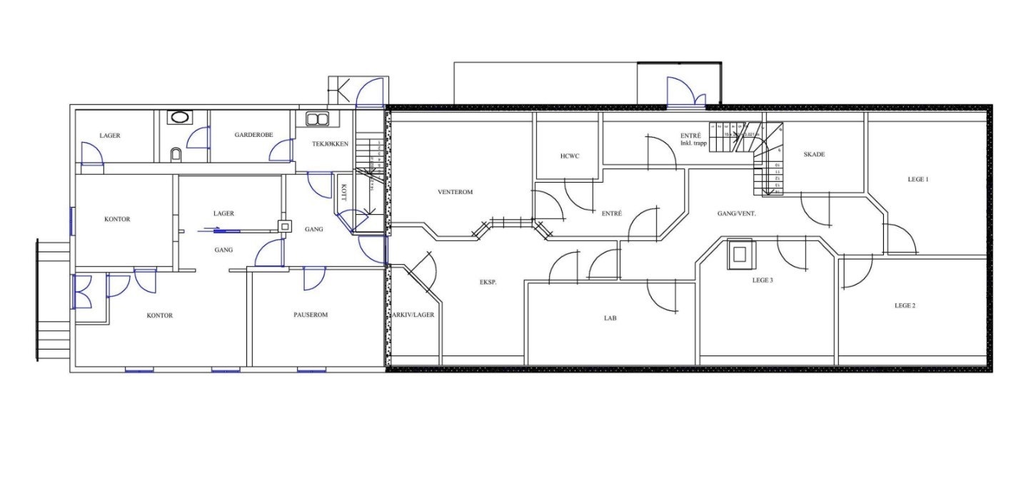
Seksjonen ligger i byggets første etasje og har i dag en rominndeling som enkelt kan tilpasses nye formål. Den består av en rekke rom av ulik størrelse, flere med egne innganger, samt kjøkken, garderobe, dusjfasiliteter og flere WC-rom. Planløsningen gir god fleksibilitet for den som ønsker å etablere en eller flere boenheter, eventuelt kombinert med kontorlokaler eller annen form for virksomhet.
Til eiendommen hører ti parkeringsplasser - en betydelig verdi i Grimstad sentrum. Enten du ønsker å benytte disse selv eller leie dem ut, representerer de en betydelig merverdi.
I tillegg er det tilgang til en idyllisk felles hage, med gode solforhold - egner seg godt som privat uteplass eller som et felles rekreasjonsområde for beboere/ansatte.
Salgsobjektet inkluderer en stor kjelleretasje, med variabel takhøyde og potensial for videre utvikling. Merk at en mindre del av kjelleren (ca. 30 kvm) er avsatt til boder for øvrige seksjonseiere i bygget.
Det er også verdt å merke seg at eiendommen kan selges som aksjeselskap eller som vanlig eiendomsoverdragelse - valget er opp til kjøper. Dette gir fleksibilitet både for profesjonelle aktører og private kjøpere.
Dette er med andre ord en eiendom med stort potensial - enten du er en privatperson med utviklingsplaner, eller en investor på jakt etter et prosjekt med sentral beliggenhet og høy bruksverdi.
Beliggenhet
Storgaten 60 D har en attraktiv beliggenhet mellom Grimstad sentrum og E18. Eiendommen ligger i et hyggelig boligområde med gangavstand til Grimstad sentrum. Her har man alt av servicetilbud i umiddelbar nærhet.
Standard
Eiendommen holder en gjennomgående god standard, og er godt vedlikehold.
Eiendommens potensiale
Denne eiendommen representerer en spennende mulighet for utvikling! Tidligere benyttet som legekontor, men vil nok ha et stort potensial som boliger og/eller annen type virksomhet. Beliggenheten og eiendommens utforming gjør den godt egnet for en slik utvikling, men dette må avklares med kommunen.
Adkomst
Hovedinngangen har universell utforming og deles med en leilighet i andre etasje. Det er en egen inngang med direkte adgang til den ene delen av bygget
Parkering
Det er tinglyst rett tiil 10 stk. parkeringsplasser på eiendommen.
Diverse
Eiendommen består av fire seksjoner, hvorav tre er leiligheter i andre etasje. Disse leilighetene er ikke en del av salgsobjektet.
Regulering
Nyttige lenker
Nærområdet
Annonseinformasjon
| FINN-kode | 397338028 |
|---|---|
| Sist endret | 28. mars 2025 15:02 |
| Referanse | 1-0056/24 |
Annonsene kan være mangelfulle i forhold til lovpålagt opplysningsplikt. Før bindende avtale inngås oppfordres interessenter til å innhente komplett informasjon fra meglerforetaket, selger eller utleier.



















