Bildegalleri

Innholdsrikt næringsbygg med stort potensiale. Sentral og populær beliggenhet ca. 1,5 km fra Hamar sentrum.
Nøkkelinfo
- Bruksareal
- 162 m²
- Eieform
- Eier (Selveier)
- Areal
- 162 m²
- Byggeår
- 1977
- Tomteareal
- 3 191 m² (eiet)
Type lokale
Fasiliteter
Kort om eiendommen
Næringseiendom i Ringgata 125, Hamar - Sentral beliggenhet med fleksible lokaler. Kort gangavstand til sentrum og enkel adkomst fra offentlig vei. Eiendommen har gode parkeringsforhold på egen tomt og passer for en rekke ulike virksomheter, som butikk, kontor, lager eller annen næringsvirksomhet.
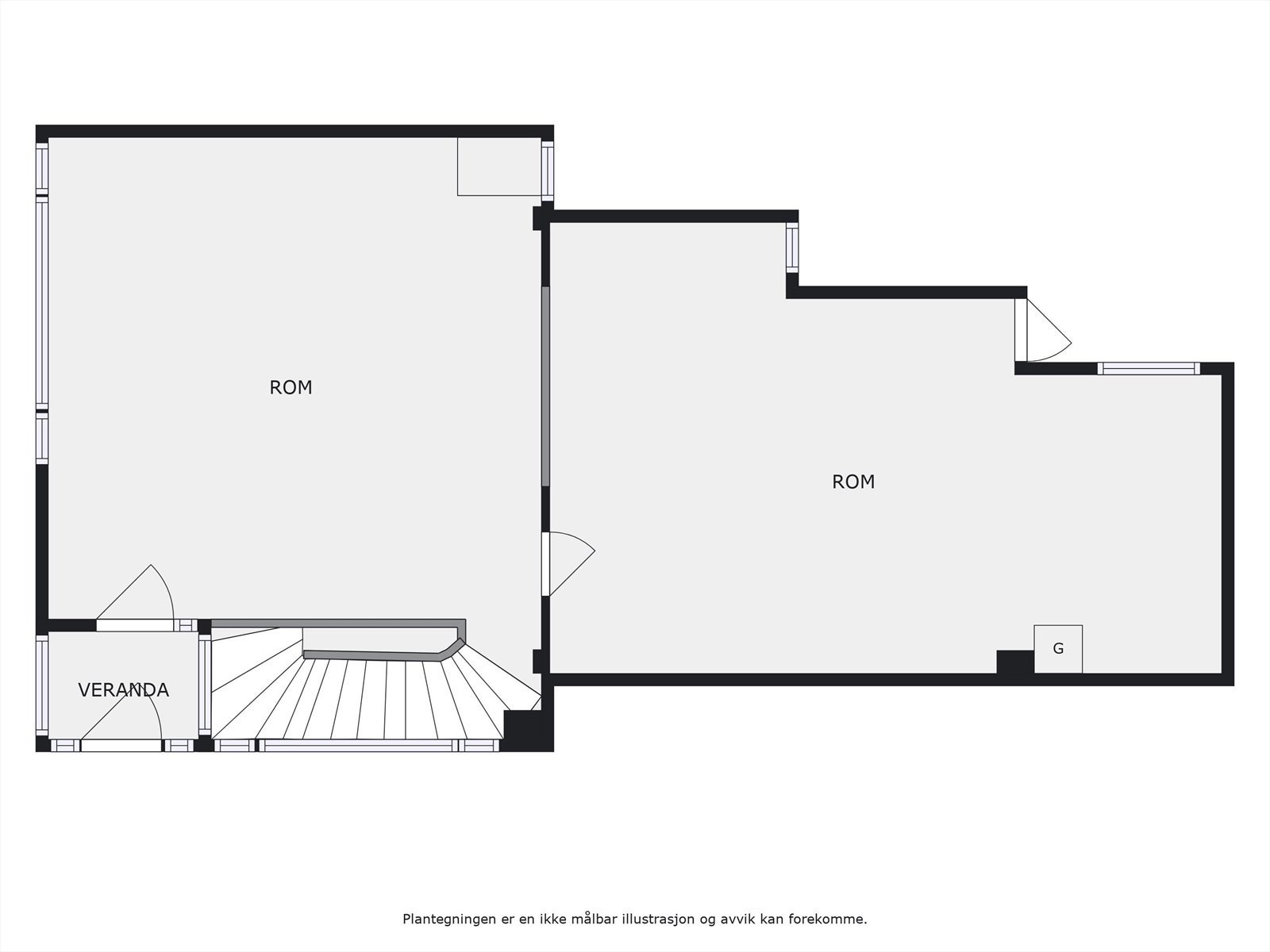
Bygget består av en etasje med tilhørende kjeller og har tidligere vært benyttet som bingolokale. Lokalene er lyse og åpne, med fleksible romløsninger som gir gode tilpasningsmuligheter for ny eier. Arealene er delt inn i butikk-/forretningslokale, kontor, lagerrom, to toalettrom, teknisk rom og kott. Ekstra lagringsplass i kjelleren.
To varmepumper i .etasje sikrer energieffektiv oppvarming og kjøling. Teknisk rom for drift og vedlikehold. Enkle, men funksjonelle sanitærrom.
Beliggenhet
Eiendommen har en svært attraktiv plassering i Ringgata, en sentral ferdselsåre i Hamar. Området har en blanding av næringsvirksomhet og boligbebyggelse, noe som gir et stabilt kunde- og trafikkgrunnlag for ulike typer virksomheter. Det er enkel adkomst både med bil og til fots, og eiendommen har godt med parkeringsplasser på tomten.
Adkomst
Adkomst til eiendommen fra asfaltert kommunal vei.
Omkostninger
2 950 000 Prisantydning
-----------------------------------------------
Omkostninger
73 750 Dokumentavgift
300 Pantattest
545 Tinglysningsgebyr skjøte
545 Tinglysningsgebyr pantedokument
-----------------------------------------------
75 140 Omkostninger totalt
-----------------------------------------------
3 025 140 Totalpris inkl. omkostninger
-----------------------------------------------
Regnestykket forutsetter at det kun tinglyses ett pantedokument og at eiendommen selges til prisantydning. Det tas forbehold om endringer i offentlige avgifter/gebyrer.
Overtakelse
Overtagelse etter nærmere avtale med selger.
Dersom ikke annet avtales, sendes skjøte/hjemmelsdokument for tinglysning i etterkant av overtagelse.
Innhold
Næringslokale med vindfang, butikk/næringslokale, gang, kontor, lagerrom, to toalettrom, teknisk rom og kott.
Standard
Normal standard og vedlikehold byggeåret tatt i betraktning. Ingen opplysninger om oppgraderinger og evt. oppussing. Innvendige overflater med normal bruksslitasje. Noe oppgraderinger grunnet elde og slitasje samt enkelte lokale utbedringer kan påregnes.
Beskrivelse av tomt
Felles eiertomt på ca. 3 191.2 kvm. Tomten er i hovedsak opparbeidet med asfalterte parkeringsplasser. Tomtearealet er fordelt på ca. 2 851 kvm på gnr. 1, bnr. 2652 og ca. 340 kvm på gnr. 1, bnr. 7719.
Tomtestørrelse-/areal er hentet fra matrikkelutskrift (basert på oppmåling i digitalt kart). Det gjøres oppmerksom på at denne type arealangivelse (med tilhørende kart) kan være upresis og at man dermed kan få avvik både i areal og grenser ved en eventuell fremtidig oppmåling. Mangel grunnet avvikende grenser og/eller arealsvikt kan derfor ikke påberopes.
Diverse
Det elektriske anlegget ble sist gang kontrollert i 2017, uten pålegg om utbedringer. Dette gir likevel ingen garanti for at anlegget er uten feil/mangler eller er tilapsset dagens krav og/eller bruksmønster. Neste kontroll kan forventes i 2037.
Feiing ble utført siste gang i 2015. Tilsyn ble sist gang utført i 2016, uten pålegg om utbedringer. Det tas forbehold om feil/mangler ved eventuelle nye installasjoner og/eller forskriftskrav trådt i kraft etter siste tilsyn.
Ved kartsider for NGU angitt at eiendommen ligger i et område med moderat til lav radonvirksomhet. Det er ikke foretatt radonmålinger og bygget er heller ikke utført med radonsperre.
Det gjøres oppmerksom på at eiendommen ligger innenfor definert gul og rød støysoneområde i forhold til vei.
Eiendommens ligger innenfor definert sone med krav vedrørende infrastruktur.
Eiendommen er en del av sameiet Børstad Terrasse, som består av 7 boligseksjoner og 2 næringsseksjoner. Sameiets formål er å ivareta driften av sameiet, administrere bruk og vedlikehold av fellesanlegg og fellesareal samt ivareta alle andre saker av felles interesse. Meglerforetaket har innhentet sameiets vedtekter, årsberetning, regnskap for 2024 og budsjett for 2025. Dokumentene kan ses hos meglerforetaket.
Hentet fra vedtektene:
Næringsseksjon 2 skal alene ha alt vedlikeholdsansvar for den del av bygning som kun gjelder denne seksjon, herunder yttervegger og tak over egen seksjon. Kostnader til snøbrøyting, strøing og annet vedlikehold av alt fellesareal på bakkenivå fordeles med 80% på næringsseksjonene og 20% på boligseksjonene. Næringsseksjonene har ansvaret for å holde fellesareal (parkeringsplass) mot sør og vest i ryddig orden, ha ansvar for oppmerking av parkeringsplasser og forestå nødvendig skjøtsel av beplantning og lignende. Fordeling av kostnader mellom næringsseksjonene skjer forholdsvis i henhold til sameiebrøken.
Oppvarming
Oppvarming med strøm. 2 stk. varmepumper montert i 1.etasje.
Byggemåte / Konstruksjon
Næringslokale - Byggeår: 1977.
Grunn bestående av jord- og morenemasser. Drenering fra byggeår, ukjent utførelse. Støpte fundamenter. Støpt grunnmur. Relativt flat tomt. Interne fallforhold på tomten. Taket er tekket med takpapp/folie. Takrenner, nedløp pg beslag av metall. Yttervegger er utført av murverk/murt tegl. Flat takkonstruksjon av støpt betong/dekkeelementer. Vinduer med 2-lags isolerglass med tre- og aluminiums karmer. Ytterdør av aluminium med 2-lags isolerglass.
Støpt gulv på grunn i kjeller. Etasjeskille er utført med støpt betong. Det er ikke foretatt radonmålinger og bygget er heller ikke utført med radonsperre. Bygningen har innvendige gulvflater med vinylbelegg, laminat og terracottafliser. Innvendige veggflater med malt mur, malt tegl, keramiske fliser og malt strie. Innvendige himlinger med malte plater, spiletak med trepanel og aluminium, samt malt betong og systemhimling. Malt tretrapp mellom etasjene. Slette, finerte innerdører i lakkert utførelse. 1 hvelvdør.
Spesialrom (to toalettrom)
Terracottaflis på gulv. Vegger med keramiske fliser. Spilehimling. Innredet med toalett og servant med ett-greps blandebatteri.
Kobber vannrør. Plast avløpsrør. Lokalene har ventilasjonsanlegg. Utslagsvask av stål, med blandebatteri på kott i kjeller. 2 stk. varmepumper/airconditioner i 1.etasje. Varmtvannsbereder på 200 liter. Lokalene har brannvarslingsanlegg, brannslange og brannslukningsapparat.
Beskrivelse av byggemåte er hentet fra tilstandsrapport datert 20.02.2025, utført av Erik-Andre Brodersen.
Tilstandsrapporten angir også byggtekniske tilstandssvekkelser (tilstandsgrader-TG).
For denne eiendommen er det gitt tilstandsgrad TG 2 (avvik som kan kreve tiltak) for følgende bygningsdeler-/komponenter:
* Utvendig > Nedløp og beslag: Det er registrert bulk i takfotbeslag.
* Utvendig > Veggkonstruksjon: Noe misfarging av murverk/murt tegl.
* Utvendig > Vinduer: Vurdering basert på alder og påviste forhold. Tilstandsgrad 2 gis med bakgrunn i at mer enn halvparten av forventet brukstid på vinduer er passert.
* Utvendig > Dører: Vurdering basert på alder. Tilstandsgrad 2 gis med bakgrunn i at mer enn halvparten av forventet brukstid på ytterdør er passert.
* Innvendig > Overflater > Det er noe bruks og aldersslitasje på overflater og det må påregnes noe oppgraderinger.
* Innvendig > Radon: Det er ikke foretatt radonmålinger og bygget er ikke utført med radonsperre. Bygningen ligger i et område med moderat til lav aktsomhetsgrad.
* Spesialrom > Kjeller > Toalettrom 2 > Teknisk anlegg: Vurdering basert på alder. Tilstandsgrad 2 gis med bakgrunn i at mer enn halvparten av forventet brukstid for sanitærutstyr er passert.
* Spesialrom > Kjeller > Toalettrom 2 > Overflater og konstruksjon: Sprekk i fliser på vegg.
* Spesialrom > Kjeller > Toalettrom > Teknisk anlegg: Vurdering basert på alder. Tilstandsgrad 2 gis med bakgrunn i at mer enn halvparten av forventet brukstid på sanitærutstyr er passert.
* Tekniske installasjoner > Vannledninger: Vurdering er basert på alder. Tilstandsgrad 2 gis med bakgrunn i at mer enn halvparten av forventet brukstid for skjulte røranlegg er passert. Det er nå ingen symptomer på funksjonssvekkelse, men vær oppmerksom på at dette er en risikokonstruksjon.
* Tekniske installasjoner > Avløpsrør: Vurdering er basert på alder. Tilstandsgrad 2 gis med bakgrunn i at mer enn halvparten av forventet brukstid for skjulte røranlegg er passert. Det er ingen symptomer på funksjonssvekkelse, men vær oppmerksom på at dette er en risikokonstruksjon.
* Tekniske installasjoner > Elektrisk anlegg: Dette er en forenklet kontroll begrenset til de spørsmål og undersøkelser som forskrift til avhendingslova (tryggere bolighandel) § 2-18 inneholder. Dette kan ikke sammenlignes med en kontroll utført av offentlig myndighet (det lokalte eltilsyn) eller registrert elektrovirksomhet, og en bygningssakkyndig har verken kompetanse eller lov til å foreta en slik kontroll. Tilstandsgraden er vurdert ut fra den forenklede og begrensede kontrollen som forskriften inneholder. El-anlegget kan ha feil og mangler som en slik forenklet undersøkelse ikke vil avdekke. Vær derfor oppmerksom på denne risikoen, og søk videre veiledning eller få en fullstendig kontroll utført av registrert elektrovirksomhet. Det foreligger ikke dokumentasjon for hele installasjonen. Anbefaler teknisk gjennomgang av el. takstmann/tilsyn av DLE.
* Tomteforhold > Fuktsikring og drenering > Vurdering basert på alder. Tilstandsgrad 2 gis med bakgrunn i at mer enn halvparten av forventet brukstid for dreneringen er passert. Det er nå ingen symptomer på funksjonssvekkelse, men vær oppmerksom på at dette er en risikokonstruksjon.
* Tomteforhold > Grunnmur og fundamenter: Det er registrert noe sprekker i mur. Saltutslag på mur i kjeller.
For ytterligere/detaljerte beskrivelser av avvik, øvrige tilstandsgrader og bygningsteknisk utførelse, også ved eventuelle andre bygninger, se tilstandsrapport som er et vedlegg i salgsoppgaven.
Parkering
Parkering på asfaltert område utenfor bygget.
Midlertidig brukstillatelse og ferdigattest
Det ble utstedt ferdigattest for nybygg/tilbygg av 5 leiligheter i 2.etasje og forretning i 1.etasje fra 2002. Det er utstedt midlertidig brukstillatelse for ombygging av forretningsdelen av bygget i 1990. Det er utstedt ferdigbesiktigelse av forretningsbygg i 1958.
Det er ikke mottatt ferdigattest eller midlertidig brukstillatelse fra byggeåret, eventuelle andre tiltak eller øvrige bygg på eiendommen.
Som et utgangspunkt skal det foreligge ferdigattest. Det er innført bestemmelser i plan- og bygningsloven som sier at ferdigattest ikke vil bli gitt for oppførte bygg som er søkt før 01.01.1998. Man kan dermed ikke søke om ferdigattest for slike bygg. Dette betyr ikke at ulovlig oppførte bygg blir lovlige, men bare at byggesaken ikke lenger skal avsluttes med ferdigattest. Det skal uansett foreligge midlertidig brukstillatelse. Midlertidig brukstillatelse er en forutsetning for at et tiltak kan tas i bruk. Manglende midlertidig brukstillatelse betyr da rent formelt at bygget ikke er lovlig tatt i bruk.
Det er mottatt byggetegninger fra kommunen. I byggetegninger er hele arealet definert som "eksisterende bygningsmasse". Det er ikke spesifisert nærmere inndeling og man har ikke kunnet kontrollere hvor vidt dagens bygninger og planløsning (herunder formål/bruk er godkjent eller i samsvar med eventuelle godkjente tegninger og tiltak. Det er ikke kjent med at det er søkt om bruksendring for nevnte areal/rom. . Rommene er derfor ikke godkjent for varig opphold.
Ovennevnte medfører at man ikke vet hvor vidt eiendommen har lovlighetsmangler eller eventuelt omfanget av disse. Konsekvenser av eventuelle lovlighetsmangler er at kommunen for eksempel kan gi pålegg om tilbakeføring. Kommunen kan også innkreve tvangsmulkt frem til eventuelle mangler er brakt i orden. Kjøper overtar ansvar og risiko for nevnte forhold.
Budgivning
Budgivere oppfordres til å legge inn bud elektronisk. Dette gjøres på eiendommens hjemmeside på aktiv.no, ved å bruke "Gi bud"-knappen. Ved elektronisk budgivning samtykker budgiver til elektronisk kommunikasjon.
Opplysningene i salgsoppgaven er godkjent av selger. Alle interessenter oppfordres imidlertid til grundig besiktigelse av eiendommen, gjerne sammen med fagmann før bud inngis.
Ansvarlig megler
Marius Norum
Regulering
Nærområdet
Aktiv Innlandet
Annonseinformasjon
| FINN-kode | 397196363 |
|---|---|
| Sist endret | 21. jan. 2026 09:20 |
| Referanse | 1211250026 |
Annonsene kan være mangelfulle i forhold til lovpålagt opplysningsplikt. Før bindende avtale inngås oppfordres interessenter til å innhente komplett informasjon fra meglerforetaket, selger eller utleier.























