Bildegalleri

Sørmegleren næring har gleden av å presentere for salg bankbygget til Sparebanken Sør med meget sentral og god beliggenhet i Tvedestrand sentrum.
Tvedestrand - Salg av bankbygget Sp. Sør i sentrum
Nøkkelinfo
- Bruttoareal
- 682 m²
- Eieform
- Eier (Selveier)
- Areal
- 682 m²
- Byggeår
- 1994
- Tomteareal
- 717 m² (eiet)
- Overtakelse
- Etter avtale
Type lokale
Om eiendommen
Sørmegleren næring har gleden av å presentere for salg bankbygget til Sparebanken Sør med meget sentral og god beliggenhet i Tvedestrand sentrum. Eiendommen er på i underkant av 682 m2 fordelt på 3. etasjer. Tomt å ca. 717 m2 med 7 parkeringsplasser. Velkommen til visning.
Beliggenhet
Meget sentral beliggenhet i sentrum rett ved Fjæretjønn med populær badeplass. God eksponert bygg i fra Riksvei 411 som ligger rett ved og går gjennom byen til bla. Lyngør og Sandøya.
Innhold
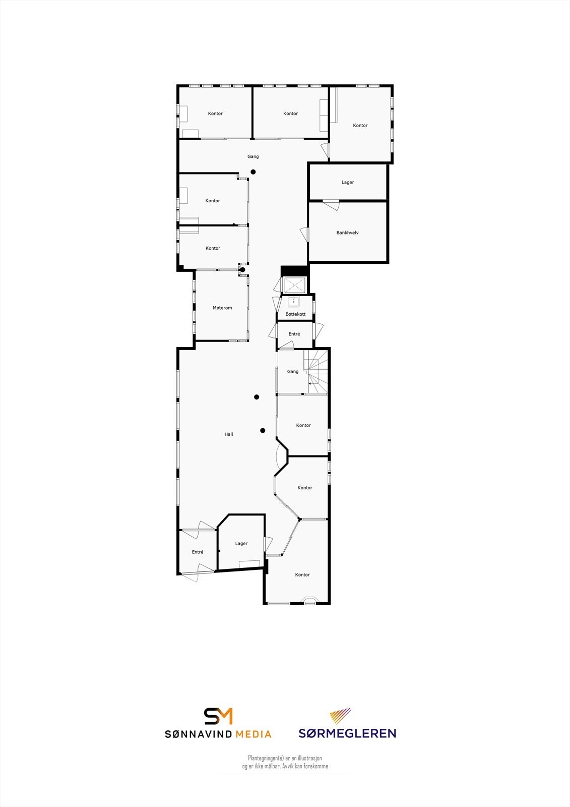
1. etasje:
Resepsjon, div. kontor, lagerrom, gang, heissjakt, hvelv og bøttekott.
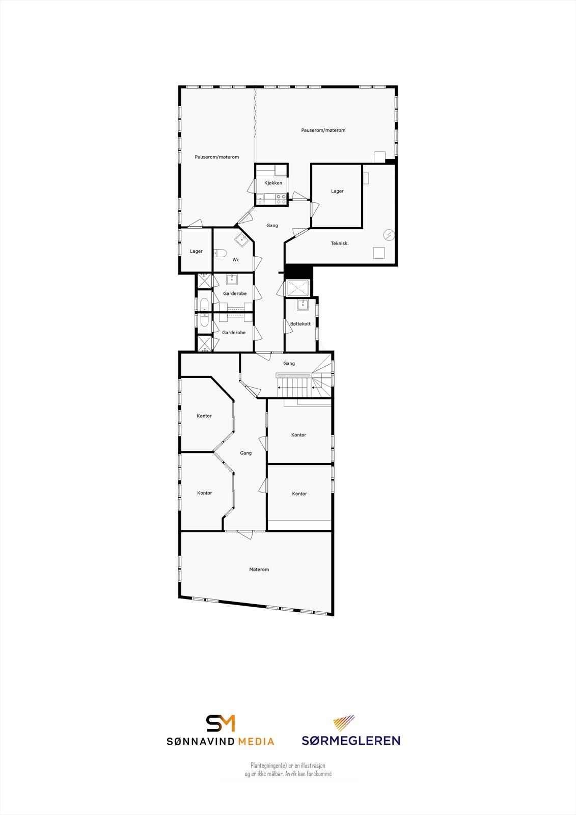
2. etasje:
2 ganger, div. kontorer, møterom, Te- kjøkken, WC, lagerrom, heissjakt, bøttekott, garderober og tekn. rom.
3. etasje:
Gang, garderober, Te- kjøkken, lagerrom, WC og 3 kontorer.
Kjeller: Bodrom.
Kommentarer til arealopplysninger:
Utvendig bod er tatt med i arealmålingen.
Areal er ut i fra tegninger kan fremkomme litt avvik.
Areal
BTA
Kjeller: 15 m2
1. etasje: 258 m2
2. etasje: 266 m2
3. etasje: 143 m2
Sum: 682 m2
Standard
Se tilstandsrapport vedlagt utført av Erik Sørensen.
Diverse
Sprinkleranlegg.
Personheis fra 1 til 2.etg.
Trafo i bygget (Å energi).
Det er tinglyst avtale om at kommunen skal
Parkering
7 parkeringsplasser. Sparebanken Sør leier idag 2 garasjer i naboeiendom Hovedgata 28 som har veirett over eiendommen Hovedgata 26.
Tomt
Festetomt på 717 m2. Kopi av festekontrakt ligger i vedlegg.
Årlig festeavgift kr.
Regulering
Eiendommen tilhører reguleringsplan riksvei 410 datert 04.06.2022 og Tvedestrand sentrum formål spesialområde for bevaring. Bestående bebyggelse skal i hovedsak bevares. SEFRAK kulturminne - Fredete bygninger. Planer under arbeid - Miljøgate Tvedestrand sentrum - Besøk kommunens hjemmeside for mer informasjon. På generell basis gjør vi oppmerksom på at det kan foreligge fremtidige planer hos kommunen for området rundt eiendommen, som megler ikke har mottatt opplysninger om.
Ansvarlig megler
Kjetil Lossius
Nyttige lenker
Nærområdet
Eiendomsmegler Norge, avd. Næring
Annonsene kan være mangelfulle i forhold til lovpålagt opplysningsplikt. Før bindende avtale inngås oppfordres interessenter til å innhente komplett informasjon fra meglerforetaket, selger eller utleier.






















