Bildegalleri

Sentral bygård på Grünerløkka med gode utviklingsmuligheter
Nøkkelinfo
- Bruksareal
- 1 120 m²
- Areal
- 1 279 m²
- Byggeår
- 1885
- Renovert år
- 2015
- Tomteareal
- 518 m²
Type lokale
Visning
Ta kontakt for å avtale visning.Om eiendommen
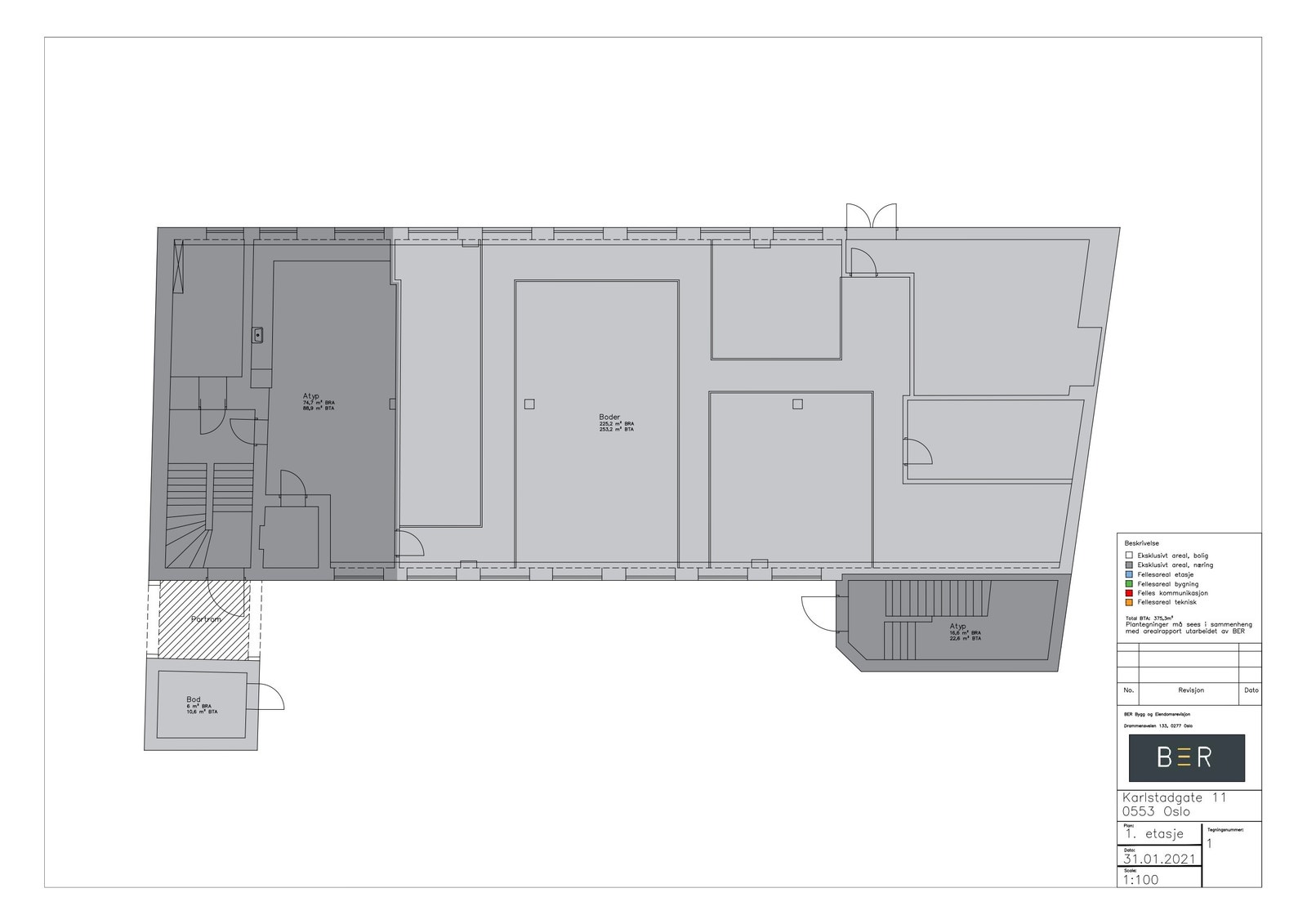
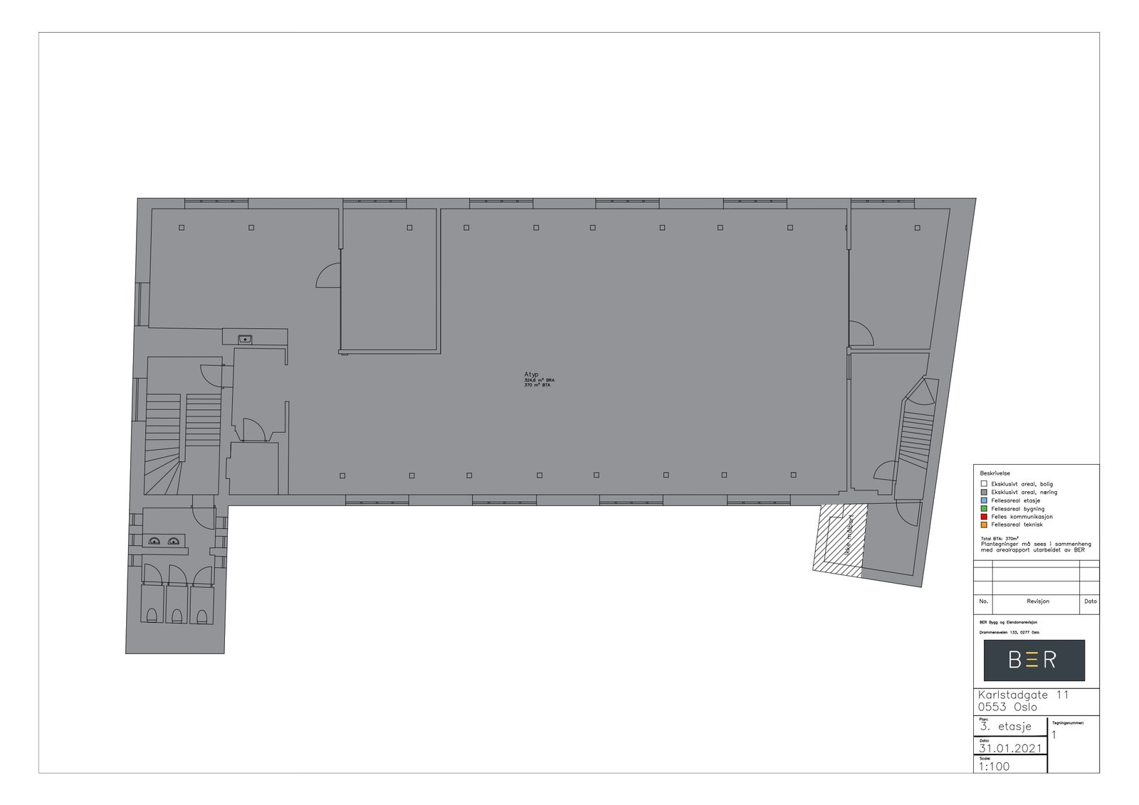
Karlstadgata 11 er en sentral bygård på Rodeløkka, med kort avstand til Grünerløkkas byliv og fasiliteter. Bygget ble opprinnelig oppført som fabrikk i én etasje, og består i dag av næringslokaler fordelt på fire etasjer, inkludert et råloft. Store deler av 1. etasje benyttes som boder for nabosameiet, der nabosameiet har evigvarende bruksrett og dekker driftskostnadene.
I 2015 ble eiendommen betydelig oppgradert. Herunder nytt ventilasjonsanlegg og rehabilitering av begge trappeløp, lunsjrom, bad i 2. og 3. etasje, samt deler av kontorene. Videre renovering av kontorene ble gjennomført i 2018/2019.
Tilbake i 2005 fikk daværende eier godkjent rammetillatelse for bruksendring til boligformål, med planer om å konvertere bygget til 8 leiligheter fordelt over tre etasjer. Leilighetene skulle være av varierende størrelse på mellom 2 og 4 rom på totalt 542 m² BRA. Rammetillatelsen forutsatte at byggets fasade skulle beholdes for å opprettholde byggets historiske karakter. Planene ble imidlertid ikke gjennomført den gang.
Dagens eier har utarbeidet et mulighetsstudie for utvikling av studenthus for å imøtekomme dagens etterspørsel. Planene omfatter totalt 26 studenthybler og 2 utleiehybler.Kontakt megler per mail for å få oversendt fullstendig prospekt.
Beliggenhet
Karlstadgata 11 ligger i bydel Grünerløkka, rett nord for Sofienbergparken. Det nærliggende området består i stor grad av boligbebyggelse med historisk karakter. Området er svært sentralt med kafeer, barer, spisesteder, grøntområder og Akerselva innen kort rekkevidde.
Adkomst
Det er god tilgang til offentlig kommunikasjon i alle retninger med kun få minutters gangavstand til nærmeste buss- og trikkeholdeplasser. Fra Olaf Ryes Plass (ca. 6 minutters gange fra eiendommen) når man Jernbanetorget på 7 minutter med trikk. Nærmeste T-banestopp er Carl Berners Plass, ca. 900 meter fra eiendommen.
Nærområdet

60 Grader Næringsmegling AS
Annonseinformasjon
| FINN-kode | 372129712 |
|---|---|
| Sist endret | 23. jan. 2026 08:11 |
| Referanse | Karlstadgata 11 |
Annonsene kan være mangelfulle i forhold til lovpålagt opplysningsplikt. Før bindende avtale inngås oppfordres interessenter til å innhente komplett informasjon fra meglerforetaket, selger eller utleier.













