Bildegalleri

Spennende kombinasjonsbygg
Kombinasjonbygg med dobbel garasje og kontorer til salgs
Nøkkelinfo
- Bruttoareal
- 237 m²
- Etasje
- 2.
- Eieform
- Eier (Selveier)
- Areal
- 237 m²
- Byggeår
- 1996
- Tomteareal
- 173 m² (eiet)
- Overtakelse
- Overtakelse av eiendommen etter nærmere avtale mellom partene.
Type lokale
Fasiliteter
Kort om eiendommen
Tidligere brannstasjon med stor dobbel garasje og kontorer.
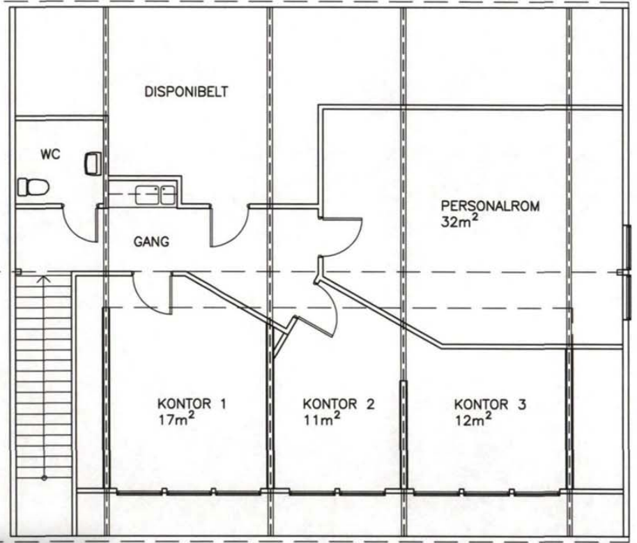
3 kontor og pauserom med kjøkkenkrok i 2. etasje.
Tidligere venterom med wc i nord følger med i salget.
Det samme gjør areal ut mot vei i nord.
Oppført i 1996.
2. etasje ble bygget i 2006.
Beliggenhet
Eiendommen er beliggende i sentrum av Bremnes på Bømlo. Enkel adkomst og kort avstand til andre butikker og offentlige tjenester.
16 min til E39 som tar deg nord mot Bergen og sør mot Haugesund/Stavanger.
10 min til Rubbestadneset.
Bussholdeplass rett utenfor døra.
Innhold
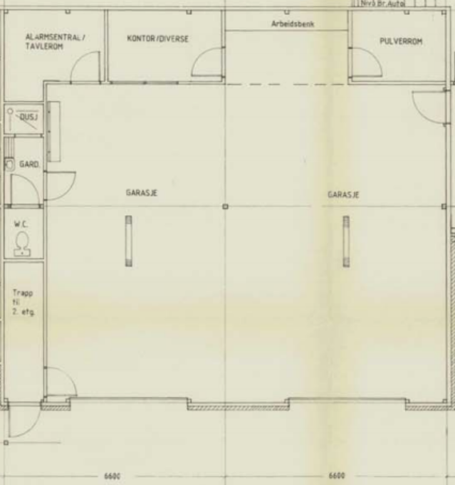
1. etasje (154 m2):
-Dobbel garasje
-Ca 3,6 meter takhøyde
-To kjøreporter på 3,5x3,5 meter
-Avløpsrist i gulv
-Mesanin for ventilasjonsanlegg og lagring
-Kontor
-Lager
-Garderobe med WC og dusj.
2. etasje (83 m2):
-Kontorfløy med 3 romslige kontorer
-Stort pauserom med kjøkkenkrok
-WC
Tomt
Eiendommen er bebygd i sin helhet.
Standard
Interessent oppfordres til å ta med fagfolk for vurdering av eiendommens tilstand.
Oppvarming
Elektrisk oppvarming.
Energimerking
Megler har oppfordret eier til å innhente energiattest for eiendommen, men denne er ikke fremlagt for megler. Interessenter bør derfor legge til grunn at eiendommen har energiklasse G.
Adkomst
Enkel adkomst fra offentlig vei.
Overtakelse
Overtakelse av eiendommen etter nærmere avtale mellom partene.
Sentrale lover
Informasjonen i dette prospektet er mottatt fra selger og forutsettes gjennomgått i detalj før bindende bud inngis. Eiendommene forutsettes besiktiget, og det anbefales at kjøper selv får gjennomgått eiendommenes tekniske tilstand ved bruk av egne fagfolk, samt at man gjennomgår leiekontrakter, tilstandsrapport, prospekt, reguleringsbestemmelser og liknende vedrørende eiendommen. Det gjøres særskilt oppmerksom på at arealangivelser er basert på opplysninger fra takstmann, og partene er enige om at eventuelle uriktige angivelser av eiendommens arealer (utvendige og innvendige) ikke under noen omstendighet skal kunne gi grunnlag for mangelkrav.
As is -klausul:
Eiendommen og dens tilbehør overtas som den/det er , jfr. avhendingsloven § 3-9. Avhendingsloven § 3-9 fravikes slik at det kun skal kunne gjøres gjeldende at det foreligger mangel i følgende tilfelle: dersom selger har forsømt sin opplysningsplikt, jfr. reguleringen i avhendingsloven § 3-7 eller dersom selger har gitt uriktig informasjon om eiendommen, jfr. reguleringen i avhendingsloven § 3-8. Risikoen for eventuelle skjulte feil, tilligger etter dette kjøper. Avhendingsloven § 4-19 (2) fravikes også, slik at den endelige reklamasjonsfristen settes til 18 mnd etter overtakelse. Selger kjenner ikke til at det er forurensning i tomtegrunnen m.v. Kjøper skal, dersom forurensning i ettertid skulle bli oppdaget, bære det fulle ansvar for all forurensning som eksisterer på eiendommen. Det gjøres oppmerksom på regler om avskrivning av faste tekniske installasjoner i avskrivbare bygninger samt justerings-forpliktelser ifm. MVA. Partene har selv ansvaret for å sette seg inn i regelverket og konsekvensene av dette. Megler er uten ansvar for konsekvenser reglene påfører partene.
Kjøpekontrakt:
Kjøpekontraktsstandard benyttes siste mal fra Forum for Næringsmeglere. Avvik fra denne skal særskilt fremkomme i bud.
Hvitvaskingsregelverk
Det følger av Hvitvaskingsloven at meglerforetaket er forpliktet til å foreta kundekontroll av begge parter i handelen. Kontrollen skjer løpende, og vil blant annet gjennomføres ved oppdragsinngåelse, budgivning, gjennomføring av oppgjør og ved eventuell forsterket mistanke.
Dersom slik kundekontroll ikke kan gjennomføres, er meglerforetaket pålagt å avstå fra gjennomføring av oppgjøret. Partene er selv ansvarlig for eventuelle merkostnader og ansvar dette kan medføre, uten at det kan anføres et kontraktsrettslig ansvar ovenfor meglerforetaket.
Meglerforetaket er forpliktet til å rapportere mistenkelige transaksjoner til Økokrim.
Budgivning
Meglers skal legge til rette for en forsvarlig avvikling av budrunden.
I forbrukerforhold (det vil si der oppdragsgiver er forbruker) skal ikke megleren formidle bud med kortere akseptfrist enn kl. 12.00 første virkedag etter siste annonserte visning. Meglerhuset Rele vil heller ikke formidle bud med kortere akseptfrist enn 30 minutter.
Bud kan legges inn på finnannonsen på "gi bud knappen", ved meglingsoppdrag etter avhendingsloven. Ved elektronisk budgivning så kan bud legges inn trygt og enkelt med bank-ID. Megler kan også kontaktes for tilsendelse av budskjema, og budskjema finnes også i salgsoppgaven.
All budgivning må foregå ved skriftlighet. For annen viktig informasjon om salg- og betalingsvilkår, samt forbrukerinformasjon om budgivning, se budskjema.
Vedlegg til salgsoppgaven
1. Kommunale opplysninger.
2. Servitutter.
Diverse
Det er i dag en fellesmåler og en minusmåler for strøm på eiendommen, hvor også venterommet i nord er inkludert. KJøper må derfor etablere en avtale med kommunen (som er eier av venterommet) om fordeling av strøm.
Det vil bli tinglyst veirett over gnr 109 bnr 2.
Regulering
Nærområdet
Meglerhuset Rele Haugesund AS
Annonseinformasjon
| FINN-kode | 354747765 |
|---|---|
| Sist endret | 10. des. 2024 10:54 |
| Referanse | 1-0147/24 |
Annonsene kan være mangelfulle i forhold til lovpålagt opplysningsplikt. Før bindende avtale inngås oppfordres interessenter til å innhente komplett informasjon fra meglerforetaket, selger eller utleier.
































