Bildegalleri

Evenes - hybelrigg med 50 hybler og servicebygg beliggende ved Evenes lufthavn - attraktivt for utleie
Nøkkelinfo
- Bruksareal
- 1 088 m²
- Eieform
- Selveier
- Areal
- 1 088 m²
- Byggeår
- 2017
- Tomt
- Eiet
Type lokale
Visning
Kort om eiendommen
Velholdt og fin brakkerigg med tilhørende servicebygg beliggende sentralt ved Evenes flyplass, kun få minutter fra flyplassen.
Enkel adkomst fra Evenesveien. Riggen må plukkes ned og fjernes fra nåværende tomt.
Evenesområdet ligger sentralt til og er et knutepunkt for regionen Narvik, Ofoten, Harstad, Lofoten, Sortland og Vesterålen.
Området rundt flyplassen er under betydelig utvikling med utbygging av blant annet hotell, butikker, samferdsel, handelspark samt at Forsvaret står foran store investeringer.
Beliggenhet
Velholdt og fin brakkerigg beliggende sentralt ved Evenes flyplass, kun få minutter fra flyplassen.
Enkel adkomst fra Evenesveien.
Evenesområdet ligger sentralt og er et knutepunkt for regionen Narvik, Ofoten, Harstad, Lofoten, Sortland og Vesterålen.
Området rundt flyplassen er under betydelig utvikling med utbygging av blant annet hotell, butikker, samferdsel m.m.
Beskrivelse av tomt
Brakkeriggen står i dag på festet tomt. Riggen ligger innenfor militært område og må flyttes. Det er ikke mulig å fortsette feste på denne tomten og riggen må dermed plukkes ned og settes opp ett annet egnet sted.
Bebyggelse
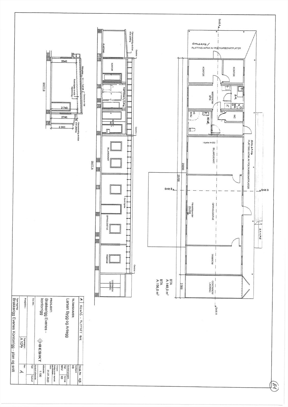
Bebyggelsen består av 50 brakkerigghybler, 2 felles vaskerom samt medfølgende servicebygg. Samlet areal utgjør ca- 1 088 kvm. BRA.
Hver av hyblene inneholder entre, bad/wc og rom for opphold.
Felles vaskerom.
Servicebygget inneholder entre, bad/wc, 2 kontorer, kjøkken, biljardrom, oppholdsrom, treningsrom og lagerrom.
Brakkeriggen med byggeår 2017 og servicebygget med byggeår 2020.
Byggemåte brakkerigghybler: Grunn - fyllmasse. Grunnmur - betongklosser og impregnerte klosser. Vegger, tak og gulv - stålkonstruksjon. 10 cm isolasjon. Innvendige vegger og tak - malte plater. Gulv - gulvbelegg. Installasjoner - vask, dusj, toalett, kjøkkeninnredning med avtrekksvifte. Ventilasjon -ventil i vegger. El-anlegg.
Byggemåte servicebygg: Grunn - fyllmasse, betong og impregnerte klosser. Stålkonstruksjon delvis tekket med trepanel. 15 cm isolasjon. Tak - tekket med takpapp. Innvendige vegger og tak - malte plater. Gulv - sponplater og gulvbelegg. Tekniske installasjoner - vasker, toaletter, dusjer, kjøkkeninnredning med avtrekk. Ventilasjon - ventil i vegg. El-anlegg. Elektronisk låssystem.
Arealene er ikke oppmålt av megler eller bygningssakskyndig, og er hentet fra tegninger levert av selger.
Parkering
Parkering på tomten.
Betalingsbetingelser
Kjøpesum med tillegg av omkostninger skal være disponibelt på meglers klientkonto innen overtakelse.
Overtakelse
Etter nærmere avtale. Angi ønsket overtakelse i Deres bud.
Lovanvendelse
Oppdraget reguleres av eiendomsmeglingsloven. Oppdragsgiver er i dette oppdraget ikke forbruker, og eiendomsmeglingsloven § 6-4, § 6-5, § 7-1, § 7-2 første til tredje ledd, § 7-4 første og tredje ledd og § 8-8 er fraveket med hjemmel i § 1-3.
For eiendom som ikke helt eller delvis er egnet brukt til bolig- eller fritidsformål kan eiendomsmeglingsloven fravikes slik det er hjemmel for i § 1-4 tredje ledd, jf. Forskrift om eiendomsmegling § 1-2 (næringsmegling). Dette oppdraget gjelder næringsmegling, og eiendomsmeglingsloven § 4-4, § 6-2, § 6-4, § 6-5, § 6-7 til § 6-10, kapittel 7 og § 8-8 fravikes med hjemmel i forskriftens § 1-2.
Informasjonen i denne salgsoppgaven med vedlegg er mottatt fra selger, selgers representant, takstmann, kommune, Kartverket og andre tilgjengelige kilder. All informasjon forutsettes gjennomgått i detalj før bindende bud inngis. Eiendommen(e) forutsettes besiktiget, og det anbefales at kjøper selv kontrollerer eiendommenes tekniske tilstand ved bruk av egne fagfolk, samt at man gjennomgår leiekontrakter og annen relevant informasjon om eiendommene.
Alle opplysninger i denne salgsoppgaven med vedlegg er tilrettelagt og bearbeidet av megleren etter beste skjønn, men megleren kan ikke ta ansvaret for at informasjonen er riktig eller fullstendig.
Enhver som investerer i næringseiendom, må på egen hånd forsikre seg om at opplysningene er riktige og fullstendige.
Megleren fraskriver seg ethvert ansvar for tap som følge av opplysninger som er misvisende, feilaktig eller ufullstendig, samt tap som på annen måte måtte oppstå som følge av investeringen.
Dersom kjøpers bankforbindelse krever utvidet forsikringsattest for Sem & Johnsen, eller stiller annet krav til sikkerhet utover meglers normale sikkerhetsrutiner ved salgsoppgjør, belastes kjøper omkostninger forbundet med dette.
Rettsforholdet mellom kjøper og selger reguleres av avhendingsloven.
Ved salg til profesjonell/næringsdrivende kjøper (ikke forbruker - fysisk person som ikke hovedsakelig handler som ledd i næringsvirksomhet) er avhendingsloven fravikelig. Kjøper fraskriver seg så langt gjeldene rett tillater det, enhver rett til å gjøre gjeldene krav mot selger som følge av at eiendommen ikke er som den skal være i medhold av avhendingsloven §§ 3-3, 3-7, 3-8 og 3-9, andre regler om ansvar for uriktig og manglende opplysninger og ethvert annet lovfestet eller ulovfestet grunnlag, herunder regler om ansvar for uriktige og manglende opplysninger etter avtaleloven. Nevnte forhold er hensyntatt ved fastsettelse av prisantydning.
Avhendingsloven § 4-19 (2) fravikes også, slik at den endelige reklamasjonsfristen settes til 1 år etter overtakelse.
Selger er ikke kjent med feil eller ufullstendigheter i rapporter som er utarbeidet av tredjemann.
Selger kjenner ikke til grunnforurensing, arkeologiske forhold eller andre spesielle forhold tilknyttet tomtegrunnen, men gir ingen garantier i forhold til praktiske eller økonomiske konsekvenser for kjøper holdt opp mot dette dersom det i ettertid skulle bli avdekket denne type forhold.
Har kjøperen før avtalen ble inngått undersøkt eiendommen eller uten rimelig grunn latt være å følge en oppfordring fra selger/megler om å undersøke eiendommen, kan kjøperen etter avhendingsloven ikke gjøre gjeldende som mangel, noe han burde blitt kjent med ved undersøkelsen. Dette betyr at kjøper ikke kan reklamere på forhold som han kunne ha oppdaget dersom kjøper hadde besiktiget eiendommen før bindende avtale ble inngått.
Det gjøres oppmerksom på regler om avskrivning av faste tekniske installasjoner i avskrivbare bygninger. Partene har selv ansvaret for å sette seg inn i regelverket og konsekvensene av dette. Megler er uten ansvar for konsekvenser reglene påfører partene.
Selgers eventuelle justerings-/tilbakeføringsforpliktelser og rettigheter for inngående merverdiavgift tilknyttet eiendommen overføres til kjøper per overtakelse.
Sem & Johnsens kjøpekontrakt for næringsforhold benyttes i denne transaksjonen . Med mindre den enkelte interessent i sitt kjøpstilbud tar spesielle forbehold eller angir konkrete endringer av ordlyden i denne kontrakt, vil man ved aksept av kjøpstilbud fra selger ha inngått avtale med utgangspunkt i denne kjøpekontrakt.
Utkast til kjøpekontrakt fås av megler på forespørsel.
Interessenter bes gjennomgå kontraktsutkastet før inngivelse av bud, da kontraktsutkastet kan være tilpasset og inneholde bestemmelser og vilkår som ikke fremkommer av salgsoppgaven.
Interessenter og kjøper må godta at selger og megler bruker elektronisk kommunikasjon i salgsprosessen.
Selger forbeholder seg retten til å foreta kredittvurdering av kjøpere.
Kjøper må selv vurdere om ervervet er meldepliktig etter konkurranselovens § 18 og i tilfelle inngi melding.
En forutsetning for salget er at skjøtet for eiendommen tinglyses på kjøper.
Budgivning
Oppdragsgiver er profesjonell og har mulighet til å godta bud med kortere akseptfrist enn til kl. 12.00 første virkedag etter siste annonserte visning jfr. Forskrift om eiendomsmegling § 6-3(3).
Diverse
Forbehold
Salgsoppgaven er basert på selgers opplysninger gitt til bygningssakkyndig og megler, samt opplysninger innhentet fra kommunen, tilstandsrapporten, egenerklæringsskjemaet, evt. forretningsfører og andre tilgjengelige kilder. Interessenter oppfordres til å lese hele salgsoppgaven og alle bilag nøye, samt å delta på visning og undersøke eiendommen før bud inngis. Kontakt megler dersom du har spørsmål.
Sem & Johnsens kjøpekontrakt vil bli benyttet som rammeverk for avtalen, og det vil ikke kunne gjøres i endringer i denne i etterkant av akseptert bud. Utkast kan fås ved henvendelse til megler før bud inngis.
Det gjøres oppmerksom på at megler ikke har innhentet særskilte opplysninger om det finnes pålegg fra E-verk eller brann-/feiervesen på eiendommen.
Brakkeriggen og servicebygget må flyttes fra nåværende plassering til ny tomt beliggende ca. 300 meter sør for dagens beliggenhet. Alle kostnader forbundet med demontering, flytting og opparbeidelse av tytt tomteareal bæres av kjøper.
Sikkerhetsstillelse
Alle eiendomsmeglerforetak har lovpålagt forsikring av klientmidler begrenset opptil kr 45 millioner. Enkeltsaker er forsikret inntil kr 15 millioner. Dersom kjøpers låneinstitusjon krever tilleggsforsikring ved omsetning over kr 15 millioner, må kjøper selv eller dennes låneinstitusjon dekke utgiftene forbundet med dette.
Meglerkontoret er tilknyttet Reklamasjonsnemda for Eiendomsmeglingstjenester, og eventuelle tvister kan forelegges for nemndas behandling av forbrukere.
Det økonomiske oppgjøret utføres av:
Sem & Johnsen Oppgjør og Administrasjon AS, org. nr. 999 638 996 Pb. 1613 Vika, 0119 Oslo
Arealet er ikke kontrolloppmålt av bygningssakkyndig, og er hentet fra xxxx/bygningstegninger/utbygger/kommunalt arkiv. (STRYK DET SOM IKKE PASSER) Av den grunn må det forventes avvik på oppgitt areal. Kjøper overtar risiko og følger av dette.
Nærområdet
Sem & Johnsen
Annonseinformasjon
| FINN-kode | 345714133 |
|---|---|
| Sist endret | 17. mars 2026 10:21 |
| Referanse | 20-24-0093 |
Annonsene kan være mangelfulle i forhold til lovpålagt opplysningsplikt. Før bindende avtale inngås oppfordres interessenter til å innhente komplett informasjon fra meglerforetaket, selger eller utleier.









































