Bildegalleri

Velkommen til Hovdmoveien 18!
Rena/Hovdmoen - Næringsbygg over et plan tilpasset næringsdrift. Kort vei til Rena sentrum.
Nøkkelinfo
- Bruksareal
- 113 m²
- Bruttoareal
- 123 m²
- Eieform
- Eier (Selveier)
- Areal
- 113 m²
- Rom
- 4
- Byggeår
- 2008
- Tomteareal
- 1 014 m² (eiet)
- Overtakelse
- Overtakelse etter avtale
Type lokale
Fasiliteter
Kort om eiendommen
Velkommen til Rena og Hovdmoveien 18!
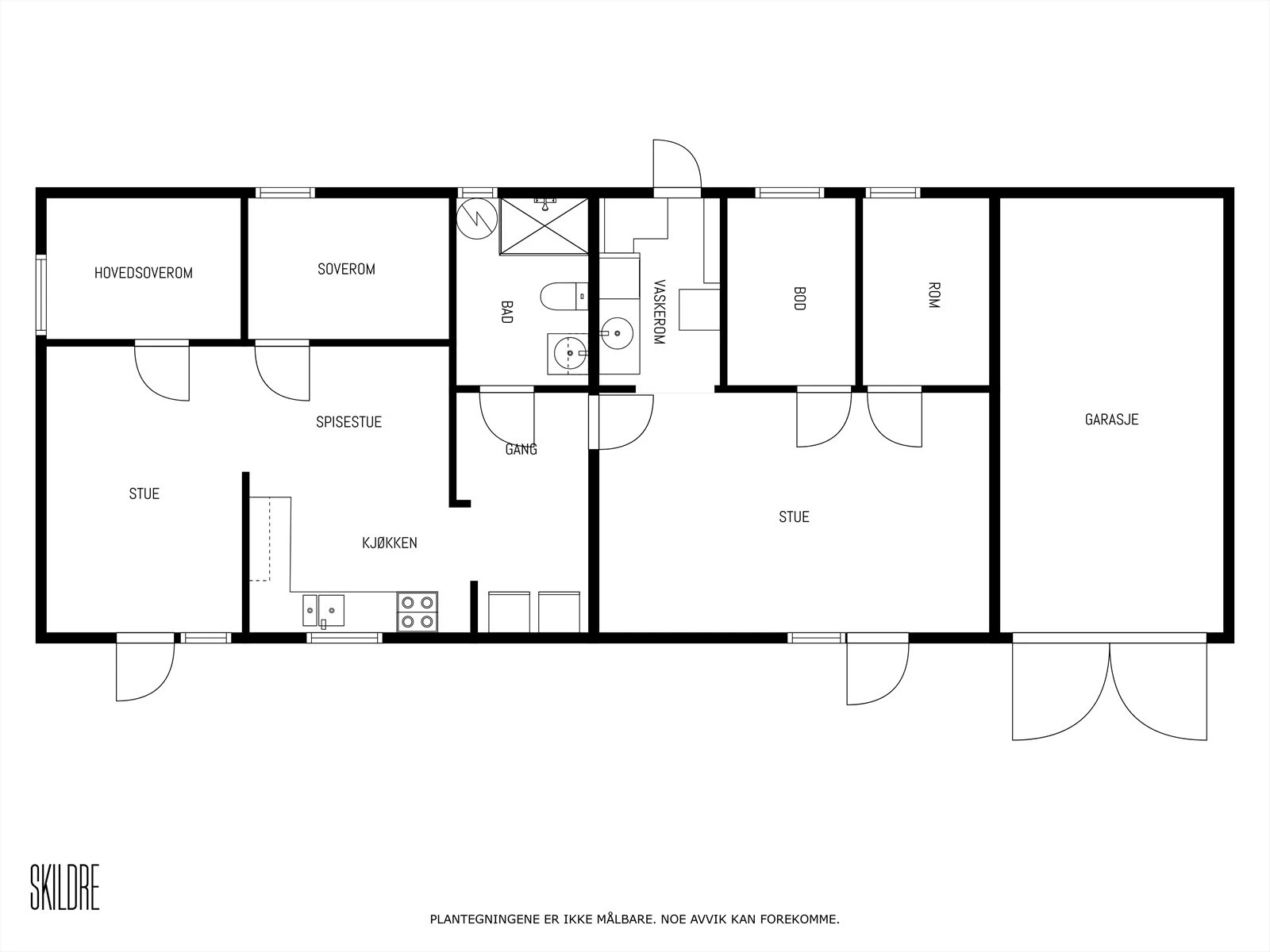
Her kan vi presentere et næringsbygg over en etasje med blant annet oppholdsrom/stuer, kontorlokaler, kjøkken, bad, to soverom og hall/produksjonslokale. Lokalene fremstår med varierende grad av vedlikehold. Deler av bygget er renovert og rehabilitert i 2018 etter brann. Næringsbygget har enkel adkomst fra vei og er tilrettelagt for næringsdrift. Godt med lagringsplass. Innlagt vann og strøm. Elektrisk anlegg fra 2018. Elektrisk gulvvarme på bad.
Det er ca. 5 km til Rena sentrum, som har det meste av det en måtte trenge i det hverdagslige.
Velkommen til visning!
Meld deg på via påmeldingsknappen eller ta kontakt med Hans Petter Carlsson, eiendomsmegler MNEF, på tlf. 911 25 518.
Beliggenhet
Næringsbygg beliggende i et industriområde på Hovdmoen, ca. 5 km nord for Rena sentrum, med enkel adkomst fra Rv3.
Rena sentrum har det meste av det en skulle trenge av fasiliteter i hverdagen, som dagligvare, restauranter, kirke, småforretninger, bensinstasjon, skoler og barnehager. Området i og rundt eiendommen kan by på et variert utvalg av opplevelser gjennom hele året, som for eksempel jakt- og fiske og turer både til fots, på sykkel eller med ski på beina. Glomma og Prestsjøen er ypperlige mål for både fiske og bading. Hvert år arrangeres også Birkebeinerrennet, som går fra Rena til Lillehammer.
Sorknes Golfbane er en fullverdig 18-hulls bane, midt i Birkebeinerriket. Her arrangeres blant annet flere morsomme og sosiale turneringer gjennom sesongen, som etterfølges av grilling ved klubbhuset.
Rena Alpin- og skisenter ligger ca. 5,5 km fra eiendommen. Her finnes oppkjørte langrennsløyper og et alpinanlegg med 6 nedfarter og 2 heistrekk. Anlegget har en terrengpark beliggende ved den nedre delen av den midtre nedfarten og den har flere rails og hopp. Deler av anlegget er flombelyst, slik at man kan kjøre også etter mørkets frembrudd. Rena har også en hoppbakke beliggende i Heienberget like utenfor sentrum. Her er det to bakker i forskjellige størrelser.
Rena er et læringssted for høyere utdanning. Høyskolen i Innlandet, Campus Rena kan by på flere studieretninger med både hel- og deltidsstudier, på både bachelor- og mastergradnivå. Forsvaret har sin base på Rena leir, med blant annet befalsskole for hæren.
Skulle det være behov for et ytterligere større servicetilbud, er det kun en liten halvtimes kjøretur til Elverum. Elverum kan by på 2 store kjøpesentre, 2 flotte museer, flere sentrumsforretninger, et bredt utvalg innen spisesteder og puber, samt Høyskolen i Innlandet Campus Elverum. Elverum har også en militærleir, Terningmoen, som ligger i tilknytning til Terningen Arena.
Adkomst
Fra Rena sentrum, følg Nord-Østerdalsveien/Rv3 nordover og kjør ca. 4,5 km. Ta til høyre inn på Hovdmoveien og eiendommen ligger på venstre side etter ca. 400 meter.
Det vil bli skiltet med Meglerhuset Østlandets visningsskilter ved annonserte fellesvisninger.
Standard
Her kan vi presentere et næringsbygg over en etasje, med større reparasjoner og ombygginger etter brann i 2018. Næringsbygget er tilrettelagt for næringsdrift og har oppholdsrom, sanitære rom, tekniske rom og lager. Sanitæranlegg og oppholdsrom tilknyttet næringslokalene. Bygget har noe varierende standard og vedlikehold og det er behov for utbedring av enkelte skader. Konstruksjoner, overflater og installasjoner med noe bruksslitasje og diverse gjenstående arbeider for ferdigstillelse. Frittstående fryse-container på ca. 28 kvm.
Innvendige gulvoverflater hovedsakelig med fliser. Vegger med MDF-plater, fliser og noe skifer. Opplyst gipsplater under flislagte vegger. Himlinger med stålplater og himlingsplater.
Stoppekran og vannmåler på bad. Tradisjonelt sanitæranlegg med vannførende ledninger av PEX, Cu-rør og avløpsrør med PP-/PVC-rør. Hall med vaskekum i benkeplate. Hall med to gulvsluk.
To stuer/oppholdsrom med plass til sofa og tv-benk. Kjøkken med åpen løsning for frittstående hvitevarer. Plass til spisebord.
Baderom med toalett, servant og dusjkabinett. Elektrisk gulvvarme. Opplegg for mekanisk avtrekk på yttervegg, vifte mangler.
To soverom med plass til dobbeltseng.
230V/400V anlegg med 63A hovedsikringer. Strømskap med automatsikringer plassert i sosial del av bygget. Opplyst at ledningsnettet er fra 2018. Hovedsakelig skjult ledningsnett. Varmtvannsbereder plassert på bad. Opplegg for vaskemaskin på et rom.
Betalingsbetingelser
Med mindre annet er avtalt forutsettes det at kjøpesum inkl. omkostninger er innbetalt og disponibelt på meglerforetakets klientkonto senest to dager før overtakelse.
Overtagelse, tilleggsinfo.
Overtakelse etter avtale
Bebyggelse
Næringsbygg over en etasje. Frittstående fryse-container.
Byggemåte
Se vedlagte verditakst fra Byggtakst Elverum AS v/ Knut Roger Furuseth datert 21.10.2023, der byggemåte og tilstand er nærmere beskrevet.
Næringsbygg: Oppført i 2008 og rehabilitert i 2018. Bygningsmasse i betong og trevirke. Bygning med en etasje og støpt plate på mark. Grunn antas bestående av sand-/morenemasser. Antatt fundamentert med betongsåler på grusmasser. Grunnmurer med ringmurselementer. Grusgulv ved kaldtlager. Konstruksjon over grunnmurer i bindingsverk. Takkonstruksjon med kaldtloft og antatt prefabrikkerte taksperrer. Yttervegger i bindingsverk med utvendig stående stålplater og noe liggende kledningsbord ved gavl. Antatt at ytterveggene er isolert med 15-20 mm mineralull. Vinduer med isolerglass påvist fra 2007 og 2017. Ytterdører med glassfelt til sosiale rom fra 2005 og til hall fra 2015. Ytterdør også mot vest fra hall. Manuell leddport ved hall. Enkel nettinggrind til kaldtlager. Seksjonering med brannvegg mellom hall og kontordel, brannklassifisert dør i delevegg. Yttertak tekket med stålplater fra 2018. Saltak med kaldtloft. Ingen adkomst til kaldtloftet. Montert snøfangere. Renner og nedløp i metall. Opplyst om nedgravd oljetank, hvor tilknyttede installasjoner er fjernet. Sanering av oljetank på påregnes.
Kommunale avgifter
De kommunale avgiftene inkluderer vann og eiendomsskatt. Det er for øvrig også avgifter for avløp. Eiendommen hadde i 2022 til gode kr. 565,-. på dette. Ingen gebyrer fakturert på eiendommen fra Søir i 2022/2023.
Tomten
Gruset innkjøring, kjørearealer og parkering. Grusede veier og plasser langs nord- og østsiden av bygget.
Parkering
Parkering på gruset oppstillingsplass foran eiendommen.
Energibruk/kostnader
Selger har ikke oppgitt strømforbruk. Strømforbruket vil variere avhengig av bruk og antall personer i bygget.
Radonmåling
Det er ikke foretatt radonmålinger og bygget er heller ikke utført med radonsperre.
Oppvarming
Oppvarming av bygget med strøm. Elektrisk gulvvarme på bad.
Personopplysningsloven
I henhold til personopplysningsloven gjør vi oppmerksom på at interessenter kan bli registrert for videre oppfølgning.
Hvitvaskingsreglene
Eiendomsmeglere er underlagt Lov om tiltak mot hvitvasking og terrorfinansiering (hvitvaskingsloven) - L01.06.2018 nr. 23. Det følger av loven at megler bl.a. har plikt til å gjennomføre kundekontroll. I de tilfeller hvor kunden er juridisk person skal megler også kartlegge hvem som er reelle rettighetshavere. Med reelle rettighetshavere menes fysiske personer som eier eller kontrollerer mer enn 25% av eierandelene i selskapet. Partene må bidra til at kundekontrollen lar seg gjennomføre på en hensiktsmessig måte. Megler plikter å rapportere mistenkelige transaksjoner til Økokrim. Ved slik rapportering vil ikke partene blir varslet.
Vedlegg til Salgsoppgaven
Følgende dokumenter inngår i salgsoppgaven eller utleveres på forespørsel til megler:
Verditakst
Reguleringsbestemmelser
Ferdigattest
Lovverk
Avtaleforholdet mellom partene reguleres av avhendingslova (L03.07.1992 nr. 93 Lov om avhending av fast eigedom)
Diverse
Det er ikke innhentet særskilte opplysninger fra e-verk.
Åmot kommune har ingen opplysninger i sitt arkiv om siste tilsyn og feiing.
Meglerkontoret er tilknyttet Reklamasjonsnemda for eiendomsmeglertjenester.
Visningspåmelding er et hjelpemiddel i budgivning og det gis ingen garanti at man blir kontaktet ved å skrive seg på listen. Dersom man vil være sikker på å bli holdt orientert om bud, bør man selv ta kontakt med megler.
Vederlag
Tilrettelegging kr. 9 500,-
Oppgjørkostnad kr. 6 900,-
Markedsføringspakke kr. 14 900,-
Visning pr. stk. kr. 2 500,-
Meglerhonorar kr. 40 000,-
Kommunale opplysninger kr. 9 800,-
Regulering
Eiendommen ligger i et område regulert til forretning/kontor/industri. Reguleringsplan Hovdmoen industriområde, planid 20102100 gjelder. For øvrig gjelder Kommunedelplan for kulturminner og kulturmiljø 2016-2030, planid 20130500 og Kommuneplanens arealdel 2016-2030, planid 20150300.
Ferdigattest
Det foreligger ferdigattest for næringsbygget datert 20.07.2007 samt byggetegninger.
Vei, vann og avløp
Adkomst til eiendommen via kommunal veg.
Eiendommen er tilknyttet offentlig vann- og avløpsanlegg. Det er i følge kommunen registrert vannmåler på eiendommen.
Servitutter
Eiendommen selges fri for tinglyste heftelser og rettigheter.
Ansvarlig megler
Hans Petter Carlsson
Nyttige lenker
Nærområdet
Meglerhuset Østlandet AS
Annonseinformasjon
| FINN-kode | 325792780 |
|---|---|
| Sist endret | 14. okt. 2025 01:50 |
| Referanse | GAR14.23140 |
Annonsene kan være mangelfulle i forhold til lovpålagt opplysningsplikt. Før bindende avtale inngås oppfordres interessenter til å innhente komplett informasjon fra meglerforetaket, selger eller utleier.























