Bildegalleri

HYBELBYGG PÅ SELLANRÅ - SENTRALT BELIGGENDE I MOLDE 27 hybler fordelt over 3 etasjer
Nøkkelinfo
- Eieform
- Eier (Selveier)
- Tomt
- Eiet
Type lokale
Innhold:
Eiendommen er et hybelhus i 3 etasjer samt underetasje som ble oppført i 1959. Bygningen ble ført opp som hybelbygg for ansatte til Molde sjukehus, og inneholder til sammen 27 soverom fordelt på 1. til 3. etasje. Bygget har tidligere vært benyttet til institusjon, og for 3 år siden ble bygget brukt av asylsøkere med kommunen som leietaker. Eiendommen har stått tom de siste 3 årene.
Bygningen er ført opp i murkonstruksjon, med fasader, vegger og etasjeskillere i betong.
Bygget inneholder:
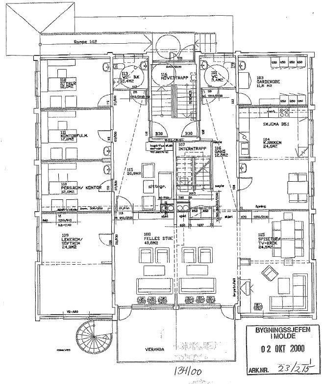
U.etg.: korridor, lagringsrom, vaskerom, tørkerom, garderober, tekniske rom, trapperom, disponible rom, og har et areal på 253 kvm.
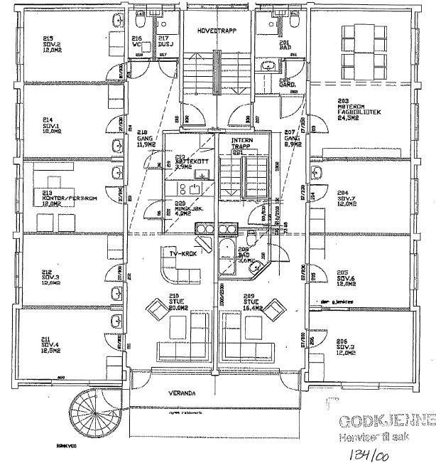
1. etg.: trapperom, korridorer/gang, kontorer/disponible rom, bad, utgang til terrasse, etasjen har et arel på 253 kvm.
2. etg.: trapperom, korridorer/gang, kontorer/disponible rom, bad, utgang til veranda, etasjen har et arel på 253 kvm.
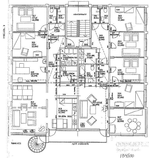
2. etg.: trapperom, korridorer/gang, kontorer/disponible rom, bad, utgang til veranda, etasjen har et arel på 253 kvm.
Standard:
Eiendommen holder en enkel standard med hovedsakelig banebelegg på gulv, malte vegger og himling med malte flater og systemhimling. Overflater er i hovedsak fornyet siden byggeår, men elde og slitasje er gjennomgående i hele bygget innvendig og utvendig.
Eiendommen har vært utleid, og Statsbygg har selv ikke bebodd/benyttet eiendommen. Statsbygg har begrenset kjennskap til eiendommens stand. Interessenter oppfordres derfor til å undersøke eiendommen ekstra grundig.
Det tas forbehold om at bygget er godkjent for 27 hybler da det ikke foreligger ferdigattest. Kjøper oppfordres til å få dette bekreftet av kommunale myndigheter.
Det er oppført en bod på østlig del av eiendommen. Det foreligger ikke byggemelding/søknad om oppføring av påbygget, eller tillatelse til oppføring av dette. Statsbygg har ingen kjennskaper til dette påbygget, og fraskriver seg ethvert ansvar knyttet til dette.
Beliggenhet:
Eiendommen Stuevollvegen 6, har beliggenhet like nord for Molde sykehus, med gangavstand til Molde sentrum. Det er kort avstand til dagligvarebutikk, barnehage, barneskole, ungdomsskole samt lekearealer i nærområdet.
Kjøpsbetingelser:
Avtale om kjøp skjer i henhold til de avtalebetingelser som fremgår av komplett salgsprospekt.
Beskaffenhet:
Tomten er på 1.760, 3 kvm, og ligger i skrående terreng med helning fra syd mot nord.
Regulering:
I henhold til kommuneplanens planbestemmelser og retningslinjer §2.1, skal i Ingen reguleringsplaner oppheves. Der det er motstridene interesser skal
kommuneplanen gjelde
.
Eiendommen ligger i felt S3 på plankartet.
I henhold til §3.3 skal området S3 planlegges helhetlig gjennom områderegulering.
I henhold til §9a) vil formålet boliger først kunne brukes når plankravet om områderegulering er oppfylt og sykehusdriften opphørt.
Nyttige lenker
Nærområdet
Norion Næringsmegling
Annonsene kan være mangelfulle i forhold til lovpålagt opplysningsplikt. Før bindende avtale inngås oppfordres interessenter til å innhente komplett informasjon fra meglerforetaket, selger eller utleier.




































