Bildegalleri

Hønefoss sentrum - Meget attraktiv beliggende næringslokale i sentrum av Hønefoss med trappefri adkomst, bra standard og
Nøkkelinfo
- Bruksareal
- 109 m²
- Bruttoareal
- 120 m²
- Eieform
- Eier (Selveier)
- Byggeår
- 1980
- Tomteareal
- 280 m² (eiet)
Type lokale
Innhold
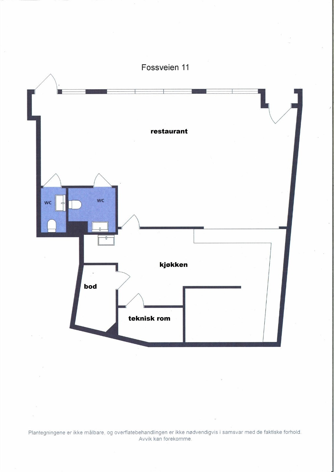
Seksjonen inneholder: Restaurant med 2 toalettrom, kjøkken, bod og teknisk rom.
Standard
Seksjonen har god planløsning med store glassflater som slipper inn fint dagslys. På gulvet er det fliser, vegger malte flater og plater i himling. Selges med det meste av kjøkkenutstyr (avtales direkte med eier).
Oppvarming
Panelovner. Fastmonterte varmekilder som var i lokalet under visning medfølger.
Byggemåte
Bygget inneholder 4 boligseksjoner og en næringsseksjon. Næringsseksjon ligger i 1. etasje med trappefri adkomst. Sameiet skal male bygget i 2018. Eier innbetaler sin andel av dette. Se vedlagte takst vedrørende teknisk informasjon om bebyggelsen.
Ferdigattest / midlertidig brukstillatelse
Informasjon fra Ringerike kommune: Det er godkjent søknad om fasadeendring og rehabilitering den 20/02-2002. Det er også godkjent søknad om bruksendring av 1. etg. den 1/4-2005. Ferdigattest foreligger ikke.
Utleie
Adgang til utleie: Eier leier ut seksjonen for kr 162.000,- eksklusiv merverdiavgift. Leiekontrakt vedlegges. Sameiet har klaget på støy fra forretningsdriften! Eier har sagt opp leietager. Oppsigelsesperiode gjelder fra 01.04.2018 og 6 måneder frem til 30.09.2018.
Beliggenhet
Eiendommen har en meget attraktiv og sentral beliggenhet ved Brutorget, midt i sentrum av Hønefoss med god profilering. Rundt lokalet er det flere nyoppførte leilighetsbygg med stor kundemasse! Kort gangavstand fra bussholdeplass, togstasjon, kino og byens sentrum som kan by på det meste av fasiliteter, kultur og uteliv.
Avstand med bil/buss:
Sandvika: Ca. 40 minutter.
Oslo: Ca. 50 minutter.
Gardermoen flyplass: Ca. 60 minutter.
Tomten
Tomten for sameiet er på 280 kvm med egen parkering i bakgården.
Parkering
Det er egen parkering i bakgården (port med fjernkontroll). Se vedlagte kartskisse.
Diverse
Fellesgjeld for seksjonen pr 31.12.2017 kr 113.932,- og formue kr 128.456,-. Rente 3,65% - innfries 2038.
Nyttige lenker
Nærområdet
DNB Eiendom AS
Annonseinformasjon
| FINN-kode | 118437090 |
|---|---|
| Sist endret | 12. okt. 2018 13:04 |
| Referanse | 51018118 |
Annonsene kan være mangelfulle i forhold til lovpålagt opplysningsplikt. Før bindende avtale inngås oppfordres interessenter til å innhente komplett informasjon fra meglerforetaket, selger eller utleier.



