Bildegalleri

Kontor / lager / produksjon - Løkka 7 - 3271 Larvik
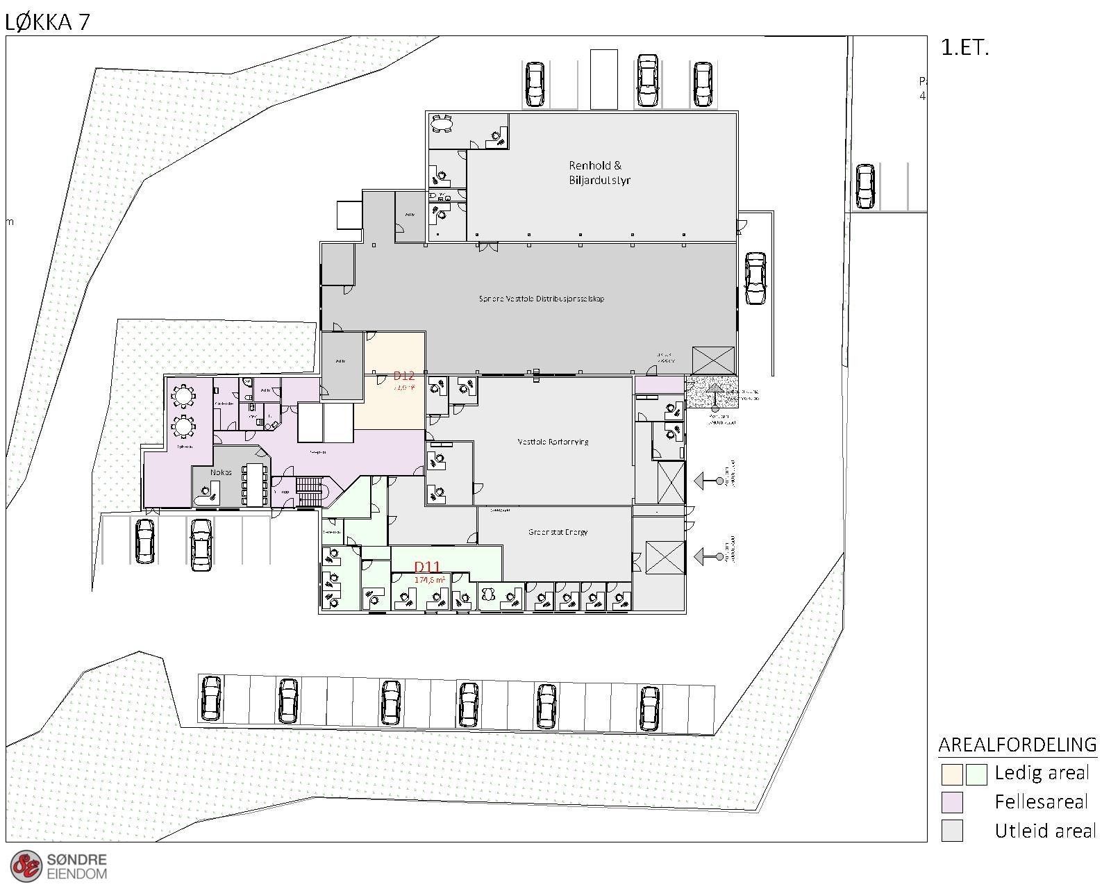
Nøkkelinfo
- Areal
- 70 - 174 m²
- Etasje
- 2.
- Byggeår
- 1994
- Renovert år
- 2009
Type lokale
Kontor
Produksjon/Industri
Lager/Logistikk
Kombinasjonslokaler
Verksted
Garasje/Parkering
Undervisning/Arrangement
Andre
Fasiliteter
Aircondition
Garasje/P-plass
Om eiendommen
Til kontorene er det tilgang til felles kjøkken, spiserom og toaletter.
Adkomst
Bygget ligger ovenfor Elveveien.
Standard
Lokalene har tilgang fra felles hovedinngang. Fellesarealene er ved hovedinngangsdør
Leieprisen er basert på overtakelse av lokalene som de står.
Alternativt; Leietid må minst være av 12 mnd avtale.
NB: Knappen for å vise hele beskrivelsen har kun en visuell effekt.
NB: Knappen for å vise hele beskrivelsen har kun en visuell effekt.
Visning
Ta kontakt for å avtale visning.Søndre Eiendom as
Nærområdet
Annonsene kan være mangelfulle i forhold til lovpålagt opplysningsplikt. Før bindende avtale inngås oppfordres interessenter til å innhente komplett informasjon fra meglerforetaket, selger eller utleier.





















