Bildegalleri

Pancoveien 7 - Ørebekk - Fredrikstad
Attraktive kontorer, sentralt, stor gratis parkeringsplass, nær handel og off. transport.
Nøkkelinfo
- Areal
- 750 m²
- Bruttoareal
- 750 m²
- Tomteareal
- 4 300 m² (eiet)
- Etasje
- 3.
- Byggeår
- 1990
Type lokale
Fasiliteter
Kort om eiendommen
Pancoveien 7 ligger inntil Mosseveien med meget god synlighet og muligheter for profilering ut mot Mosseveien.
Bygget er på 3 etasjer og skal pusses opp nå i våres med bla. innsetting av heis, spile trevegger og nye farger i fellesarealene.
Noen av lokalene er å anse som rå lokaler, som leier selv kan forme slik de ønsker dette! Hvis ønskelig!
De fleste kontorer kan en flytte rett inn i og flere av disse har eget t-kjøkken og det er felles toaletter ute i fellesarealene.
Enormt med gratis p plasser og meget sentral beliggenhet i forhold til handel, offentlig kommunikasjon og nærhet til andre arbeidsplasser.
Koselig ubemannet kantine felles for hele bygget med stor ute veranda for solrike varme dager.
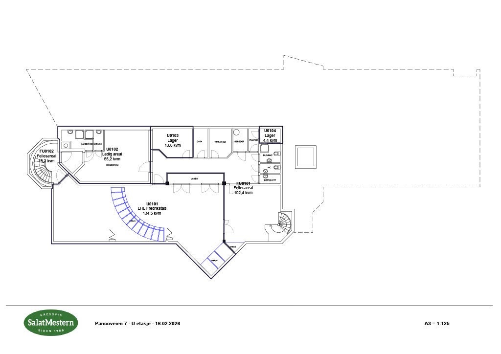
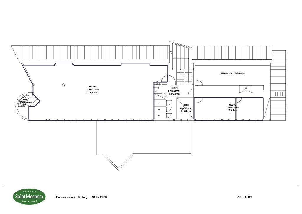
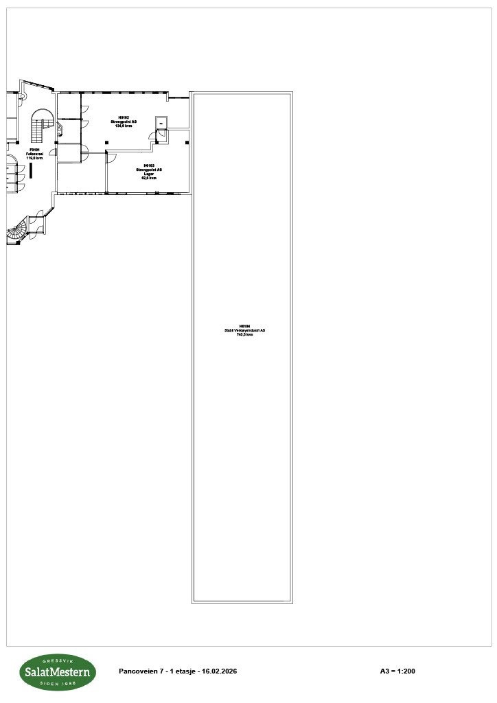
Kontorer fra 50 kvm. til hele etasjer på begge sider av heis og trappegang. Totalt ledig ca. 750 kvm. i dette 3 etasjes flotte sentrale bygget.
Beliggenhet
Sentral beliggenhet på Ørebekk. Pancoveien 7 ligger i et kult flott kontorbygg rett ved riksveien.
Beskrivelse av tomt
Eiendommen har stor tomt, sentralt med meget bra gratis parkeringsdekning.
Standard
Pancoveien 7 - god standard, men eier er villige til oppgraderinger til topp moderne kontorer. Rå lokalet i toppetasjen, litt loffs preg, er helt rått! De bør sees! Her er det store muligheter. Ellers er bygget godt vedlikeholdt, fine kontorer til å flytte rett inn i eller evt. pusses opp av eier/ leier. Gode priser her!
Adkomst
Kjør Mosse veien ut fra Fredrikstad Sentrum, forbi Seut Brygge og ta av i rundkjøringen ved Maxbo Stormarked og Kiwi. Rett ned mot Jem Fix og Salatmestern. Så høyre og rett borte i gaten finner du Pancoveien 7.
Lovanvendelse
Oppdraget reguleres i henhold til Lov om eiendomsmegling av 29.06.2007 nr. 73. Fravikeligheten som framgår av lovens § 1-3 og forskriftens § 1-2 er anvendt for dette oppdraget.
Dersom det avtales påkostninger/vedlikehold av leieobjektet som dekkes av utleier eller leietaker må partene selv avklare skattemessige konsekvenser, herunder avskrivningsregler og eventuelle justeringsregler for merverdiavgift med sine respektive revisorer eller advokater. Megler er uten ansvar for konsekvenser reglene påfører partene.
Leietaker er ansvarlig overfor alle offentlige myndigheter for at hans benyttelse av leieobjektet tilfredsstiller de til enhver tid gjeldende offentligrettslige krav i leieperioden.
Offentligrettslige krav knyttet til universell utforming skal besørges og bekostes av leietaker, når kravet i hovedsak kan tilbakeføres til leietakers særlige bruksformål eller den bransje leietaker driver i leieobjektet. Offentligrettslige krav knyttet til universell utforming, som ville blitt pålagt uavhengig av de alternative bruksformål som leieobjektet lovlig kan benyttes til, skal besørges og bekostes av utleier.
Utleie av eiendommen vil skje på alminnelige betingelser for leie av næringslokaler.
Ansvaret mellom partene foreslås regulert i tråd med etablert praksis i Meglerstandard utarbeidet av FFN.
Hvitvaskingsloven
Det følger av lov om tiltak mot hvitvasking og terrorfinansiering at meglerforetaket er forpliktet til å foreta kundetiltak av begge parter i handelen. For oppdragsgiver skjer dette i forbindelse med inngåelse av oppdraget, og for leietaker på tidspunkt for kontraktsinngåelse. Dersom slik kundekontroll ikke kan gjennomføres, er meglerforetaket pålagt å avstå fra gjennomføring av handelen. Partene er selv ansvarlig for eventuelle kostnader og ansvar dette kan medføre uten at det kan anføres et kontraktsrettslig ansvar overfor meglerforetaket.
Vedlegg til Salgsoppgaven
Vedleggene er en del av den komplette salgsoppgaven. Det er viktig at interessenter setter seg godt inn i vedleggene og kontakter megler med eventuelle spørsmål før bud inngis.
Energimerking
Utleier skal legge frem energiattest for leietaker, før avtale om utleie av bygning blir inngått. Energiklassifiseringen har en scala fra A-G, men det foreligger ikke energisertifikat på denne eiendommen pr. avtaletidspunkt.
Utleier er oppfordret til å besørge eiendommen energiklassifisert. Leietaker er selv ansvarlig for eventuelt å innhente et energisertifikat på eiendommen. Så lenge energiattest ikke foreligger bør interessenter legge til grunn at eiendommen har laveste energiklasse.
Matrikkelinformasjon
Nyttige lenker
Proaktiv Eiendomsmegling Sarpsborg
Nærområdet
Annonseinformasjon
| FINN-kode | 451884102 |
|---|---|
| Sist endret | 20. feb. 2026 06:35 |
| Referanse | 1710260202 |
Annonsene kan være mangelfulle i forhold til lovpålagt opplysningsplikt. Før bindende avtale inngås oppfordres interessenter til å innhente komplett informasjon fra meglerforetaket, selger eller utleier.



































