Bildegalleri

Bygget ligger tett på E6 ved Mosseporten
Lager og kombinasjonsslokaler ved E6
Nøkkelinfo
- Areal
- 786 m²
- Bruttoareal
- 786 m²
- Tomteareal
- 9 879 m² (eiet)
- Etasje
- 2.
- Byggeår
- 1988
- Energimerking
- G - Mørkegrønn
Type lokale
Fasiliteter
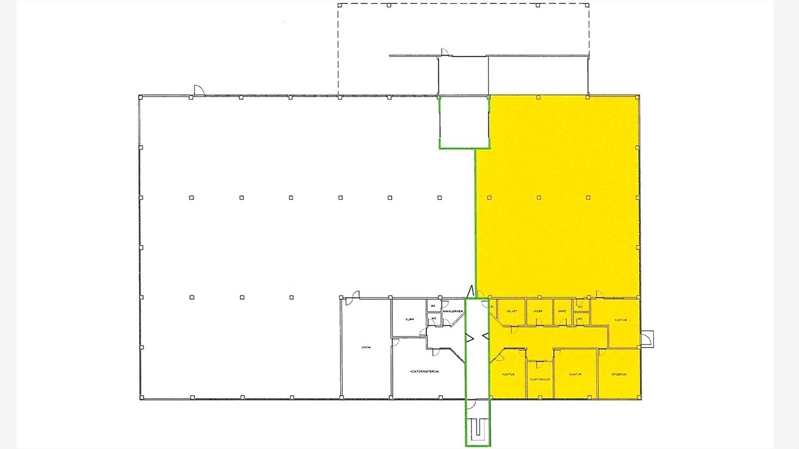
Arealspesifikasjon
2. etg: 786 kvm Lager 2. etg. nord
| Kort om eiendommen
Store kjøreporter, og fullsprinklede lagerlokaler, med noe tilhørende kontorer og showrom.
| Bebyggelse
Toetasjes logistikkbygg. Det er kjøreadkomst med lastebil i begge etasjer, med både lasteramper og innkjøring i plan. Bygget er oppført med isolert og armert betongplate på mark, bæresystem - søyler og bjelker i betong, etasjeskiller i spennarmerte hulldekkeelementer i betong, ytterveggelementer av betong sandwichkonstruksjon med innstøpt mineralullisolasjon og frilagt stein i overflaten. Tak bestående av spennarmerte DT-elementer i betong, som er utvendig isolert og tekket. Taksluk med varme innvendige nedløp for takvann. Dører, porter og vinduer i aluminium.
| Innhold
Ca. 550 m2 lager og 200 m2 kontor og sosiale rom, samt ca. 36 m2 andel felles trappehus og lastesone. Takhøyden på lageret er ca. 3,9 m.
| Beliggenhet
Beliggende på Solgard skog Industriområde, ca. 90 m fra E6. Adkomst til omradet fra Vålerveien og Bjørnåsveien. Avstand til E6 v/Mosseporten ca. 1000 m. Til sentrum med jernbane ferge osv. ca. 3 km.
| Adkomst
Avkjøring E6 Moss nord ved Mosseporten > rett gjennom rundkjøring > 250 m mot sørvest på Vålerveien > til venstre i første kryss inn på Solgaard Skog > følg veien 600 m > ta til venstre ved SEW Eurodrive > kjør 220 m > til venstre fortsatt på Solgaard Skog > følg veien 200 til enden > eiendommen på venstre side.
| Parkering
Det er rikelig uteplass til både parkering, lasting og lossing.
| Regulering
Eiendommen ligger i regulert område. Reguleringsplan med Id 173 og navn Solgaard Skog.
| Standard
Bygget har en funksjonell, men enkel standard fra byggeåret.
| Tekniske installasjoner
Lokalene er fullsprinklet.
| Beskrivelse av tomt
Tomten består av utsprengt og utfylt steingrunn som er bebygget, planert og asfaltert. Det er kjøreadkomst med lastebil rundt hele bygget.
| Oppvarming
Lageret oppvarmes med Dantherm oljebrenner for biodiesel.
| Ventilasjon
Kontorene har nytt balansert ventilasjonsanlegg med varmegjenvinning.
| Offentlig kommunikasjon
Det er god bussforbindelse i området ved Mosseporten senter, ca. 1000 m unna.
| Lovanvendelse
Ved utleie vil meglers leiekontrakt bli benyttet. Husleielovens vil bare i begrenset utstrekning kunne påberopes av Leietaker. Kontakt vårt kontor for nærmere opplysninger og gjennomlesing av avtalen.
Utleier forbeholder seg her bl.a. retten til å kunne registrere utleievirksomheten i merverdiregisteret.
Eml. §§ 4-4, 6-2, 6-7, 6-10, 7-1 og 8-8 fravikes ved dette oppdraget.
Lov om hvitvasking
Eiendomsmeglere er underlagt lov om hvitvasking. Dette innebærer at oppdragsansvarlig har plikt til å melde fra til Økokrim om eventuelle mistenkelige transaksjoner.
| Hvitvaskingsloven
Eiendomsmeglere er underlagt lov om hvitvasking og er forpliktet til å rapportere til Økokrim om mistenkelige transaksjoner. Lov om hvitvasking innehar også strenge regler om kontroll av legitimasjon fra alle parter i handelen, herunder, selger, kjøper og fullmektiger for disse.
Matrikkelinformasjon
Visning
Ta kontakt for å avtale visning.Metra Næringsmegling AS
Nærområdet
Annonseinformasjon
| FINN-kode | 451645674 |
|---|---|
| Sist endret | 18. feb. 2026 12:23 |
| Referanse | MTRA1.21204 |
Annonsene kan være mangelfulle i forhold til lovpålagt opplysningsplikt. Før bindende avtale inngås oppfordres interessenter til å innhente komplett informasjon fra meglerforetaket, selger eller utleier.



















