Bildegalleri

Unik mulighet! Næringslokaler i ærverdige Bothnergården midt i Harstad sentrum
Nøkkelinfo
- Areal
- 100 - 1 000 m²
Type lokale
Om eiendommen
Velkommen til Bothnergården – et unikt stykke Harstad-historie i moderne transformasjon!
Eiendommen, som sammen med Meierigården utgjør hjertet av Harstads mest sentrale lokasjon, er nå inne i en utviklingsfase som åpner opp for en rekke muligheter for både etablering av butikker, serveringssteder, kontorer og helse- og velværetilbud. Her får du muligheten til å være en del av et dynamisk og moderne bymiljø, som kombinerer byens rike historie med fremtidens behov.
Gateplan med inngang fra torget
Området huser allerede en kafé og et apotek. Det er ledig et lokale, som er ideelt for etablering av serveringssted, med mulighet for uteservering direkte mot torget.
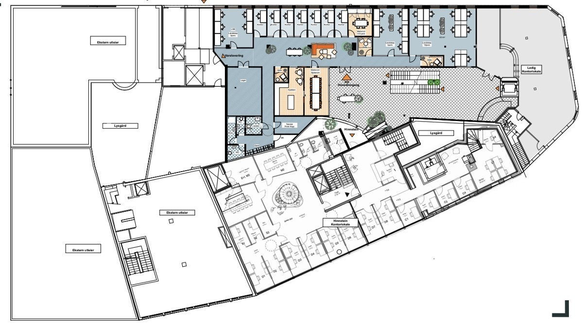
2. og 3. etasje – Kontor, helse og tjenesteyting:
I andre etasje er det rådgivende ingeniørfirmaet Hinnstein AS allerede i ferd med å etablere seg med ca. 40 kontorarbeidsplasser. Videre plan er at etasjen skal bygges om for å gi plass til flere kontorlokaler – eventuelt også tilpassede lokaler for helse- og velværebaserte konsepter.
I tredje etasje planlegges det utvikling av nye, moderne kontorlokaler, inkludert et større kontorfellesskap som vil være ideelt for små og mellomstore bedrifter. Her er tanken at det også skal legges til rette for møterom, felles lunsjkantine, samt lounge- og eventarealer – perfekt for både faglig samarbeid og sosiale samlinger.
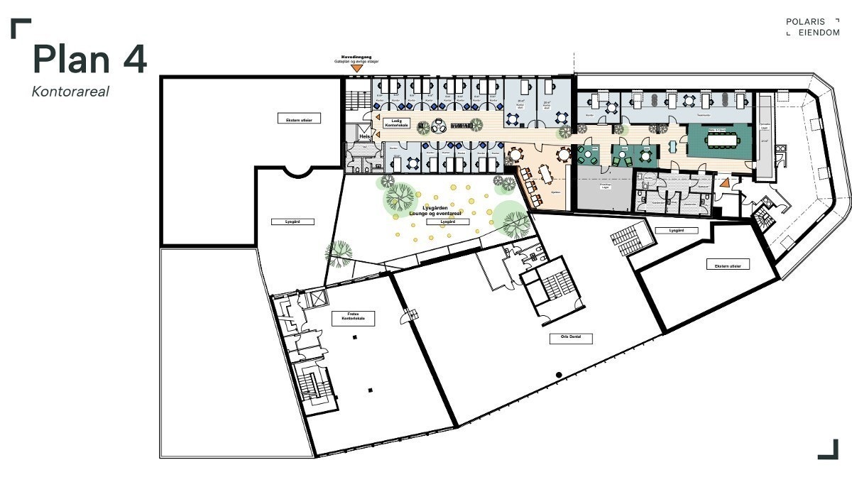
4. etasje
Det finnes også attraktive muligheter for leie av kontorlokaler i 4. etasje. Arealet benyttes i dag til kontorvirksomhet med flere møterom, men kan enkelt tilpasses og ombygges etter leietakers behov.
Vi søker engasjerte aktører innen handel, servering, kontor, helse og tjenesteyting som ønsker å ta del i byens mest spennende utviklingsprosjekt. Ta kontakt i dag for visning og uforpliktende samtale om hvordan ditt konsept kan passe inn i fremtidens Harstad sentrum.
Se bilder og foreløpige skisser utarbeidet av interiørarkitekt Cicilie Aune.
Beliggenhet
Bothnergården har en av Harstads mest attraktive og sentrale beliggenheter, med direkte adkomst fra byens torg og kort vei til kollektivtransport, butikker, serveringssteder og øvrige servicetilbud. Eiendommen ligger i gangavstand til både bussterminal, havn og parkeringshus, noe som gjør det enkelt for både ansatte, kunder og samarbeidspartnere å ta seg frem – enten de kommer til fots, med bil eller offentlig transport.
Med sin sentrale plassering i bybildet er Bothnergården et naturlig midtpunkt for handel, kontor og helserelaterte tjenester – og et strategisk valg for aktører som ønsker synlighet og tilgjengelighet i Harstads mest pulserende område.
Tilknyttet Bothnergården er også et nybygget parkeringshus og treningssenteret Feel24 (Norges største Feel24-senter).
Innhold
Matrikkelinformasjon
Visning
Arctic Eiendom Harstad AS
Hugo Kjelseth
Nærområdet
Annonseinformasjon
| FINN-kode | 450585272 |
|---|---|
| Sist endret | 11. feb. 2026 10:50 |
| Referanse | Bothnergården |
Annonsene kan være mangelfulle i forhold til lovpålagt opplysningsplikt. Før bindende avtale inngås oppfordres interessenter til å innhente komplett informasjon fra meglerforetaket, selger eller utleier.









