Bildegalleri

Bildøybakken - presentert av Stephane B. Trotta i EiendomsMegler 1 Næringseiendom
Kombinasjonsbygg med utearealer på Kolltveit
Nøkkelinfo
- Areal
- 120 - 470 m²
- Bruttoareal
- 470 m²
- Tomteareal
- 3 274 m² (eiet)
Type lokale
Fasiliteter
Arealspesifikasjon
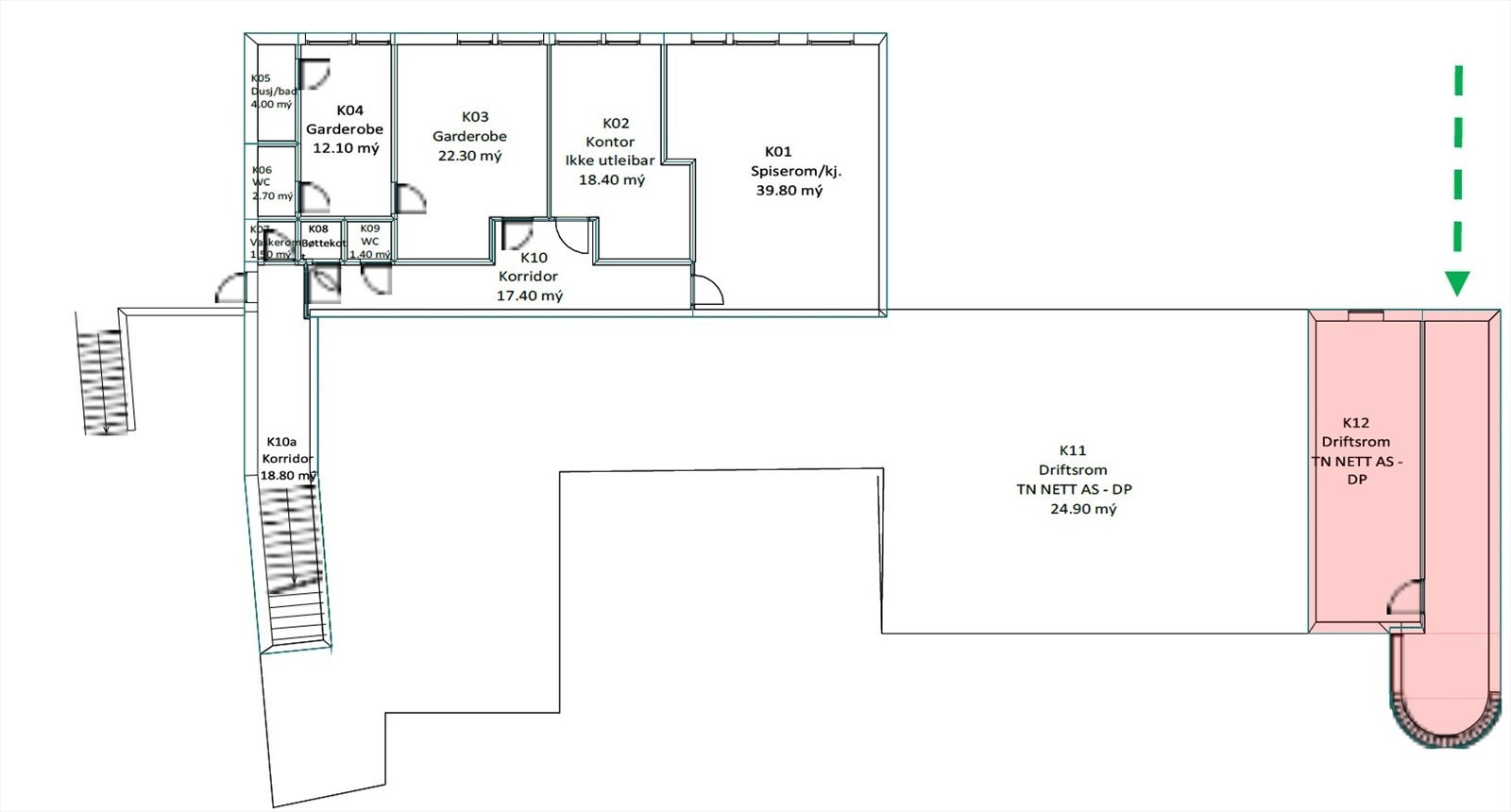
-1. etg: 120 kvm Kontor
1. etg: 350 kvm Lager
Kort om eiendommen
Kombinasjonseiendom over to etasjer med gode utearealer. Eiendommen har primært lager på gateplan og kontor i underetasje.
Beliggenhet
Eiendommen ligger i Bildøybakken på Straume, ved Kolltveit. Eiendommen ligger i krysset ved innkjøringen til Lie. Ca. 2,5 km til Bussterminalen på Straume og ca. 10 km til CCB basen på Ågotnes.
Innhold
Kombinasjonseiendom over to etasjer med gode utearealer. Eiendommen har primært lager på gateplan og kontor i underetasje.
1. etg. Lager, ca. BTA 350 m²: inneholder i dag flere rom av forskjellig størrelse. Enkelte vegger kan rives slik at det kan bli færre og større rom. Takhøyde ca. 4 meter. Det er ikke port/rulleport inn til lokalene.
U. etg. Kontor, ca. BTA 120 m²: inneholder i dag 2 kontor, spiserom, toalett og garderober.
Standard
Lokalene har lav standard og vil bli pusset opp i samarbeid med ny leietaker om ønskelig.
Oppvarming
Elektrisk oppvarming.
Parkering
Parkering på eiendommen.
Offentlig kommunikasjon
Ca. 2,5 km til Straume Bussterminal med gode bussforbindelser til Øygarden og Bergen.
Overtakelse
Etter nærmere avtale.
Sentrale lover
Oppdraget reguleres i henhold til Lov om eiendomsmegling av 29.06.2007 nr. 73. Fravikeligheten som framgår av lovens § 1-3 og forskriftens § 1-2 er anvendt for dette oppdraget.
Dersom det avtales påkostninger/vedlikehold av leieobjektet som dekkes av utleier eller leietaker må partene selv avklare skattemessige konsekvenser, herunder avskrivningsregler og eventuelle justeringsregler for merverdiavgift med sine respektive revisorer eller advokater. Megler er uten ansvar for konsekvenser reglene påfører partene.
Leietaker er ansvarlig overfor alle offentlige myndigheter for at hans benyttelse av leieobjektet tilfredsstiller de til enhver tid gjeldende offentligrettslige krav i leieperioden.
Offentligrettslige krav knyttet til universell utforming skal besørges og bekostes av leietaker, når kravet i hovedsak kan tilbakeføres til leietakers særlige bruksformål eller den bransje leietaker driver i leieobjektet. Offentligrettslige krav knyttet til universell utforming, som ville blitt pålagt uavhengig av de alternative bruksformål som leieobjektet lovlig kan benyttes til, skal besørges og bekostes av utleier.
Utleie av eiendommen vil skje på alminnelige betingelser for leie av næringslokaler.
Ansvaret mellom partene foreslås regulert i tråd med etablert praksis i Meglerstandard utarbeidet av FFN.
Hvitvaskingsregelverk
I henhold til Lov av 6. mars 2009 nr. 11 om tiltak mot hvitvasking og terrorfinansiering (Hvitvaskingsloven) er megler pliktig å gjennomføre kundetiltak av både oppdragsgiver og leietaker.
Dette innebærer blant annet plikt for meglerforetaket til å bekrefte identiteten til leietaker på grunnlag av gyldig legitimasjon. Samt plikt til å foreta kontroll av eventuelle reelle rettighetshavere. Der leietaker opptrer i henhold til fullmakt må også fullmaktsgivers identitet bekreftes på grunnlag av gyldig legitimasjon. Kundetiltak av leietaker skal senest skje på kontraktsmøtet.
Dersom leietaker opptrer i henhold til fullmakt, må fullmakten fremlegges samtidig som kontrakt inngås. Dersom leietaker er en juridisk person (AS mv.) plikter leietaker å fylle ut og returnere egne kundekontrollskjemaer før kontraktsmøtet i tillegg til å fremlegge firmaattest.
Dersom kundetiltak ikke kan gjennomføres kan ikke meglerforetaket bistå med gjennomføring av oppdraget. Meglerforetaket er videre forpliktet til å rapportere mistenkelige avtaleinngåelser til Økokrim. Med mistenkelig avtaleinngåelse menes en avtale som mistenkes å involvere utbytte fra straffbar handling eller som skjer som ledd i terrorfinansiering. Manglende mulighet for kundetiltak kan også være et forhold som gjør oppdraget mistenkelig. Det kan ikke gjøres ansvar gjeldende mot meglerforetaket som følge av at meglerforetaket overholder sine plikter etter Hvitvaskingsloven.
Matrikkelinformasjon
Nyttige lenker
EiendomsMegler 1 Næring Bergen
Nærområdet
Annonseinformasjon
| FINN-kode | 450290090 |
|---|---|
| Sist endret | 09. feb. 2026 12:20 |
| Referanse | 2902260004 |
Annonsene kan være mangelfulle i forhold til lovpålagt opplysningsplikt. Før bindende avtale inngås oppfordres interessenter til å innhente komplett informasjon fra meglerforetaket, selger eller utleier.














