Bildegalleri

Kontorene ligger i et markant hjørnebygg med god synlighet mot gate. Fasaden er klassisk og velholdt.
Storgata - Svært sentralt og flott kontorlokale for leie. Klart for innflytting
Nøkkelinfo
- Areal
- 310 m²
- Etasje
- 2.
- Overtakelse
- Etter avtale
Type lokale
Fasiliteter
Om eiendommen
Om eiendommen
Eiendommen ligger sentralt i Storgata, kun få minutters gange fra Oslo S med tilgang til tog, buss, trikk og øvrig kollektivtransport. Området har et bredt utvalg av serveringssteder og servicetilbud, og er lett tilgjengelig for både ansatte og besøkende.
Om lokalet
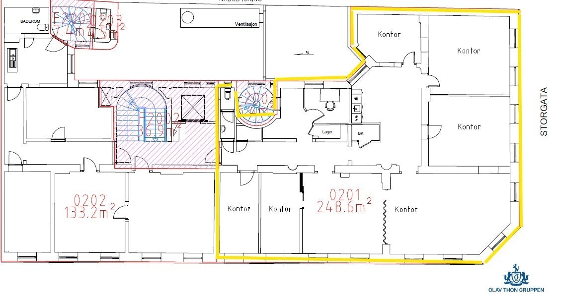
Kontorlokalet er på 248,6 kvm netto / 309,5 kvm brutto og fremstår som innflyttingsklart. Lokalene har en fleksibel planløsning bestående av åpent kontorlandskap, cellekontorer/møterom samt kjøkkensone. Bygget er utstyrt med heis og ventilasjonsanlegg som bidrar til et godt inneklima. Det er også mulighet for sykkelparkering i bakgård.
Fasiliteter
Heis
Ventilasjon
- Kjøkkensone
Møterom og cellekontorer
Åpent landskap
Mulighet for sykkelparkering
Lokalene ligger i byggets 2. etasje og fremstår som lyse og funksjonelle. Planløsningen er fleksibel og gir gode muligheter for både åpne arbeidsflater og mer skjermede soner, avhengig av behov. Gode lysforhold og en praktisk utforming bidrar til en effektiv og komfortabel arbeidshverdag. Lokalene kan tilpasses leietakers behov.
Beliggenhet
Eiendommen har inngang fra Pløens gate og ligger svært sentralt til i Oslo sentrum. Det er kun få minutter til Jernbanetorget og Oslo S. Det er flere p-hus i nærheten og trikk- og bussholdeplass i kort gåavstand fra bygget.
Adkomst
Visning
Ta kontakt for å avtale visning.
Thon Eiendom
Hans Kristian Sørum
Nærområdet
Annonsene kan være mangelfulle i forhold til lovpålagt opplysningsplikt. Før bindende avtale inngås oppfordres interessenter til å innhente komplett informasjon fra meglerforetaket, selger eller utleier.












