Bildegalleri

S.NR 12
Fleksible kontorlokaler på Godeset - leies samlet eller separat
Nøkkelinfo
- Areal
- 122 - 244 m²
- Etasje
- 2.
- P-plasser
- 6
Type lokale
Fasiliteter
Om eiendommen
Fleksible kontorlokaler på Godeset – leies samlet eller separat
I Godesetdalen 10 tilbys nå to tilstøtende kontorseksjoner i 2. etasje, regulert til kontorformål / enkel drift. Lokalene kan leies hver for seg eller slås sammen etter behov. Fleksible løsninger og gunstig leie.
Om lokalene
Begge seksjonene ligger i 2. etasje (uten heis) og har separate innganger. Lokalene er regulert til kontorformål / enkel drift og egner seg godt for ulike typer virksomhet.
Det kan tilrettelegges etter nærmere avtale.
Det er ikke anledning til organisasjonsdrift, foreningsvirksomhet eller tilsvarende bruk, jf. sameiets vedtekter.
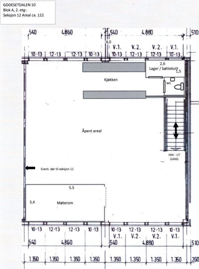
Seksjon 12 – modernisert kontorløsning (fornyet 2023)
122kvm
Seksjon 12 ble fornyet i 2023 og fremstår i moderne og funksjonell stand. Lokalet består hovedsakelig av et åpent kontorlandskap med tilhørende lukket møterom, samt kjøkkenfasiliteter og WC.
Dette er et effektivt og fleksibelt lokale som passer godt for teamarbeid, konsulentvirksomhet eller prosjektbasert drift.
Seksjon 11 – klassisk kontorinndeling
122 kvm
Seksjon 11 har et noe mer tradisjonelt uttrykk og er basert rundt inndeling av kontorer. Lokalet passer godt for virksomheter som har behov for cellekontorer, rolige arbeidsplasser eller tydelig avdeling mellom ansatte.
Mulighet for sammenslåing
Seksjonene ligger vegg i vegg og kan etter nærmere avtale slås sammen til ett større kontorareal. Dette gir god fleksibilitet for leietakere som ønsker mulighet for vekst eller større sammenhengende areal.
Areal og plantegninger
Plantegninger for begge seksjoner er vedlagt i PDF-format. Bilder av lokalene er tydelig merket med respektive seksjonsnummer.
Leieforhold
Leie av én eller begge seksjoner vurderes
Øvrige vilkår etter nærmere avtale
Kontakt
Ta gjerne kontakt for mer informasjon, visning eller en uforpliktende prat om tilpasninger og leiemuligheter.
Beliggenhet
I Godesetdalen 10 holder flere etablerte aktører til, herunder kontor- og investeringsselskaper, håndverks- og servicevirksomheter, samt treningssenter og serveringstilbud. Området fremstår som et velfungerende og profesjonelt næringsmiljø.
Adkomst
Standard
Visning
Ta kontakt for å avtale visning.Nærområdet
Annonseinformasjon
| FINN-kode | 449663101 |
|---|---|
| Sist endret | 11. feb. 2026 11:57 |
| Referanse | Seksjon 11 og 12 |
Annonsene kan være mangelfulle i forhold til lovpålagt opplysningsplikt. Før bindende avtale inngås oppfordres interessenter til å innhente komplett informasjon fra meglerforetaket, selger eller utleier.









