Bildegalleri

Hovedbilde, sammensatt.jpg
Bragernes - Sentralt og attraktivt hjørnelokale på gateplan
Nøkkelinfo
- Areal
- 221 m²
- Bruttoareal
- 221 m²
- Tomt
- Eiet
- Etasje
- 1.
- Byggeår
- 1867
Type lokale
Kort om eiendommen
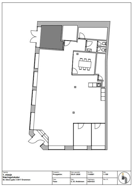
Lokalet ligger i første etasje i et synlig hjørnebygg i Sankt Olavs gate 3, midt i Drammen sentrum. Med 221 kvm BTA og store vindusflater mot gateplan har lokalet gode eksponeringsmuligheter for virksomheter som ønsker synlighet i bybildet. Tidligere ble arealet brukt av Dialog Eiendomsmegling, og planløsningen inneholder en kombinasjon av åpen arbeidsflate, møterom, resepsjonsområde og kjøkken. Beliggenheten gir kort vei til handel, service og kollektivtransport, noe som gjør lokalene godt egnet både til kontor og forretningsvirksomhet.
Felleskostnader - Estimert til kr. 640 pr kvm.
Beliggenhet
Eiendommen ligger i Sankt Olavs gate 3, midt i Drammen sentrum. Området fungerer som et etablert forretningsstrøk og en av byens mest trafikkerte handlegater, med nærhet til et bredt utvalg av servicefunksjoner, spisesteder samt handels- og kontorvirksomheter. Eiendommen har en synlig og profesjonell plassering med kort gangavstand til både Bragernes torg og elvepromenaden.
Innhold
Romslig åpen kontor-/arbeidsflate
Resepsjons- og venteområde
Møterom
Stillerom/telefonrom
Kjøkken med hvitevarer
To toaletter
Mulighet for å leie lager i kjeller rett under lokalene, med enkel trappeforbindelse.
Standard
Lokalene holder en moderne og velholdt standard. Lyse overflater, store vinduer og gode belysningsløsninger gir et trivelig arbeidsmiljø.
Adkomst
Lokalet har adkomst direkte fra gateplan i Sankt Olavs gate. Det er flere offentlige parkeringsmuligheter i gatene rundt bygget, både langs vei og på nærliggende korttidsplasser. Eiendommen er lett tilgjengelig til fots, med sykkel og med bil.
Offentlig kommunikasjon
Drammen stasjon ligger rundt 10 minutters gange unna og har hyppige togavganger. Bussterminalen, som ligger like ved stasjonen, tilbyr både lokale og regionale bussforbindelser. Det går også flere lokale busslinjer i gatene nær eiendommen. Dette gjør det enkelt for både ansatte og besøkende å komme seg til og fra området.
Matrikkelinformasjon
Visning
Ta kontakt for å avtale visning.PROPTIMIZE AS
Nærområdet
Annonseinformasjon
| FINN-kode | 449630033 |
|---|---|
| Sist endret | 06. feb. 2026 07:24 |
| Referanse | PMZ1.262 |
Annonsene kan være mangelfulle i forhold til lovpålagt opplysningsplikt. Før bindende avtale inngås oppfordres interessenter til å innhente komplett informasjon fra meglerforetaket, selger eller utleier.










