Bildegalleri

Dronebilde
Store, moderne og fine kontorlokaler i sentrum til leie. Magisk utsikt mot Kongsparken.
Nøkkelinfo
- Areal
- 717 m²
- Bruttoareal
- 717 m²
- Tomt
- Eiet
Type lokale
Fasiliteter
Kort om eiendommen
Eiendommen ligger sentralt i Tromsø sentrum og inneholder flere større bedrifter samt noen avdelinger fra Tromsø Kommune.
Standard
Lokalene holder god standard, og er renovert for noen år siden. Kan tilpasses nye leietakeres ønsker og behov.
Beliggenhet
På hjørnet av Vestregata og Fr. Langes gate, i 2 etasje ligger moderne lokaler tilgjengelig til leie
Adkomst
Inngang fra hovedinngangen i Vestregata, rett ved Sonans.
Parkering
Huseier kan tilby parkering i bakgården eller i fjellet etter behov.
Offentlig kommunikasjon
I sentrum har du tilgang til alle byens fasiliteter
Innhold
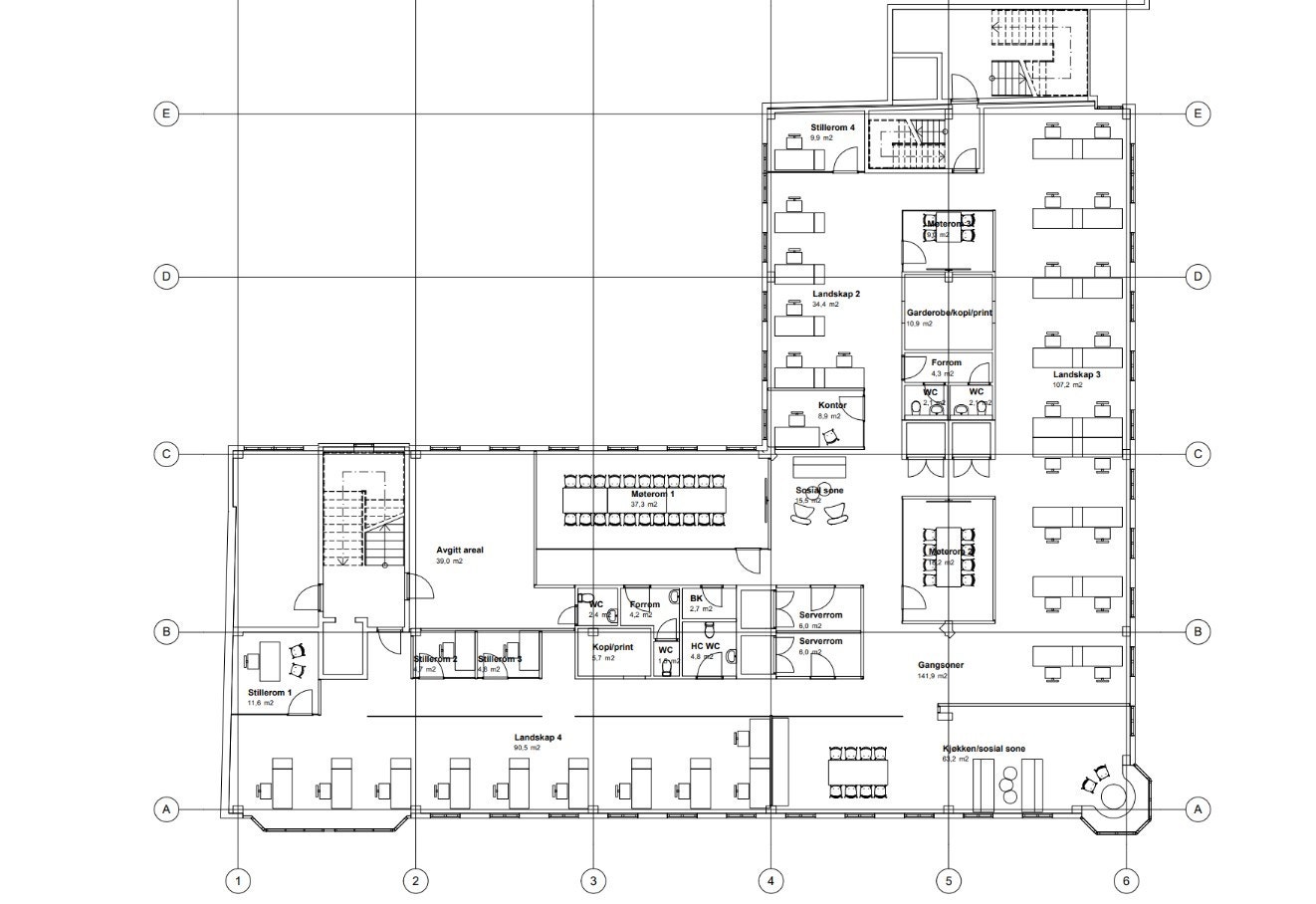
Her er det 3 møterom, 4 stillerom, 4 wc, 1 hc wc, garderober, heis, universell tilgjengelighet, lite landskap på 35kvm, 2 store landskap på ca 100 kvm, stort kjøkken med spiserom på ca 65 kvm, samt flere sosiale soner.
Matrikkelinformasjon
Visning
Ta kontakt for å avtale visning.Tiger næringsmegling
Nærområdet
Annonseinformasjon
| FINN-kode | 449530617 |
|---|---|
| Sist endret | 04. feb. 2026 14:38 |
| Referanse | TIG2.267 |
Annonsene kan være mangelfulle i forhold til lovpålagt opplysningsplikt. Før bindende avtale inngås oppfordres interessenter til å innhente komplett informasjon fra meglerforetaket, selger eller utleier.










