Bildegalleri

Attraktivt og moderne kontorlokale til leie i Kvernhuset i historiske Møllebyen - topp fasiliteter
Nøkkelinfo
- Areal
- 306 m²
- Bruttoareal
- 306 m²
- Tomteareal
- 2 832 m² (eiet)
- Etasje
- 2.
- Byggeår
- 2002
Type lokale
Fasiliteter
| Kort om eiendommen
Er du på jakt etter moderne og fleksible kontorlokaler i et profesjonelt og inspirerende miljø? Attraktive og nyoppussede kontorlokaler for leie, perfekt for både små og etablerte virksomheter. Lokalet er beliggende i et sentralt område midt i Moss sentrum med enkel tilgang til offentlig transport, parkeringsmuligheter og næringspuls.
- Sentralt i Moss sentrum
- Kort gangavstand til alle byens fasiliteter
- Lokalene har lett tilgjengelighet med både tog, buss og bil
- Det finnes mulighet til å leie parkeringsplass i nærheten av lokalet
- Kantinedrift med mulighet for bruk av felles kantine på bygget.
| Innhold
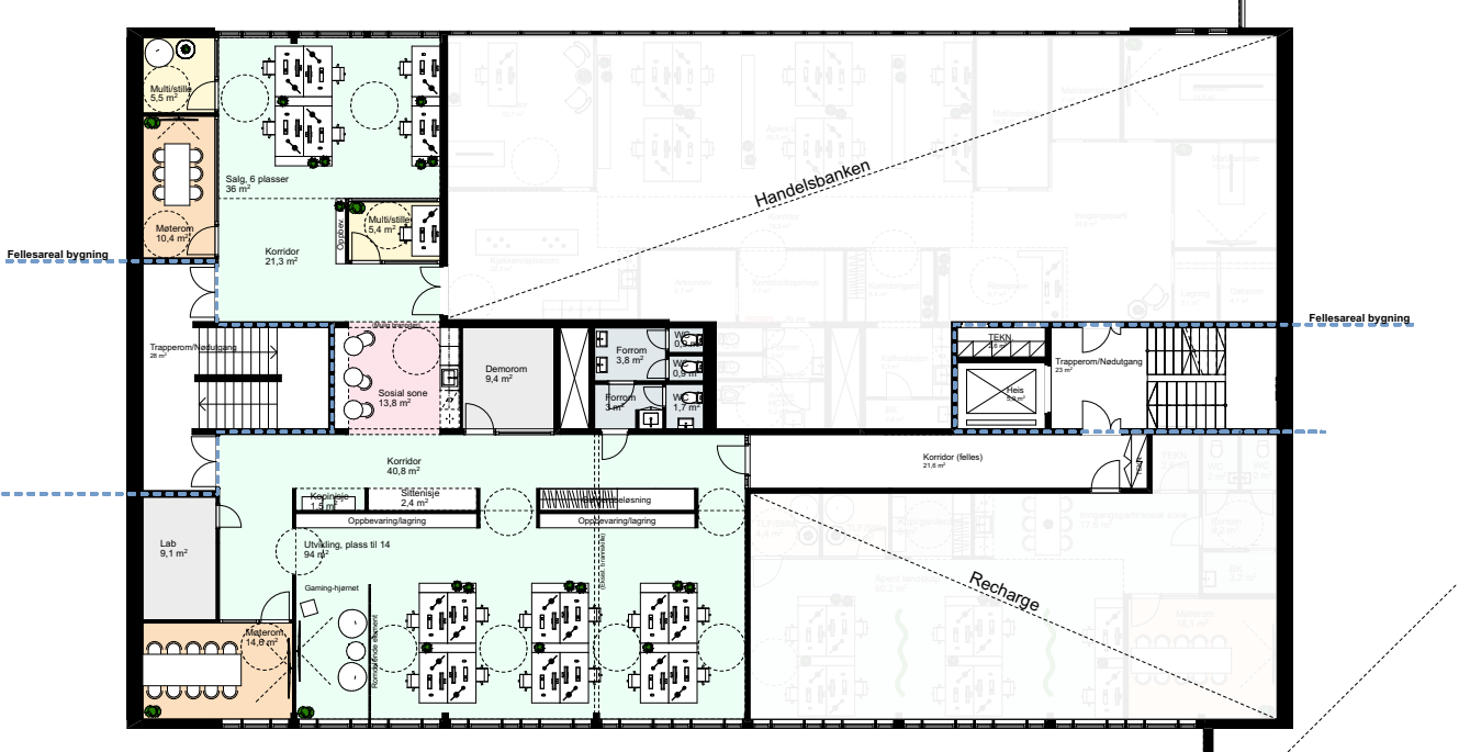
Kontorlokale utgjør totalt ca. 306 kvm tilpasset både små og større bedrifter. Det tilbyr både åpne kontorlandskap og muligheter for egne, lukkede kontorer. Fasilitetene inkluderer møterom, moderne kjøkken og god intern infrastruktur. Store vindusflater med utsikt utover Mosseelva og den nye bydelen på Verket, og som gir rikelig med naturlig lys og et godt arbeidsmiljø.
Moderne fasiliteter som raskt internett, klimaanlegg, og god ventilasjon.
| Diverse
Ta kontakt i dag for mer informasjon eller for å avtale en visning! Gjør ditt neste kontor til et inspirerende og funksjonelt arbeidsmiljø. Vi hjelper deg gjerne med å finne den perfekte løsningen for din virksomhet.
| Standard
Eiendommen holder høy standard.
| Lovanvendelse
Ved utleie vil meglers leiekontrakt bli benyttet. Husleielovens vil bare i begrenset utstrekning kunne påberopes av Leietaker. Kontakt vårt kontor for nærmere opplysninger og gjennomlesing av avtalen.
Utleier forbeholder seg her bl.a. retten til å kunne registrere utleievirksomheten i merverdiregisteret.
Eml. §§ 4-4, 6-2, 6-7, 6-10, 7-1 og 8-8 fravikes ved dette oppdraget.
Lov om hvitvasking
Eiendomsmeglere er underlagt lov om hvitvasking. Dette innebærer at oppdragsansvarlig har plikt til å melde fra til Økokrim om eventuelle mistenkelige transaksjoner.
Matrikkelinformasjon
Visning
Ta kontakt for å avtale visning.Metra Næringsmegling AS
Nærområdet
Annonseinformasjon
| FINN-kode | 449528110 |
|---|---|
| Sist endret | 07. feb. 2026 04:00 |
| Referanse | MTRA1.2462 |
Annonsene kan være mangelfulle i forhold til lovpålagt opplysningsplikt. Før bindende avtale inngås oppfordres interessenter til å innhente komplett informasjon fra meglerforetaket, selger eller utleier.


















