Bildegalleri

Fasade lager
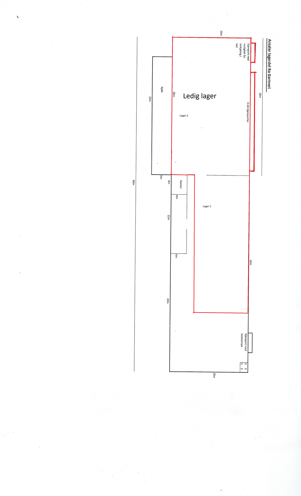
Lager ved E-18 Stokke.
Nøkkelinfo
- Areal
- 1 120 m²
- Bruttoareal
- 1 120 m²
- Tomt
- Eiet
- Overtakelse
- Etter nærmere avtale.
Type lokale
Beliggenhet
Eiendommen har en meget god og sentral beliggenhet i Stokke, Sandefjord kommune med E-18 umiddelbar nærhet (ca. 500 m, avkjøring Borgeskogen/Stokke). Avstand Stokke sentrum ca. 2 km, Sandefjord Lufthavn Torp ca. 7 km, Larvik Havn ca. 28 km.
Inneholder
Lager:
Lageret består av 2 sammenhengende haller med skyvedør mellom hallene. Samlet lagerareal ca. 1.120 kvm. samt kontor ca. 161 kvm.
Lager 1: Areal 442 kvm.
Takhøyde 5,5 m opp til drager, fri takhøyde 6,5 m.
1 kjøreport/rampe.
1 stk. lagerkontor kan medfølge etter nærmere avtale.
Lager 2: Areal: 678 kvm.
Takhøyde 3,5 m opp til drager, fri takhøyde 4,6 m.
6 stk. kjøreporter med rampe, 1 stk. kjøreport med direkte innkjøring fra bakkeplan.
Utgang til kontorfløy.
Kontorer:
Areal: ca. 161 kvm.
5 stk. cellekontorer, møterom, sosial sone med kjøkken og spiseplass, hc-toalett med dusj, 2 stk. toaletter. Det er egen separat inngang til kontorfløyen.
Parkering
Parkering på nærmere anvist sted.
Diverse
Finner du ikke det objektet du leter etter?
Ta kontakt med oss direkte da vi har flere ulike typer objekter som ikke er annonsert.
I tillegg er du velkommen til å besøke vår hjemmeside på www.q4.no
Bebyggelse
Lokalet ligger i tilknytning til Ra Gartneri i Stokke.
Matrikkelinformasjon
Visning
Ta kontakt for å avtale visning.Q4 Næringsmegling AS
Nærområdet
Annonsene kan være mangelfulle i forhold til lovpålagt opplysningsplikt. Før bindende avtale inngås oppfordres interessenter til å innhente komplett informasjon fra meglerforetaket, selger eller utleier.












