Bildegalleri

Kronprinsens gate 1
VIKA v/Nationaltheateret: Hyggelig kontorlokaler til leie, ledig areal på 132 og 350 kvm BTA. Meget god beliggenget.
Nøkkelinfo
- Areal
- 132 - 482 m²
- Tomt
- Eiet
Type lokale
Fasiliteter
Arealspesifikasjon
1. etg: 132 kvm Kontor
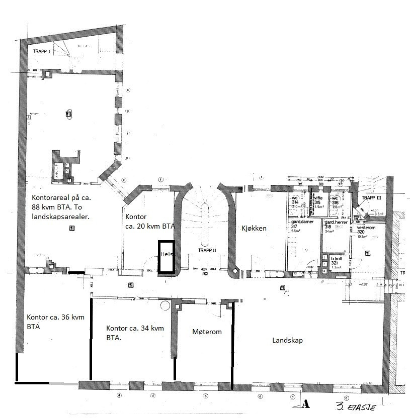
3. etg: 350 kvm Kontor
Kort om eiendommen
Bygården er fra 1898 og ble tegnet av arkitekten Kristen Rivertz. Bygget går over 5. etasjer. Det er et velholdt bygg som er blitt renovert både innvendig og utvendig de senere år.
Stiluttrykket på bygget er svært sammensatt, med en enkel nyrenessanse i hovedtrekkene, og middelalderske motiver i detaljene.
Diverse:
* Pen fasade.
* Store vindusflater.
* Personheis.
* Fibertilknytning.
* Felles sykkelparkering i bakgård.
Beliggenhet
Kronprinsens gate 1 har en svært attraktiv og sentral beliggenhet i Oslo sentrum, i det etablerte og populære området Ruseløkka/Vika. Eiendommen ligger midt i et av byens mest ettertraktede forretningsområder, med nærhet til både offentlige institusjoner, kulturtilbud og sentrale næringsaktører.
Området kjennetegnes av en dynamisk blanding av klassisk bybebyggelse og moderne byliv, med et bredt utvalg av caféer, restauranter, servicetilbud og handel i umiddelbar nærhet. Kort gangavstand til Karl Johans gate, Aker Brygge og Oslofjorden gjør området attraktivt både for ansatte, kunder og besøkende.
Kollektivtilbudet er svært godt, med Nationaltheatret stasjon kun få minutters gange unna. Her finnes tilgang til tog, T-bane, trikk og buss, noe som gir enkel adkomst både lokalt og regionalt. Området er også lett tilgjengelig med sykkel og til fots.
Adkomst
Se vedlagt kart.
Parkering
Det er mulig å leie parkering i Europark sitt parkeringshus i Arbins gate eller i Q-park sitt parkeringshus i Haakon VIIs gate.
Ellers gateparkering.
Inneholder
Vi har følgende ledige arealer:
1.etg. ca. 132 kvm BTA.: Består av 3 romslige kontorer for 2-4 personer, kjøkken, møterom og toalett.
3. etg. ca. 350 BTA.: Består i dag av åpent landskap med plass til ca. 6-9 arbeidsplasser, to kontorer, møterom, samt tre landskapsarealer med plass til ca. 4 arbeidsplasser evt. passer også disse rommene godt til møterom eller showroom. I tillegg er det kjøkken m/spiseplass og 3 toaletter hvor av et med dusj.
Lokalene er lyse med store vindusflater som gir godt arbeidslys.
Planløsningen kan endres ved behov og tilpasses etter leietakers ønsker.
Bygget holder en god standard, da det er blitt renovert utvendig og innvending i de senere år. Nyere brannvarslingsanlegg, alarm og calling med fjernstyrt port åpner. Nyere heis i gården. Strøm etter egen måler.
Matrikkelinformasjon
Visning
Ta kontakt for å avtale visning.
AREALPARTNER NÆRINGSMEGLING AS
Nærområdet
Annonseinformasjon
| FINN-kode | 449316076 |
|---|---|
| Sist endret | 16. feb. 2026 04:00 |
| Referanse | APN1.2610 |
Annonsene kan være mangelfulle i forhold til lovpålagt opplysningsplikt. Før bindende avtale inngås oppfordres interessenter til å innhente komplett informasjon fra meglerforetaket, selger eller utleier.



























