Bildegalleri

www.foynkvartalet.com - Fasade Storgaten
Tønsberg sentrum| Foynkvartalet - Svært unike etableringsmuligheter!
Nøkkelinfo
- Areal
- 92 - 255 m²
- Etasje
- 1.
- Renovert år
- 2025
- Overtakelse
- 2026
Type lokale
Om eiendommen
Næringslokaler i historiske bygårder – Tønsberg sentrum
Tre ærverdige bygårder rehabiliteres og tilbakeføres til sin opprinnelige prakt. Nå har du en unik mulighet til å etablere forretning i attraktive, historiske omgivelser midt i Tønsberg sentrum.
Kun 2 lokaler ledig
• Storgaten 26: 92 kvm BTA
• Storgaten 28: 143 kvm BTA
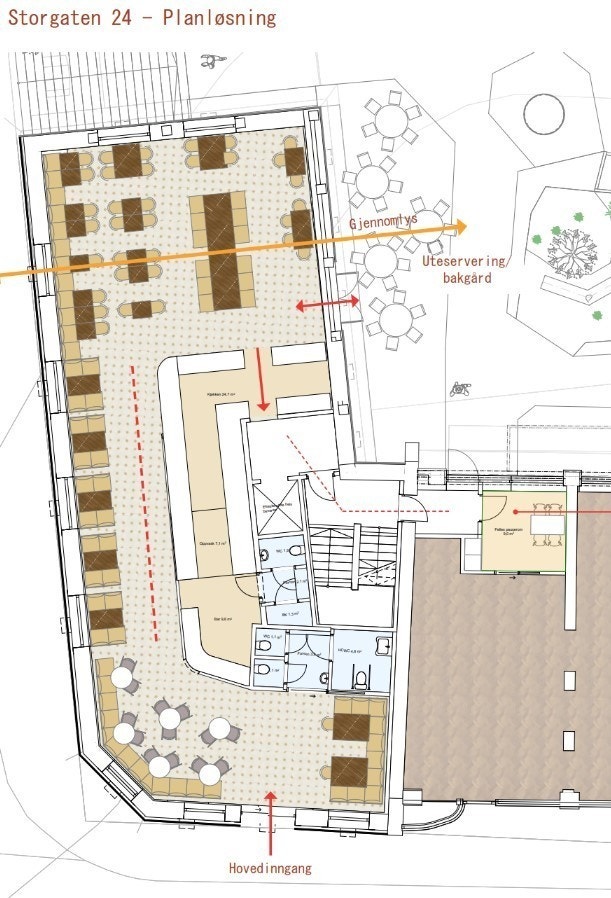
Storgaten 24 – Servering (UTLEID)
Ca. 260 kvm BTA
Stort serveringslokale med inngang fra Storgaten og bakgård. Gjennomgående lokale med hjørneplassering og svært god eksponering.
Foreslått åpen barløsning mot gaten.
Ærverdig fasade i sten og pusset mur.
Storgaten 26 – To lokaler
126 kvm BTA (UTLEID)
92 kvm BTA (LEDIG)
Gjennomgående lokaler med hovedinngang fra Storgaten, nær Tønsberg torg.
Adskilt av en passasje som leder inn i Foynkvartalet – et naturlig ferdselsårer for beboere og ansatte.
Pusset murfasade og store vinduer gir god synlighet.
Storgaten 28 – To lokaler
154 kvm BTA (UTLEID)
143 kvm BTA (LEDIG)
Romslige butikklokaler med nærhet til Foyn og Tønsberg torg.
Store vindusflater gir rikelig med lys.
Klassisk tre-fasade.
Foynkvartalet – et levende bykvartal
I området finnes allerede møbelbutikk, optiker, bakeri/café, klesbutikk, frisør, sushi, kontorer og dagligvare (KIWI).
Når ferdigstilt vil Foynkvartalet romme:
• ca. 9.500 kvm bolig (ca. 95 boenheter)
• ca. 4.600 kvm næring
• ca. 3.500 kvm parkering
Kvartalet skal styrke Tønsberg sentrum og binde sammen bryggeområdet, torvet og øvre bydel.
Estimert ferdigstillelse: Ila 2026
Her kan du skape et unikt forretningskonsept i et av byens mest spennende områder.
Ta kontakt for spørsmål eller prospekt.
FOLKSOM AS // www.folksom.no
Vi har tro på verdiskapning gjennom å være et godt vertskap med lokal tilstedeværelse, kunnskap, kreativitet og drivkraft til å gjøre noe nytt og annerledes som øker verdi og attraktivitet for lokalsamfunnet.
Matrikkelinformasjon
Visning
Ta kontakt for å avtale visning.Nyttige lenker
Folksom AS
Nærområdet
Annonsene kan være mangelfulle i forhold til lovpålagt opplysningsplikt. Før bindende avtale inngås oppfordres interessenter til å innhente komplett informasjon fra meglerforetaket, selger eller utleier.











