Bildegalleri

Fasade, arealene ligger i 3. etasje mot nordvest, nordøst og sørøst
Kontorlokale/kombinasjonslokale med fantastisk eksponering - fra 200- 900 kvm
Nøkkelinfo
- Areal
- 200 - 900 m²
- Etasje
- 3.
Type lokale
Kontor
Produksjon/Industri
Lager/Logistikk
Kombinasjonslokaler
Verksted
Garasje/Parkering
Fasiliteter
Aircondition
Garasje/P-plass
Heis
Kantine
Om eiendommen
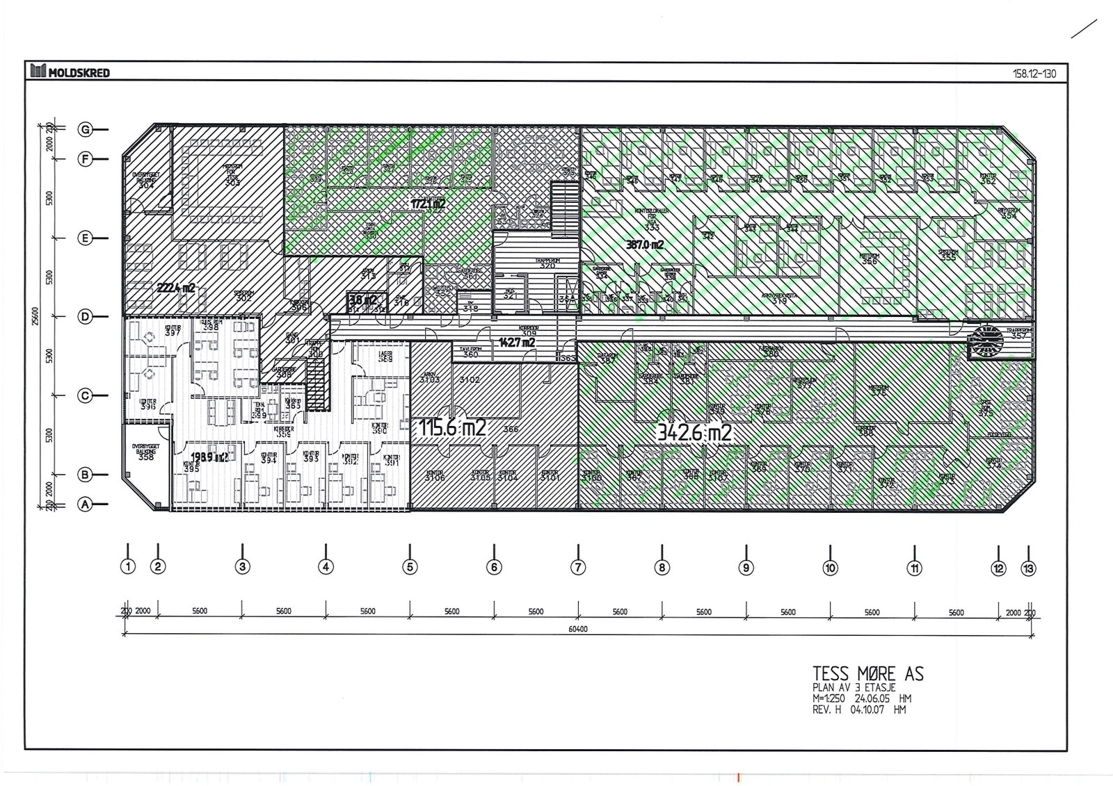
Kontorlokaler beliggende ved den mest trafikkerte rundkjøringen mellom Bergen og Trondheim. Fantastisk eksponering med gode parkeringsforhold. Lokalene består av tre delvis adskilte arealer i 3. etasje som kan seksjoneres opp alt etter ønsket arealbehov. Her er mulighetene mange. Lokalene kan overtas "as is" eller oppgraderes og innredes etter leietagers ønsker. Full fleksibilitet med andre ord. Gangavstand til Moa trafikkterminal. Tilgang til felles spiserom og stort møterom i tillegg. Det er også mulighet for lagerplass/verksted i første etasje med port. Det er datarom med kjøling i bygget. Tegning av arealene ligge på siste bildet. Lokalene blir ledig til litt forskjellige tidspunkt gjennom 2024. Ta kontakt så kan vi fortelle om mulighetene!
NB: Knappen for å vise hele beskrivelsen har kun en visuell effekt.
NB: Knappen for å vise hele beskrivelsen har kun en visuell effekt.
Visning
Ta kontakt for å avtale visning.Tess Ålesund Eiendom AS
.
Nærområdet
Annonsene kan være mangelfulle i forhold til lovpålagt opplysningsplikt. Før bindende avtale inngås oppfordres interessenter til å innhente komplett informasjon fra meglerforetaket, selger eller utleier.














