Bildegalleri

Velkommen til Defagården i Sandvika
Sandvika - Lekre kontorlokaler på 234 kvm med parkering til leie
Nøkkelinfo
- Areal
- 234 m²
- Bruttoareal
- 234 m²
- Tomt
- Eiet
- Etasje
- 3.
Type lokale
Beliggenhet
Eiendommen har en sentral beliggenhet i Sandvika sentrum med Sandvika storsenter og Thon Hotel Oslofjord rett over gaten. Meget godt tilbud av offentlig kommunikasjon med kort vei til Sandvika jernbanestasjon. Her stopper Flytoget, samt regions og lokaltog. Bussholdeplass i rett utenfor inngangen. Enkel adkomst fra E18.
Arealer og innholdsbeskrivelse
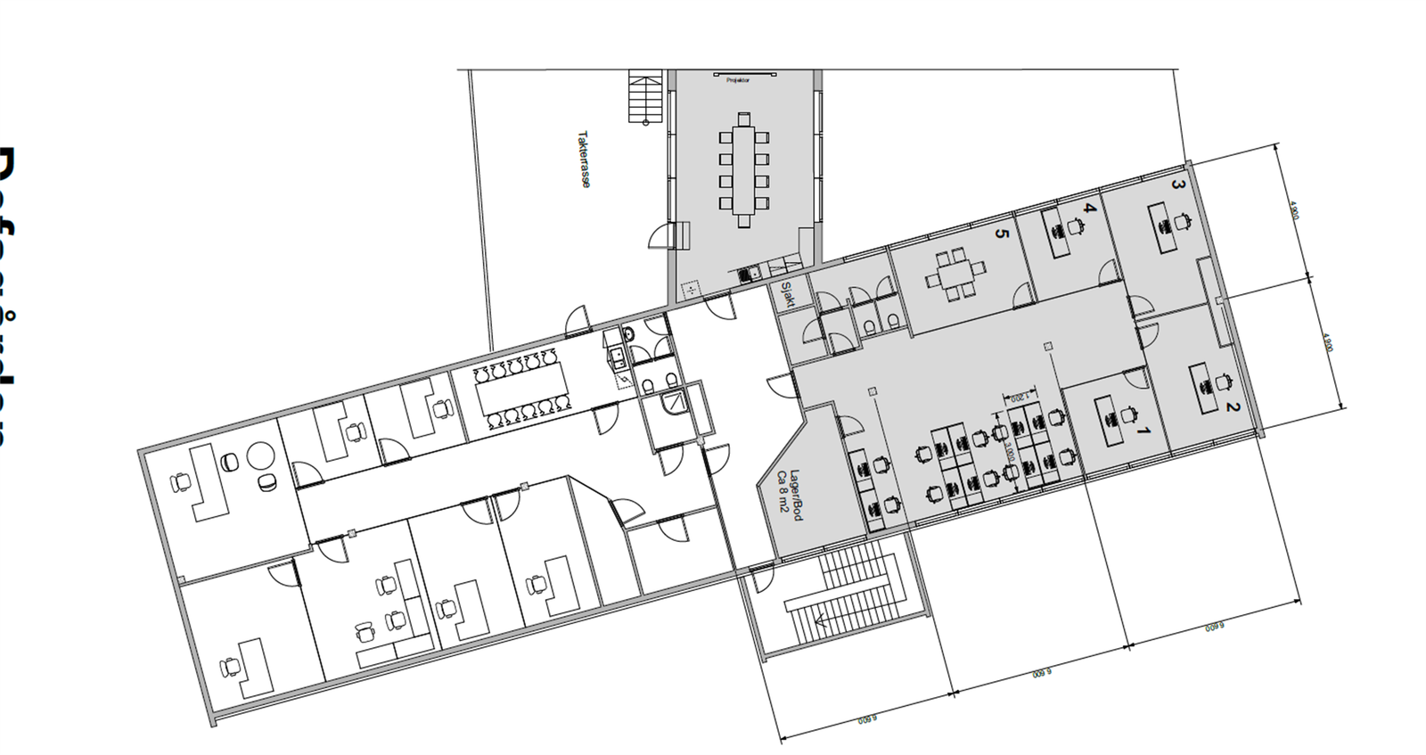
Vi leter etter ny leietaker til fine lokaler på 234 kvm i 3. etasje rett ved Sandvika Storsenter og Thon hotell Oslofjord.
Lokalene ble totalrehabilitert med høy standard i 2019. God belysning med bevegelsessensor for en smartere bruk av energi.
Arealet egner seg godt for selskaper som har behov for en kombinasjon av åpent landskap, cellekontor, stillerom, møterom og sosiale soner.
Her er det tilrettelagt i dag for ca. 13 arbeidsplasser og inndelt med 5 kontor, åpent areal hvor det kan sitte inntil 8 personer.
Utstrakt bruk av glassvegger og dører gir en åpen følelse og godt med naturlig lys fra vinduene på begge sider.
Perfekt størrelse for nettopp din virksomhet.
Ta kontakt for ytterligere info og en hyggelig visning.
Parkering
Parkering for ansatte og kunder rett utenfor inngangsdøren
Matrikkelinformasjon
Nyttige lenker
Krogsveen avd. Næring/ Link Næringsmegling AS
Nærområdet
Annonseinformasjon
| FINN-kode | 447515063 |
|---|---|
| Sist endret | 24. jan. 2026 07:41 |
| Referanse | KR25.263 |
Annonsene kan være mangelfulle i forhold til lovpålagt opplysningsplikt. Før bindende avtale inngås oppfordres interessenter til å innhente komplett informasjon fra meglerforetaket, selger eller utleier.














