Bildegalleri

Skisse fra Vågen
Nydelige lokaler i Strandgaten 17
Nøkkelinfo
- Areal
- 1 280 - 3 840 m²
Type lokale
Om eiendommen
Planer for bygget – Strandgaten 17
Eiendommen står foran et planlagt kvalitetsløft med tydelig fokus på synlighet, arealkvalitet og bærekraft. Tiltakene tar utgangspunkt i byggets sterke beliggenhet og arkitektur, og har som mål å gjøre Strandgaten 17 til et mer moderne, attraktivt og konkurransedyktig kontorbygg i Bergen sentrum.
Planene omfatter blant annet:
- Oppgradering og tydeliggjøring av inngangspartiet, med styrket identitet og bedre synlighet mot byrommet
- Forbedret eksponering og skiltmuligheter, inkludert historisk forankret profilering mot Vågen
- Oppgradering av kontorarealer med økt romfølelse, bedre dagslys og mer fleksible planløsninger
- Etablering av eksklusive utearealer på tak, med parseller som gir høy bruksverdi for leietakere
- ENØK- og bærekraftstiltak, med ambisjon om å løfte bygget til energiklasse B og tilby grønne leieavtaler
Tiltakene gjennomføres i sammenheng med leietakerskifter og tilpasninger, og vil bidra til høyere komfort og et tydeligere uttrykk – både for eksisterende og nye leietakere.
Beskrivelse
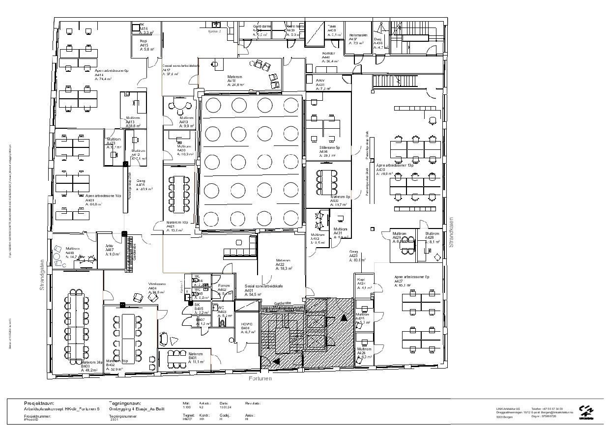
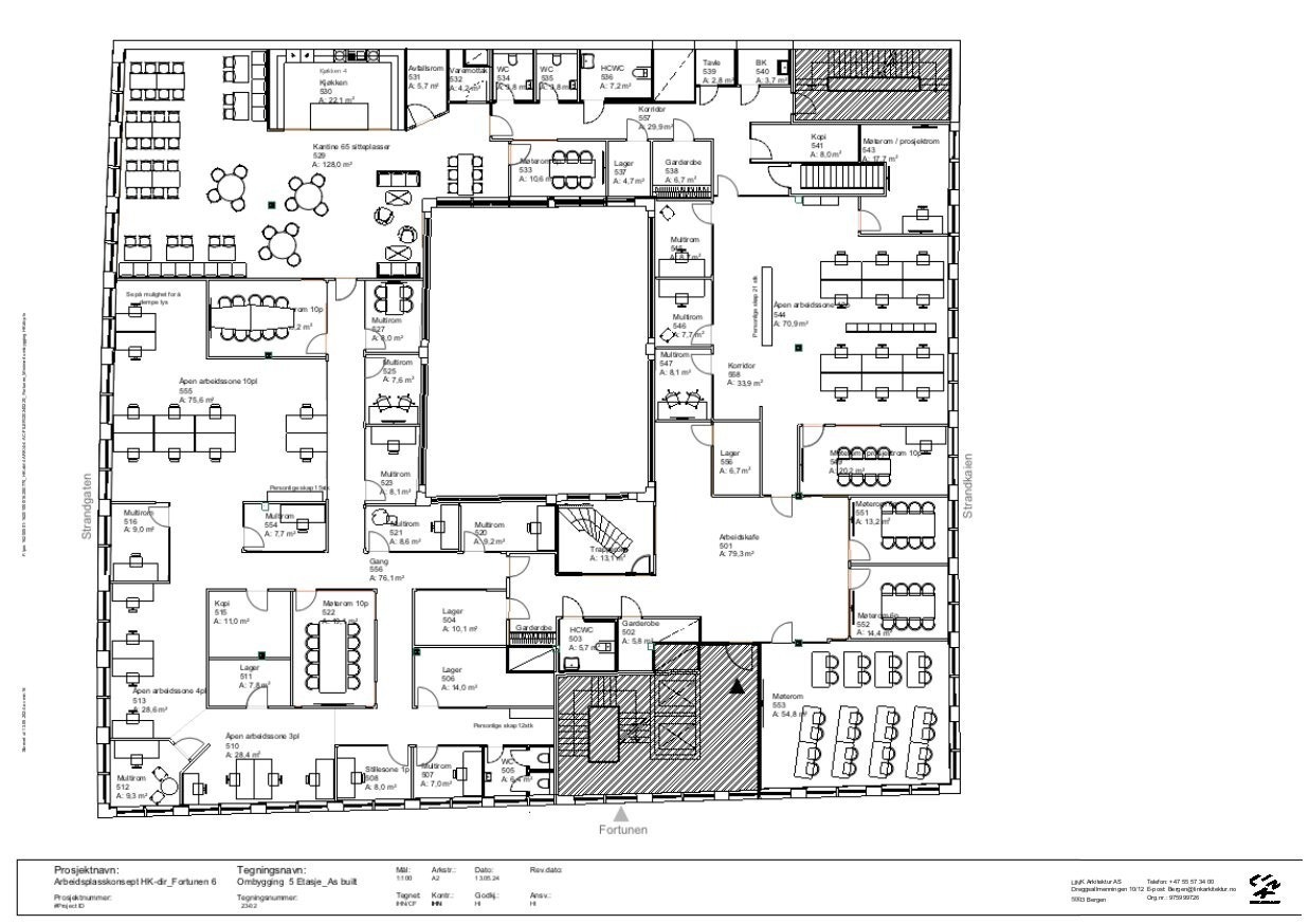
I den ikoniske sentrumseiendommen i Strandgaten 17 vil det bli 3 ledige etasjer fra juli 2026. Hver etasje er på ca 1280 kvm.
Lokalene er lyse og har nydelig utsikt over vågen og mot Ulriken. Rett utenfor døren er det en av byens travle handlegater, med mange spennende butikker og koselige spisesteder.
Adkomst
Det er et moderne inngangsparti fra sidegaten, og kort vei til parkering. Et par minutters gange til Bybanen og øvrig offentlig kommunikasjon.
Om DNB Næringseiendom
DNB Næringseiendom er en solid og erfaren eiendomsforvalter med lang tradisjon for kvalitet og trygghet.
Vi forvalter betydelige eiendomsverdier på vegne av:
– DNB Livsforsikring
– DNB Scandinavian Property Fund
– DNB Eiendomsfond Core Plus
Vår oppgave er å sikre en profesjonell og smidig prosess for våre kunder – fra første kontakt til inngått avtale. Vi kombinerer kompetanse, markedskunnskap og engasjement for å levere løsninger som møter kundens behov
Hvorfor samarbeide med oss?
– Dokumentert erfaring som forvaltningspartner
– Høy fagkompetanse og inngående markedskunnskap
– Fokus på langsiktige relasjoner og kundetilfredshet
– Dedikert til å skape gode opplevelser for leietakere
Vi er en pålitelig partner som hjelper deg med å finne riktig lokale for din virksomhet.
For mer informasjon kontakt:
Lise H. Selvik
Mobil +47 48 21 50 40
Send e-post: Lise.selvik@dnb.no
Stephane Bergfald Trotta
Eiendomsmegler 1 Sør Norge AS
Mobil + 47 41 50 68 16
Send e-post: stephane.trotta@em1sr.no
Visning
Ta kontakt for å avtale visning.
DNB Næringseiendom
Nærområdet
Annonseinformasjon
| FINN-kode | 447366787 |
|---|---|
| Sist endret | 03. feb. 2026 14:04 |
| Referanse | Strandgaten 17, 5013 Bergen |
Annonsene kan være mangelfulle i forhold til lovpålagt opplysningsplikt. Før bindende avtale inngås oppfordres interessenter til å innhente komplett informasjon fra meglerforetaket, selger eller utleier.
















