Bildegalleri

Næringslokale i Marstrandgata 10 (Rodeløkka) til leie
Nøkkelinfo
- Areal
- 97 m²
- Etasje
- 1.
- Byggeår
- 2026
Type lokale
Fasiliteter
Om eiendommen
NÆRINGSLOKALET
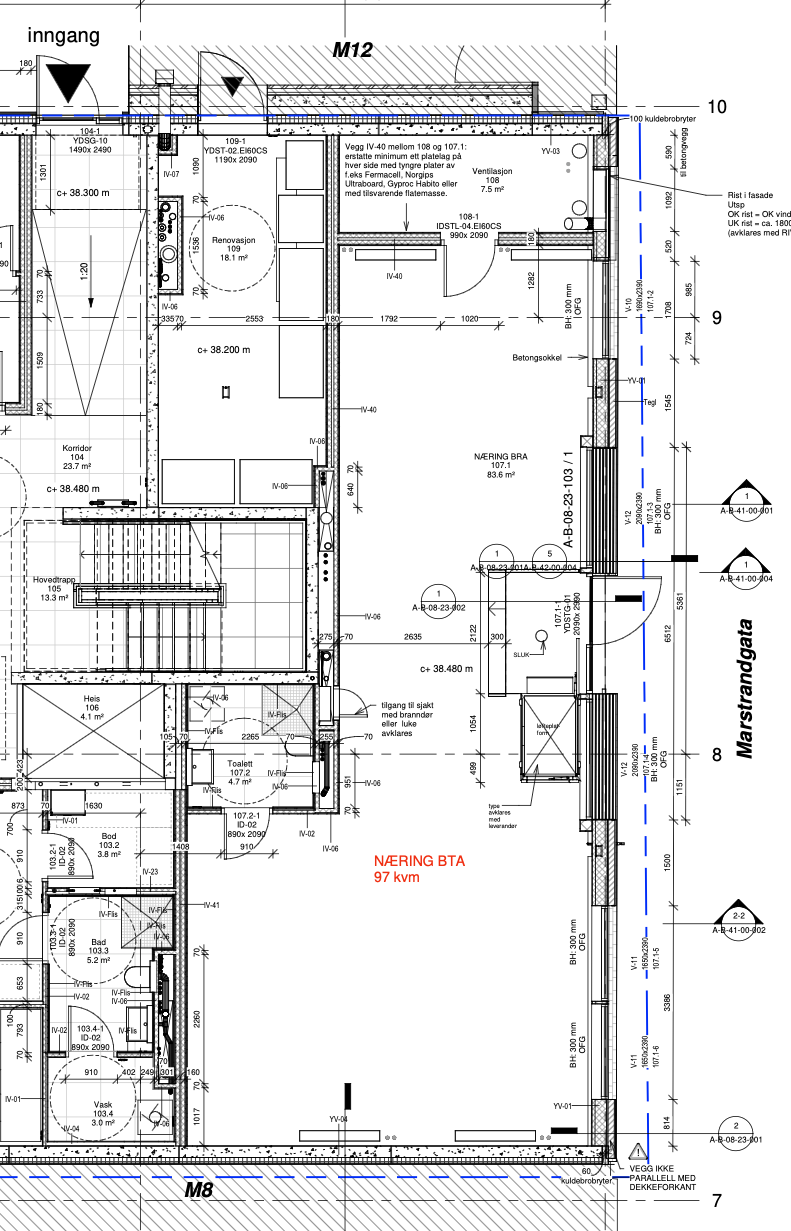
Areal: ca. 97 kvm BTA
Fasade: Store vindusflater mot gate
Adkomst: Direkte inngang fra Marstrandgata
Planløsning: Åpent hovedareal, bakrom, WC og teknisk rom
Lokalet egner seg spesielt godt for:
- Kaffebar / bakeri
- Vinbar / cocktailbar
- Nabolagsrestaurant
- Delikatesse
- Konseptbutikk
- Galleri / showroom
- Studio / atelier
Beliggenhet
BELIGGENHET
Marstrandgata 10 er et moderne byutviklingsprosjekt midt i hjertet av Rodeløkka – et av Oslos mest etablerte og etterspurte byområder. Prosjektet kombinerer bolig og næring i et urbant kvartal med høy aktivitet, sterk lokal identitet og solid kjøpekraft.
Næringslokalet får direkte adkomst fra gateplan, store vindusflater og optimal eksponering mot fortau og byliv. Lokalet leveres som moderne råbygg med fleksible tilpasningsmuligheter.
Rodeløkka er et av Oslos mest autentiske og attraktive byområder, med tydelig kulturprofil og høy urban tetthet. Området preges av kaféer, restauranter, nisjebutikker, gallerier og kulturarenaer.
Gangavstand til:
- Grünerløkka – 5 min
- Carl Berner – 7 min
- Torshov – 7 min
- St. Hanshaugen – 10 min
Befolkning (15 min gange)
- 52.592 innbyggere
- Befolkningstetthet: 16.932 per km²
- Høy andel unge voksne (23–44 år)
- Sterk kjøpekraft
Bevegelse (15 min gange)
- 208.944 gjennomsnittlige daglige besøk
- 50.333 daglige besøk per km²
- Travleste dag: fredag
Korthandel (15 min gange)
- NOK 22 mill. daglig korthandel
- NOK 154 mill. ukentlig
- Snitt transaksjonsbeløp: ca. 274 kr
Handel og servering
- Total omsetning i området: NOK 6,3 mrd.
- Omsetningstetthet: NOK 2 mrd. per km²
- Konsepttetthet: 190 konsepter per km²
Dette dokumenterer et av Oslos sterkeste handels- og serveringsområder.
Kilde: Plaace.co (SSB, Bank Aksept, Telia)
Matrikkelinformasjon
Visning
Ta kontakt for å avtale visning.Alti Forvaltning AS
Nærområdet
Annonsene kan være mangelfulle i forhold til lovpålagt opplysningsplikt. Før bindende avtale inngås oppfordres interessenter til å innhente komplett informasjon fra meglerforetaket, selger eller utleier.


