Bildegalleri

Drammensveien 116
Skøyen - Næringslokale på gateplan med store vindusflater og god profilering.
Nøkkelinfo
- Areal
- 90 m²
- Bruttoareal
- 90 m²
- Tomt
- Eiet
- Etasje
- 1.
Type lokale
Fasiliteter
Kort om eiendommen
Næringsseksjonen er beliggende i 1 etg. med direkte adkomst fra gaten. Lokalet har meget god profilering mot gaten, hele fasaden tilhører butikken i og har 2 dører.
Lokalet er ledig fra 01.02.2026 og egner seg godt for salg av kapitalvarer/interiør, VVS, kontorvirksomhet etc.
Bebyggelse
Bygget er oppført i 1935
Beliggenhet
Lokalet ligger på Skøyen med meget god profilering, like ved krysset Halvdan Svartes gate/Drammensveien. Fra eiendommen er det gangavstand til Karenslyst allè og Skøyen stasjon (tog/flytog). Buss/trikk-holdeplass i Drammensveien.
Adkomst
Enkel adkomst med bil og offentlig kommunikasjon. Lokalet har direkte adkomst fra gaten.
Parkering
Seksjonen disponerer disponerer per i dag en parkeringsplass.
Inneholder
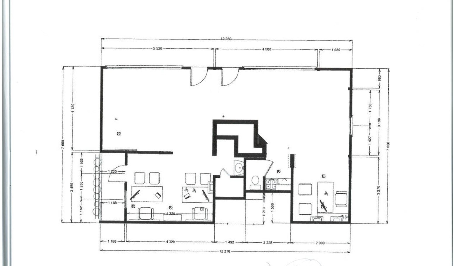
Lokalet er på BTA ca. 90 kvm. og ligger i 1. etasje. Lokalet inneholder stort åpent butikk/showroom, kjøkken, møterom/kontor, toalett og balkong.
Lokalet holder meget god standard og er pusset opp med parkett på gulv, malte vegger og senket himling med innfelt belysning. Seksjonen har eget ventilasjonsanlegg, samt kjøling. Ikke godkjent for servering.
I tillegg medfølger et lokale i kjeller som kan benyttes som lager. lageret inngår ikke i det oppgitte arealet (ca. 90 kvm BTA).
Matrikkelinformasjon
Visning
Ta kontakt for å avtale visning.
AREALPARTNER NÆRINGSMEGLING AS
Nærområdet
Annonseinformasjon
| FINN-kode | 446386862 |
|---|---|
| Sist endret | 23. jan. 2026 08:36 |
| Referanse | APN1.261 |
Annonsene kan være mangelfulle i forhold til lovpålagt opplysningsplikt. Før bindende avtale inngås oppfordres interessenter til å innhente komplett informasjon fra meglerforetaket, selger eller utleier.







