Bildegalleri

SKARPSNO - Kontorlokaler ledig i ærverdig bygård! ettertraktet område - garasjer - hage
Nøkkelinfo
- Areal
- 336 - 673 m²
- Etasje
- 2.
- Byggeår
- 1931
Type lokale
Kontor
Garasje/Parkering
Fasiliteter
Bredbåndstilknytning
Garasje/P-plass
Om eiendommen
Velkommen til Drammensveien 82!
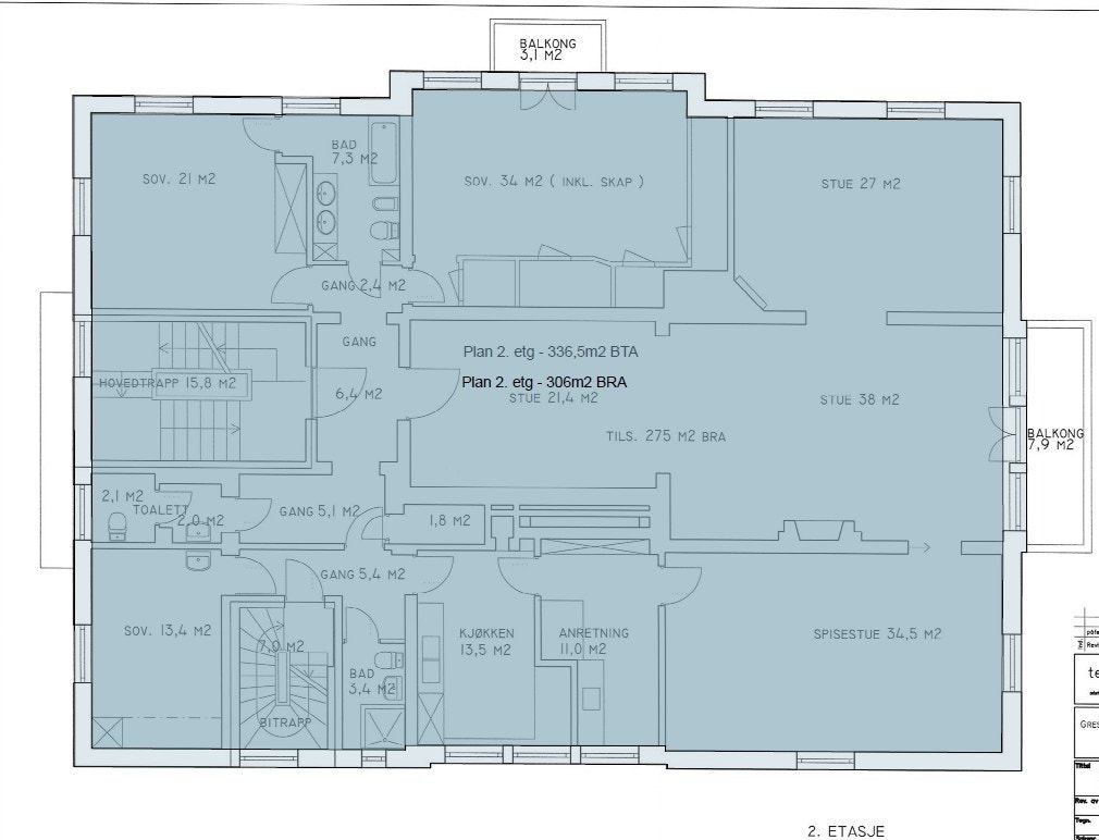
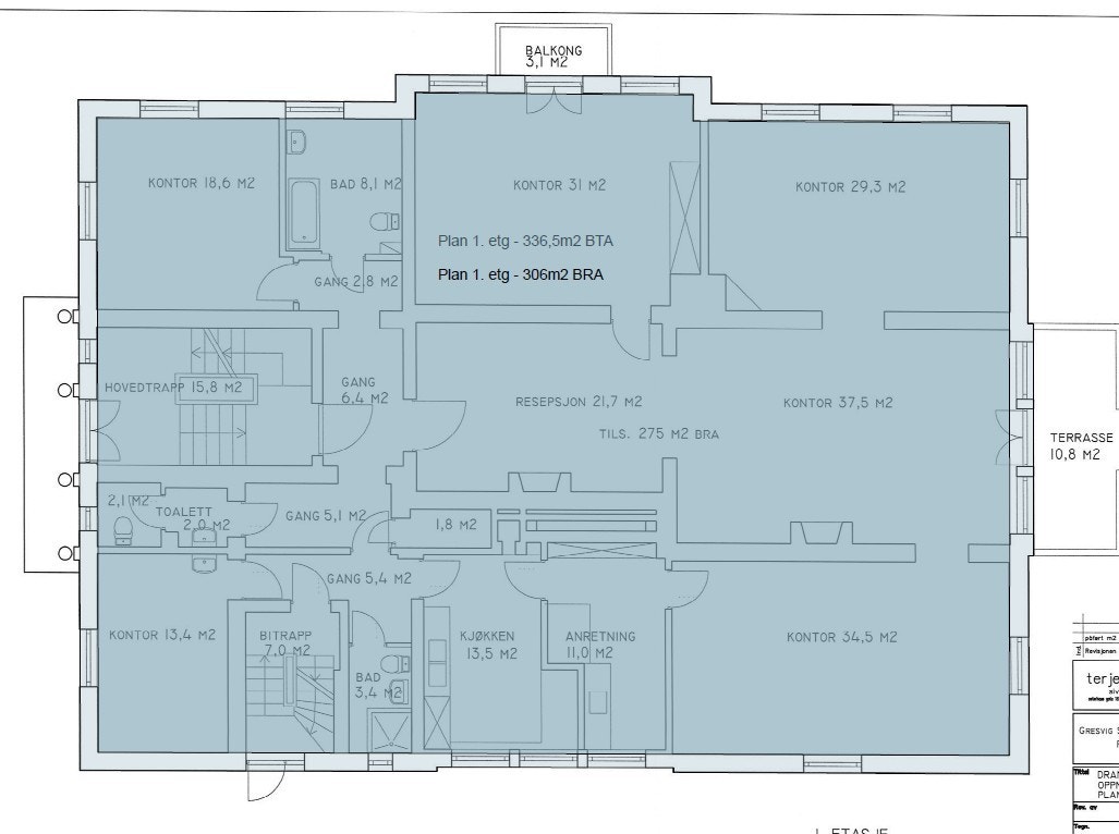
Det er 1. og 2. etg som kan leies samlet eller hver for seg. Areal per etg er 336,5 kvm BTA.
Det er to stk. garasjeplasser tilgjengelig i eiendommen samt lagermuligheter i eiendommens underetasje.
Det er 1. og 2. etg som kan leies samlet eller hver for seg. Areal per etg er 336,5 kvm BTA.
Det er to stk. garasjeplasser tilgjengelig i eiendommen samt lagermuligheter i eiendommens underetasje.
Beliggenhet
Drammensveien 82 ligger strategisk plassert mellom Skøyen og Vika, med kort vei til sentrum og enkel tilgang til hovedfartsårer. Området er godt betjent av kollektivtransport med buss, trikk og tog i nærheten, noe som gjør det enkelt for både ansatte og besøkende å komme seg til og fra kontoret. I umiddelbar nærhet finnes et bredt utvalg av restauranter, caféer, treningssentre og servicetilbud. Dette bidrar til en attraktiv arbeidshverdag og gjør det enkelt å kombinere jobb, møter og sosiale aktiviteter.
Adkomst
Adkomst med bil via Drammensveien
Ca. 10–15 minutters gange fra Skøyen stasjon til Drammensveien 82
Lilleaker-linjen (linje 13) har stoppesteder utenfor eiendommen og gir en god forbindelse fra ulike deler av Oslo.
Ca. 10–15 minutters gange fra Skøyen stasjon til Drammensveien 82
Lilleaker-linjen (linje 13) har stoppesteder utenfor eiendommen og gir en god forbindelse fra ulike deler av Oslo.
Standard
Det er eldre standard på kontorlokalene og med naturlig ventilasjon.
Innhold
Lokalene inneholder i dag følgende:
1 etg: 2 stk bad + 1 wc, kjøkken, terrasse ut til hagen
2 etg: 2 stk bad + 1 wc, kjøkken, 2 stk balkong
1 etg: 2 stk bad + 1 wc, kjøkken, terrasse ut til hagen
2 etg: 2 stk bad + 1 wc, kjøkken, 2 stk balkong
Matrikkelinformasjon
Kommunenr: 301
Gårdsnr: 212
Bruksnr: 112
NB: Knappen for å vise hele beskrivelsen har kun en visuell effekt.
NB: Knappen for å vise hele beskrivelsen har kun en visuell effekt.
Visning
Ta kontakt for å avtale visning.Nærområdet
Annonseinformasjon
| FINN-kode | 446124766 |
|---|---|
| Sist endret | 20. jan. 2026 10:23 |
| Referanse | D82 1 og 2 etg |
Annonsene kan være mangelfulle i forhold til lovpålagt opplysningsplikt. Før bindende avtale inngås oppfordres interessenter til å innhente komplett informasjon fra meglerforetaket, selger eller utleier.


