Bildegalleri

Unike og eksklusive næringslokaler for utvikling, produksjon og innovasjon - sentralt i Moss sentrum
Nøkkelinfo
- Areal
- 17 - 3 786 m²
- Tomteareal
- 2 265 m² (eiet)
Type lokale
Fasiliteter
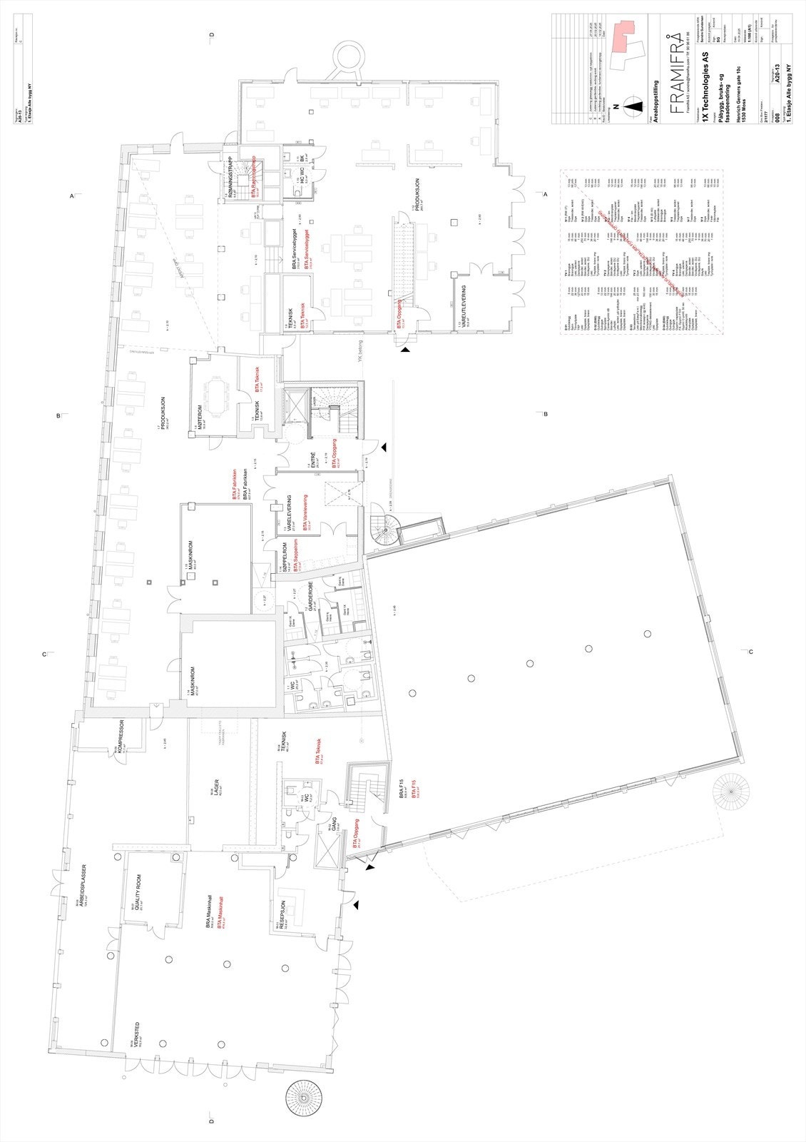
Arealspesifikasjon
17 kvm Søppelrom FA
71 kvm Rømn.tr. nord FA
87 kvm Teknisk FA
177 kvm Oppgang midt FA
204 kvm Ventilasjon FA
761 kvm Servicebygget 1. etg. FA
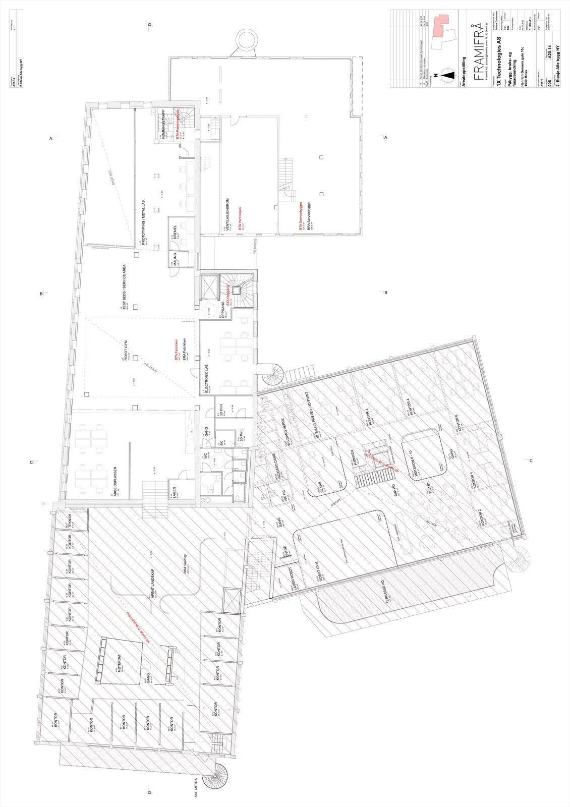
2. etg: 504 kvm Vestfløy 2. etg.
2. etg: 641 kvm Fabrikken 2. etg.
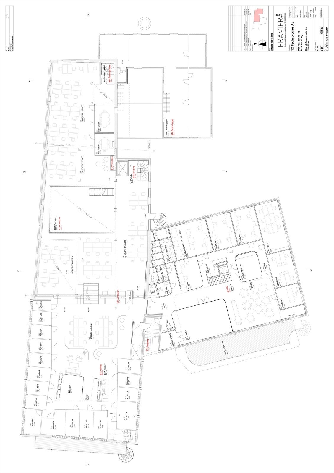
3. etg: 71 kvm Vestfløy 3. etg.
3. etg: 656 kvm Fabrikken 3. etg.
4. etg: 593 kvm Fabrikken 4. etg. Kantine.
| Kort om eiendommen
I hjertet av Moss sentrum - Møllebyen tilbys nå et helt spesielt næringslokale for utleie. Området har en lang og stolt industrihistorie, og har gjennom de senere år blitt transformert til et attraktivt og pulserende område for kunnskap, teknologi og næring.
Her kombineres industriell arv med moderne innovasjon - en perfekt ramme for virksomheter som ønsker å skape, utvikle og produsere. Lokalene er opprinnelig utviklet for avansert teknologiutvikling og produksjon av humanoide roboter, og er etablert av teknologiselskapet 1X Technologies, og holder et nivå som sannsynligvis plasserer det blant de beste lokalene i Norge for utvikling, testing og produksjon av komplekse produkter.
Her kombineres moderne og representative kontorlokaler med produksjons-, utviklings- og testfasiliteter av høy kvalitet. Lokalene er gjennomtenkt tilrettelagt for virksomheter som stiller høye krav til funksjonalitet, logistikk, teknisk infrastruktur og fleksibilitet.
Dette er ikke et standard næringslokale - men et unikt og fremtidsrettet miljø for selskaper som jobber med utvikling, produksjon og innovasjon på høyt nivå. For riktig leietaker representerer dette en sjelden mulighet til å etablere seg i lokaler som allerede er rigget for ambisiøs virksomhet.
| Eiendommens potensiale
Ideelt for flere bransjer:
Selv om lokalene er bygget for robotutvikling, egner de seg svært godt for en rekke bransjer, blant annet:
- Teknologi- og innovasjonsselskaper
- Produksjon og montering av avanserte produkter
- Medisin, hardware, elektronikk og industriell utvikling
- FoU-miljøer, laboratorier og testvirksomhet
- Skalerbare startups og etablerte industribedrifter
Planløsningen gir gode muligheter for tilpasning, enten man har behov for rene kontorarealer, kombinasjon kontor/produksjon eller arealer for testing og prototyping.
| Innhold
Fasiliteter som skiller seg ut:
- Moderne og lyse kontorer med høy standard
- Produksjons- og testarealer tilpasset krevende utviklingsmiljøer
- Gode takhøyder og tekniske løsninger
- Effektiv intern logistikk
- Representativt uttrykk også for kunder, investorer og samarbeidspartnere
| Beliggenhet
Sentralt og strategisk:
Beliggenheten er svært attraktiv, midt i Moss sentrum, med kort vei til:
- Kollektivtransport (tog/buss)
- Servering, handel og servicetilbud
- E6 og øvrig infrastruktur
Eiendommen ligger unikt til med elven som nærmeste nabo, noe som gir både særpreg, identitet og et svært attraktivt arbeidsmiljø. Beliggenheten skiller seg tydelig ut fra tradisjonelle næringsområder, og gir ansatte og besøkende en sjelden kombinasjon av urban puls, natur og historie.
Dette er noe som gjør lokalene både praktiske og attraktive for ansatte og besøkende også med overnattingsmuligheter på nye Hotell Riviera på Verket som nærmeste nabo.
| Parkering
Enkel adkomst og gode parkeringsforhold:
Det er parkeringsmuligheter rett utenfor eiendommen, i tillegg til kort gangavstand til flere parkeringsanlegg, både under tak og utendørs. Dette gir fleksibilitet for ansatte, gjester og leveranser.
| Diverse
Unik samlokalisering med 1X Technologies:
Leietaker får en helt spesiell mulighet til å samlokalisere seg med 1X Technologies - et av verdens mest spennende og raskest voksende teknologiselskaper innen humanoid robotikk og AI.
1X utvikler neste generasjon menneskelignende roboter og er internasjonalt anerkjent for sitt teknologiske nivå, ambisjoner og tempo. Selskapet har sterke globale eiere, investorer og samarbeidspartnere, og tiltrekker seg noen av de fremste talentene innen teknologi, AI og hardware.
Å være samlokalisert med 1X gir leietaker tilgang til et unikt fagmiljø, et inspirerende økosystem og en helt annen tyngde og attraktivitet - både overfor ansatte, kunder, partnere og investorer.
| Standard
Betydelige investeringer - tilrettelagt for å tiltrekke de beste hodene.
Eiendommen er betydelig påkostet det siste året, med et klart mål om å skape et attraktivt og moderne arbeidsmiljø - også for internasjonal arbeidskraft. Her er det lagt stor vekt på trivsel, funksjonalitet og kvalitet i alle ledd.
Et sentralt element er et storskala kjøkken og profesjonell kantineløsning, hvor både utforming og drift holder høy standard. Kantinen er tilrettelagt for daglig servering med fokus på kvalitet, både i råvarer, tilberedning og helhetsopplevelse. Dette bidrar til et sosialt og inkluderende miljø som styrker både kultur, samarbeid og attraktivitet som arbeidsplass.
| Tekniske installasjoner
Teknisk standard i toppklasse:
Eiendommen holder en gjennomgående svært høy teknisk standard, og er oppgradert med:
- Topp moderne ventilasjonsaggregater
- Effektive avsugs- og luftbehandlingssystemer
- Gjennomtenkt og funksjonell belysning
- Heiser med god kapasitet
- Nye og påkostede toalett- og garderobeområder
Alt er utformet for å møte kravene til moderne produksjons- og utviklingsmiljøer, samtidig som det gir et komfortabelt og profesjonelt arbeidsmiljø for ansatte og besøkende.
| Offentlig kommunikasjon
Svært gode kollektivforbindelser:
Eiendommen har meget god tilgjengelighet med kollektivtransport. Det er ca. 350 meter til bussterminalen, med hyppige avganger lokalt og regionalt, og ca. 1 km til Moss stasjon, som gir enkel tilgang til togforbindelser mot blant annet Oslo og øvrige deler av Østlandet. Dette gjør beliggenheten svært attraktiv for både ansatte, besøkende og internasjonale medarbeidere som er avhengige av enkel og effektiv reisevei.
| Lovanvendelse
Ved utleie vil meglers leiekontrakt bli benyttet. Husleielovens vil bare i begrenset utstrekning kunne påberopes av Leietaker. Kontakt vårt kontor for nærmere opplysninger og gjennomlesing av avtalen.
Utleier forbeholder seg her bl.a. retten til å kunne registrere utleievirksomheten i merverdiregisteret.
Eml. §§ 4-4, 6-2, 6-7, 6-10, 7-1 og 8-8 fravikes ved dette oppdraget.
Lov om hvitvasking
Eiendomsmeglere er underlagt lov om hvitvasking. Dette innebærer at oppdragsansvarlig har plikt til å melde fra til Økokrim om eventuelle mistenkelige transaksjoner.
| Hvitvaskingsloven
Hvitvaskingsregelverk
I henhold til Lov av 6. mars 2009 nr. 11 om tiltak mot hvitvasking og terrorfinansiering (Hvitvaskingsloven) er megler pliktig å gjennomføre kundetiltak av både oppdragsgiver og kjøper.
Dette innebærer blant annet plikt for meglerforetaket til å bekrefte identiteten til kjøper på grunnlag av gyldig legitimasjon. Samt plikt til å foreta kontroll av eventuelle reelle rettighetshavere. Der kjøper opptrer i henhold til fullmakt må også fullmaktsgivers identitet bekreftes på grunnlag av gyldig legitimasjon. Kundetiltak av kjøper, skal senest skje på kontraktsmøtet.
Dersom budgiver opptrer i henhold til fullmakt, må fullmakten fremlegges samtidig som bud inngis. Dersom kjøper er en juridisk person, plikter kjøper å fylle ut og returnere egne kundekontrollskjemaer før kontraktsmøtet. Firmaattest eller fullmakt må fremlegges samtidig som det inngis bud.
Dersom kundetiltak ikke kan gjennomføres kan ikke meglerforetaket bistå med gjennomføring av handelen, herunder ikke foreta oppgjør. Meglerforetaket er videre forpliktet til å rapportere mistenkelige transaksjoner til Økokrim. Med mistenkelig transaksjon menes transaksjon som mistenkes å involvere utbytte fra straffbar handling eller som skjer som ledd i terrorfinansiering. Manglende mulighet for kundetiltak kan også være et forhold som gjør transaksjonen mistenkelig. Det kan ikke gjøres ansvar gjeldende motmeglerforetaket som følge av at meglerforetaket overholder sine plikter etter Hvitvaskingsloven.
Matrikkelinformasjon
Visning
Ta kontakt for å avtale visning.Metra Næringsmegling AS
Nærområdet
Annonseinformasjon
| FINN-kode | 445900024 |
|---|---|
| Sist endret | 27. feb. 2026 13:55 |
| Referanse | MTRA1.2543 |
Annonsene kan være mangelfulle i forhold til lovpålagt opplysningsplikt. Før bindende avtale inngås oppfordres interessenter til å innhente komplett informasjon fra meglerforetaket, selger eller utleier.














































