Bildegalleri

305531_DJI_0462.jpg
4 minutters gangavstand til Drammen jernbanestasjon - Moderne kontor lokaler med utsyn til Drammens elva. 200- 1500 kvm.
Nøkkelinfo
- Areal
- 1 470 m²
- Bruttoareal
- 1 470 m²
- Tomt
- Eiet
- Etasje
- 2.
- Byggeår
- 1983
Type lokale
Beskrivelse
Buskerud Næringsmegling AS kan nå tilby moderne og innbydende kontorlokaler på Bragernes midt i Drammen sentrum.
Lokalene ligger langs Drammens elven med flott utsikt og kort gangavstand til alle servicetilbud i byen.
Noen vil påstå at dette er byens hyggeligste beliggenhet.
Umiddelbar nærhet til Elveparken i front, kort gange over til Strømsø med tog- og jernbanestasjon. Kort vei til offentlig parkeringshus, både Grev Wedel og Thamsgate.
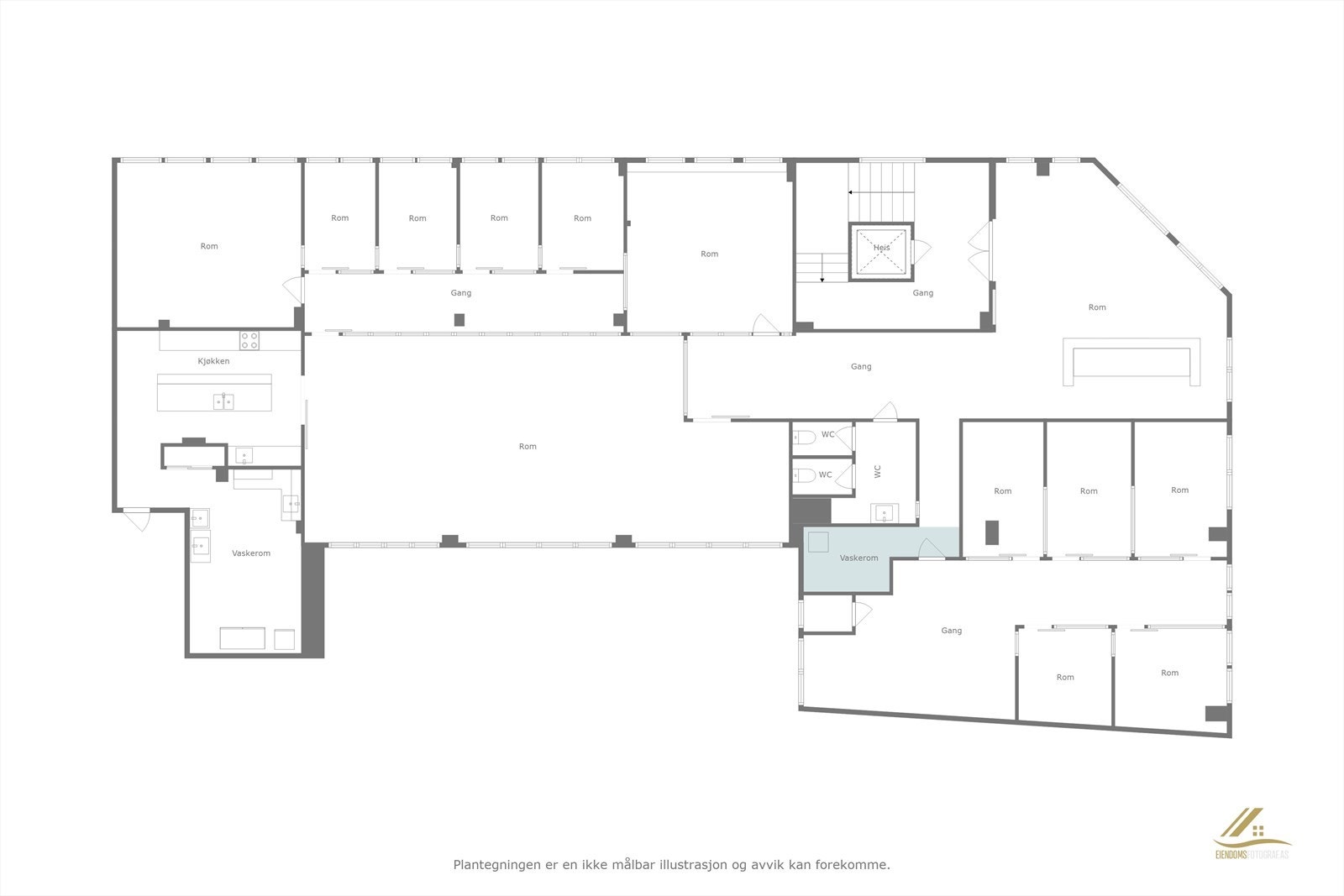
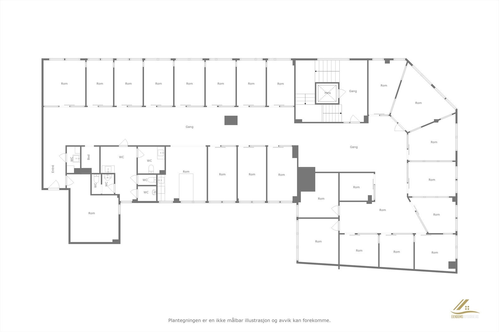
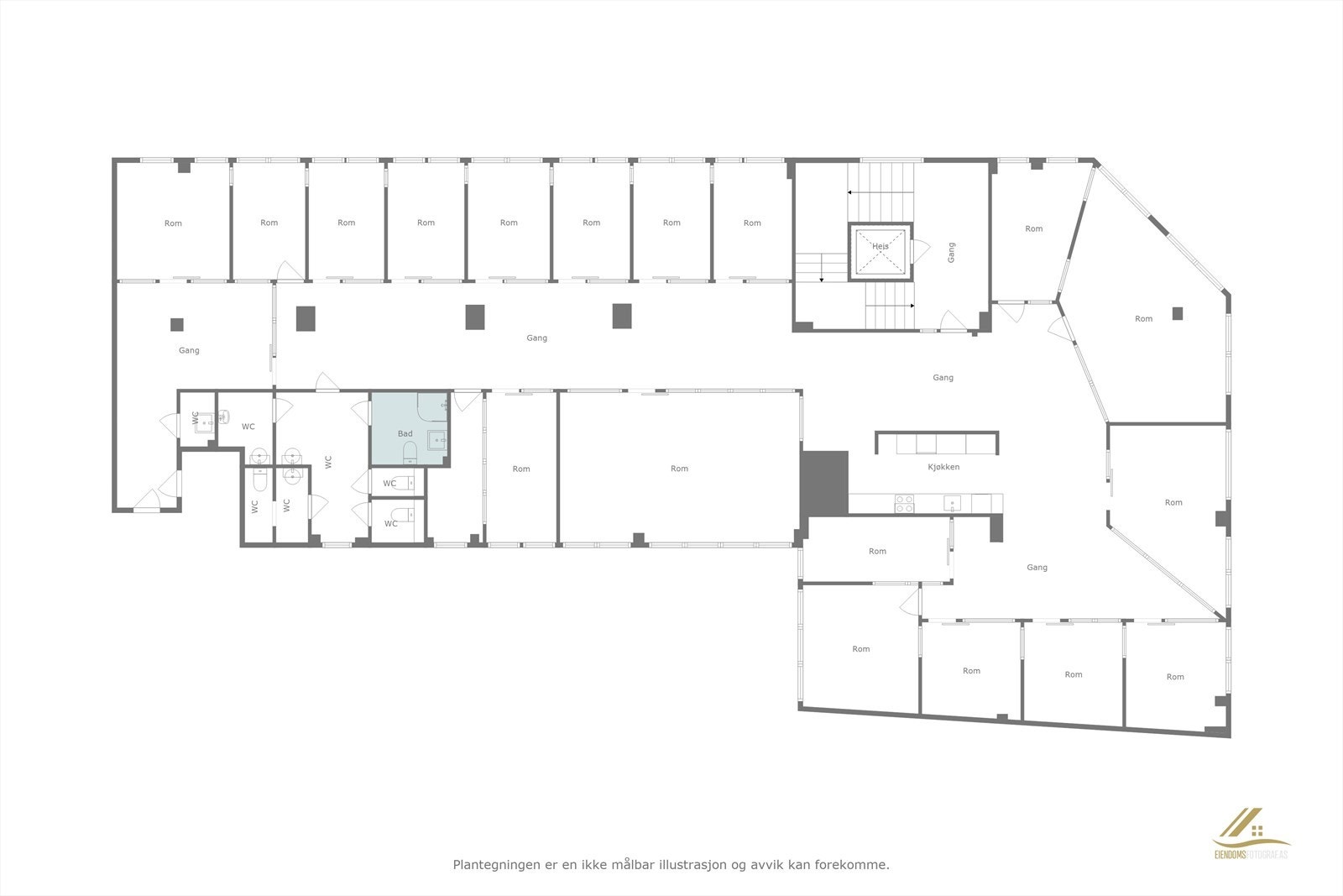
Totalt 3 etasjer à ca. 500 kvm. Det tilbys lokaler fra ca. 200-1.500 kvm.
Eiendommen ligger mot Nedre Strandgate med uhindret sikt over Drammenselven, få minutters gange til Drammen jernbanestasjon og med alle tilbud i umiddelbar nærhet. Nabobygget er Magasinet kjøpesenter med parkeringshus og det er også godt med andre private parkeringsarealer på naboeiendom.
Bebyggelsen er oppført i betong og stålkonstruksjoner utvendig forblendet med teglstein og stålplater. Første etasje er restaurantlokale og de tre øvrige etasjene inneholder kontorlokalene som skal leies ut.
Hver etasje er på ca. 500 kvm BTA og inneholder resepsjon, cellekontorer, åpne landskap, møterom, storkjøkken, kantine og div. toaletter mm.
Lokalene har vært benyttet samlet av en leietaker og er derfor tilpasset slik bruk. Det må derfor påregnes ombygginger ved oppdeling.
Lokalene ble totalt oppusset for tidligere leietaker og fremstår som tidsmessige med høy kvalitet på overflater og innredninger. Det er installert stort produksjonskjøkken som er tilknyttet stor kantine, samt separate kjøkken i de andre etasjene. Lokalene er tilknyttet fjernvarme og det er ventilasjonsanlegg med kjøling. Heis og alarmanlegg. Eiendommen er tilknyttet offentlig vann og avløp, samt fibernett.
Velkommen til visning av Schwenckegata 1.
Matrikkelinformasjon
Visning
Ta kontakt for å avtale visning.Buskerud Næringsmegling AS
Jens-Petter Frøiland
Pål Gurrik
Nærområdet
Annonseinformasjon
| FINN-kode | 445768718 |
|---|---|
| Sist endret | 12. jan. 2026 11:21 |
| Referanse | BUNM1.2417 |
Annonsene kan være mangelfulle i forhold til lovpålagt opplysningsplikt. Før bindende avtale inngås oppfordres interessenter til å innhente komplett informasjon fra meglerforetaket, selger eller utleier.

































